Материал: Технологический процесс лесопромышленного склада. Цехи по первичной переработки круглых лесоматериалов

Внимание! Если размещение файла нарушает Ваши авторские права, то обязательно сообщите нам

Технологический процесс лесопромышленного склада. Цехи по первичной переработки круглых лесоматериалов

Федеральное агентство по образованию

Уральский государственный лесотехнический университет

Кафедра ТОЛП










Курсовой проект

по дисциплине «Экологизированные технологии лесных складов»












Екатеринбург 2010

Содержание

Исходные данные

1. Технологический процесс нижнего лесопромышленного склада

.1 Условия проектирования

.2 Режим работы

.3 Баланс раскряжевки хлыстов, выход сортиментов, распределение лесоматериалов по назначению

.4 Обоснование выбора типа цехов по первичной переработке, объемов и видов круглых лесоматериалов, перерабатываемых в них

.5 Характеристика технологического процесса нижнего склада

.6 Технологический процесс работы нижнего склада

.7 Расположение складского оборудования, лесоперерабатывающих цехов, сырьевых, перегрузочных и складов готовой продукции

.8 Склады древесного сырья и круглых лесоматериалов

. Цехи по первичной переработки круглых лесоматериалов

.1 Основные исходные данные и требования для проектирования цехов

.2 Описание технологического процесса

Библиография

лесоматериал хлыст склад производительность

1. Технологический процесс нижнего лесопромышленного склада

1.1 Условия проектирования

Лесные склады предназначены для бесперебойной работы лесовозного транспорта, а также для обработки и отгрузки потребителям различных по размерам и качеству лесоматериалов. В состав технологического процесса лесоскладских работ входит первичная обработка хлыстов с целью получения из них круглых сортиментов на отгрузку как готовой продукции и сырья для лесоперерабатывающих цехов.

Склад проектируется на территории поселка Кананикольск, Зилаирского района, республики Башкортостан. Тип примыкания склада - прирельсовый. Площадка под строительство естественных ограничений не имеет.

.2 Режим работы

На нижний склад с лесосеки поступает сырье в виде хлыстов. Годовой грузооборот склада по прибытию характеризует объем лесоматериалов, поступивших и обрабатываемых на складе в течение года, он составляет 24 тыс. м3. Вывозка леса осуществляется периодически, т.е. исключая весеннюю и осеннюю распутицы (с 15 апреля по 15 июня и с 15 октября по 15 ноября). В зимнее время сырье поступает на склад с 15 ноября по 15 апреля (100 дней), а в летнее - с 15 июня по 15 октября (87 дней), в 1 смену.

Режим работы по переработке древесного сырья -250 дней в 1 смену, по отгрузке готовой продукции потребителям в вагоны МПС - 365 дней в 2 смены.

Для построения интегрального графика режима работы нижнего склада первоначально необходимо произвести расчеты по годовым и среднемесячным объёмам поступления и раскряжёвки хлыстов в зимний и летний периоды.

Зимой (5 месяцев) вывозится 70% древесины:

Qв.з. = 24 × 0,7 = 16,8 тыс. м3;

Летом (4 месяца) вывозится 30% древесины:

Qв.л. = 24 × 0,3 = 7,2 тыс. м3;

Среднемесячное поступление хлыстов на нижний лесопромышленный склад в зимний период:

 =  = = 3,36 тыс. м3,

где Qв.з. - общий объем поступления хлыстов на склад в зимний период, тыс. м3;

tз- продолжительность зимнего периода вывозки, месяц.

Среднемесячное поступление хлыстов на нижний лесопромышленный склад в летний период:

Qс.м.л. =  =  = 1,8 тыс. м3,

где Qв.л. - общий объем поступления хлыстов на склад в зимний период, тыс. м3;

tл - продолжительность летнего периода вывозки, месяц.

Среднемесячный объем раскряжевки хлыстов рассчитывается в зависимости от принятого режима работы склада. При равномерном режиме раскряжевки хлыстов в течение года среднемесячный объем составит:

Qм.р. =  =  = 2 тыс. м3,

где Qгод - годовой грузооборот склада по раскряжевке хлыстов, тыс. м3.

На рис.1 показан график режима работы нижнего лесопромышленного склада. Графиком раскряжевки хлыстов при равномерной раскряжевке хлыстов в течение года будет прямая линия (2). График поступления хлыстов на склад строим с учетом переходящего запаса Qп (разница между плановым объемом вывозки и объемом переработки за этот же период).

Определяем объем переходящего запаса древесного сырья Qп:

Qп = Qв.з.2 - Qр.з.2,

где Qв.з.2 - объем вывозки леса в зимнее время за второй период, тыс. м3;

Qр.з.2 - объем раскряжевки в зимнее время за второй период, тыс. м3.

С 15 ноября по 31 декабря (1,5 месяца) вывозится:

Qв.з.2 = 1,5  3,36 = 5,04 тыс. м3;

С 15 ноября по 31 декабря (1,5 месяца) раскряжевывается:

Qр.з.2 = 2  1,5 = 3 тыс. м3;

Qп = 5,04 - 3= 2,04 тыс. м3.

Построенный график вычерчен по методике приведенной в учебнике [2].

Определение максимального объема резервного запаса хлыстов:

Разность ординат точек В и А равняется максимальному сезонному запасу хлыстов, создаваемых для ритмичной работы склада. Величина В определяется как сумма переходящего объема запаса древесного сырья (Qп) и объема вывозки (Qв.з.1) с 1 января по 15 апреля, а величина А равняется объему раскряжевки хлыстов (Qр.з.1) за этот же период.

Ев.р = (Qп + Qв.з.1) - Qр.з.1 = (2,04 + 3,363,5) - 2,03,5 = 6,8 тыс. м3.

tз.1 - время вывозки в первый зимний период; tв.р. - время весенней распутицы; tл - время вывозки летом; tос.р. - время осенней распутицы; tз.2 - время вывозки во второй зимний период; Qз.1 - объем раскряжевки в первый зимний период; Qл - объем раскряжевки летом; Qз.2 - раскряжевка во второй зимний период. Максимальный сезонный запас: Ев.р.= 6,8 тыс.м3.

Рис.1. График режима работы нижнего склада: 1 - график поступления хлыстов на склад; 2 - график раскряжёвки хлыстов.

.3 Баланс раскряжевки хлыстов, выход сортиментов, распределение круглых лесоматериалов по назначению

На склад доставляются хлысты со средним объемом 0,39 м3, породный состав 3С6Б1Ос, выход деловой древесины 71%. Планируемый выход сортиментов из хвойных и лиственных хлыстов приведен ниже.

Таблица 1 Баланс раскряжевки хлыстов

№ п/п

Наименование

Объем



в год

в сутки

в смену



тыс. м3

%

м3

м3

1.

Деловые лесоматериалы

17

71

68

68

2.

Дрова

7

29

28

28


Итого:

24

100

96

96

3.

Отходы (за балансом раскряжевки хлыстов)

0,72

3

2,88

2,88


Таблица 2 Характеристика круглых лесоматериалов

№ п/п

Наименование сортиментов

Объем

Длина, м

Диаметр, см

Число сортов



в год, тыс. м3

в сутки, м3

%





Хвойные лесоматериалы

1.

Пиловочник

4,1

16,4

17

4;6

14 и более

1,2,3

 

2.

Балансы

2,2

8,8

9

4

8 - 24

2,3

 


Итого хвойных:

6,3


26




 

Лиственные лесоматериалы

1.

Пиловочник

2,9

11,6

12

4

14 и более

1,2,3

 

2.

Фанерный кряж

4,6

18,4

19

1,6;3,2

16 и более

1,2

 

3.

Спичечный кряж

0,7

2,8

3

4

16 и более


 

4.

Балансы

2,6

10,4

11

2

8 - 24

2,3

 

Итого лиственных:

10,8


45




 

 Дровяная древесина

1.

Дрова хвойные

0,9

3,6

4

-

-

-

2.

Дрова лиственные

6,0

24,0

25

-

-

-

Итого дровяной:

6,9


29




ВСЕГО:

24


100





Таблица 3 Распределение круглых лесоматериалов по назначению

Хвойные

Лиственные

Наименование сортиментов

Объем, тыс. м3

Наименование сортиментов

Объем, тыс. м3

На отгрузку потребителям в круглом виде (17,0 тыс. м3)

Балансы

2,2

Балансы

2,6

Дрова

0,9

Фанерный кряж

4,6



Спичечный кряж

0,7



Дрова

6,0

На собственное потребление (в лесопильный цех) (7,0 тыс. м3)

Пиловочник

4,1

Пиловочник

2,9


.4 Обоснование выбора типа цехов по первичной переработке, объемов и видов круглых лесоматериалов, перерабатываемых в них

Объем перерабатываемого сырья составляет 7 тыс. м3 в год, из них пиловочник хвойный 4,1 тыс. м3 и пиловочник лиственный 2,9 тыс.м3. Учитывая незначительные объемы лесопиления и характеристики сырья, принимаем цех на базе одноэтажных лесопильных рам Р63-4Б. Перед подачей сырья к лесопильным рамам необходима предварительная сортировка круглых лесоматериалов по группам диаметров. В данном цехе возможна переработка сырья объемом от 5-10 до 40-50 тыс. м3.

.5 Характеристика технологического процесса нижнего склада

Объем и перечень производственных операций зависят от назначения и типа склада; вида сырья, поступающего с лесосеки; способов доставки и отгрузки лесоматериалов.

В состав технологического процесса лесоскладских работ входят следующие операции:

разгрузка подвижного состава с подачей сырья на раскряжёвку или в запас (консольно-радиальный кран ПХК-28 с грейфером ЛТ-185);

раскряжевка хлыстов (электромоторная пила ЭПЧ-3);

сортировка лесоматериалов (сортировочный транспортёр Б-22У с бревносбрасывателями ЛТ-166);

штабелёвка, погрузка в транспорт потребителя и подача круглых лесоматериалов на переработку (башенный кран КБ-572 с грейфером ЛТ-153).

1.6 Технологический процесс работы нижнего склада

На чертеже 1 приведён план нижнего склада. С лесосеки на склад поступает сырьё в виде хлыстов. Разгрузка хлыстов с автопоездов, подача их на раскряжёвку или в запас производится консольно-радиальным краном ПХК-28. Кран разгружает пачку хлыстов с помощью грейфера с изменяющейся площадью зева, что обеспечивает плотное обжатие пачки, благодаря чему хлысты не смешиваются при передвижении крана по окружности. Пачка хлыстов поднимается с автопоезда и при движении крана по круговому рельсовому пути подаётся либо на раскряжёвочную эстакаду, либо в штабель запаса высотой до 8м. При отсутствии груженых автопоездов и необходимости обеспечения раскряжевочной установки лесом хлысты подаются из штабеля на эстакаду. В штабеле пачки хлысты размещены вершинами вовнутрь, центрами тяжести по окружности, по которой перемещается подвеска грейфера. Применение данного крана позволяет создать значительный (до 12,5 тыс. м3) запас хлыстов, т.е. от 25% до 50% от данного годового грузооборота. Это особенно важно для предприятия, не имеющего лесовозных дорог круглогодового действия [3].

Техническая характеристика крана ПХК-28

Грузоподъемность 28 т

Радиус кругового рельсового пути R=18,4 м

Рабочий вылет консоли 17,5 м

Высота подъема крюка 10 м

Мощность 50 кВт

Масса 46 т

В случае временного отказа крана ПХК-28 разгрузка автопоездов на раскряжевочную эстакаду производится разгрузочно-растаскивающей установкой РРУ-10М.

Раскряжевка хлыстов производится электромоторной пилой ЭПЧ-3 на специально оборудованной площадке. Механизированную раскряжевку хлыстов производят на специально оборудованных площадках. Площадка имеет размеры, позволяющие разместить на ней не менее одной-двух пачек хлыстов и обеспечивать нормальные условия работы для раскряжевки хлыстов на сортименты. Площадка имеет уклон в сторону сортировочного лесотранспортера. Продольные опоры в средней части площадки делают выше крайних. Для дробления пачек хлыстов площадку оборудуют разделительным устройством с челночными захватами (РРУ-10М). Раскряжевка хлыстов производится по индивидуальному методу и включает в себя операции по визуальному осмотру и оценке качества каждого хлыста, разметке его по длине, раскряжевке хлыста электромоторной пилой ЭПЧ-3 и откатке сортиментов к сортировочному устройству.

Техническая характеристика пилы ЭПЧ-3

Мощность 3 кВт

Частота тока 400 Гц

Частота вращения ротора 11500 мин-1

Рабочая длина пильной шины 470 мм

Скорость резания 11,5 м/с

Производительность чистого пиления свежесрубленной ели 90 см2

Масса 9,7 кг

Отпиленные дровяные короткомерные лесоматериалы сбрасываются на транспортер для уборки дров, располагающийся рядом с раскряжевочной площадкой. Дрова укладываются в кассеты. Краном КБ-572 дрова грузятся на автомобили и отвозятся по назначению.

Деловые круглые лесоматериалы подаются на сортировочный транспортер Б-22У, где производится их сортировка по различным признакам: качеству, породе, назначению и т.д. Сброс лесоматериалов в лесонакопители осуществляются с помощью сбрасывателей ЛТ-166.

Техническая характеристика транспортера Б-22У

Тяговый орган - сварная круглозвенная цепь с d=22 мм и t=136 мм

Расстояние между поперечинами 1,63 м

Скорость цепи 0,6;0,8 м/с

Длина лесотранспортера 100; 120 м

Мощность 18,5 кВт

В начале потока располагаются лесонакопители и штабеля круглых лесоматериалов на отгрузку. Штабеля круглых лесоматериалов для переработки располагаются в конце лесотранспортера. Сортировка этих сортиментов по лесонакопителям производится с дробностью, необходимой для принятого технологического процесса цеха. Часть сортиментов, соответствующих по своим параметрам, перерабатываемым в данное время в цехе, с транспортера сразу же подаются на питатель ЛТ-79 и с него на транспортер в лесоцех.

Круглые лесоматериалы, полученные при раскряжевке, подаются в штабеля для временного хранения или непосредственно в вагоны МПС для отправки потребителю, а также на переработку в цех. Эти операции выполняются башенным краном КБ-572.

Схема нижнего склада позволяет эффективно использовать складские площади, благодаря значительной высоте штабелей как хлыстов, так и сортиментов, создаваемых соответственно кранами ПХК-28 и КБ-572.

Техническая характеристика башенного крана КБ-572

Грузоподъемность 10 т

Вылет крюка 25-35 м

Высота подъема крюка 13,5 м

Мощность 45 кВт

Частота вращения стрелы 0,5 мин-1

Схема нижнего склада позволяет эффективно использовать складские площади, благодаря значительной высоте штабелей как хлыстов, так и сортиментов, создаваемых соответственно кранами ПХК-28 и КБ-572.

Для определения объема грузовых операций подъемно-транспортного оборудования (ПТО), необходимо составить схему по этапам выполнения работ (рис. 2-4).

I этап. Разгрузка хлыстов с подвижного состава (ПХК-28)

Рис. 2

Общий объем работы в процентах по этапу, от годового грузооборота Qг.г.р.1=128,3%Qг.с.= 30,8 тыс. м3

Общий объем работы консольно-радиального крана ПХК-28 составляет 30,8 тыс. м3.

II этап. Подача круглых лесоматериалов на погрузку как готовой продукции (КБ-572)

Рис. 3

% от годового объема сырья по погрузке в круглом виде, или 123,9 % от годового грузооборота склада по поступлению сырья Qг.г.р.2=123,9%Qг.с.= 29,7 тыс. м3

III этап. Подача круглых лесоматериалов в цехи на переработку:

Рис. 4

% от годового объема сырья на переработку, или 52,6% от годового грузооборота по поступлению сырья Qг.г.р.3=52,6% Qг.с.=12,6 тыс. м3

Суммарный объем грузовых операций башенного крана КБ-572 составит 42,3 тыс. м3.

Таблица 4 Объем работ по операциям

№ п/п

Наименование операции

Число рабочих дней в году

Объем работы

Число смен

Сменный объем, м3




в год, тыс. м3

в сутки, м3



1.

Разгрузка сырья

187

30,8

164,7

1

164,7

2.

Раскряжевка

250

24

96

1

96

3.

Сортировка

250

24

96

1

96

4.

Штабелевка

250

18,3

73,2

1

73,2

5.

Погрузка потребителям

365

17

46,6

2

23,3

6.

Подача в цех

250

7

28

1

28


Расчет производительности механизированной раскряжевки электромоторной пилой ЭПЧ-3 ведется согласно методическим указаниям [2].

1. Определяем суточный объем раскряжевки:

Qсут =  = 96 м3.

2. Расчет средневзвешенной нормы выработки:

Hвыр.= ,

где pi - процентное содержание i-го сортимента общем объеме раскряжевки;

Hi - норма выработки раскряжевочной установки при раскряжевке хлыстов на сортименты какой-либо определенной длины и качества [2, прил. 3,4].

Так, при раскряжевке хлыстов электромоторной пилой ЭПЧ-3 при среднем объеме хлыста 0,39 м3, выходе деловой древесины: пиловочник хв. 6м - 17%, балансы хв. 4м - 9%, пиловочник листв. 4м - 12%, фанерный кряж 3,2м - 19%, спичечный кряж 4м - 3%, балансы листв. 2м - 11%, выходе дровяной древесины: хвойные 2м - 4%, лиственные - 25%, норма выработки равна:

Нвыр.=0,1748+0,09×96+0,12×96+0,1948+0,0348+0,11×48+ +0,04×180+0,25×180 = 96,4 м3.

Плановое сменное задание Пплан на раскряжевочный поток, как правило, устанавливают больше нормативного на 5-10%,

Пплан=96,4×1,1=106 м3.

. Необходимое число машино-смен для выполнения годового объема по раскряжевке хлыстов составит:

n =  

. Потребное число раскряжевочных потоков на нижнем складе:

Н = .

Потребность в сортировочных транспортерах Б-22У:

Производительность транспортера:

П = ,

где Т - продолжительность смены, с;

φ1 - коэффициент использования рабочего времени, 0,85;

φ2 - коэффициент загрузки транспортера, 0,8;

υ - скорость движения тягового органа транспортера, м/с;

q - средний объем бревна, 0,095 м3 (при ℓ=4 м, d=16 см);

l - средняя длина бревна, м.

 =  =  = 0,21 м/с.

По технической характеристике скорость движения тягового органа транспортера составляет 0,6 и 0,8 м/с, следовательно, один транспортер обеспечит сортировку полученных сортиментов после раскряжевки хлыстов.

Производительность башенного крана КБ-572 на штабелевке, погрузке и подаче лесоматериалов в цех:

П0 =   Q0  C0 C2;

Q0 =   C’,

Q - грузоподъемность крана, Q=10000 кг;

 - объемный вес дерева, =800 кг/м3;

С’ - коэффициент использования, С=0,8-0,9;

Кгр - коэффициент, учитывающий вес грейфера, для радиального грейфера с вибратором Кгр=0,2-0,25;

Т - продолжительность смены, сек;

С2 - коэффициент использования рабочего времени смены, для кранов С2=0,9-0,95;

С0 - коэффициент, учитывающий потери времени на замену подвижного состава, С0=0,9-0,95;

tц - время цикла, сек.

tц = tр + tх + t1 + t2,

где tр - время подъема и перемещения пачки к месту ее укладки, сек;

tх - время возврата захватных устройств к месту захвата пачки, сек;

t1 и t2 - соответственно время захвата, укладки и отцепки пачки, при работе с грейферами (t1+t2) = (1-1,25 сек).

tр+tх=2(+++)=2(+++)=454 сек,

где H, H, LТ, LК - соответственно высота подъема, опускания пачки и путь горизонтального перемещения тележки и крана, (13,5м; 13,5м; 30м; 36,9м);

Vср., Vср., Vт.ср., Vк.ср. - средние скорости подъема, опускания пачки, горизонтального перемещения тележки и крана, (0,33м/с; 0,33м/с; 0,42м/с; 0,5м/с).

tц = 454 + 2 = 456 сек;

Q0 =   0,8 = 8,1 м3;

П0 =   8,1  0,9  0,9 = 414 м3/см.

Потребность в подъемно-транспортном оборудовании определяются по формуле:

Ni = ,

где Qг.г.р.i - объем грузовой работы на данном этапе, м3;

Тэф - эффективное число дней работы ПТО на этом этапе;

Ксм - число смен работы.

Штабелевка лесоматериалов:

Погрузка потребителям:

Подача в цех:

Общая потребность в ПТО: Nобщ=Nшт+Nпогр+Nцех=0,2+0,1+0,1=0,41

Принимаем 1 кран КБ-572.

Таблица 5 Потребность в оборудовании

№ п/п

Наименование и марка оборудования

Мощность двигателя, кВт

Сменное задание, м3

Расчетная производительность, м3/см

Потребность в оборудовании

1.

- Консольно-радиальный кран ПХК-28 с грейфером ЛТ-185

50

164,7

800

1


- РРУ-10М

28



1

2.

Электропила ЭПЧ-3

3

96

120,5

1

3.

Транспортер сортировочный Б-22У-1 с бревносбрасывателем ЛТ-166

18,5

96

96

1

4.

Кран башенный КБ-572 с грейфером ЛТ-153:

45


354

1


- штабелевка


73,2




- погрузка


23,3




- подача в цех


28




Таблица 6 Потребность в рабочих

№ п/п

Наименование операций

Профессия рабочих

Число рабочих, чел.




в смену

в сутки

1.

Разгрузка, создание запаса

Машинист-крановщик

1

1

2.

Раскряжевка

- Разметчик

1

1



- Раскряжевщик

1

1

3.

Сортировка

- Сортировщик

1

1



- Браковщик

1

1

4.

Штабелевка, погрузка потребителям и подача в цех

Машинист-крановщик

1

1


Итого рабочих:


6

6


.7 Расположение складского оборудования, лесоперерабатывающих цехов, сырьевых, перегрузочных и складов готовой продукции

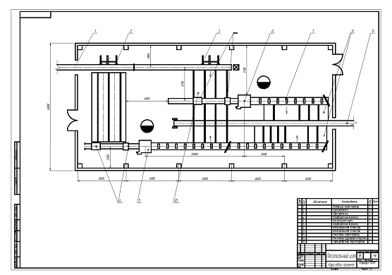
План нижнего лесоперерабатывающего склада показан на чертеже.1. При проектировании были учтены все природно-производственные условия по данному складу, тип примыкания, объем раскряжевки и график поступления хлыстов на склад.

При проектировании лесных складов необходимо обеспечивать:

ü  Применение систем машин, обеспечивающих комплексную механизацию труда и автоматизацию процессов, оптимальную загрузку оборудования;

ü  Рациональное размещение технологических объектов и коммуникаций на производственной площадке (по ходу технологического процесса), обеспечивающее минимум транспортной работы и затрат на коммуникации и проезды, с учетом соблюдения противопожарных, санитарных и экологических требований.

Лесовозная дорога примыкает к площадке склада в том месте, где расположена разгрузка и первичная обработка хлыстов. В зоне действия крана ПХК-28 расположена площадка для механизированной раскряжевки и склад хлыстов. Раскряжевочная площадка имеет уклон в сторону сортировочного транспортера, вдоль которого расположены лесонакопители. Башенный кран КБ-572 способен захватывать пакеты лесоматериалов и подавать их на питатель перед цехом, создавать штабеля круглых лесоматериалов на отгрузку потребителям, на переработку, а также штабеля пилопродукции. Штабеля лесоматериалов находятся в зоне действия стрелы крана, а тупик МПС - в его портале, что позволяет грузить круглые лесоматериалы и пилопродукцию в вагоны МПС. Штабеля круглых лесоматериалов на отгрузку потребителю расположены около участка погрузки, а на переработку - вблизи лесопильного цеха, что позволяет рационально использовать складскую площадь и обеспечить минимальные транспортно-переместительные операции.

.8 Склады древесного сырья и товарных круглых лесоматериалов

Для нормальной работы на лесном складе создают запас сырья и готовой продукции.

Запас сырья, в зависимости от его вида, размещается у места разгрузки, а также у лесоперерабатывающих цехов, установок, поточных линий и между определенными станками. Запас древесного сырья, создаваемый у поточных линий по их переработке, обеспечивает работу лесного склада при длительных перерывах в работе лесовозного транспорта.

Запасы готовой продукции создаются у фронта отгрузки потребителю, они необходимы в связи с неравномерной подачей подвижного состава, а также для естественной сушки ряда сортиментов.

На складе древесного сырья осуществляется выгрузка хлыстов с лесовозного транспорта, подача их на обработку и укладка в запас. На складе круглых лесоматериалов осуществляется выемка сформированных пачек сортиментов из лесонакопителей сортировочного устройства, укладка их в штабеля запаса (штабелевка) и погрузка потребителям.

Лесоматериалы на лесных складах укладываются в штабеля различной конструкции, которая зависит от формы и размеров лесоматериалов, срока хранения, типа грузозахватных устройств и которая должна обеспечить безопасные приемы работы и сохранность качества уложенных лесоматериалов.

Хлысты на нижнем складе укладывают в плотный штабель, который обеспечивает хорошее использование вместимости штабеля, исключает потребность в прокладках. Круглые лесоматериалы хранятся в пачковом штабеле.

Размеры штабелей зависят в основном от длины укладываемых лесоматериалов и оборудования для их создания. Длина штабелей зависит от типа оборудования. Принимаем длину штабелей, расположенных под краном КБ-572, равную 45м. Ширина штабелей равна длине сортиментов. Высота штабеля зависит также от оборудования, но не должна превышать ширину штабеля в 1,5 раза.

На складах круглого леса разрывы между группами штабелей не менее 5м, разрывы между штабелями одной группы 1,5-2,0м.

Таблица 7 Определение запаса леса на складе

№ п/п

Наименование лесоматериалов

Норма запаса, в днях

Запас на складе, м3

Суточный грузооборот, м3

Размеры штабеля

Число штабелей

Длина фронта штабелей, м






Длина, м

Ширина, м

Высота, м

Коэффициент полнодревесности*

Объем штабелей, м3



Склад сырья

1.

Хлысты

41

6800

164,7

-

25

8

0,35

6800

1

-

Склад круглых лесоматериалов на отгрузку потребителям

1.

Балансы хвойные

45

396

8,8

45

4

6

0,60

648

1

5,5

2.

Фанерный кряж

45

828

18,4

45

3,2

4,8

0,65

449

2

9,4

3.

Спичечный кряж

45

126

2,8

45

4

6

0,65

702

1

5,5

4.

Балансы лиственные

45

468

10,4

45

2

4

0,60

216

2

5,5


Итого:









6

25,9

Склад круглых лесоматериалов на переработку в лесопильный цех

1.

Пиловочник хвойный

10

164

16,4

45

6

9

0,65

1580

1

6,0

2.

Пиловочник лиственный

10

116

11,6

45

4

6

0,60

648




Итого:









1

6,0


ВСЕГО:










36,9

*Коэффициенты полнодревесности штабелей приведены в [3, прил. 3].

Итого длина фронта штабелей круглых лесоматериалов:

- на отгрузку: (41+1,5)+(3,22+3,0)+(41+1,5)+(22+1,5)=25,9 м;

на переработку: (61)=6,0 м;

Lобщ= 25,9 + 6,0 +5*1 = 36,9 м

Рис. 5. Схема расположения штабеля хлыстов под краном ПХК-28

Рис. 6. Схема расположения штабелей круглых лесоматериалов под краном КБ-572

2. Цехи первичной переработки круглых лесоматериалов

.1 Основные исходные данные и требования для проектирования цехов

Все технологические процессы лесоперерабатывающих цехов вне зависимости от объема производства, его организационной структуры, выпускаемой пилопродукции, применяемого оборудования должны обеспечивать:

-   рациональное расходование лесосырьевых ресурсов;

-   выпуск продукции высокой потребительской востребованности;

-   эффективное использование оборудования.

Сырьем для выработки продукции лесопильного производства служат пиловочные бревна 1,2 и 3 сорта. Объем сырья составляет 7 тыс. м3, из них хвойного сырья - 4,1 тыс. м3, лиственного - 2,9 тыс. м3.

Перед подачей в лесопильный цех круглые лесоматериалы сортируются по группам диаметров:

Пиловочник хвойный (4,1 тыс. м3), dср=24 см

·    d=14-16 см - 7,5 % - 0,3 тыс. м3;

·    d=18-20 см - 20 % - 0,8 тыс. м3;

·    d=22-24 см - 27,4 % - 1,1 тыс. м3;

·    d=26-28 см - 25,7 % - 1,1 тыс. м3;

·    d=30 см и выше - 19,4 % 0,8 тыс. м3.

Пиловочник лиственный (2,9 тыс. м3), dср=20 см

·    d=14-18 см - 39 % - 1,1 тыс. м3;

·    d=20-24 см - 43 % - 1,3 тыс. м3;

·    d=26-30 см - 18 % - 0,5 тыс. м3.

Суточный объем цеха:

Qсут =  =  = 28 м3.

В виду незначительного объема распиловки, принимаем работу цеха в одну смену.

Сменный объем:

Qсм =  =  = 28 м3.

Готовой продукцией лесопильного цеха являются обрезные и необрезные пиломатериалы хвойных и лиственных пород.

2.2 Описание технологического процесса

Выбор головного технологического оборудования для организации потоков лесопиления зависит от большого числа природно-производственных факторов (объем сырья, его размерно-качественные характеристики, требования к готовой продукции, возможные направления использования отходов). Учитывая все эти факторы, в данном случае, для распиловки пиловочника целесообразно применять одноэтажные лесопильные рамы Р63-4Б, которые производят раскрой бревен вразвал и с брусовкой для получения пиломатериалов экспортных и общего назначения. Применение лесопильных рам требует предварительной сортировки круглых лесоматериалов по группам диаметров.

Круглые лесоматериалы подаются на переработку продольным цепным транспортером БА-3М с бревносбрасывателем СБР-5.

Техническая характеристика транспортера БА-3М

Диаметр транспортируемых бревен до 60 см

Длина транспортируемых бревен 2-8 м

Скорость движения цепи 0,6 м/с

Наибольший угол подъема наклонного участка 220

Наибольшая длина горизонтальной части 30 м

Общая длина 50 м

Установленная мощность 11 кВт

Масса 1920 кг

Распиловка бревен и бруса производится на одноэтажных лесопильных рамах первого и второго ряда Р63-4Б.

Техническая характеристика одноэтажной лесопильной рамы Р63-4Б

Просвет пильной рамки 630 мм

Ход пильной рамки 400 мм

Параметры сырья:

-   длина 3-7,5 м

-   диаметр в вершине 38 см

Толщина пиломатериалов наименьшая 16 мм

Посылка 5-35 мм/об

Количество пил в поставе максимальное 16 шт

Масса 6000 кг

Общая установленная мощность 52,41 кВт

Транспортировка пилопродукции из цеха производится продольным сортировочным транспортером.

Структурная схема раскроя сырья показана на рис. 7

Поступающий в лесопильный цех пиловочник лиственный распиливается, как правило, вразвал на необрезные пиломатериалы. В этом случае обе рамы 2,3 работают как головные и распиливают пиловочник 1 на необрезные доски 4 и горбыли 5, которые после этого выносятся на сортировку 6.

Пиловочник хвойный распиливается с брусовкой, с получением обрезных и необрезных пиломатериалов. Пиловочные бревна в этом случае подаются только на раму первого ряда 2 и распиливаются на двухкантный брус 7, необрезные доски 4 и горбыли 5. Необрезные доски и горбыли выносятся из цеха на сортировку, а двухкантный брус подается лесопильную раму второго ряда 3, где распиливается на обрезные доски 8 одинаковой ширины, частично обрезные и необрезные доски из боковой части бруса и горбыли.

Рис. 7. Структурная схема технологического потока двухрамного лесопильного цеха при работе лесопильных рам: а - распиловка лиственного пиловочника вразвал; б - распиловка хвойного пиловочника с брусовкой; 1- пиловочные бревна; 2,3 - лесопильные рамы; 4 - необрезные доски; 5 - горбыли; 6 - сортировочное устройство; 7 - двухкантный брус; 8 - обрезные доски

План двухрамного лесопильного цеха приведен на чертеже 2. Технологический процесс в цехе при распиловке бревен вразвал идет следующим образом. Пиловочник по транспортеру 1 поступает в цех, сбрасывателями 2 и 3 сбрасывается на накопительные эстакады 10, с которых поштучно выдается на тележки 4 перед лесопильными рамами 5 и 6. На обеих рамах производится распиловка бревен на необрезные доски и горбыли, которые с роликовых транспортеров 7 через наклонные буферные площадки 8 подаются на сортировочный транспортер 9.

При распиловке пиловочника с брусовкой бревна подаются только на первую лесопильную раму через накопитель и распиливаются на двухкантный брус, необрезные доски и горбыль. Необрезные доски и горбыль по роликовому транспортеру 7 поступают в конец цеха и через буферную площадку 8 попадают на транспортер 9 для сортировки.

Двухкантный брус укладывается на накопительную площадку 10 перед второй лесопильной рамой и по мере необходимости поступает на распиловку. Полученные обрезные доски, частично обрезные и необрезные доски из боковой части бревна, а также горбыли затем поступают на сортировку.

Баланс раскроя сырья, выход готовой продукции и количества отходов.

Баланс древесины зависит от размерно-качественной характеристики распиливаемого сырья и вырабатываемой пилопродукции, от способов и схем распиловки и применяемого технологического оборудования. Баланс раскроя сырья в лесопилении складывается из пилопродукции, кусковых отходов, опилок и потерь.

Таблица 8 Баланс раскроя сырья

Продукция, отходы, потери

Выход от объема сырья


%

тыс. м3

Хвойное сырье

- обрезные пиломатериалы

37

1,5

- необрезные пиломатериалы

25

1,0

Кусковые отходы

20

0,8

Опилки

12

0,5

Усушка и распыл

6

0,3

Итого хвойных:

100

4,1

Лиственное сырье

- необрезные пиломатериалы

63,7

1,8

Кусковые отходы

20,3

0,6

Опилки

10

0,3

Усушка и распыл

6

0,2

Итого лиственных:

100

2,9

ВСЕГО:


7,0

Рис. 8. План лесопильного цеха

Распределение пилопродукции по назначению:

Все пиломатериалы от распиловки хвойного и лиственного пиловочника в объеме 4,3 тыс. м3 предназначены для переработки в деревообрабатывающем цехе.

Отходы от лесопильного производства в виде кусковых отходов и опилок отправляются на нужды населения.

Расчет производительности оборудования:

Производительность лесопильных рам по распилу сырья в смену:

П = , м3/см,

где  - посылка;

K- коэффициент, учитывающий неравномерность подачи бревна на пилы, k=0,86;

n - число оборотов пильного вала рамы, об/мин;

Т - время смены, мин;

K- коэффициент, учитывающий простои машинного и рабочего времени, kn=0,864;

q - объем бревна, м3;

L - длина бревна, м3.

П =  = 19,8 м3/см.

При распиловке сырья вразвал лесопильные рамы работают как две эффективные рамы, соответственно:

П = 19,8  2 = 39,6 м3/см.

Производительность лесопильной рамы при распиловке хвойного сырья с брусовкой:

П =  = 30,7 м3/см.

При распиловке сырья с брусовкой лесопильные рамы работают как одна эффективная рама:

П = 30,71 = 30,7 м3/см.

Определение необходимого количества эффективных рамо-смен для распиловки сырья:

m = ,

где  - объем сырья (хвойного, лиственного), подлежащий распиловке, м3; П - сменная производительность рамы, м3/см.

m =  = 73 рамо-смен;

m =  = 134 рамо-смен.

Общее количество эффективных рамо-смен:

m= m+ m=73+134 = 207 рамо-смен.

Возможное количество рамо-смен:

mвозм = Nk = 2501 = 250 рамо-смен,

Потребное число лесопильных потоков: ;

Принимаем в лесопильном цехе один технологический поток.

Таблица 9 Потребность в рабочих и оборудовании

№ п/п

Наименование операций

Марка оборудования

Сменный объем, м3

Число единиц оборудования

Число рабочих на единицу оборудования, чел.

Число рабочих, чел







в смену

в сутки

1

Подача сырья в цех

БА-3М

28

1

1

1

1

2

Распиловка бревен и бруса

Р63-4Б

28

2

2

4

4

3

Сортировка пиломатериалов

прод.сортиров. транспортер

28

1

2

2

2

4

Учет продукции

-

28

-

1

1

1

Итого:





8

8


Склады сырья и готовой продукции цеха:

Склад пиловочного сырья обеспечивает непрерывную работу лесоперерабатывающего цеха. Склад сырья состоит из взаимосвязанных участков, на которых выполняются операции укладки пиловочника в штабеля для временного хранения, сортировки сортиментов и подачи их в лесопильный цех. Так как на складе лесозаготовительного предприятия существует запас хлыстов, то нет необходимости создавать значительные резервные запасы пиловочника. В этом случае достаточно иметь около цеха 6-10 дневной запас пиловочника с целью его сортировки и подготовки для распиловки.

Штабеля сырья временного запаса размещаются на специально подготовленной площадке, которая должна быть выровнена, защищена от ветров и расположена на более низких местах предприятия, что обеспечивает сохранение определенной влажности древесины. Площадка должна быть оборудована подштабельными основаниями, на которых формируют штабеля лесоматериалов. В данном случае древесина хранится в плотных штабелях, так как их формирование является менее трудоемким процессом, в них лучше сохраняется древесина и емкость штабеля высокая.

Размеры штабелей зависят от применяемого для их формирования оборудования и размеров площадки, отведенной для хранения сырья. Выбор размеров штабелей круглых лесоматериалов производился в пункте 1.8.

Склады пиломатериалов - это участки лесопильного предприятия, которые предназначены для размещения оборудования по формированию сушильных пакетов и штабелей, организации атмосферной сушки пилопродукции и ее окончательной обработки, а также для хранения и отгрузки готовых пиломатериалов.

Пиломатериалы перед сушкой укладывают в штабеля, формируемые из отдельных сушильных пакетов, уложенных на прокладки. Размеры пакета можно принять следующими: длина равна максимальной длине досок; ширина - 1,8 м; высота - 1,3 м. Пакет с данными размерами по объему равен половине сушильного штабеля для камер периодического действия. Формирование сушильных пакетов, их разборка после сушки и укладка транспортных пакетов осуществляется вручную. Формирование сушильных штабелей осуществляется с помощью башенного крана КБ-572, высота штабеля в этом случае может достигать 12 м.

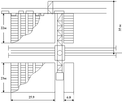
Штабеля на складе атмосферной сушки располагаются группами, между которыми должны быть оставлены продольные и поперечные проезды, которые можно принять соответственно 2 и 5 м.

Рис. 9 Схема планировки склада пиломатериалов для атмосферной сушки башенными кранами

Таблица 10 Определение запаса леса на складе сырья и готовой продукции

№ п/п

Наименование лесоматериалов

Норма запаса в днях

Запасы на складе, м3

Суточный грузооборот, м3

Размеры штабеля

Число штабелей

Длина фронта штабелей, м






Длина, м

Ширина, м

Высота, м

Коэффициент полнодревесности

Объем  штабелей, м3



Склад сырья

Пиловочник хвойный

1.

d=14-16 см

10

12

1,2

0,3

6

9

0,65

12

1

11,0

2.

d=18-20 см

10

32

3,2

0,9

6

9

0,65

32



3.

d=22-24 см

10

44

4,4

1,3

6

9

0,65

44



4.

d=26-28 см

10

44

4,4

1,3

6

9

0,65

44



5.

d30 см10323,20,9690,6532











Пиловочник лиственный


6.

d=14-18 см

10

44

4,4

3,1

4

6

0,6

44

1


7.

d=20-24 см

10

52

5,2

3,6

4

6

0,6

52



8.

d=26-30 см

10

20

2,0

1,4

4

6

0,6

20



Склад пилопродукции на переработку

9.

Хвойные п/м обрезные

10

60

6,0

10

6

9

0,35

189

1

11,0

10.

Хвойные п/м необрезные

10

40

4,0

10

6

9

0,35

189

1


11.

Лиственные п/м необрезные

10

72

7,2

10

4

6

0,35

84

1



Штабелевка пиломатериалов, подача в сушильный и деревообрабатывающий цех осуществляется с помощью башенного крана КБ-572.

Библиография

1. Меньшиков Б.Е. Экологизированные технологии лесных складов [Текст]: метод. указания к лаб. работам для студентов спец. 2601 «Лесоинженерное дело» / Б.Е. Меньшиков, Н.В. Лившиц. - Екатеринбург: Урал. гос. лесотехн. ун-т, 2005. - 40 с.

2.        Меньшиков Б.Е. Малые нижние лесопромышленные склады [Текст]: учеб. пособие / Б.Е. Меньшиков. - Екатеринбург: Урал. гос. лесотехн. ун-т, 2004. - 78 с.

.          Азаренок В.А. Основы технологии лесопиления на предприятиях лесного комплекса [Текст]: учеб. пособие/В.А. Азаренок, Г.Н.Левинская, Б.Е. Меньшиков. - Екатеринбург: Урал. гос. лесотехн. ун-т, 2002. - 279 с.

.          Васильев Н.Л. Основное оборудование для производства короткомерной пилопродукции [Текст]: метод. указания для самост. работы по курсовому и дипломному проектированию для студентов спец. 2601 / Н.Л. Васильев, Б.Е. Меньшиков, В.В. Обвинцев, В.В. Чамеев. - Екатеринбург: Урал. гос. лесотехн. ун-т, 2005. - 59 с.

.          ГОСТ 9462-88. Лесоматериалы круглые лиственных пород. Технические условия [Текст]. Взамен ГОСТ 9462-71; введ. 1991-01-01. М.: Госстандарт СССР: изд-во стандартов, 1988. 16 с.

.          ГОСТ 9463-88. Лесоматериалы круглые хвойных пород. Технические условия [Текст]. Взамен ГОСТ 9463-72; введ. 1991-01-01. М.: Госстандарт СССР: изд-во стандартов, 1988. 14 с.

.          Программное обеспечение: SAPR1.XLS; BREPIL.WQ1; SIGMA.EXE.