Материал: Сравнение требуемой и фактической степени огнестойкости зданий

Внимание! Если размещение файла нарушает Ваши авторские права, то обязательно сообщите нам

Сравнение требуемой и фактической степени огнестойкости зданий

Лабораторная работа № 1

 

Сравнение требуемой и фактической степени огнестойкости зданий.

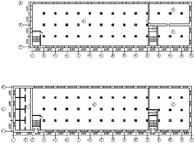
Рисунок. Мебельная фабрика. Планы этажей: 1 - сушильный цех; 2 - заготовительный цех; 3 - столярный цех; 4 - механосборочный цех; 5 - цех лаковых покрытий; 6 - участок шлифовки и полировки изделий.

1. Определение категории помещений здания


В соответствии НПБ 105-03 пожарная опасность помещений зависит от вида и количества веществ и материалов, находящихся в данном помещении.

1.1 Определение категории сушильного цеха


Сушильный цех относится к помещению категории В, так как в нем могут находится твердые горючие и трудногорючие вещества и материалы (в том числе пыли и волокна) и не относится к категории А или Б.

Определение категории В1 - В4. Определение пожароопасной категории помещения осуществляется путем сравнения максимального значения удельной временной пожарной нагрузки на участке с величиной определённой НПБ 104-03. Пожарная нагрузка определяется по формуле


Удельная пожарная нагрузка определяется из соотношения


Вывод: сравнив, значение удельной пожарной нагрузки участка с нормативным значением, относим сушильный цех к категории В1.

1.2 Определение категории заготовительного цеха


Заготовительный цех относится к помещению категории В, так как в нем могут находится твердые горючие и трудногорючие вещества и материалы (в том числе пыли и волокна) и не относится к категории А или Б.

Определение категории В1 - В4


Вывод: сравнив, значение удельной пожарной нагрузки участка с нормативным значением, относим заготовительный цех к категории В3.

1.3 Определение категории столярного цеха


Столярный цех относится к помещению категории В, так как в нем могут находится твердые горючие и трудногорючие вещества и материалы (в том числе пыли и волокна) и не относится к категории А или Б.

Определение категории В1 - В4


Вывод: сравнив, значение удельной пожарной нагрузки участка с нормативным значением, относим столярный цех к категории В3.

1.4 Определение категории механосборочного цеха


Механосборочный цех относится к помещению категории В, так как в нем могут находится твердые горючие и трудногорючие вещества и материалы (в том числе пыли и волокна) и не относится к категории А или Б.

Определение категории В1 - В4


Вывод: сравнив, значение удельной пожарной нагрузки участка с нормативным значением, относим механосборочный цех к категории В3.

1.5 Определение категории цеха лаковых покрытий


Цех лаковых покрытий относится к помещению категории Б, так как в нем могут находится легковоспламеняющиеся жидкости с температурой вспышки более 28°С, горючие жидкости в таком количестве, что могут образовывать взрывоопасные пылевоздушные или паровоздушные смеси, при воспламенении которых развивается расчетное избыточное давление взрыва в помещении, превышающее 5 кПа.

1.6 Определение категории участка шлифовки и полировки


Участок шлифовки и полировки относится к помещению категории Б, так как в нем могут находится горючие пыли или волокна, в таком количестве, что могут образовывать взрывоопасные пылевоздушные смеси, при воспламенении которых развивается расчетное избыточное давление взрыва в помещении, превышающее 5 кПа.

огнестойкость здание фактический предел

2. Определение категории здания


Категория здания определяется по НПБ 105-03. Данное здание относится к категории Б, так как площадь помещений здания категории Б превышает 200м2.

3. Определение требуемой степени огнестойкости (ТСО)


ТСО промышленного здания определяется по таблице 5 СНиПа 31-03-2001 в зависимости от высоты, категории здания, площади этажа в пределах пожарного отсека. Площадь данного здания - 2232 м2, следовательно ТСО данного здания - III, класс конструктивной пожарной опасности - С0.

4. Определение фактического предела огнестойкости (ФСО)


Наименование конструкций

По проекту

По нормам

Вывод


КФ

ПФ

Ссылка на норму

КТ

ПТ

Ссылка на норму

П

1) Колонны Ж/Б 30х40 см

К0

150

Табл.2 пособие к СНиП II-2-80

К0

45

Табл 4, 5 СНиПа 21-01-97

+

+

2) Стены наружние из самонесущих легкобетонкамней 40 см

К0

240

Табл.10 пособие к СНиП II-2-80

К0

30

Табл 4, 5 СНиПа 21-01-97

+

+

3) Досчатый настил по деревянным фермам

45

Табл.14 пособие к СНиП II-2-80

К0

15

Табл 4, 5 СНиПа 21-01-97

-

+

4) Ж/Б ребристые плиты по Ж/Б балкам

К0

81

Табл.13 пособие к СНиП II-2-80

К0

15

Табл 4, 5 СНиПа 21-01-97

+

+

5) Перегородки фибролитовые

К0

45

Табл.14 пособие к СНиП II-2-80

45

Табл 4, 5 СНиПа 21-01-97

+

+


Фактический предел огнестойкости определяется по наименьшему пределу огнестойкости здания по таблице 4 СНиПа 21-01-97. ФСО данного здания II.

Вывод: Данное здание удовлетворяет условию ТСО (III) >ФСО (II). Не соответствует нормам по классу конструктивной пожарной опасности дощатый настил по деревянным фермам. Необходимые меры защиты - заменить дощатый настил на настил из стального профилированного листа с утеплителем из минеральной ваты.