Материал: Разработка системы видеонаблюдения частного дома

Внимание! Если размещение файла нарушает Ваши авторские права, то обязательно сообщите нам

1.4 Смешанные системы видеонаблюдения

Уже из названия понятно, что структура смешанных систем видеонаблюдения включает в себя аналоговые видеокамеры и видеорегистраторы, однако, дополнительное применение плат видеозахвата позволяет преобразовывать один вид сигнала в другой, в данном случае, речь идет о переходе сигнала из аналогового в более удобный - цифровой. Для монтажа таких плат достаточно классического PCI-разъема, который имеется в любом стационарном компьютере, тем самым, смешанная система видеонаблюдения получает еще одно преимущество перед другими видами - она является более гибкой в управлении. Информация в данном случае может быть записана либо на аналоговый носитель, либо на цифровой.

видеонаблюдение технология ip аналоговый

ГЛАВА 2. ИСПОЛНЕНИЕ ЗАКАЗА НА МОНТАЖ СИСТЕМЫ ВИДЕОНАБЛЮДЕНИЯ В ЧАСТНОМ ДОМЕ

2.1 Проектирование систем видеонаблюдения и используемые компоненты

Рассмотрим первый тип систем видеонаблюдения - специализированый комплект оборудования . Необходимо отметить, что относительно дешевые системы видеонаблюдения специализированного комплекта во всех отношениях хуже аналогичных по стоимости на базе типового компьютера. А системы на базе специализированого комплекта являются дорогими. Приобрести такую систему и содержать ее в силах лишь весьма состоятельным клиентам. Тем не менее, системы видеонаблюдения обладают своими специфичными достоинствами: - Специализация и компактность - Развитые функции охранной и пожарной сигнализаций, контроль доступа - Одновременное обслуживание десятков камер слежения - Соответствие специальным требования по безопасности, сертификат соответствия Система видеонаблюдениявключает обязательные компоненты: - видеокамеры; - видеомониторы; - квадраторы (если используется четыре видеокамеры) - видеомультиплексоры (если используется от 4-х до 32-х видеокамер); - матричные коммутаторы видеосигнала (если число камер превышает 32) - специальные видеомагнитофоны длительной записи; - видеомониторы специализированного комплекта (не на базе компьютера) Видеомонитор - это устройство отображения картинки, передаваемой видеокамерой или сохраненной в архиве. При выборе видеомонитора учитываются следующие характеристики: - размер экрана. Для охранного видеонаблюдения применяются видеомониторы с размером экрана от 5 до 21" (дюйма) по диагонали (один дюйм равен 2,54 см); - разрешение (количество горизонтальных строк, отображаемых видеомонитором). Измеряется в ТВ-линиях. В зависимости от типа монитора этот параметр может составлять от 300 до 1000 ТВ-линий; - количество видеовходов (число подключенных источников видеоизображения, например, видеокамер). Как правило, видеомониторы содержат один, два или четыре видеовхода, переключение между которыми может производиться в ручном или автоматическом режиме (через заданное время); - наличие сервисных функций (встроенный квадратор, аудиоканал, "тревожные" входы и т.д.). Недостатки системы видеонаблюдения специализированного комплекта (СК): - в силу того, что комплект специализированый, специальным является и его программное обеспечение. - видеозапись во многих устаревших системах СК ведется на магнитофонную ленту. Поэтому поиск нужного видеофрагмента в таких системах крайне затруднен. - кассеты с лентой, на которой записана видеоинформация, уязвимы для размагничивания. - ремонт оборудования систем видеонаблюдения возможен только в специализированных мастерских. В последнее время произошло некоторое затоваривание продукции систем видеонаблюдения СК. Причина с одной стороны та, что очень быстро совершенствуются системы на базе КК - мощная конкуренция. С другой стороны, в комплект подавляющего большинства систем СК входят несомненно устаревшие мониторы с электронно - лучевыми трубками, выделяющие много тепла, потребляющие много электроэнергии, излучающие при работе вредные для здоровья тяжелые ионы. Причем, заменить такой монитор на компьютерный жидкокристаллический, невозможно. Рассмотрим второй тип систем видеонаблюдения - компьютерная система видеонаблюдения (КК). Система видеонаблюдения на базе типового компьютера включает следующие компоненты: - компьютер; - плата системы видеонаблюдения (плата видеозахвата); - программное сопровождения платы видеонаблюдения; - видеокамеры.

2.2 Изучение объекта

Объект защиты расположен в жилом доме и занимает два этажа. Вход на объект расположен в центральной части здания.

Освещение объекта электрическое. Электропроводка по стенам проложена в металлических и пластиковых кабель-каналах, за подвесными потолками в пластиковых трубах. Система гарантированного электропитания на объекте отсутствует.

В здании смонтированы и находятся в рабочем состоянии следующие инженерные системы: отопления; холодного и горячего водоснабжения; вентиляции и кондиционирования воздуха; автоматической пожарной сигнализацией; тревожной сигнализации; системы оповещения и управления эвакуацией.

Оконные конструкции во всех помещениях охраняемого объекта остеклены, имеют надежные и исправные запирающие устройства. На первом этаже объекта защиты установлены пластиковые стеклопакеты


.3 Выбор оборудования для конкретного варианта

Рис. 3. Комплект оборудования используемый при работе

Рекордер

·              Модель

EL421-4HW212B

·              Количество каналов видео

4 канала

·              Стандарт видеосигнала

NTSC, PAL

·              Формат сжатия видео

H.264

·              Видеовходы

4 x BNC

·              Видеовыходы

1 x BNC, 1 x HDMI, 1 x VGA

·              Аудиовходы

2 x RCA

·              Аудиовыходы

1 x RCA

·              Входы/выходы датчиков и сенсоров тревоги

1 x RS485

·              Скорость записи

100 кадр/сек - 360x288 (PAL),

кадр/сек - 480x288 (PAL),

кадр/сек - 720x288 (PAL),

кадр/сек - 720x576 (PAL),

кадр/сек - 960x288 (PAL),

кадр/сек - 960x576 (PAL),

кадр/сек - 360x240 (NTSC),

кадр/сек - 480x240 (NTSC),

кадр/сек - 720x240 (NTSC),

кадр/сек - 720x480 (NTSC),

кадр/сек - 960x240 (NTSC),

кадр/сек - 960x480 (NTSC)

·              Жесткий диск

Возможна установка 1 x HDD до 2ТБ

·              Режим записи

Вручную,

Всегда,

Обнаружение движения,

По расписанию

·              Порты

1 x RJ45,

x USB

·              Сетевые протоколы

DHCP, PPPoE

·              Сетевые функции

Static IP

·              Режимы воспроизведения

Нормальный просмотр,

Ускоренный просмотр

·              Резервное копирование

USB HDD (жесткий диск),

По сети

·              Подключение управляемой камеры

RS-485

·              Электропитание

DC 12V/2A

·              Рабочие температуры, °С

от -10 до +50

·              Габариты (ДхШхВ), мм

230 x 250 x 45

·              Вес, кг

0.84

Камера

·              Тип камеры

Всепогодная камера

·              Наличие ИК подсветки

Есть

·              Стандарт видеосигнала

NTSC, PAL

·              Разрешение, TV Line

600

·              Угол обзора, °75

·              Минимальная освещенность

0.00 Люкс

·              Соотношение сигнал/шум

> 48 дБ

·              Видеосигнал на выходе

1.0 Vp-p 75 Ом

·              Дистанция ночного видения, м

20

·              Материал корпуса

Алюминий

·              Диапазон рабочих температур, °С

от -25 до +50

·              Питание

12 В, постоянный ток

·              Объектив

3.6 мм

·              Фокусировка

Автоматическая

·              Габариты (ДхШхВ), мм

153 x 68 x 58 мм

Вес, грамм

Соединительный шнур

·              Характеристики шнура

Комбинированный кабель.

·              Длина, м

18

Блок питания

·              Модель

FJ-SW1202000E

·              Входное напряжение

100 - 240 В

·              Выходное напряжение

12 В

·              Совместимость

KGUARD

Информация о производителе

·              Производитель

KGuardSecurity

·              Страна производства

КИТАЙ

2.4 Монтаж и настройка системы

Для того чтобы выполнить монтаж видеосистемы, вовсе не надо быть дилетантом, так как самыми сложными инструментами, которые понадобятся в данном случае, станут дрель или перфоратор, которыми умеет пользоваться любой. Видеокамеры прикрепляются к поверхностям при помощи кронштейнов, свободно от расположения. Ели нужно протянуть кабель, лучше всего применить для него специальный электрокороб, хотя, при отсутствии такового вполне можно обойтись и обыкновенными фиксаторами. Протягивая витую пару, нужно следовать одному правилу, витая не должна помещаться под прямым углом, что обусловлено ее повышенной хрупкостью, из-за чего витая пара может получить повреждение, и например, в условиях резкого похолодания в том месте, где витая пара под прямым углом, провод может треснуть, чем поставит под угрозу всю систему видеонаблюдения.

Стоит подметить, что в большинстве эпизодов в том месте, где помещается камера наблюдения, включить блок питания к сети 220 В невозможно. В этих случаях для передачи сигнала используют оранжевую и зеленую пару проводов, плотность витков которых создаст лучшую индукцию. Конечно, можно использовать также синюю и коричневую пары, все-таки подобный прием срабатывает лишь в тех случаях, когда нужно включение приборов, потребляющих маленькую силу тока, а если учесть, что сечение синих и коричневых проводов достаточно небольшое, существует вероятность, перегорания провода при включении приборов большей мощности. Число проводов также должно быть обдумано заранее, так как естественно при покупке их можно будет сразу порезать на отрезки нужной длины и обжать коннекторами.

При подсоединении беспроводной системы видеонаблюдения, нужно заранее освоить территорию, на которой предстоит разобрать наблюдение на предмет пропускной способности сигнала. При условии открытого пространства, простая точка доступа располагается в пределах 150 метров. При наличии преград в виде стен или других предметов, дальность сигнала, естественно, снижается.

Осуществляя монтаж системы видеонаблюдения нужно дополнительно подумать о безопасности каждого элемента системы, снабдив их козырьками, а кабельные соединения упаковав в электрокороб или гофрированный короб. Сами видеокамеры должны быть помещены, как можно выше, что обеспечит наилучший обзор.


Места крепления видеокамер во многом определяют информативность и эффективность проектируемой системы охранного телевидения. При выборе мест размещения видеокамер следует прогнозировать влияние возможных препятствий. Следует исключить попадание в поле зрения видеокамеры источников света, а также отражений от создающих блики поверхностей. При этом должен обеспечиваться необходимый для нормальной работы видеокамеры уровень освещенности.

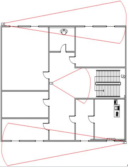
Закладываемые в проекте технические решения рекомендуется решать комплексно. Согласно требованиям заказчика, видео камеры были расположены следующим образом. Первая видеокамера расположена при входе в дом на первом этаже.

Рис. 4. План первого этажа

Вторая видео камера расположена над лестницей на втором этаже, третья и четвертая расположена на улице вдоль окон с северной и южной стороны, для просмотра проникновения злоумышленника через окна.

Рис. 5. План второго этажа

ГЛАВА 3. ЭКОНОМИЧЕСКОЕ ОБОСНОВАНИЕ МОНТАЖА СИСТЕМЫ ВИДЕОНАБЛЮДЕНИЯ В ДАННОМ СЛУЧАЕ.

3.1 Смета на комплект видеонаблюдения с монтажом

Таб. 1. Расчет стоимости оборудования

п/н

Наименование

Цена

Кол-Во

Всего в руб.

1

Комплект видеонаблюдения/видеозаписи KGUARD EL421-4HW212B

19 700

1

19 700

2

Жесткий диск HDD 1ТБ, Seagate Surveillance HDD

4 100

1

4 100

3

Монитор 17 дюймов

5 500

1

5 500

4

Расходные материалы

500

1

500

Итого

29800


Таб. 2. Расчёт стоимости монтажных работ

п/н

Наименование

Цена

Кол-Во

Всего в руб.

1

Монтаж видеорегистратора

1500

1

1500

2

Монтаж видеокамеры

1500

4

6000

3

Прокладка кабеля

30

18

540

Итого

8040



ЗАКЛЮЧЕНИЕ

В ходе выполнения своей дипломной работы мной были рассмотрены основные способы разработки систем видеонаблюдения. Более четко был выполнен обзор существующих принципов создания систем наблюдения, были проанализированы разные типы видеокамер, различные компоненты систем и сетевого оборудования. На основе данной информации был осуществлен выбор оборудования и получена его сравнительная характеристика. В основе выбора оборудования лежал принцип сокращения расходов при сохранении заданных параметров качества. Этот принцип был взят за основу, так как в ближайшее время не предвидится обновления или увеличения проектируемой системы. На основе выбранного оборудования был создан план, а так же осуществлен технический расчёт системы. В ходе технического расчёта были указаны главные технические параметры системы. Так же были получены основные параметры видеокамер. И был сделан расчёт системных параметров качества. Далее был сделан экономический расчёт расходов на создание и введение системы видеонаблюдения. В итоге можно сделать вывод о том, что созданная система видеонаблюдения является недорогой в использовании. Она может вести бесперебойный контроль за периметром частного дома в наилучшем качестве. А экономический расчёт показывает сравнительно малую стоимость системы. Таким образом, можно предположить, что для крупных предприятий с развитой инфраструктурой видеонаблюдение на базе ПК и IP-видеонаблюдение является оптимальным решением.

Главные требования к системам видеонаблюдения для частных домов и коттеджей, являются надежность системы и простота эксплуатации. Для этого очень важно сокращение расходов, связанных с обслуживанием системы. Установил и забыл или, иными словами, видеонаблюдение собственноручно - неплохое решение в случае, когда обслуживание системы производит системный администратор или электрик.

Для обыкновенного домовладельца самым лучшим является видеонаблюдение на базе видеорегистратора, которое целиком оправдывает заплаченные за него финансы. Возможность же компьютерных систем видеонаблюдения остается не тронутым, именно по тем же причинам, что и в случае, когда домой приобретается компьютер последней модели за 30. тыс руб., а работа на нем совершается только в офисных программах , где частота процессора даже 300 МГц более чем достаточна.

Кроме того, создание полноценного аппарата, написание или покупка ПО, остальные затраты все это увеличивает стоимость системы видеонаблюдения на базе ПК в 2 и более раз. А прокладка оптоволоконных кабелей и их обслуживание делает систему IP видеонаблюдения почти не достигаемой обыкновенному домовладельцу из-за огромной цены. Каждое изменение настроек - это вызов специалиста, естественно не бесплатно. Пользователю, естественно, придется ждать визита мастера неизвестное время.

Для того чтобы безопасность стала еще доступнее, многие частные компании создают небольшие и дешевые комплекты систем видеонаблюдения, использование которых без особого труда может быть сделана своими руками. Для установки системы домовладельцу не нужно наличие специальных инструментов, а также специальных знаний. Эти комплекты состоят из всех необходимых для работы деталей и прекрасно годятся для решения стандартных задач небольшого и среднего бизнеса, а также для установки на даче, в квартире или в загородном доме.