Материал: Расчет поршня

Внимание! Если размещение файла нарушает Ваши авторские права, то обязательно сообщите нам

Расчет поршня















Расчет поршня

Задание на курсовой проект

Задание на курсовой проект выбирается по таблице 1, в зависимости от последней цифры в зачетке.

Таблица 1 - Условия эксплуатации поршня

Параметры

Номер варианта


1

2

3

4

5

6

7

8

9

0

pzд, МПа

6,195

6,257

6,320

6,383

6,447

6,511

6,576

6,642

6,202

6,185

nм, об/мин

3250

3232

3264

3297

3330

3363

3397

3431

3210

3100

Nmax, МН

0,0044

0,0044

0,0045

0,0045

0,0046

0,0046

0,0047

0,0047

0,0044

0,0045

φ

370

370

370

370

370

370

370

370

370

370

mп, кг

0,478

0,478

0,478

0,478

0,478

0,478

0,478

0,478

0,478

nx.x.max

6010

6060

6121

6182

6244

6306

6369

6433

6090

6000

λ

0,285

0,288

0,291

0,294

0,297

0,300

0,303

0,306

0,288

0,285

D, м

0,078

0,078

0,080

0,080

0,082

0,082

0,082

0,084

0,080

0,080

S, м

0,078

0,078

0,080

0,080

0,082

0,082

0,080

0,080

0,078

0,082



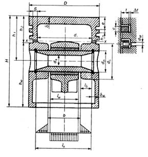
Наиболее напряженным элементом поршневой группы является поршень (рис. 1), воспринимающий высокие газовые, инерционные и тепловые нагрузки. Его основными функциями являются уплотнение внутрицилиндрового пространства и передача газовых сил давления с наименьшими потерями кривошипно-шатунному механизму.

Рисунок 1 - Поршень

Поршни автотракторных двигателей изготавливаются в основном из алюминиевых сплавов и реже из чугуна. В качестве алюминиевых сплавов использовались эвтектические сплавы алюминия с кремнием, содержание которого в сплаве не превышало 12-13%. В настоящее время новые двигатели имеют поршни, изготовленные из заэвтектических сплавов алюминия с кремнием, содержание которого достигает 18 и более процентов. Для улучшения физико-механических свойств заэвтектических сплавов применяется их легирование никелем, магнием, медью, хромом и специальные технологии литья или горячей штамповки.

Чугунные поршни по сравнению с алюминиевыми обладают более высокими показателями твердости, износостойкости и жаропрочности, а также одинаковым коэффициентом линейного расширения с материалом гильзы цилиндра. Однако большая плотность чугунного поршня не позволяет его использовать для высокооборотных двигателей. В настоящее время все серийно выпускаемые двигатели легковых автомобилей имеют поршни из алюминиевых сплавов.

Дальнейшее совершенствование поршней предусматривает широкое использование для их изготовления композиционных материалов. Основу этих материалов составляют легкие и не очень прочные материалы (например, алюминий), которые "насыщаются" высокопрочными полимерными, керамическими или металлическими волокнами. Эти волокна не только жестко связывают молекулы основного материала, но и воспринимают значительную нагрузку как механическую, так и тепловую. Перспективным является армирование элементов поршня керамическими волокнами из оксида алюминия Аl2О3 и диоксида кремния SiO2, что способствует высокой термической стабильности поршня.

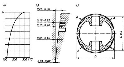
При работе двигателя температура потока горящей топливо-воздушной смеси, омывающей днище поршня, сильно меняется от минимальной при пуске и прогреве двигателя до максимальной на режимах наибольших нагрузок. При этом максимальную температуру имеет днище поршня, а минимальную - юбка. Распределение средней температуры при работающем двигателе по высоте поршня показано на рис. 2, а. С учетом такого распределения температуры профиль поршня по высоте выполняется одной из следующих форм: ступенчатой (рис. 2, б), конической или лекальной.

Значительная часть теплового потока от днища и огневого пояса поршня быстро уходит в стенку цилиндра через поршневые кольца и только часть теплоты передается в бобышки, а затем и в юбку поршня. При этом отвод теплоты от бобышек значительно меньше, чем от стенок юбки, которые контактируют со стенками цилиндра. В результате по оси бобышек поршень расширяется значительно больше и становится овальным (рис. 2, в). Оптимальная форма поршня для вновь проектируемого двигателя подбирается в результате кропотливых и длительных экспериментов

Рисунок 2. Изменение температуры по высоте поршня и зазоров между поршнем и зеркалом цилиндра в разных сечениях:

а - изменение температуры по высоте поршня; б - изменение зазоров между поршнем и зеркалом цилиндра; в - изменение площади поперечного сечения поршня; - -окружность цилиндра; - - - профиль холодного поршня; . -.-.- - рабочий режим; ......- перегрев; А - места заклинивания юбки поршня в цилиндре при перегреве.

Наиболее общими конструктивными и технологическими направлениями при разработке поршней современных двигателей является:

уменьшение расстояния от днища поршня до оси бобышек в целях снижения высоты и массы двигателя;

уменьшение высоты юбки поршня и снижение веса за счет вырезов в наименее нагруженных местах (Х-образные поршни);

нанесение на днище и верхнюю канавку поршня износо- и термостойкого покрытия, преобразующего поверхностный слой алюминия в керамику Аl2 О3;

снижение теплового расширения поршня за счет заливки в его тело стальных терморегулирующих вставок;

покрытие юбки поршня тонким (0,003-0,005 мм) слоем олова, свинца или оловянно-свинцового сплава в целях быстрой приработки, а также уменьшения трения и снижения износа;

уменьшение внешнего и внутреннего диаметров пальцев;

переход на плавающие пальцы малой длины с фиксацией шатуна от осевых перемещений в бобышках поршня;

снижение высоты колец;

применение специальных конструктивных и технологических элементов, улучшающих смазку и уменьшающих износ пары: поршень - цилиндр.

Обработка результатов

Определить напряжение изгиба в днище поршня по формуле:

 (1)

где

 - напряжение изгиба в днище поршня, МПа;

- внутренний радиус поршня, , мм- толщина стенки поршня, мм. Выбирается из таблицы №2;- радиальная толщина компрессионного кольца, мм. Выбирается из таблицы №2;

Dt - радиальный зазор кольца в канавке поршня, мм. Выбирается из таблицы №2;

 - толщина днища поршня, мм. Выбирается из таблицы №2.

Таблица №2 - Размеры поршня.


Наименование элементов поршня

Бензиновые двигатели

Дизели

1

Толщина днища поршня, d/D

0,05-0,09

0,12-0,20

2

Высота поршня, H/D

0,08-1,20

1,00-1,50

3

Высота огневого пояса, е/D

0,06-0,09

0,11-0,20

4

Толщина первой кольцевой перемычки, hп /D

0,03-0,05

0,04-0,06

5

Высота верхней части поршня, h1/D

0,45-0,75

0,60-1,00

6

Высота юбки поршня, hю /D

0,60-0,75

0,60-0,70

7

Толщина стенки головки поршня, s/D

0,05-0,10

0,05-0,10

8

Радиальный зазор компрессионного кольца в канавке поршня, Dt

0,70-0,95

0,70-0,95

9

Внутренний диаметр поршня, di

di=D-2(s+t+Dt)

10

Толщина стенки юбки поршня, dю, мм

1,50-4,50

2,00-5,00

11

Радиальная толщина компрессионного кольца, t/D

0,035-0,045

0,040-0,045

12

Высота кольца, а, мм

1,50-4,00

3,00-5,00

13

Число масляных отверстий в поршне, nм

6-12

6-12

14

Диаметр масленого канала, dм/а

0,3-0,5

0,3-0,5

15

Диаметр бобышки, dб/D

0,3-0,5

0,3-0,5


Сравните напряжение изгиба с допустимым напряжением [sиз], МПа из таблицы №3.

Таблица №3- Допустимые значения напряжения.


Сплав

Поршень без ребер жесткости на днище

алюминиевый

20-25


чугунный

40-50

Поршень с ребрами жесткости на днище

алюминиевый

50-150


чугунный

80-200


При превышении допустимых значений сделайте предложения для усовершенствования поршня.

Определить напряжение сжатия

 (2)

Где - максимальная сила давления газов на днище поршня, МН;

- площадь поршня, мм2;

рz - максимальное давление сгорания, МПа;x - площадь в сечении х-х, м2:

 (3)

где

 - диаметр поршня по дну канавок, м;=D-2(s + t + Dt) - внутренний диаметр поршня, м;

 - площадь продольного диаметрального сечения масляного канала, м2.

Сравните напряжение на сжатие с допустимым напряжением [sсж]. Для поршней из алюминиевых сплавов [sсж] = 30¸40 МПа, для чугунных - [sсж] = 60¸80 МПа.

Определить максимальную угловую скорость холостого хода

 (4)

где

- максимальная угловая скорость холостого хода, рад/сек;.x.max - максимальная частота вращения холостого хода, об/мин.

Определить массу головки поршня с кольцами, расположенными выше сечения х-х.

 (5)

гдеп - масса поршня, кг.

Определить максимальную разрывающую силу

 (6)

где

- максимальная разрывающая сила, МН;

 - радиус кривошипа, м. , м.

Определить напряжение разрыва

 (7)

где

Рj - максимальная разрывающая сила, МПа;x - площадь в сечении х-х, м2.

Определить напряжение среза в верхней кольцевой перемычке

 (8)

Определить напряжение изгиба в верхней кольцевой перемычке

 (9)

Определить сложное напряжение в верхней кольцевой перемычке

 (10)

Сложное напряжение не должно превышать допустимого, которое лежит в пределах:

Для поршней из алюминиевых сплавов 30-40 МПа

Для чугунных поршней 60-80 МПа

Определить удельное давление юбки поршня на стенку цилиндра

 (11)

где- максимальная нормальная сила, Н;ю - высота юбки поршня, м.

Определить удельное давление всего поршня на стенку цилиндра

 (12)

- высота поршня, м.

Определить диаметр головки поршня с учетом монтажного зазора

 (13)

Dг = 0,007 D - монтажный зазор головки поршня, м.

Определить диаметр юбки поршня с учетом монтажного зазора

 (13)

поршень цилиндр двигатель автотракторный

Dю = 0,002 D - монтажный зазор юбки поршня, м.

Определить диаметральные зазоры в горячем состоянии

 (14)

где

αц и αп - коэффициенты линейного расширения цилиндра и поршня. Для чугуна αц = αп = 11·10 -6 1/К, для алюминиевого сплава αц = αп = 22 ·10-6 1/К.

Тц = 383 ¸ 388 К, Тг = 473 ¸ 723 К, То = 293 К - рабочая температура цилиндра, головки поршня и окружающей среды соответственно.

 (15)

Сделайте вывод об пригодности к работе поршня в данных условиях и при необходимости мероприятия при которых поршень может эксплуатироваться.

При получении отрицательных значений D/г и D/ю поршень непригоден к работе. Для того чтобы он был пригоден необходимо пересчитать расчет, изменив Dг и Dю, или внедрить некоторые мероприятия. При нормальной работе поршня диаметральные зазоры должны лежать в пределах D/г = (0,002¸0,0025)·D и D/ю = (0,0005¸0,0015)·D.

Список литературы

1.      Расчет автомобильных и тракторных двигателей: Учеб. Пособие для вузов. / А.И. Колчин, В.П. Демидов - 3-е изд. перераб. и доп. - М.: Высш. шк., 2002. - 496 с.: ил.

2.      Двигатели внутреннего сгорания. Устройство и работа поршневых и комбинированных двигателей / Под ред. А.С. Орлина и М.Г. Круглова. М.: Машиностроение, 1990. 283 с.

.        Двигатели внутреннего сгорания. Системы поршневых и комбинированных двигателей / Под ред. А.С. Орлина и М.Г. Круглова. М.: Машиностроение, 1985. 369 с.