Материал: Расчёт одноковшового экскаватора с прямой лопатой и с максимальным радиусом копания

Внимание! Если размещение файла нарушает Ваши авторские права, то обязательно сообщите нам


Принимаем из стандартного ряда гидроцилиндр.,,

3)      Определяем объем гидроцилиндров для подъема стрелы.

Работа


Применяем два гидроцилиндра.

Полная работа


Принимаем из стандартного ряда гидроцилиндр.,,

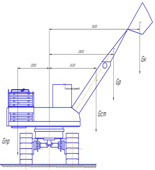
6. Расчет устойчивости одноковшовых экскаваторов к опрокидыванию

Рис 3 - схема к расчёту экскаватора на устойчивость

Устойчивость экскаватора определяется соотношением сил, действующих на рабочее оборудование и конструкцию при наиболее неблагоприятных условиях.

Рассмотрим случай подъёма груза на максимальную высоту

 - необходимое условие


Сила тяжести ковша.


Сила тяжести грунта в ковше.


Сила тяжести рукояти.


Сила тяжести противовеса.


Сила тяжести стрелы.


 - центр тяжести ковша.

 - центр тяжести рукояти.

 - центр тяжести груза.

 - центр тяжести противовеса.

- коэффициент к скоростям ветра.

- коэффициент учета скорости ветра.

- аэродинамический коэффициент.

Устойчивость

 условие выполняется

. Расчёт осей

Расчет пальца проушины для крепления стрелы к базе экскаватора:

Рис 4 - палец проушины для крепления стрелы к базе экскаватора

Найдем реакции в опорах:

Найдем изгибающие моменты:





Ось изготавливаем из стали 40, у которой

Расчетный диаметр оси равен:


Принимаем диаметр оси

Расчёт пальца проушины для крепления ковша к рукояти.

 

Рис 5 - палец проушины для крепления ковша к рукояти

Найдем реакции в опорах:

Найдем изгибающие моменты:






Ось изготавливаем из стали 40, у которой

Расчетный диаметр оси равен:


Принимаем диаметр оси

Список используемой литературы

1.      Алешин О.Н. Машины для земляных работ;- Брянск; БГТУ, 2005.-172с.

.        Машины для земляных работ;/ Под общ.ред. Д.П.Волкова. - М.; Машиностроение,1992. -448 с.

.        Васильченко В.А. Гидравлическое оборудование мобильных машин,; Справочник - М.; Машиностроение,1983. - 301 с.

.        Александров.М.П. Грузоподъемные машины;- М. ; Машиностроение,1986. -400с.

.        Домбровский Н.Г. Землеройные машины. - М.; Стройиздат,1961. - 462с.