Материал: Расчет насоса

Внимание! Если размещение файла нарушает Ваши авторские права, то обязательно сообщите нам

26. Окружная скорость на наружном диаметре РК в первом приближении , м/с

,

.

27. Наружный диаметр РК , м, в первом приближении

,

.

28. Коэффициент стеснения потока на выходе из РК

.

29. Меридианная составляющая абсолютной скорости , м/с, на выходе из РК

,

.

30. Угол выхода лопатки , град.

,

где отношение относительных скоростей ,

.

31. Число рабочих лопаток , шт.

.

радиус средней точки входной кромки лопасти , м

,

.

радиус наружной окружности колеса , м

,

,

.

Принимаем .

32. Технологический коэффициент

,

.

33. Корректив , учитывающий конечное число лопаток

,

.

34. Теоретический напор при бесконечном числе лопаток , м

,

.

35. Окружная скорость на выходе из РК, , м/с

,

где ,

.

.

36. Диаметр выхода РК , м, во втором приближении

,

.

37. Ширина канала на выходе , м

,

.

38. Коэффициент стеснения на выходе (проверка)

,

где  - толщина лопатки, мм

,

,

.

39. Коэффициент стеснения на входе жидкости в РК

,

,

.

40. Уточняем относительные скорости  и , м/с

,

,

,

.

Сравниваем

.


41. Расчет протечек через переднее уплотнение РК , м³/с

.

Изменение напора в зазоре, м

,

где - радиус колеса в месте уплотнения, м

,

,

.

Коэффициент расхода  для простого щелевого уплотнения

,

где - коэффициент трения; - длина щели, м, .

Радиальный зазор , мм, принимаем .

.

.

Проверка объемного КПД

,

.

.


)        Абсолютная скорость на входе  и выходе , м/с

,

,

,

.

)        Угол входа  и выхода  потока на рабочем колесе, град.

,

,

,

.

а)

б)

Рисунок 4 - Треугольники скоростей (масштаб 1 м/с = 2 см):

а - на входе рабочего колеса; б - на выходе рабочего колеса

Таблица 1 - Значения параметров треугольников скоростей

u1, м/с

u2, м/с

w1, м/с

w`1 м/с

w2, м/с

c1, м/с

c1m м/с

с1u м/с

с2, м/с

α1, град.

α2, град.

β1, град.

β1,0 град.

i, град

β2, град.

21,776

51,232

15,227

22,119

13,664

6,923

4,25

7,410

35,319

44,46

5,516

18,569

10,569

6

10,569


3)  Окружная составляющая абсолютной скорости, м/с

,

,

,

.

)        Относительная скорость входа , м/с

,

.

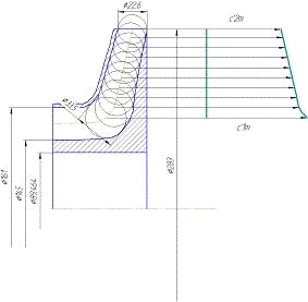
43. Строим меридианное сечение РК в следующей последовательности:

1)  Количество радиусов меридианного сечения РК

.

)        Приращение радиуса , м

,

.

3)      i-ый радиус колеса , м

.

4)      i-ая скорость , м/с

.

5)      i-ая ширина канала из уравнения неразрывности , м

.

Сводим полученные результаты в таблицу 2.

Таблица 2 - Значения параметров для построения меридианного сечения рабочего колеса

i

, м, м, м/с, м, м, м, м, мм, мм









0 1 2 3 4 5 6 7 8 9

0,0725 0,0805 0,0885 0,0965 0,1045 0,1125 0,1205 0,1285 0,1365 0,145

4,25 4,127 4,004 3,881 3,758 3,635 3,512 3,389 3,266 3,144

0,0335 0,0310 0,0291 0,0275 0,0263 0,0252 0,0244 0,0237 0,0231 0,0226

    0,161

    0,145

    0,305

    89,464

    109,594


На принятой средней линии отмечаем точки, соответствующие .

Приняв эти точки за центры, описываем ряд окружностей диаметром, равным . Боковые стенки канала в меридианном сечении получаются как огибающие этих окружностей.

На рисунке 5 показана ¼ часть сечения рабочего колеса и график изменения .

Рисунок 5 - Меридианное сечение рабочего колеса и график изменения  (масштаб 1:1, 1 м/с = 1 см)

44. По найденным углам входа  и выхода  строим среднюю линию сечения лопасти одной дугой окружности

º,

º,

Сумма углов  и , град.

.

Рисунок 6 - Средняя линия сечения лопасти (масштаб 1:1)

45. Расчет рабочего колеса на кавитацию

Опытный коэффициент .

Опытный коэффициент .

Критический кавитационный запас , м

,

.

46. Кавитационный коэффициент быстроходности

,

.

Допустимый кавитационный запас , м

,

где  - коэффициент запаса.

.

Выводы

В данной работе, в результате расчетов, мы спроектировали сетевой насос, имеющий следующие технические характеристики и параметры:

подача насоса Q, м³/с

.

напор насоса H, м

.

частота вращения вала насоса n, об/мин

.

температура перекачиваемой воды t, ºC

.

число параллельных потоков в насосе ;

число ступеней насоса ;

допустимый кавитационный запас , м

.

мощность насоса , кВт

.

общий КПД насоса , %

.

наружный диаметр РК , м

.

диаметр входа жидкости в РК , м

.

диаметр входа жидкости на рабочие лопатки , м

.

число рабочих лопаток РК , шт.

.

Величина кавитационного запаса, обеспечивающая работу насоса без изменения основных его параметров, называется допустимым кавитационным запасом.

Результаты расчетов показали, что мы спроектировали насос с удовлетворительными кавитационными свойствами, которые соответствуют типу насоса, частоте вращения, напору и подаче создаваемым насосом.

Для аналогичного насоса, заводского исполнения, величина допустимого кавитационного запаса составляет 5,5 м, следовательно, в нашем случае погрешность составляет 18%. Значит допустимый кавитационный запас, спроектированного насоса, соответствует предъявляемым требованиям к кавитационным свойствам насоса данного типа.

Список использованных источников

1 Будов, В.М. Насосы АЭС: учеб. пособие для вузов. / В.М. Будов. - М.: Энергоатомиздат, 1986. - 408 с.

Черкасский, В.М. Насосы, вентиляторы, компрессоры. Учебник для теплоэнергетических специальностей вузов. / В.М. Черкасский. - М.: Энергия, 1977. - 424 с.

Малюшенко, В.В. Энергетические насосы: Справочное пособие / В.В. Малюшенко, А.К. Михайлов. - Энергоиздат, 1981. - 200 с.

РД ГОУВПО «КнАГТУ» 013-2012 «Текстовые студенческие работы. Правила оформления».