Материал: Расчет и проектирование железобетонных конструкций

Внимание! Если размещение файла нарушает Ваши авторские права, то обязательно сообщите нам

Расчет и проектирование железобетонных конструкций

1. Исходные данные


L1=18 м

L2=18 м

L3=18м=30м

l=84 м

Q=20 т

=96 м

Нп = 6,6 м

Нн = 4,2 м

Район строительства: Луцк

W0 = 460 кПа

S0 = 1400Па

Подкр.рельс. = 1,2 т

Для пролета 18 м

К =4. 4м

В = 6.3 м

Рмах = 195 кН

G = 85 кН

Для пролета 30 м

К =4. 4м

В = 6.3 м

Рмах = 225 кН= 85 кН

2. Основные положения


Основными несущими конструкциями одноэтажного производственного здания является, балочно-стоечные поперечные рамы, которые связаны между собой фундаментными подвязочными и подкрановыми балками.

Основные несущие элементы поперечной рамы:

фундаменты; поперечные рамы; колоны; несущая конструкция покрытия (ферма, балка), плиты покрытия; рамы связаны между собой диском покрытия, ребра плит привариваются к несущему элементу покрытия, минимум в 3х местах, швы между плитами замоноличиваются. Узел операния фермы, либо балки, выполняется на болтах; При идеализации конструкции принимают операние колоны в фундамент, операние ригеля покрытия на колону - шарнирным.

3. Геометрические размеры строительных конструкций


Высота надкрановой части колон:

Hн =4,2 м

Высота подкрановой части колонны:

Hп=7,6 м

Полная высота колоны:к= 11,8

Выбор колонн осуществляется в зависимости от их шага, ширины пролета, грузоподъемности крана, высоты производственного здания. В соответствии с этим колонны могут быть прямоугольного сечения или двухветвевые, железобетонные или стальные, постоянного сечения по высоте или переменного.При наличии подстропильных конструкций колонны средних рядов подбирают с учетом высоты на опоре подстропильных балок и ферм.

4. Нагрузки и воздействия

.1 Общие данные



Основы расчетов по двум принципам предельных состояний и классификации нагрузок на самостоятельные работы.

Нормативным документом, который регламентирует определение значений нагрузок и воздействий, а также их сочетаний при проектировании строительных конструкций, зданий и сооружений является ДБН В.1.2-2:2006 «Нагрузки и воздействия»

В соответствии с действующими нормативными документами расчет строительных конструкций ведется с учетом расчетных ситуаций и предельных состояний. Строительные конструкции и основания следует рассчитывать по двум группам предельных состояний. Основные положения метода предельных состояний направлены на обеспечение безотказной работы конструкции с учетом свойств материалов, геометрических размеров, а также степени ответственности конструкции.

Предельные состояния:

ü  Первая группа предельных состояний включает в себя предельные состояния, которые приводят к полной невозможности эксплуатации конструкции или полной

( частичной) потери несущей способности.

ü  Вторая группа предельных состояний включает в себя предельные состояния, которые затрудняют нормальную эксплуатации конструкции или сокращают срок долговечности здания.

К постоянным нагрузкам относят:

.        собственный вес;

.        вес грунта насыпи;

.        предварительное напряжение

К временным нагрузкам относят:

.        вес временных перегородок;

.        вес стационарного оборудования;

.        вес складируемых материалов на складах;

.        вес людей, животных, оборудования, передаваемые на перекрытия жилых, общественных и сельскохозяйственных зданий с квазипостоянным значением;

.        вертикальные нагрузки от кранов с квазипостоянным значением;

.        снеговые нагрузки с квазипостоянным значением.

К временным и кратковременным нагрузкам относят:

.        вес людей, животных и оборудования передаваемые на перекрытия здания с предельным либо эксплуатационным значение;

.        нагрузка от кранов с предельными либо эксплуатационными значениями;

.        снеговые нагрузки с предельным либо эксплуатационным значением;

.        ветровые нагрузки.

К эпизодическим относятся:

.        землетрясения;

.        взрывы;

.        подвижки грунта.

.2 Постоянные нагрузки


Эксплутационно-расчетное значение нагрузки от веса конструкций, принимают равным его характерным значению. Предельно расчетное значение нагрузки получается путем умножения характерного значения на коэффициент надежности по нагрузки γfm , которое равняется для конструкции:

металлических=1,1

бетонных плотностью выше 1600 кг/м3 ,

ж/б, армированных и деревянных =1,1

бетонных менее 1600 кг/м3 из авиационных и выравнивающих слоев, изготовленных в заводе =1,2 , изготовленных на строительной площадке = 1,3.

Нагрузка на 1 м2 покрытия

Табл. 4.1

№ п/п

Вид нагрузки

Характеристика знач. нагрузок Кн.

γf

1

Гравийная засыпка (0,005*1*1*28)

140

1,3

182

2

Рубероид (0.015*1*1*6000)

90

1,2

108

3

Битумная мастика (0.1*1*1*1400)

140

1,3

182

4

Утеплитель(0.15*1*1*8000)

1200

1,3

1560

5

Стяжка(0.05*1*1*25000)

1250

1,3

1625

6

Пароизоляция (0.002*1*1*18000)

36

1,2

43,2

7

Плита покрытия (0.3*1*1)

1800

1.1

1980

8

Итого

4656


5678,2


m/s=6,8/36=0,18

qi=g*B=5678,2*12=68138,4 H;

g= 5678,2;

Расчетная схема

Собственный вес

Собственный вес от регилей:

,85= 8500 Н

,42 = 4200 Н

Собственный вес подкрановой балки и подкрановой рельсы:

P=Pb+120B=10700+12012=12140,

где Pb - масса подкрановой балки;

Собственный вес от ограждения:

М=N0,35

N= h0/b= 4,2/1,8=2,3 (3 панели)

M=3*0,35*3500=3675 н

Снеговая нагрузка

Sm=

C=


Крановая нагрузка


Для пролета 18 м Для пролета 30 м

К =4. 4м К =4. 4м

В = 6.3 м В = 6.3 м

Рмах = 195 кН Рмах = 225 кН = 85 кН G = 85 кН


Для пролета 30 м

, отсюда

У2=

, отсюда

У4=

У3=

Т=1,12253,005=743,73 (30 м)

Т=1,11953,005=644,572 (18 м)

Горизонтально-крановая

D= (0,726 т.)

Ветровая нагрузка

Γfm=1,035=480 pa=Caer*Ch*Calt*Crel*Cdir*Cd=1=1=1=1=Wm1*B

 для наветренной стороны -0,8; для подветренной -0,6;

Наветренная сторона

Z=5

Ch=0,9

Wm1=496,80,72=357,696

C= 0,80,91111=0,72=357,69612=4292,357=7,6=1,056

Wm2=496,80,8448=419,69

C= 0,81.0561111=0,8448

W2=5036,3

Z=11,8=1,263

Wm3=496,81,0104=501,966

C= 0,81.2631111=1,0104

W3=6023,6

Подветренная сторона

Z=5=0,9=496,80,54=268,272= 0,54=3219,264=7,6=1,056

Wm2=496,80,63=312,984

C= 0,63

W2=3755,808

Z=11,8

Ch=1,263

Wm3=376,47

C= 0,7578

W3=4517,7

Эпюра N

Эпюра Q


Эпюра М

Таблица РСУ

5. Внецентренно - сжатые элементы

.1 Общие сведения


При расчете внецентренно- сжатых элементов, должно приниматься во внимание значение случайного эксцентриситета (е0).

/600- длины элемента

/30 - высоты сечения элемента, не менее этих значений.

е- эксцентриситет - расстояние от центра тяжести до линии действия нагрузки

Для элементов статически неопределимых конструкции значение е продольной силы может быть принята по результатам статического расчета е0 = М/N. При расчете внецентренно- сжатых элементов следует учитывать влияние прогибов на их несущую способность, как правило путем расчетов по деформационной схеме. При этом принимаем во внимание не упр деформации бетона и трещины в нем. Допускается производить расчет по не деформационной схеме, учитывая влияние прогибов путем умножения

.2 Расчет крайней колоны


В курсовом проекте для крайней колонны применяем несимметричное армирование.

Исходные данные:

Класс бетона С25/30; fcd= 17 мПа; Еcd = 3∙ т/ =29419,95 мПа

Продольная арматура класса А400C ; fyd = fydc = 363,63 мПа;

Расчет надкрановой и подкрановой части колонны производится как внецентренно сжатых элементов на каждое из невыгодных сочетаний усилий с учетом:

1.      Случайного эксцентриситета еа

2. Гибкость элемента

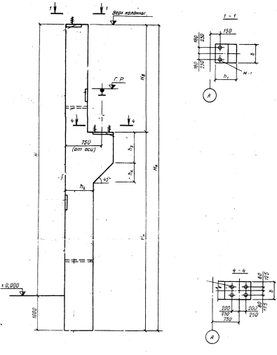
I.     Надкрановая часть

Н2 = Нb = 4,2 м

h = 600 мм

b = 500 мм

Защитный слой бетона as = as’ = 50 мм

Расчетная длина l0 = 1∙Hb = 1∙4,2= 4,2 м

Момент инерции I см4

Площадь А = h*b = 60∙50=3000 см2

Радиус инерции сечения i = см

Гибкость λ = >14

следовательно необходимо учитывать влияние прогибов ( влияние продольного изгиба) h0 = h - as = 60-5= 55 см