Материал: Проектирование в условиях г. Владикавказа отделения обжига гранулированного молибденитового концентрата производительностью 6800 т/год

Внимание! Если размещение файла нарушает Ваши авторские права, то обязательно сообщите нам

Ленточные питатели применяются для подачи в смеситель из бункеров концентрата, бентонита, оборотной циклонной пыли. Также ленточные питатели применяются для подачи шихты из бункера в грануляторы.

Принимаем ленточные питатели марки ПЛ-1. Необходимо 3 питателя для концентрата, бентонита и цинковой пыли и 4 питателя для подачи шихты на грануляторы.

Питатель ПЛ-1:

Ширина ленты, 400

Расстояние между барабанами, мм 865

Диаметр барабана, мм 30

Скорость ленты, м/с 0,05-0,043

Производительность, м3/ч 5,4-46,5

Мощность, кВт 1,8

Масса, кг 327

.12 Винтовой конвейер (шнек)


Винтовой конвейер используется для подачи шихты из смесителя в бункер негранулированной шихты. Примем винтовой конвейер с диаметром шнека равным 300 мм.

Шаг винта, мм 204

Частота вращения винта, об./мин 80

Производительность, т/ч 30

Коэффициент заполнения желоба 0,3

Длинна секции желоба, мм 2000-4000

винта, мм 2000-2500

Длина шнека, мм до 24-32

Масса ум длины шнека, кг 125

.13 Расчет насосов для орошения скруббера


Требуемая производительность для орошения скруббера:

 л/с

Принимаем для орошения скруббера центробежные насосы типа ПБ с подачей 6,95 л/с.

Напор, м 20

К.п.д., %, не менее 45

Допускаемый кавитационный запас, м, не более 2,5

Мощность насоса, кВт, не более 3

Проходное сечение проточного тракта, мм, не менее 12

Масса насоса, кг, не более -

Приходное сечение проточного тракта, мм, не менее 12

5 Мероприятие по охране окружающей среды.

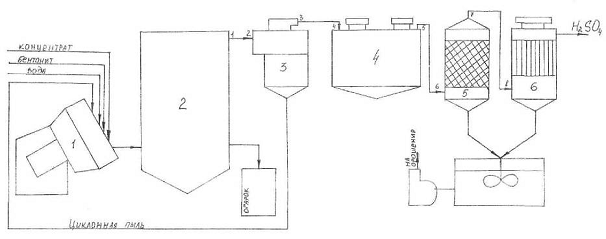
.1 Описание системы пылеулавливания

Расчет системы очистки газов производится по участкам, начиная от источника газов. Участками являются отрезки газоходного тракта и аппараты пылеулавливания.

Система пылеулавливания состоит из: циклона (3); сухого электрофильтра (4); скруббера (5); мокрого электрофильтра (6); для очистки газов от SО2 используют скруббер, орошаемый основным сульфатом алюминия. Для создания разряжения под сводом печи и отсоса газов используют вентилятор (8),а для выброса в атмосферу трубу (9).

Циклонная пыль направляется на грануляцию в гранулятор (1),туда так же подаются концентрат, вода, бентонит. Пыль электрофильтров и скруббера направляется на выщелачивание вместе с огарком.

После грануляции шихта поступает в печь КС (2). Огарок, выходящий из печи, идет на выщелачивание, а газы на очистку.

Принимаем подсос воздуха 5 % на каждом участке газоходного тракта. В аппаратах пылеулавливания подсос отсутствует.

Аппаратурно - технологическая схема газоходной системы и аппаратов пылеулавливания и обжига гранулированной шихты представлена на рис. 5.1.

Таблица 5.1

Состав отходящих газов из печи КС


Компоненты

Масса, кг

Плотность, кг/нм3

Объем, НМГ

% (об)

1

SO2

57,822

2,860

20,217

3,178

2

SO3

18,067

3,574

5,055

0,795

3

H2O

25,655

0,804

31,909

5,016

4

CO2

1,286

1,965

0,655

5

N2

573,141

1,25

458,513

72,076

6

O2

171,198

1,429

119,802

18,832

7

Re2O7

0,0039

21,629

0

0


Итого

847,173

1,323

636,151

100


Так как на каждом участке газоходного тракта (участков 4) подсосы воздуха составляют по данным практики 5 %,то объем газов на выходе из скруббера 6 составит:

,151*(1+0,05+0,052+0,053 +0,054 ) = 636,151*1,05263 = 669,632 нм3,

т.е. газы разбавляют воздухом в 1,05263 раза. Тогда содержание SO2 в газах с учетом подсосов составит 3,178/1,05263 = 3,019 % об., что > 3% об., следовательно, газы могут быть направлены на производство серной кислоты.

Рис. 5.1. Аппаратурно-технологическая схема обжига гранулированной шихты и пылеулавливания

Заключение

В данном курсовом проекте, требовалось спроектировать в условиях г. Владикавказ отделение обжига гранулированного молибденитового концентрата производительностью 6800т/год. Проект состоит из 5 разделов.

В первом разделе « Обоснование способа вскрытия концентрата» был произведен обзор способов переработки молибденитового концентрата, при этом были рассмотрены все достоинства и недостатки каждого из них. Наиболее разумным следует считать применение окислительного обжига в печи кипящего слоя.

Во втором разделе « Технологические расчеты» требовалось:

расчет рационального состава концентрата, расчет выполнен на 100 кг. влажного концентрата.-88,088-3,222S -0,978

Данные расчета представлены в таблице 2.1.

Расчет состава и выхода огарка и пыли из 100 кг концентрата. Получили таблицу 2.2. (Общее количество продуктов обжига из 100 кг концентрата)

Масса общая - 9,707 кг. В ней Mo - 0,415. В ней SSO4 - 0,521.

В ней кислород - 3,828 ( более подробно все представлено в таблице 2.2.)

Расчет обжига гранулированного молибденитового концентрата, в котором был составлен материальный баланс обжига гранулированной шихты (на 100кг. концентрата) Все данные предоставлены в таблице 2.4.

В третьем разделе « Выбор и расчет основного оборудования» был произведен расчет теплового баланса печи кипящего слоя (расчет на ЭВМ). При этом была рассчитана производительность печи по концентрату равная 834,6835 кг/ч, диаметре печи равен 2,403 м, высота надслоевой зоны равная 6,9 м, высота кипящего слоя 2,3 м.

В четвертом разделе «Расчет или подбор (по каталогам) вспомогательного оборудования» требовалось рассчитать и выбрать следующее оборудование:

бункеры;

дробилка для разлома некондиционных гранул;

гранулятор;

воздуходувка;

расчет загрузочной трубы;

грохот;

дисковый питатель;

смеситель;

ленточный транспортер;

винтовой конвейер.

В пятом разделе «Мероприятие по охране окружающей среды» для отчистки от печных газов от SO2 был принят способ очистки, при котором газы в скруббере орошают раствором сульфата алюминия. Следовательно содержание SO2 в газах с учетом подсосов составит 3,019% от газы, могут быть направлены на производство серной кислоты.

Список использованной литературы

1.     Зеликман А.Н. Металлургия тугоплавких редких металлов. М.: Металлургия, 1986. 440с.

2.      Зеликман А.Н. Молибден. М.: Металлургия, 1970. 440с.

3.      Алкацева В.М. Расчет обжига сульфидного сырья (на примере молибденитовых концентратов). Методическое пособие для курсового и дипломного проектирования. Владикавказ: Терек, 1993. 42с.

.        Алкацева В.М. Алгоритм расчета теплового баланса печи кипящего слоя для обжига гранулированного молибденитового концентрата // Цв. Метталургия . 1997. № 10. С. 16-21

5.      Романов А.С. Разработка вопросов охраны окружающей среды в дипломных проектах по металлургии редких металлов. Методическое пособие. Орджоникидзе, 1982. 36 с.

6.      Интерент источник http://www.materialscience.ru/subjects/materialovedenie/knigi/metallurgiya_redkih_metallov__zelikman_an_korshunov_bg__m_metallurgiya_1991__432_s_24_01_2010/ (Металлургия редких металлов / Зеликман А.Н., Коршунов Б.Г. - М.: Металлургия, 1991. - 432 с.)