|
Наименование
|
Количество
электроприемников
|
Установленная
мощность электроприемников, кВт
|
|
|
одного
|
суммарная
|
|
1.
Механический цех мелких станков
|
300
|
1-40
|
4500
|
|
2.
Механический цех крупных станков
|
100
|
1-80
|
2500
|
|
3.
Механический цех уникальных станков
|
40
|
1-250
|
2800
|
|
4. Цех
обработки цветных металлов
|
30
|
/1, с.78/
|
1613
|
|
5. Литейный
цех
|
70
|
3,2-28
|
320
|
|
6. Столовая
|
25
|
1,0-28
|
320
|
|
7.
Компрессорная: СД 6кВ
|
4
|
720
|
2880
|
|
8.
Инженерно-конструкторский корпус
|
20
|
1,7-28
|
450
|
|
9. Цех
металлопокрытий
|
18
|
10-55
|
370
|
|
10.
Механический цех №2
|
150
|
7-70
|
2650
|
|
11. Сборочный
цех №2
|
60
|
0,8-40
|
2100
|
|
12.
Металлографическая лаборатория
|
20
|
5-20
|
240
|
|
13. Насосная
|
4
|
125
|
500
|
|
14. Опытный цех
СКБ
|
40
|
3,2-40
|
510
|
|
15. Лаборатория
сопротивления
|
20
|
10-90
|
480
|
|
16. Машинный
цех
|
14
|
10-80
|
800
|
|
17. Лаборатория
вакуумных печей
|
20
|
30-70
|
960
|
|
18. Лаборатория
дуговых печей
|
17
|
9-100
|
680
|
Содержание
Задание
Исходные данные
Введение
1. Определение категорийности потребителей /8, с.81/
2. Определение расчетной нагрузки промышленного предприятия /2,
с.6/
3. Проектирование схемы электроснабжения промышленного предприятия
3.1 Определение способа питания и номинального напряжения
3.2 Определение сечения питающих ЛЭП
3.3 Выбор оборудования на ГПП
3.4 Выбор оптимального варианта внешнего электроснабжения завода
3.5 Выбор местоположения главной понизительной подстанции
4. Проектирование схемы внутреннего электроснабжения промышленного
предприятия
4.1 Выполнение эскиза схемы с указанием распределительных пунктов и
трансформаторных подстанций цехов
4.2 Выбор сечения кабельных линий
4.3 Выбор цеховых трансформаторов
4.4 Расчет токов КЗ для выбора коммутационного оборудования
5. Определение приведенных затрат на сооружение проектирования
внутреннего электроснабжения
Список использованных источников
Введение
В области электроснабжения потребителей
сформулированы задачи предусматривающие повышение уровня проектно -
конструкторских разработок, внедрение и рациональную эксплуатацию
высоконадежного электрооборудования, снижение непроизводительных расходов
электроэнергии при ее передаче, распределении и потреблении.
Развитие и усложнение структуры систем
электроснабжения, возрастающие требования к экономичности и надежности их
работы в сочетании с изменяющейся структурой и характером потребителей
электроэнергии, широкое внедрение устройств управления распределением и
потреблением электроэнергии на базе современной вычислительной техники ставят
проблему подготовки высококвалифицированных инженеров.
Важнейшим этапом в развитии творческой
деятельности будущих специалистов является курсовое и дипломное проектирование,
в ходе которого развиваются навыки самостоятельного решения инженерных задач и
практического применения теоретических знаний.
Целью курсового проектирования по электроснабжению
промышленных предприятий является - систематизация и расширение теоретических
знаний студентов, ознакомление с основными приемами проектирования, закрепление
навыков использования современной вычислительной техники.
Курсовое проектирование можно назвать репетицией к
дипломному, а дипломное - генеральной репетицией перед практической
деятельностью.
Нельзя забывать, что проектирование является комплексной
задачей, в которой все элементы являются звеньями общей цепочки. Если одно из
этих звеньев окажется некачественным, цепочка может разорваться.
Для того чтобы решать важные энергетические задачи, инженер
должен обладать теоретическими знаниями и уметь творчески применять их в своей
практической деятельности.
1.
Определение категорийности потребителей /8, с.81/
Надежность электроснабжения определяется числом независимых
источников питания и схемой электроснабжения. По надежности электроснабжения в
соответствии с требованиями ПУЭ электроприемники разделяют на три категории.
К 1-й категории относят электроприемники, перерыв в
электроснабжении которых может повлечь за собой: опасность для жизни людей,
значительный ущерб народному хозяйству, повреждение дорогостоящего основного
оборудования, массовый брак продукции, расстройство сложного технологического
процесса, нарушение функционирования особо важных элементов коммунального
хозяйства.
Во 2-ю категорию входят электроприемники, перерыв
электроснабжения которых приводит к массовому недоотпуску продукции, массовым
простоям рабочих, механизмов и промышленного транспорта, нарушению нормальной
деятельности значительного числа городских и сельских жителей.
К 3-й категории относят все остальные электроприемники, не
подходящие под определения 1-й и 2-й категорий. Это главным образом различные
вспомогательные механизмы в основных цехах, цеха несерийного производства.
В связи с выше названным, определим категорийности нагрузок
завода ферросплавов (таблица 2)
Таблица 2 - Категорийность потребителей
|
Наименование
|
Категория
|
Установленная
суммарная мощность электроприемников, кВт
|
|
|
1.
Механический цех мелких станков
|
I
|
4500
|
|
2.
Механический цех крупных станков
|
I
|
2500
|
|
3.
Механический цех уникальных станков
|
I
|
2800
|
|
4. Цех
обработки цветных металлов
|
I
|
1613
|
|
5. Литейный
цех
|
I
|
320
|
|
6. Столовая
|
II
|
320
|
|
7.
Компрессорная: СД 6кВ
|
I
|
2880
|
|
8.
Инженерно-конструкторский корпус
|
II
|
450
|
|
9. Цех
металлопокрытий
|
II
|
370
|
|
10.
Механический цех №2
|
II
|
2650
|
|
11. Сборочный
цех №2
|
I
|
2100
|
|
12.
Металлографическая лаборатория
|
II
|
240
|
|
13. Насосная
|
I
|
500
|
|
14. Опытный цех
СКБ
|
II
|
510
|
|
15. Лаборатория
сопротивления
|
II
|
480
|
|
16. Машинный
цех
|
II
|
800
|
|
17. Лаборатория
вакуумных печей
|
I
|
960
|
|
18. Лаборатория
дуговых печей
|
I
|
680
|
|
|
|
|
|
2.
Определение расчетной нагрузки промышленного предприятия /2, с.6/
Основным этапом проектирования системы электроснабжения
является определение электрических нагрузок.
По значению электрических нагрузок выбирают и проверяют
электрооборудование системы электроснабжения, определяют потери мощности и
электроэнергии.
От правильной оценки ожидаемых нагрузок зависят капитальные
затраты на систему электроснабжения, эксплуатационные расходы, надежность
работы электрооборудования.
К основным методам расчета электрических нагрузок относятся
следующие:
) по установленной мощности и коэффициенту спроса:
;
) по средней мощности и коэффициенту формы графика нагрузок:
;
) по средней мощности и коэффициенту максимума (метод
упорядоченных диаграмм показателей графиков нагрузок):
;
) по средней мощности и отклонению расчетной нагрузки от средней
(статистический метод):
,
где
- принятая кратность меры рассеяния;
- среднеквадратичное отклонение.
Наиболее приемлемым является метод определения расчетных нагрузок
цехов по установленной мощности и коэффициенту спроса, так как он является
простым по сравнению с остальными методами /2, с.7/.
Активная силовая нагрузка определяется по следующей формуле, кВт,
,
где
kС -
средний коэффициент спроса /2, табл.2.1/;
РНОМ - суммарная установленная мощность всех приемников
цеха принимается по исходным данным.
Реактивная мощность нагрузки определяется по следующей формуле,
квар,
,
где tgφ - соответствующий характерному для
приемников данного цеха средневзвешенному значению коэффициента мощности.
Осветительная нагрузка определится по формуле /2, с.7/, кВт,
,
Где
- удельная нагрузка, Вт/м2
площади пола цеха /2, таблица 2.4/;
kСО -
коэффициент спроса, для освещения /2, таблица 2.3/;
F - площадь пола цеха, определяемая по генплану.
Полная расчетная мощность нагрузки определится по формуле, кВА,
.
Выполним расчет для цеха №1 (Механический цех мелких станков), все
остальные результаты сведем в таблицу 3.
Активная нагрузка цеха, кВт,
,
где
=0,14 - выбирается в зависимости от типа
нагрузки /2, таблица 2.1/.
Реактивная нагрузка цеха, квар,
.
Осветительная нагрузка цеха, кВт,
.
Далее определяем суммарную активную мощность цеха с учетом
осветительной нагрузки, кВт,
.
Таким образом, полная мощность цеха определится, кВА,
.
Тогда полная расчетная мощность силовых и осветительных приемников
цеха, кВА,
,
где
=
т.к. осветительная нагрузка состоит только из ламп накаливания и
не имеет реактивной составляющей.
Определим активные потери в трансформаторе, вызванные протеканием
через него тока нагрузки, кВт,
,
где
РΣ -
суммарное потребление активной электроэнергии на заводе.
Определим реактивные потери в трансформаторе, вызванные
протеканием через него тока нагрузки, квар,
.
Определим полное потребление мощности заводом, кВА,
внутреннее электроснабжение эзотермическое оборудование
Таблица 3 - Результаты расчета нагрузок завода
|
№
|
РНОМ,
кВт
|
сosφ
|
kС
|
F, м2
|
РРП,
кВт
|
QРП, квар
|
kСО
|
, т/м2Р0Р,
кВтРΣН, кВтSΣН, кВ·А
|
|
|
|
|
1
|
4500
|
0,5
|
0,16
|
3744
|
720
|
1247,1
|
0,95
|
16
|
56,9
|
776,9
|
1469,3
|
|
2
|
2500
|
0,65
|
0,23
|
4032
|
575
|
672,2
|
0,95
|
18
|
68,9
|
643,9
|
930,9
|
|
3
|
2800
|
0,65
|
0,25
|
1056
|
700
|
818,4
|
0,95
|
17
|
17,1
|
717,1
|
1088,1
|
|
4
|
1612,8
|
0,6
|
0,16
|
1440
|
258,1
|
344,1
|
0,85
|
12
|
14,7
|
272,7
|
439,1
|
|
5
|
320
|
0,65
|
0,4
|
5184
|
128
|
149,6
|
0,95
|
19
|
93,6
|
221,6
|
267,4
|
|
6
|
320
|
0,85
|
0,7
|
1120
|
224
|
138,8
|
0,9
|
20
|
20,2
|
244,2
|
280,9
|
|
7
|
2880
|
0,8
|
0,75
|
240
|
2160
|
1620,0
|
0,85
|
16
|
3,3
|
2163,3
|
2702,6
|
|
8
|
450
|
0,85
|
0,7
|
1520
|
315
|
195,2
|
0,9
|
20
|
27,4
|
342,4
|
394,1
|
|
9
|
370
|
0,8
|
0,95
|
880
|
351,5
|
263,6
|
0,85
|
12
|
9,0
|
360,5
|
446,6
|
|
10
|
0,5
|
0,6
|
3024
|
1590
|
2754,0
|
0,95
|
16
|
46,0
|
1636,0
|
3203,2
|
|
11
|
2100
|
0,7
|
0,75
|
3696
|
1575
|
1606,8
|
0,95
|
16
|
56,2
|
1631,2
|
2289,7
|
|
12
|
240
|
0,8
|
0,95
|
520
|
228
|
171,0
|
0,8
|
20
|
8,3
|
236,3
|
291,7
|
|
13
|
500
|
0,8
|
0,75
|
1040
|
375
|
281,3
|
0,95
|
18
|
17,8
|
392,8
|
483,1
|
|
14
|
510
|
0,85
|
0,7
|
1200
|
357
|
221,2
|
0,8
|
20
|
19,2
|
376,2
|
436,4
|
|
15
|
480
|
0,95
|
0,8
|
1360
|
384
|
126,2
|
0,8
|
27
|
29,4
|
413,4
|
432,2
|
|
16
|
800
|
0,5
|
0,16
|
1364
|
128
|
221,7
|
0,85
|
18
|
20,9
|
148,9
|
267,0
|
|
17
|
960
|
0,95
|
0,8
|
1364
|
768
|
252,4
|
0,8
|
27
|
29,5
|
797,5
|
836,5
|
|
18
|
680
|
0,87
|
0,85
|
880
|
578
|
327,6
|
0,8
|
24
|
16,9
|
594,9
|
679,1
|
|
Σ
|
24672,8
|
-
|
-
|
-
|
11415
|
11411
|
-
|
-
|
555
|
11970
|
16938
|
Определим сos φ производства, о. е.,
.
Принимая сos φ для энергосистемы равный 0,95, определяем
мощность компенсирующих устройств (КУ), квар,
.
По рассчитанной мощности выбираем КУ типа - 8×УК-10-1125 /3, с.572/
Таким образом, полная мощность, потребляемая заводом, определится,
кВА,
.
3.
Проектирование схемы электроснабжения промышленного предприятия
3.1
Определение способа питания и номинального напряжения
Питание осуществляется от подстанции энергосистемы
неограниченной мощности. Расстояние от подстанции до завода 3,5 км.
Снабжение завода будет осуществляться посредством воздушных
линий электропередачи на стальных опорах. На ее сооружение уйдут меньшие
затраты, чем на кабельные линии (КЛ) аналогичного класса напряжения. Учитывая,
что на заводе имеются потребители первой категории, необходимо предусмотреть
электропитание завода по двум питающим линиям /2, с.108/ и установку двух
трансформаторов на заводской подстанции для более надежного электроснабжения.
Схему внешнего электроснабжения выберем по /5, с.509/ и представим ее на
рисунке 2.
Рисунок 2 - Схема внешнего электроснабжения завода
Определим рациональное напряжение питающих линий /2, с.55/, кВ,
где l - расстояние от источника питания, км;
P - передаваемая мощность, равная расчетной нагрузке предприятия,
отнесенной к шинам ВН ГПП, МВт.
Далее по стандартной шкале выбираем значение номинального
напряжения 35 кВ, так как использование напряжения 110 кВ экономически не
целесообразно ввиду малой передаваемой мощности. По этой же причине не
рационально питание по трем и более линиям. Поэтому нет причины рассматривать альтернативный
вариант электроснабжения данного завода.
3.2
Определение сечения питающих ЛЭП
Питающие линии выполняем проводом марки АС. Расчетный ток
линии, А,
.
Экономически целесообразное сечение провода, мм2,
,
где jЭК - экономическая плотность тока /2, с.65/, при
.
По определенному сечению выбираем ближайшее стандартное сечение
провода для ЛЭП 35 кВ - АС 70/11 и его характеристики /5, с.683/:
Z0=0,428+j0,432 Ом/км;доп=265 A,
где Iдоп - допустимый ток нагрузки.
Проведем проверку провода по нагреву,
,
=>
.
Проверка сечения по допустимой потере напряжения, в нормальном и
послеаварийном режимах, В,
,
,
,
.
Потери меньше 5%. Таким образом, провод АС-70/11 удовлетворяет
всем условиям.
3.3 Выбор
оборудования на ГПП
Для выбора номинальной мощности трансформаторов на ГПП,
определяем предварительно мощность трансформаторов при аварийной перегрузке,
кВ·А,
,
Где kав - коэффициент аварийной перегрузки.
Выбираем трансформатор ТДНС-10000/35 /5, с.690/. Характеристики
трансформатора приведены в таблице 4.
Таблица 4 - Характеристики трансформатора
|
Тип
трансформатора
|
Uном, кВ
|
Потери, кВт
|
uк, %
|
Ix, %
|
|
ВН
|
НН
|
∆Pк
|
∆Px
|
|
|
|
ТДНС 10000/35
|
35
|
6,3
|
60
|
12,5
|
8,0
|
0,6
|
Напряжение на НН принимаем равным 6,3 кВ, так как потребители
10 кВ отсутствуют.
Коэффициент загрузки трансформатора,
.
Коэффициент загрузки не должен превышать величины 60-70%, в нашем
случае это условие выполняется.
Коэффициент послеаварийной перегрузки трансформатора,
Коэффициент перегрузки не должен превышать величины 130-140%, в
нашем случае это условие выполняется.
Для выбора выключателей на ГПП ВН необходимо определим ток,
который возникает при КЗ, кА,
,
,
.
По данным расчета и напряжению выбираем выключатели типа
ВВУ-35А-40/2000У1 /3, с.238/.
3.4 Выбор
оптимального варианта внешнего электроснабжения завода
В связи с тем, что мы рассматриваем только один вариант
внешнего электроснабжения завода, то в данном пункте просчитаем основные
экономические показатели.
Стоимость двух выключателей, применяемых на подстанции, тыс.
руб.,
,
где
- количество выключателей;
- стоимость одного выключателя /3, с.238/.
Стоимость сооружения воздушной линии 35 кВ на стальных одноцепных
опорах, тыс. руб. /3, с.563/,
,
где l - протяженность ЛЭП, км;
Kуд -
стоимость одного км ЛЭП, тыс. руб. /км.
Стоимость двух трансформаторов ТДНС-10000/35, тыс. руб.,
,
где
- количество трансформаторов;
- стоимость одного трансформатора /3, с.143/.
Суммарные капитальные затраты на сооружение ГПП, тыс. руб.,
.
Суммарные амортизационные отчисления, тыс. руб.,
,
где
- норма амортизации, которая определяется
с учетом срока полезного использования
объекта /2, с.100/.
Суммарные расходы на ремонт и обслуживание, тыс. руб.,
,
где pэ. р. - норма отчислений на ремонт и эксплуатацию
/2, с.104/.
Годовые потери активной мощности в линиях, кВт,
,
где
r0 -
удельное сопротивление проводов, Ом/км;
l - длина линии, км;
nц -
количество цепей;
- расчетная мощность завода, МВА.
Для определения годовых потерь энергии в линиях, найдем время
использования максимума потерь τnax, ч,
,
где Tmax - время использования максимума активной
нагрузки в год, ч.
Тогда годовые потери энергии в линиях,
,
,
Годовые потери электроэнергии в трансформаторах,
,
,
где ΔPх - потери холостого хода, кВт;
ΔPк - потери короткого замыкания, кВт;
nТ -
количество трансформаторов;
SТ. НОМ -
номинальная мощность трансформатора, кВА.
Стоимость годовых потерь в линиях и трансформаторах, тыс. руб.
/год,
,
где
- стоимость 1
электроэнергии, тыс. руб., /7, с.222/.
Суммарные ежегодные издержки, тыс. руб. /год,
.
Приведенные затраты, тыс. руб. /год,
,
где ЕН=0,125 1/год - нормативный коэффициент
эффективности капиталовложений в электроэнергетику (при нормативном сроке
окупаемости - 8 лет).
3.5 Выбор
местоположения главной понизительной подстанции
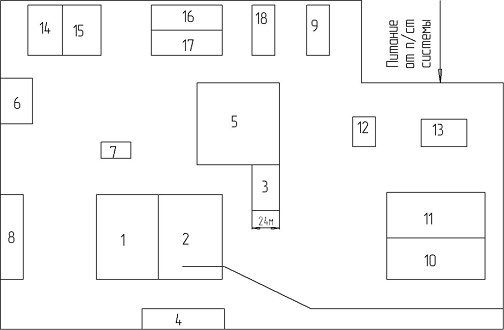
Местоположение главной понизительной подстанции (ГПП)
определим методом картограммы нагрузок. Для этого определим координаты
геометрического центра каждого здания и сведем их в таблицу 6. Тогда координаты
ГПП определятся из следующих формул:
,
.
Таблица 6 - Геометрические координаты центров зданий, (1мм=5м),
|
№
|
1
|
2
|
3
|
4
|
5
|
6
|
7
|
8
|
9
|
|
776,9643,9717,1272,7221,6244,22163,3342,4360,5
|
|
|
|
|
|
|
|
|
|
|
хi
|
26,5
|
41
|
56
|
39
|
51
|
3,5
|
25
|
20,5
|
70,5
|
|
yi
|
19,5
|
19,5
|
30
|
2
|
45
|
60
|
40
|
2,5
|
65,5
|
|
xi∙ 205882640040158106351130285554083701925415
|
|
|
|
|
|
|
|
|
|
|
yi∙ 1515012556215135459972146528653285623613
|
|
|
|
|
|
|
|
|
|
|
№
|
10
|
11
|
12
|
13
|
14
|
15
|
16
|
17
|
18
|
|
16361631,2236,3392,8376,2413,4148,9797,5594,9
|
|
|
|
|
|
|
|
|
|
|
хi
|
105,5
|
105,5
|
79,5
|
97
|
10
|
20,5
|
41
|
41
|
57,5
|
|
yi
|
15,5
|
26
|
43
|
43
|
65
|
65
|
68,5
|
63
|
65,5
|
|
xi∙ 17259817209218786381023762847561053269834207
|
|
|
|
|
|
|
|
|
|
|
yi∙ 253584241110161168902445326871102005024338966
|
|
|
|
|
|
|
|
|
|
Определяем координаты ГПП, м:
,
.
Рисунок 3 - Схема расположения ГПП
4.
Проектирование схемы внутреннего электроснабжения промышленного предприятия
4.1
Выполнение эскиза схемы с указанием распределительных пунктов и
трансформаторных подстанций цехов
Проектирование систем внутреннего электроснабжения начинаем
со схематичного расположения прокладываемых КЛ по территории завода, а также
указания расположения трансформаторных подстанций (ТП).
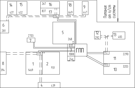
Рисунок 4 - Схема внутреннего электроснабжения предприятия.
На рисунке 4 штриховыми линиями показаны кабельные линии
напряжением 0,4 кВ, а сплошными линиями - 6,0 кВ. Цифрами от 1 до 18 обозначены
заводские цеха, остальные цифры - полные мощности этих цехов, кВА.
4.2 Выбор
сечения кабельных линий
КЛ и их сечения выбираем:
по экономической плотности тока;
по допустимому току;
Выбранный по нормальному режиму кабель проверяют:
на термическую стойкость;
на потери напряжения.
Определим сечения КЛ для каждого участка и проверим их по
техническим условиям. Расчет покажем на примере участка КЛ от ГПП до ТП № 2,
результаты расчетов по остальным участкам приведем в таблице 7.
Длительный ток по КЛ, А,
Предварительное сечение кабеля, мм2,
,
где
jЭ -
нормированная плотность тока /2, табл.4.1/ для кабеля с бумажной изоляцией,
А/мм2.
Выбираем кабель с сечением равным 120 мм2 (ААШв-6-3×120 /5, с.674/). Для этого кабеля погонные
параметры составят:
r0=0,258 Ом/км,
х0=0,076 Ом/км.
Проверим выбранный кабель по нагреву от протекания токов КЗ.
Периодическая составляющая тока КЗ, кА,
,
где ZКЗ - сопротивление от источника до точки КЗ, Ом.
,
где
- сопротивление питающей системы, Ом;
- сопротивление ЛЭП 35 кВ, Ом (см с.11);
- сопротивление трансформаторов ГПП на стороне 35 кВ;
- сопротивление КЛ завода, Ом;
- коэффициент трансформации соответствующей ступени.
(см. стр 13).
Сопротивление двухобмоточного трансформатора на ГПП, ТДНC-10000/35 /5, с.690/, Ом,
.
Сопротивление КЛ, Ом,
,
где
- длина участка КЛ (см. рисунок 4), км.
Тогда суммарное сопротивление, Ом,
Максимальный тепловой импульс КЛ, кА2·с,
,
где Та - постоянная времени затухания периодической
составляющей тока КЗ выбранная по /8, с.150/;
tотк -
полное время отключения,
.
Минимальное сечение по условию термической стойкости, мм2,
где С - функция значение которой выбирается по /8, с. 192/.
Выбранное сечение кабеля проходит по нагреву 70>34,5.
Теперь проверим сечение по допустимой потере напряжения.
Потеря напряжения в нормальном режиме работы, %,
,
где
и
- суммарные активная и реактивная мощности, протекающие по
участку КЛ от ГПП до ТП №1 (определено по таблице 3).
Потеря напряжения в послеаварийном режиме работы, при обрыве одной
цепи КЛ, %,
.
Выбранное сечение КЛ удовлетворяет проверке по допустимой потере
напряжения.
Таблица 7 - Результаты расчета проверок для КЛ
|
Участок
|
Si-j
|
nЦ
|
Iрасч, А
|
FКЛ, мм2
|
ZКЗ, Ом
|
IПО, кА
|
BК, кА2·с
|
Fтер, мм2
|
|
ГПП-Цех7
|
2703
|
2
|
130,0
|
92,9
|
0,45
|
7,99
|
10,55
|
33,14
|
|
ГПП - ТП2
|
3065
|
2
|
147,5
|
105,4
|
0,43
|
8,46
|
11,45
|
34,53
|
|
ГПП-ТП3
|
3203
|
2
|
154,1
|
110,1
|
0,44
|
8,29
|
11,35
|
34,37
|
|
ГПП-ТП4
|
3350
|
2
|
161,2
|
115,1
|
0,45
|
8,08
|
10,78
|
33,51
|
|
ГПП-ТП5
|
3233
|
2
|
155,5
|
111,1
|
0,45
|
8,15
|
10,97
|
33,79
|
|
Участок
|
Тип
|
l, км
|
R0, Ом/км
|
X0, Ом/км
|
ZКЛ, Ом
|
Pi-j, кВт
|
Qi-j, квар
|
∆U%П/АВ
|
|
ГПП-Цех7
|
2×ААШв-6-3×95
|
0,149
|
0,326
|
0,078
|
0,050
|
2163,3
|
2458,6
|
0,34
|
|
ГПП - ТП2
|
2×ААШв-6-3×120
|
0,054
|
0,258
|
0,076
|
0,015
|
2260,3
|
2059,1
|
0,10
|
|
ГПП-ТП3
|
2×ААШв-6-3×120
|
0,064
|
0,258
|
0,076
|
0,017
|
1636,0
|
2754,0
|
0,10
|
|
ГПП-ТП4
|
2×ААШв-6-3×120
|
0,148
|
0,258
|
0,076
|
0,040
|
2935,5
|
1551,6
|
0,33
|
|
ГПП-ТП5
|
2×ААШв-6-3×120
|
0,120
|
0,258
|
0,076
|
0,032
|
2035,4
|
2253,6
|
0,21
|
Расчет кабелей 0,4 кВ:
Расчет кабелей 0,4 кВ производится аналогично кабелям 6 кВ
(см. выше), за исключением определения сопротивления от источника до точки КЗ,
Ом,
,
где
- сопротивление питающей системы, Ом;
- сопротивление ЛЭП 35 кВ, Ом;
- сопротивление трансформаторов на 35 кВ (ПС, приведенное к
стороне 35 кВ) и 35 кВ (ГПП);
- сопротивление КЛ 10 кВ завода, Ом;
- коэффициент трансформации соответствующей ступени.
- сопротивление трансформаторов 10 кВ, соответствующей ТП Ом;
- сопротивление КЛ 0,4 кВ Ом /9, с.54/;
4.3 Выбор
цеховых трансформаторов
Для выбора номинальной мощности цеховых трансформаторов,
определяем предварительно мощность трансформаторов при аварийной перегрузке в
ТП1, кВ·А,
,
где kав - коэффициент аварийной перегрузки.
Выбираем 2 трансформатора ТМ-1000/6 /6, c.126/. Характеристики трансформатора приведены в таблице 9.
Коэффициент загрузки трансформатора,
.
Коэффициент после аварийной перегрузки трансформатора,
.
Выбор остальных цеховых трансформаторов сведем в таблицу 8.
Таблица 8 - Выбор цеховых трансформаторов
|
№ ТП
|
    Тип трансформатора
|
|
|
|
|
|
|
ТП 1
|
1356
|
968,6
|
1000
|
135,6
|
67,8
|
2×ТМ-1000/6
|
|
ТП 2
|
3065
|
2189,3
|
2500
|
122,6
|
61,3
|
2×ТМ-2500/6
|
|
ТП 3
|
3203
|
2287,9
|
2500
|
128,1
|
64,1
|
2×ТМ-2500/6
|
|
ТП 4
|
2703
|
1930,7
|
2500
|
108,1
|
54,1
|
2×ТМ-2500/6
|
|
ТП 5
|
3233
|
2309,3
|
2500
|
129,3
|
64,7
|
2×ТМ-2500/6
|
Таблица 9 - Характеристики трансформаторов
|
№ ТП
|
Тип
трансформатора
|
Uном, кВ
|
Потери, кВт
|
uк, %
|
ix, %
|
Цена, тыс. руб.
|
|
|
ВН
|
НН
|
∆Px
|
∆Pк
|
|
|
|
|
ТП1
|
ТМ-1000/6
|
6
|
0,4
|
2,45
|
11
|
5,5
|
1,4
|
2,965
|
|
ТП 2 ТП 3 ТП 4
ТП 5
|
ТМ-2500/6
|
6
|
0,4
|
3,85
|
23,5
|
6,5
|
1
|
5,8
|
4.4 Расчет
токов КЗ для выбора коммутационного оборудования
Выбор разъединителей и проверка выключателей на
высокой стороне ГПП
На стороне ВН выбираем выключатель типа ВВУ-35А40/2000У1 и
разъединитель типа РНД 3.2-35/1000У1 /3, с.268/, их основные характеристики
приведены в таблице 10.
Определим параметры для выбора оборудования:
. Номинальное напряжение 35 кВ;
2. Рабочий ток максимального режима, А,
;
3. Проверка по электродинамической стойкости
Ударный ток, кА,
где
- ударный коэффициент /8, с.150/,
Периодическая составляющая тока КЗ, кА,
,
где ZКЗ - сопротивление от источника до точки КЗ (см. с.12);
4. Проверка по термической стойкости
Максимальный тепловой импульс, кА2·с,
,
где Та - постоянная времени затухания периодической
составляющей тока КЗ выбранная по /8, с.150/;
tотк -
полное время отключения,
.
Таблица 9 - Основные характеристики разъединителя
|
Условия выбора
|
ВВУ-35А40/2000У1
|
РНДЗ.2-35/1000У1
|
Расчетные
параметры
|
|
Uном ≥ Uрасч, кВ
|
35
|
35
|
35
|
|
Iном. откл ≥ Iрасч. КЗ, кА
|
40
|
-
|
4,95
|
|
Iном ≥ Iраб мах, кА
|
2000
|
1000
|
213,7
|
|
Iпр скв ≥ iу,
кА
|
102
|
63
|
11,26
|
|
I2тер·tтер≥BK, кА2·с
|
402·3=4800
|
252·4=2500
|
3,92
|
Выбранные выключатели и разъединители удовлетворяют всем
условиям проверки.
Выбор выключателей и разъединителей на низкой
стороне ГПП
На стороне НН выбираем выключатель типа ВВЭ-10-20/1600У3 /3,
с.232/ и разъединитель типа РВРЗ-III-2-10/2000 У3 /3, с.264/, их основные
характеристики приведены в таблице 10.
Определим параметры для выбора оборудования:
. Номинальное напряжение 6 кВ;
2. Рабочий ток максимального режима, А,
;
3. Проверка по электродинамической стойкости
Ударный ток, кА,
где
- ударный коэффициент /8, с.150/;
Периодическая составляющая тока КЗ, кА,
,
где ZКЗ - сопротивление от источника до точки КЗ, Ом,
где
- сопротивление питающей системы, Ом (см.
с.12);
- сопротивление ЛЭП 35кВ, Ом (см. с.11);
- сопротивление трансформаторов ГПП на стороне 35 кВ (см. с.18);
- коэффициент трансформации соответствующей ступени.
4. Проверка по термической стойкости
Максимальный тепловой импульс, кА2·с,
,
где Та - постоянная времени затухания периодической
составляющей тока КЗ выбранная по /8, с.150/;
tотк -
полное время отключения,
.
Таблица 10 - Основные характеристики разъединителя
|
Условия выбора
|
ВВЭ-10-20/1600У3
|
РВРЗ-III-2-10/2000 У3
|
Расчетные
параметры
|
|
Uном ≥ Uрасч, кВ
|
10
|
10
|
6
|
|
Iном. откл ≥ Iрасч. КЗ, кА
|
20
|
-
|
8,46
|
|
Iном ≥ Iраб мах, кА
|
2000
|
2000
|
1187
|
|
Iпр скв ≥ iу,
кА
|
52
|
85
|
20,3
|
|
I2тер·tтер≥BK, кА2·с
|
202·3=1200
|
31,52·4=3969
|
11,46
|
Выбранные выключатели и разъединители удовлетворяет всем
условиям проверки.
5.
Определение приведенных затрат на сооружение проектирования внутреннего
электроснабжения
Суммарные капиталовложения, тыс. руб.,
.
где
- капитальные вложения в закрытое
распределительное устройство на 10 отходящих линий /1, с.334/, равные 95,0 тыс.
руб.;
- капитальные вложения в КУ /8, с.340/, тыс. руб.,
.
- капитальные вложения в кабельные линии /8, с.330/, тыс. руб.,
- капитальные вложения в трансформаторы /3, с.127/, тыс. руб.,
.
Суммарные годовые издержки
Суммарные годовые издержки,
.
где
- издержки на амортизацию и обслуживание
закрытого распределительного устройства /8, с.315/, тыс. руб.,
.
- издержки на амортизацию и обслуживание КУ, тыс. руб.,
.
- издержки на амортизацию и обслуживание КЛ, тыс. руб.,
.
- издержки на возмещение потерь электроэнергии:
.
Где ΔА -
суммарные потери электроэнергии зависящие от нагрузки;
β - стоимость 1 кВт·ч потерь /8, с.317/.
Результат расчета сведем в таблицу 11.
Таблица 11 - Издержки на возмещение потерь электроэнергии
|
Участок
|
nЦ
|
Iрасч, А
|
Rуч, Ом
|
τ, ч
|
β, тыс.
руб/ (кВт∙ч)
|
ИΔА, тыс. руб
|
|
ГПП-ТП1
|
2
|
111,2
|
0,675771
|
3367
|
0,6∙10-5
|
10,2445694
|
|
ГПП-ТП2
|
2
|
165,6
|
0,674135
|
|
|
10,8773679
|
|
ГПП-ТП3
|
2
|
74,3
|
0,681633
|
|
|
11,0922704
|
2
|
161,4
|
0,672626
|
|
|
5,66151898
|
|
ГПП-П15
|
2
|
130,1
|
0,673282
|
|
|
5,84579349
|
|
Σ
|
43,7215203
|
Суммарные годовые издержки, тыс. руб.,
.
Суммарные затраты, тыс. руб.,
.
Список
использованных источников
1.
Синенко, Л.С. Системы электроснабжения. / Л.С. Синенко., Ю.П. Попов., Е.Ю.
Сизганова., А.Ю. Южанников - Красноярск.: ИПЦ КГТУ, 2003. - 84 с.
.
Электроснабжение: Учеб. пособие по курсовому и дипломному проектированию: В 2
ч. Ч.1/Л.С. Синенко, Т.П. Рубан, Е.Ю. Сизганова, Ю.П. Попов. Красноярск: ИПЦ
КГТУ, 2005.135 с.
.
Неклепаев, Б.Н. Электрическая часть электростанций и подстанции. Справочные
материалы для курсового и дипломного проектирования: Учеб. пособие для вузов /
Б.Н. Неклепаев, И.П. Крючков. - Москва: Энергоатомиздат, 1989. - 608 с.: ил.
.
Пособие к курсовому и дипломному проектированию для электроэнергетических
специальностей: Учебное пособие для студентов вузов / В.М. Блок, Г.К. Обушев,
Л.Б. Паперно и др.; Под ред.В.М. Блок. - М.: Высш. школа, 1981. - 304 с., ил.
.
Передача и распределение электрической энергии: Учебное пособие/ А.А.
Герасименко, В.Т. Федин. - Ростов-н/Д.: Феникс; Красноярск: Издательские
проекты, 2006. - 720 с.
.
Рожкова, Л. А Электрооборудование станции и подстанции: Учеб. пособие / Л.Д.
Рожкова, В.С. Козулин. - Москва: Энергоатомиздат, 1987. - 648 с.
.
Электроснабжение промышленных предприятий: учебник для студентов высших учебных
заведений / Б.И. Кудрин. - 2-е изд. - М.: Интермет Инжиниринг, 2007. - 672 с.:
ил.
.
Справочник по проектированию электроэнергетических систем. / Сост. В.В.
Ершевич, А.Н. Зейлигер, Г.А. Илларионов и др.; Энергоатомиздат. - М, 1985. -
352 с.
.
СТП КГТУ 01-02. Общие требования к оформлению текстовых и графических
студенческих работ. Текстовые материалы и иллюстрации; ИПЦ КГТУ. - Красноярск,
2004. - 54с.