Материал: Проектирование кафе

Внимание! Если размещение файла нарушает Ваши авторские права, то обязательно сообщите нам

Проектирование кафе

Введение

строительство планировочный архитектурный фундаментный

В соответствии с программой президента Республики Казахстан Н.А. Назарбаева для скорейшего решения жилищной проблемы необходимо развивать все методы жилищного строительства с максимальным использованием всех имеющихся материальных ресурсов, в том числе монолитных стен для строительства в первую очередь малоэтажных и многоэтажных домов, школ и детских учреждений. Необходимо также всемерно использовать монолит для строительства многоэтажных зданий ответственного градостроительного значения.

В настоящее время в РК начато широкомасштабное строительство жилого и промышленного сектора. Данный факт вызывает предложения по увеличению строительных площадей и вызывает необходимость в создании новых модернизированных проектов во всех отраслях промышленного и городского строительства.

Для обеспечения лучшей системы обслуживания населения, а так же в целях градостроительства, учреждения и предприятия располагают в общественных центрах городов, планировочных и жилых районах, микрорайонах и сельских населенных пунктах.

Для облегчения доступности и создания лучшей связи населения с учреждениями обслуживания устанавливают допустимый радиус в пределах пешеходного сообщения от детских садов - яслей - 300 м, до образовательных школ, предприятий торговли, общественного питания и бытового обслуживания - 500 м. Общественные центры городов проектируют так, чтобы время поездки не превышало 1 часа 30 минут.

В данной работе планируется разработать основные разделы архитектурно - строительного проекта, выполнить расчеты фундамента и многопустотной железобетонной плиты перекрытия, объемы строительного производства, финансовые затраты, экономическую эффективность строительства.

В условиях рыночной экономики перед капитальным строительством стоят сложные задачи. Необходимо ускорить ввод объектов в эксплуатацию, сократить сроки строительства, объем незавершенного строительства, что позволит уменьшить инвестиционный цикл, освоить новые мощности и повысить производственный потенциал отраслей народного хозяйства.

Важной проблемой является выполнение жилищной программы, социальная ориентация строительной продукции и одновременное усилие реконструктивной направленности капиталовложений.

На сегодняшний день в целом по Республике сдаются миллион квадратных метров жилья, в том числе и коммунальное. Программа жилищного строительства рассчитана на три года: с 2005 по 2007 год. К примеру, в нашей области за прошедший 2005 год программа жилищного строительства была выполнена. Ключи от новых домов получили сотни человек.

Строительство - ключевая отрасль народного хозяйства. Со строительством прямо связана интенсификация всех без исключения отраслей экономики, повышения эффективности производства, ускорение научно-технического прогресса, решение насущных задач общества.

Дипломный проект кафе-столовой на 50 мест по пр. Абулхаирхана города Уральска разработан в соответствии с заданием на дипломное проектирование.

Целью данного дипломного проекта является разработка основных разделов архитектурно - строительного проекта, выполнение расчетов фундамента и многопустотной железобетонной плиты перекрытия, объемов строительного производства, финансовых затрат на строительство.

1. Обоснование темы проекта

1.1   Исходные данные

Дипломный проект кафе-столовой на 50 мест по пр. Абулхаирхана города Уральска разработан в соответствии с заданием на дипломное проектирование. Место строительства: г. Уральск, район автомобильного рынка. Здание кафе-столовой решено в двухэтажном исполнении.

1.2   Область применения

Здание кафе-столовой предназначено для строительства в 3-ем климатическом районе, относится ко 2 классу, 2-ой степени долговечности, 2-ой степени огнестойкости.

Расчетная температура наружного воздуха - 31оС.;

Снеговая нагрузка - 70 кгс/ м2;

Скоростной напор ветра - 38 кгс/ м2;

Сейсмичность не более 6 баллов;

Зона влажности нормальная;

Характеристика участка строительства: площадка горизонтальная, грунты непучинистые, непросадочные, грунтовые воды на глубине 6 м.

Участок граничит: С юга - территория «Универтекс»

С запада - свободная территория

С востока - автостоянка

С севера - авторынок

1.3 Архитектурно-планировочные решения

Здание кафе-столовой решено в двухэтажном исполнение с высотой помещений 3,0 м, основные его помещения сгруппированы по функциона льному признаку и размещены поэтажно, с учетом целесообразного зонирования.

За условную отметку 0,000 принята отметка пола первого этажа. Размеры в осях 18,0 х 20,1 м.

В здании кафе-столовой предусматриваются лестничные клетки, вестибюль с гардеробом для клиентов, банкетный зал на 30 посадочных мест, кафе-столовая на 20 посадочных мест, складское помещение, кладовая продуктов, кладовая уборочного инвентаря, кухня для приготовления горячих и холодных блюд с оборудованием работающем на электричестве, моечной столовой посуды, санузлы.

На 2-ом этаже размещаются бильярдная и зал мелких игр, администрация. Работа кафе предусматривается на полуфабрикатах.

Ассортимент включает в себя: холодные закуски, горячие вторые блюда и прохладительные напитки. Скоропортящиеся продукты хранятся в бытовых холодильниках. Все оборудование кухни принято серийное. Планировка производственных помещений исключает пересечение грязных и чистых потоков. Загрузка продуктов производится через отдельный вход. Помещения имеют традиционную прямоугольную форму.

Для наружной отделки применяется цветной облицовочный кирпич, структурная штукатурка, керамическая плитка, высококачественная покраска. Входные двери и оконные переплеты.

Полы в помещениях в зависимости от их функционального назначения из керамогранита, паркетные, линолеумные и из керамической плитки. Потолки затираются шпаклевкой и окрашиваются водоэмульсионной краской. Отделка внутренних поверхностей стен предусматривается улучшенной штукатуркой с последующей окраской водоэмульсионными красками. Стены моечной, кухни и санузлов облицовываются керамической плиткой на высоту 2,2 м.

1.4 Конструктивные решения и технические указания к проекту

Пространственная жесткость здания обеспечивается совместной работой стен и перекрытий, рассматриваемых как жесткие неизменяемые диски.

Фундаменты

Под наружные и внутренние стены запроектированы из сборных железобетонных элементов по ГОСТ 13579-78*.

Фундаментные подушки марки Ф-16, фундаментные блоки марки-ФБС-24-6-6, ФБС-24-4-4, ФБС-9-6-6, ФБС-9-4-4.

Приведенные в проекте чертежи фундаментов являются примером решения, разработанным для грунтов со следующими характеристиками: φ=200, с=0,25 кгс/см2, γ= 2050 кгс/ м3, Е= 170 кгс/см2.

Под зданием запроектирован подвал.

Основание фундаментов является грунт с расчетным сопротивлением R=1,5 кг/см2. Фундаментные плиты укладывать на песчаную подсыпку толщиной 10 см.

Горизонтальная гидроизоляция выполняется из цементнопесчаного раствора составом 1:2 на отм. -3,000, -0,320.

Армированный шов выполняется по всему периметру наружных и внутренних стен на отм. -3,020.

Стены

Наружные стены решены из силикатного кирпича М 100 на растворе М 50 и внутренние стены решены из силикатного кирпича М 100 на растворе М25 толщиной 640 мм и 380 мм.

Наружные и внутренние стены в процессе кладки необходимо армировать прямоугольными сетками из проволоки Ду 4 мм с шагом стержней 40х40.

Над проемами на отм. -0,450 проложить арматуру 4 Ø 20 АIII

ℓ=1400 м - 69,2 кг. Кирпичные столбы выполнить из керамического кирпича М 100 на растворе М 50 с армированием Ø 5 Вр с шагом стержней 100х100 через 3 ряда кладки на высоту проема. Приямки выполнить из керамического кирпича М 100 на растворе М 50.

В откосы дверных и оконных проемов заложить деревянные антисептированные пробки не менее двух с каждой стороны. Производство бетонных и железобетонных работ вести в соответствии со СНиП 3.03.01-87.

Покрытие

Перекрытия - из сборных железобетонных панелей с круглыми пустотами по серии 1.141-1 в 60, 63.

Швы между панелями, а также между панелями и стенами должны быть тщательно заделаны цементным раствором М 100 на всю высоту шва. Торцы панелей заделать бетоном класса В 7.5

Панели крепятся к стенам и между собой анкерами. Анкера А1, А2, А3 установить в швы между плитами до заделки швов. Отверстия в плитах перекрытия для пропуска сантехнических коммуникаций выполнить по месту, не нарушая целостности несущих каркасов плит, с предварительной рассверловкой по контуру. При производстве работ по выполнению отверстий, в случае нарушения защитного слоя несущих каркасов плит, следует восстановить защитный слой из бетона М 200 на мелком щебне толщиной не менее 15 мм.

При привязке проекта, производстве работ и осуществлении надзора за строительством особое внимание должно быть обращено на тщательную заделку цементным раствором марки «100» швов между панелями и тщательное выполнение монолитных участков, так как при подборе панелей по несущей способности учтена их совместная работа между собой на нагрузку от перегородок.

Крыша

Запроектирована с проходным чердаком высотой 2300 мм. Основные несущие деревянные элементы изготовить из хвойных пород, а второстепенные из лиственных пород по ГОСТ 9463-88 и ГОСТ 8486-86. Влажность древесины не должна превышать 20%. Все деревянные конструкции крыши покрыть огнезащитной суперфосфатной обмазкой, которая выполняется строительной организацией по рецепту:

.        суперфосфат по ГОСТ 5956-78* - 70%

.        вода - 30%

Все деревянные конструкции крыши, соприкасающиеся с кирпичной кладкой и железобетоном, обернуть толем.

Крепление стропил выполнить скруткой из проволоки 2 Ø 4 через одну к анкерам, заложенным в кирпичную кладку.

Конструктивное решение (крепления и сопряжения элементов, изоляцию толем и т.п.) смотреть серию 2.160-1 в. 1.

Кровля - металлочерепица.

Перемычки

Перемычки сборные железобетонные по серии 1.038.1-1.

Прогон ПРГ 60.2.5-А выполнить по аналогии прогона ПРГ 60.2.5-4 по

серии 1.225-2.11 с уменьшением его длины до 5,4 м.

Утеплитель

Утеплитель «Ursa» ПГ-30 γ =30 кг/м3 - 150 мм

Перегородки

Перегородки - кирпичные, толщиной 120 мм из силикатного кирпича М-75 на растворе М-25 и из красного кирпича в санузлах. Перегородки устраиваются на панель перекрытия по слою цементного раствора и имеют связь со стенами за счет выпуска кирпичей из кладки стен, перегородки длиной более 5 м армируется арматурой Ду 4-6 мм, через 6 рядов кладки.

Объемная масса материалов конструкции

Наружные стены 1600 кг/м3

Внутренние стены 1600 кг/м3

Бетон 2200 кг/м3

Нагрузки приняты по СН и П 2.01.07-85* «Нагрузки и воздействия». При расчете конструкции учтен коэффициент надежности γ =1,0

Защита конструкции от коррозии, гниения и возгорания.

Анкера панелей перекрытия и покрытия и другие соединительные элементы защищаются цементным раствором согласно

СН и П. II-23-81*. Все деревянные элементы защищаются, соприкасающиеся со стенами или бетонными и железобетонными конструкциями, покрываются толем и тщательно антисептируются водными растворами фтористого или кремнефтористого натрия согласно СН и П.

Все металлические конструкции должны быть окрашены эмалевыми красками за 2 раза.

1.5 Генеральный план

Генеральный план на строительство кафе расположенного по пр. Абулхаирхана г. Уральска разработан на основании СНиП 2.07.01-89 «Градостроительство. Планировка и застройка городских и сельских поселений».

Участок отведенный под строительство находится на территории автомобильного рынка. Рельеф участка спокойный. Привязка проектируемого здания выполнена от запроектированного участка. Здание ориентировано главным фасадом на восток.

Вертикальная планировка участка запроектирована в увязке с прилегающей территорией, с учетом организации нормального отвода атмосферных вод и оптимальной высоты привязки здания.

Отвод атмосферных вод (и талых) от здания осуществляется по спланированной поверхности в карты зеленых насаждений. Проектируемый уклон территории участка не превышает допустимых пределов и обеспечивает сток поверхностных вод от здания. Зеленые насаждения подобраны с учетом ассортимента местного питомника.

Основные технико-экономические показатели по генеральному плану

1.      Площадь участка -1733,75 м2

2.      площадь застройки -412,32 м2

.        Площадь покрытия -551,0 м2

.        Площадь озеленения -840,75 м2

.        Плотность застройки -20%

.        Процент озеленения -48%

Экспликацию зданий и сооружений генплана см. лист АС-1.

1.6 Инженерные оборудования

Водопровод - хозяйственно-питьевой от наружных сетей.

Канализация - хозяйственно - фекальная в наружную сеть.

Отопление - от наружных тепловых сетей, теплоноситель вода Т=950-700 С и 1500-700.

Вентиляция - приточно-вытяжная с механическим и естественным побуждением.

Освещение - лампами накаливания и люминесцентными светильниками.

Электроснабжение - от внешней сети напряжением 380/220 В.

Устройства связи - телефонизация, радиофикация, и озвучение, электрочасофикация, звонковая сигнализация, телевидение, пожарная сигнализация.

Горячее водоснабжение от наружной тепловой сети вода Т=650-700С.

1.7 Сводные спецификации

Экспликация помещений

№по плану

Наименование

Площадь, м 2

1

Тамбур

4,03

2

Вестибюль

60,04

3

Банкетный зал

47,73

4

Гардероб

6,88

5

Санузел

5,93

6

Комната уборочного инвентаря

1,46

7

Коридор

13,25

8

Складское помещение

33,03

9

Коридор

26,0

10

Кухня

23,14

11

Моечная

11,64

12

Кафе-столовая

63,64

13

Лестничная клетка 1

13,24

14

Лестничная клетка 2

14,43

15

Зал тихих игр

71,76

16

Холл

32,05

17

Бильярдная

132,87

18

Коридор

20,33

19

Санузел

12,5

20

Администратор

13,94

21

Администратор

16,36


Ведомость отделки помещений

Наименование или номер помещения

Потолок

Стены или перегородки

Низ стен или перегородок


Площадь

Вид отделки

Площ.

Вид отделки

Площ. м2

Вид отделки

Высота

1,2,4,13

Тамбур Вестибюль Гардероб Лестничная клетка 1

84,19

Водо-эмуль. покраска

153,45

Водо-эмуль. покраска




3,12

Банкетный зал Кафе-столовая

111,19

Водо-эмуль. покраска

147,0

Венециан. штук.




5,6,10 11

Санузел Комната убор. Инвентаря Кухня Моечная

42,17

Водо-эмуль. покраска

22,05

Водо-эмуль. покраска

39,9

Облицовка керам. глазур. плиткой

2100

7,8,9

Коридор Складское помещение

72,28

Водо-эмуль. покраска

92,03

Водо-эмуль. покраска

92,03

Эмаль

1500

16 18

Холл Коридор

52,38

Водо-эмуль. покраска

46,72

Водо-эмуль. покраска




15 17

Зал тихих игр Бильярдная

204,63

Водо-эмуль. покраска

142,58

Водо-эмуль. покраска




20 21

Администратор Администратор

30,3

Водо- эмуль. покраска

93,16

Водо-эмуль. покраска




19

Санузел

12,5

Водо-эмуль. покраска

24,3

Водо-эмуль. покраска

46,2

Облицовка керам. глазур. плиткой

2100

14

Лестничная клетка 2

14,43

Водо-эмуль. покраска

55,4

Водо-эмуль. покраска





Сбор нагрузок на плиту перекрытия

№ п/п

Наименование нагрузок

Подсчет нагрузок

Нормативные нагрузки

Коэффициент надежности

Расчетная нагрузка

1

А. Постоянные Керам. плитка - 10 мм, 1100 кг/м3

0,01*1100*9,81

110

1,3

143

2

Раствор 20 мм, 1800 кг/м3

0,02*1800*9,81

360

1,3

468

3

Цем-песч. стяжка - 30 мм, 1800 кг/м3

0,03*1800*9,81

540

1,3

702

4

ж/б панель покрытия

2950/6*1,5*9,81

3062

1,1

3369


итого


4072


4682


Б. Временные





1

Длительные


300

1,3

390

2

Кратковременные


1200

1,3

1560


итого


1500


1950


всего


5572


6632


Сбор нагрузок на плиту покрытия

№п/п

Наименование нагрузок

Подсчет нагрузок

Нормативные нагрузки

Коэффициент нагрузки

Расчетные нагрузки

1

А. Постоянные 3-х слойный рубероидный ковер

108*9,81*0,009

9,5

1,3

12,5

2

Цем-песч. стяжка 20 мм

1800*0,02*9,81

360

1,3

468

5

Гравий керамзитовый 340-180 мм, 600 кг/м3

0,22*600*9,81

1295

1,3

1685

7

ж/б панель перекрытия

2950/6,3*1,5*9,81

3062

1,1

3369


Итого


4132


4752


Б. Временные Длительная

-

-

-

-

2

Кратковременная


700

1,4

980


Итого


700


980


Всего


5427


6515









2. Расчетно-конструктивный раздел

.1 Расчет фундаментной подушки под внутреннюю стену

Требуется рассчитать и сконструировать фундамент под внутреннюю стену кафе по данным:

. Место строительства г. Уральлск

. Грунт основания - суглинок с параметрами:

(е=0,75; IL = 0,25; үll = 2,05 т/ м3; ф = 23о; Е = 17 МПа; Rо = 0,24 МПа).

Определение требуемых размеров фундамента

1.      расчетная схема

2.      подсчет нагрузок

нормативная Nнпокр=qн*Агр=5427*6,03=32,72 КН (2.1)

расчетная Nпокр=q* Агр=6515х6,03=39,29 КН (2.2)

сосредоточенная от перекрытия

нормативная Nнпер=5,57х6,03х2=67,77 КН (2.3)

расчетная Nпер=6,63х6,03х2=79,96 КН (2.4)

сосредоточенная от стены

нормативная Nн ст =Н*В*hст*p*q=25,2 х 1 х 0,38 х 2000 х 9,81=187,9 КН (2.5)

расчетная Nст= Nн ст*γf=187,9 х 1,1=206,7 КН (2.6)

суммарная вертикальные нагрузки на фундамент на уровне планировочной отметки

нормативная Nн = Nнпокр +Nнпер + Nн ст=29,42+67,17+45,6=141,2 КН (2.7)

расчетная Nст= Nпокр+ Nпер+ Nст=34,95+79,96+50,16=165,07 КН (2.8)

.        определяем предварительную ширину подошвы фундамента по формуле:

Атр= Nн / R0 -γср*dф=141,2/450-20*1,5=1,34 м (2.9)

Требуемая ширина подошвы фундамента

Втр=Атр/В=1,34/1=1,34 м (2.10)

Принимаем типовую подушку

Ф16 В=1,6 м L=2,38 м h=0,3 м m=2150 кг

Находим расчетное давление на грунт

R=γc1γc2/k (Мγ*kz*b*γII+Mq*d1II+(Mq-1) d (2.11) bγII+Mc*C11)=1.25*1/1.1 (0.69*1*0.6*20.5+3,65*1,5+6,24*25)=193,8КПа

Вес 1 м фундаментной плиты Ф 16 m=2150 кг

Gф=9,81*2150/2,38=8,86 КН

Вес стены фундамента состоящей из 2-х блоков Ф-24-6

Gст=9,81*/2*1300/2,38=10,7КН

Вес грунта

Gст=2*0,1*1,8*0,018=7 КН

Рср=(124,9+5,5+16,0+7)/1*0,8=189,0МПа

Условие Рср< R выполняется, следовательно принимаем Ф-16

Поперечная сила у грани стены

Q=Рср*1 (аф -в)/2=0,19*1 (0,8-0,4)/2=0,038МН (2.12)

Проверяем условие

Q< φbRbt*b*h0 (2.13)

,038<0,6*0,75*0,8*0,265=0,0954

,038<0,095 условие выполняется, и установка поперечной арматуры не требуется.

Изгибающий момент в сечении плиты у грани стены

М=0,125*рфф -в)2*в=0,125*0,19 (0,8-0,4)2*1=0,0038МН*м (2.14)

В качестве рабочих стержней принимаем арматуру А-III с Rs=365МПа

Требуемая площадь сечение арматуры Аs=0,0038*М/0,9

h0* Rs=0,0038/0,9*0,265*365=0,4*10-4 м2 =0,4см2

 

На подушку необходимо n=ln/8+1=2400/8+1=13 ст

Аs=0,4*1/13=0,031 м2

Принимаем 13О6 А-III (Аs=13*0,283=3,68 см2)

Шаг стержней S=200 мм

Продольная арматура О3 Вр-I

 

2.2 Расчет многопустотной плиты перекрытия ПК63-15

Исходные данные: плита будет изготавливаться по поточно-агрегатной технологии с электротермическим натяжением арматуры на упоры и тепловлажностной обработкой.

Бетон тяжелый класса

Продольная напрягаемая арматура класса А-IV

Поперечная арматура и сварные сетки из стали Вр-I

Монтажные петли из арматуры классаА-I

Плита армируется по типовой схеме и предназначена для покрытия гражданского малоэтажного здания.

Назначение здания: Кафе-столовая на 50 мест.

Максимальная нагрузка на плиту с полом из керамической плитки

. Керамическая плитка - 10 мм

. Раствор М150 - 20 мм

. Стяжка М50 - 30 мм

. Ж/б плита перекрытия

Расчетные характеристики материалов

Бетон класса В15 Rв=8,5МПа

Rвγв2=8,5*0,9=7,65МПа

Rвt=0,75МПа

Rвt γв0=0,75*0,9=0,675МПа

Rв, sn=11МПа

Rвt, sn=1,15МПа

Ев=20,5*103МПа

Напрягаемая арматура класса А-IV Rs=510Мпа

Rs, ser=590МПа

Еs=190*103МПа

Поперечная арматура и сварные сетки из стали Вр-I

О3 Вр-I Rs=375Мпа Rsw=270МПа

О4 Вр-I Rs=315Мпа Rsw=265МПа

О5 Вр-I Rs=360Мпа Rsw=260МПа Еs=170*103МПа

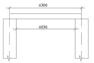
Схема опирания плиты ее конструктивные и расчетные размеры


Пролет и номинальная длина Lн=6300 мм

Конструктивная длина Lк= Lн-80-70=6300-80-70=6150 мм

Длина опоры: Lоп=120 мм

Расчетный пролет Lо= Lк - Lоп=6150-120=6030 мм

Конструктивная ширина Вк=1490 мм. Толщина плиты h=220 мм

Плита свободно опирается кирпичные стены, следовательно, ее можно рассчитывать как однопролетную неразрезную балку со свободным опиранием на концах.

Расчетная схема и расчетные усилия


Формулы расчетных усилий М=q*Lо2/8; Q= q*Lо/2 (2.15)

q-нагрузка на 1 пог. метр длины плиты.

Для определения погонной нагрузки необходимо найти равномерно распределенную нагрузку на 1 м2

Поверхности плиты с учетом нагрузки от собственного ее веса

Нагрузка на 1 м2 плиты

№ п/п

Наименование нагрузки

Подсчет нагрузки

Нормативная нагрузка

Коэф. надежности

Расчетные нагрузки

1

А. Постоянные Линолеум 5 мм, 1100 м3

0,005* 1100*9,81

54

1,3

70

2

Гипсобетонные плиты 50 мм, 1100 кг/м3

0,05*1100*9,81

540

1,3

701

3

Звукоизоляционная прокладка 24 мм; 350 кг/м3

0,025*350*9,81

86

1,3

112

4

Ж/б панель перекрытия

2950/ 6*1,5*9,8

3062

1,1

3369


ИТОГО


3742


4252


Б. Временные





1

Длительные


300

1,3

390

2

Кратковременные


1200

1,3

1560


ИТОГО


1500


1950


ВСЕГО


5242


6202


Погонная нормативная нагрузка на плиту qн= qн*В=5572*1,5=8358 н/м

В-ширина плиты

Погонная расчетная нагрузка q= q*В=6632*1,5=9948н/м=9,948 кн/м

Изгибающий момент от нормативной нагрузки

Мн = qн *Lо2 /8=8358*6,032/8=37882=37,88 кн*м

Изгибающий момент от расчетной нагрузки

М = q *Lо2 /8=9948*6,032 /8=44819=44,82 кн*м

Поперечная сила от нормативной нагрузки

Q=qн*Lо/2=8358*6,03/2=25132=25,13 кн

Поперечная сила от расчетной нагрузки

Q= q*Lо/2=9948*6,03/2=29733=29,73 кн

Расчетное сечение


Расчетным сечением многопустотной плиты является тавровое сечение. Для определения расчетных размеров таврового сечения заменим круглое сечение пустоты эквивалентным квадратом и найдем размер стороны квадрата

акв= 12*Ix/A=12*3136/198=13,8 см=П*d4 /64=3.14*15.94 /64=3136cм4

А=П*d2 /4=3,14*15,92 /4=198 cм2

 

Тогда толщина полки таврового сечения

hf=h - акв/2=22-13.8/2=4.1cм

Толщина ребра таврового сечения Вр=Вн-n* акв=146-7*13,8=49,4 см

n-количество пустот в плите.

Расчет прочности по нормальным сечениям


Схема расчетного сечения

1.      Величину предварительного назначаем σsр=0,75*Rs, ser=0,75*590=443МПа (2.17)

Отклонение от величины предварительного напряжения

Р=30+360/L =30+360/6,15=88,53 МПа (2.18)

Проверяем условие

Rs, ser-Р> σsр 590-88,53=501,47>443МПа

σsр>0,3* Rs, ser 443>0,3*590=177МПа

условие соблюдается

Окончательно оставляем величину предварительного напряжения арматуры σsр=443МПа

2.      Определяем случай расчета таврового сечения

Момент воспринимаемый сечением при х= h`F

М F= Rв* b`F*h`F(h0-0,5 h`F)=7,65*106*1,46*0,041 (0,19 - (2.19) 0,5*0,041)=0,0778*106Па=77,8кН*м

М=44,82кН*м< М F=77,48кН*м

Нейтральная ось проходит в полке и сечение рассчитывается как прямоугольное шириной В=146 см и высотой h=22 см.

3.      Определение граничных коэффициентов

ω=α1-0,008 Rв=0,85-0,008*7,65=0,787

α1=0,85 для тяжелого бетона

 (2.20)

4.      Определяем случай расчета прямоугольного сечения

 (2.21)

Имеем первый случай расчета прямоугольного сечения

Из таблицы коэффициентов при А0 =0.09

. Коэффициент условия работы арматуры:

 (2.22)

-для арматурыры кл. А-IV

-для арматурыры кл. А-V, В-II, К-7, К-19

-для арматура кл. А-VI

Принимаем

. Требуемая площадь напрягаемой арматуры

 (2.23)

Принимаем 5

Схема армирования напрягаемой арматурой. Напрягаемая арматура размещается отдельными стержнями в ребра плиты не реже чем через 2 пустоты.

Определение геометрических характеристик приведенного сечения

Отношение модулей упругости


а) Площадь приведенного сечения

Аred = AB +n*ASP=b`F * h`F +(h - h`F)*bP+ uASP=149*4,1+(22-4,1)*49,4+7.92*3,93=1526,3см2

б) Статический момент площади приведенного сечения относительно оси 1-1.

red=SB+n *SSP=b`F*h`F +(h-h`F/ 2)+ (h-hB)*bP(h-hF/2)+uASP*aSP= 149*4,1 (22-4,1/2)+(22-4,1)*9830,7*(22-4,1/2)+7,92*3,93*3=12280,8см3

в) Расстояние от нижней грани до центральной тяжести приведенного сечения.

red=Sred/Ared=20335/1573,2= 12,93 см

г) Расстояние от верхней грани до центральной тяжести приведенного сечения.

red= h-yred= 22-12,93=9,67 см

д) Эксцентриситет усилия в напрягаемой арматуре относительно центральной тяжести сечения.

op= yred-aSP= 12,93-3=9,93 см

е) Момент инерции приведенного сечения

red= I в+ nI= b`F(h`F)3 + b`F*h`F(yred - h`F/2)2+ bP(h - h`F)3/12+ bP(h - h`F)

(yred-(h-h`F)/2)2+n*ASP*еор2=149*4,13/12+149*4,199 (9,67-4,1/2)2+49.4 (22-4.1) (12.93-22*4.1/2)2+7.92*3.93*9.932=76307cм2

ж) момент сопротивления относительно нижней грани

red=Ired/yred=76367/12,93=5902см3

и) момент сопротивления относительно верхней грани

W`red= I`red/y`red=76307/9,07=8415 см3

Потери предварительного напряжения и усилие обжатия бетона

1. σ1=0,03* σSP=0,03*443=13,3МПа

. Потери от температурного перепада

σ2=0 тк упоры находятся в камере и пропариваются одновременно.

3. Потери от деформации анкеров и стальной формы σ3=0 σ5=0 т.к. они должны быть учтены при определении длины заготовки арматуры из условий обеспечения начального предварительного напряжения усилие предварительного обжатия с учетом этих потерь при gsp=1

=gspsp1) - Asp=1 (443-13.3) - 9.86-100=423684.2н=423.68 кн

. Потери от быстропотехающей ползучести бетона при обжатии.

Для определения этой потери определим напряжение обжатие в бетоне на уровне ц.т. арматуры:

σ=R/A red +Rеоп/I red *y; y=еop=9.92 см

σвр=423.68*103/1573.2*104+423.68*103*0.0993*0.0993/76307*10=0.2693*

7+0.0547*108=0.8163*107Па=8.163 МПа

Передаточная прочность бетонавр=0.7B=0.7*15=10.5 МПа, В-класс бетона.

Потери от ползучести:

σ=40* σвр/Rвр*0,85 или σвр/Rвр< a

σ=0.85*40*a+0.85*90*b(σвр/Rвр-a) при σвр/Rвр>a

σвр/Rвр=8.163/14=0.583>a=0.5 при Rвр<15 МПа; b=2.5

σв=0.85*40*0.5+0.85*90*2.5 (0.583-0.5)=37.12 МПа

Первые потери σп123456=13.3+0+0+0+37.12=50.42 МПа

Напряжение в арматуре с учетом первых потерь:

σsp1= σsp-Asp=392,58*9,86*100=387080н=387,08кН

напряжения после обжатия

σвр1/Ared+Rеоп/I red *y=387,08/1513,2*10-4+387,08*103*0,0993/76307*

10-8*0,0993=0,746*107Па <0,95* Rвр=13,3МПа

напряжения не превышают предельно допустимые значения

потери происходящие после обжатия

а) от усадки σ8=35МПа

б) от ползучести

σ9=150*a σвр/Rвр=150*0,85*0,53=67,57МПа

вторые потери:

σп212=50,42+102,57=153МПа

усилия обжатия с учетом всех потерь

2= (σspп)* Asp=(443-153)*3,93*100=285940н=285,91кН

Расчет прочности по наклонным сечениям

. Определяем значение коэффициента φf

φf=0.75*(b`Fр) h`F/ вр*h0=(149-49,4)*4,1/49,4*19=0,435<5

2. Определяем значение коэффициента φп

φп=0,1*N/ Rвt - bp*h0

N= R2=285.94кН

φп=0,1*285,94/0,81*106*0,494*0,19=376*10-3=0,376<5

(1+φfп)=(1+0,435+0,376)=1,811>1,5

принимаем (1+φfп)=1,5

. Вычисляем значение Мв

Мв=φв2(1+φfп)*Rвt*h02=2*1,5*0,675*106*0,494*0,192=0,0378*106н*м=37,8кН*м

Φв2=2 для тяжелого бетона

. Длина проекции наклонной трещины

l0=Мв/0,5 Q<2* h0

l0=37,8/0,5*24,3=3,11>2* h0=0,38

принимаем l0=0,38

. Поперечное усилие в сжатом бетоне

Qв=Мв/ l0=37,8/0,38=99,5кН

6. Проверяем необходимость расчета поперечной арматуры

Qв=99,5кН>Q=29,7кН поперечная арматура по расчету не требуется и устанавливают ее на основании конструктивных требований. Диаметр поперечной арматуры принимаем наименьший Ø 3Вр-1

шаг поперечной арматуры на приопорном участке

S<h/2=220/2=110 принимаем S=100 мм

Так как в середине пролета поперечная сила равна нулю Q=0, каркасы устанавливаем только на приопорных участках

Длину каркасов принимаем приблизительно равной 1/4 lк

/4 lк=1/4*6150=1537,5

принимаем длину каркаса lк=1550 мм

1.      Проверка прочности бетона между трещинами

Q=0,3* φw1* φв1 *Rвt* в*h0= 0,3*1,042*0,9*7,65*106*0,494*0,19=224кН

φw1=1+5ύ*мw=1+5Еs/Eb*Asw/bp*s=1+5*170*103/24000*0,586/49,4*10=1,042

Еs=170*103МПа для Вр-1

Eb=24*103МПа для В

Asw=n* Asw=5*0.071=0.355cм 2

N=5 количество каркасов в сечении плиты.

Количество каркасов принимается равной количеству стержней напрягаемой арматуры

Φв1=1 - b*Rв=1-0,01*10,35=0,897=0,9

Q=29,7кН< Qсеч=224кН

Прочность бетона достаточна.

Расчет полки

Полка рассчитывается как многопролетная балка шириной 1 метр, опирающаяся на ребра.

Величина пролета равна диаметру пустоты. Так как, пролеты очень малы, расчетные изгибающие моменты практически при любых действующих эксплуатационных нагрузках малы, а потому расчетная площадь арматуры не превышает площадь арматуры стандартной сетки

Вр-1 - (*200)+(*100)/3Вр-1 - (*200)+100

имеющий фактическую площадь поперечной арматуры на 1 пог.метр длины Asпог=0,288 cм 2 поэтому полку без расчета армируем указанной сеткой

Расчет монтажной петли

Нагрузка на одну монтажную петлю

Fn=m*g*γg/n=2950*9.81*1.3/3=9646,5н

m=2950 кг масса плиты

γg=1,3 коэффициент динамичности

n=3 количество работающих петель

требуемая площадь арматуры

Аsn= Fn/Rs=9646,5/225*106=43,85*10-6=0,43см2

По сортаменту принимаем О8А-1 (Аs=0,503 см2)

Плиту армируем скрытой петлей, размещаемой в пустоте плиты.

3. Организация строительства и технология строительного производства

.1 Организация строительства

Разработка проекта организации строительства (ПОС) имеет своей целью обеспечить своевременный ввод в действие производственных мощностей, общественных сданий с наименьшими затратами при высоком качестве работ за счет строительства.

Проект организации строительства составляют на весь период строительства, на весь его комплекс.

Для несложных объектов проект организации строительства составляется в сокращенном объеме:

календарный план строительства с выделением работ подготовительного периода;

строительный генеральный план;

ведомость объемов строительных,

монтажных и специальных работ,

графиков потребности материалов,

строительных машин и механизмов;

краткая пояснительная записка.

Составление карты трудового процесса на возведение кирпичной стены и организация процесса кладки и монтажа поэтажных конструкции.

Номенклатура работ по карте:

.кладка наружных стен средней сложности толщиной 640 мм

.кладка внутренних стен толщиной 380 мм

. укладка и монтаж плит перекрытий и покрытий

.монтаж лестничной площадки и маршей, установка ограждений

.установка и монтаж сборных крупнопанельных перегородок

. установка подмостей

.подъем кирпича, перемычек

.подъем раствора

.установка оконных и дверных блоков

Объемы работ и калькуляция трудовых затрат по выполнению строительных процессов кирпичной кладки рассчитаны в соответствии с единицами измерения по ЕНиР.

Ведомость определения номенклатуры и объемов работ

Режим труда принят из условия высокого оптимального темпа выполнения трудовых процессов. Продолжительность отдыха составляет 12% от общего объема трудовых затрат. Продолжительность подготовительно - заключительных работ 4% в соответствии «Руководством технического нормирования труда в строительстве»

Описание технологического процесса

Процессы, выполняемые для кладки стены 1-этажа строящегося здания

. выполняется каменная кладка наружных и внутренних стен первого яруса 1 - захватки

. подготовка рабочего места для каменщиков во 2 - захватке

. выполняется каменная кладка наружных и внутренних стен первого яруса, 2 - захватки

. подготовка рабочего места для каменщиков; второго яруса в

- захватке

. выполняется каменная кладка наружных и внутренних стен второго яруса 1 - захватки

. подготовка рабочего места для каменщиков; второго яруса во

- захватке

. выполняется каменная кладка наружных и внутренних стен второго яруса 2 - захватки

. подготовка рабочего места для каменщиков; третьего яруса в

- захватке

. выполняется каменная кладка наружных и внутренних стен третьего яруса 1 - захватки

. монтаж лестничных площадок, маршей, перегородок, плит перекрытий 1 этажа 1-захватки

подготовка рабочего места для каменщиков; третьего яруса во 2 - захватке

. выполняется каменная кладка наружных и внутренних стен третьего яруса 2 - захватки

. монтаж лестничных площадок, маршей, перегородок, плит перекрытий 1 этажа 1-захватки

.монтаж лестничных площадок, маршей, перегородок, плит перекрытий 1 этажа 2-захватки.

Все эти процессы повторяются при кладке стен 2 этажа, затем монтируются плиты покрытия.

Плиты перекрытия и покрытия монтируют с помощью многоветвевого уравновешивающегося стропа начиная от пролета.

Ведомость объемов общестроительных работ

Наименование работ

Ед. изм.

Кол - во

1

Предварительная планировка поверхности грунта

К габаритам здания добавляется по 10 м с каждой стороны Fпл=Lпл *Bпл=1617,0

м2

1617,0

2

Разработка котлована зкскаватором, грунт 2-группы

Ширина котлована Вн по нижнему основанию определяется по формуле Вн=а+в+0,6= 19,2+1,2+0,6=21,0 м длина котлована по нижнему основанию определяется по формуле Lн=C+в+0.6= 21,28+1,2+0,6=23,1 м V=(21,0 х 23,1) х 2,12=93,5

м 3

93,5

3

Разработка грунта вручную

Подчистка грунта основания фундамента регламентируется СНиП 3.02.01-87 «Земляные сооружения. Основания и фундаменты». Для облегчения расчетов принимаем 7% от обема разработки экскаватором Vвр= Vэкс*0,0175= 1617*0,0175=28,3

м3

28,3

4

Уплотнение грунта основания

Принимается по площади основания котлованов Fупл=Lн*Bн=516,5

м2

516,5

5

Устройство песчаного основания

Vпесч=Fупл* 0,01=475,5*0,01=4,8

м3

4,8

6

Устройство фундаментов

По спецификации

1 эл

305

7

Обратная засыпка котлованов

Vобр.з=V - Vф=215,6

м3

215,6


Устройство боковой гидроизоляции

По проекту

м2

170,5



Надземная часть





Стены



8

Кирпичная кладка наружных стен

F=80,9 м V=80,9*0,64*6= 314,8

м3

314,8

9

Кирпичная кладка внутренних стен

F=38,4 м V=38,4*0,38*6=81,6

м3

81,6

10

Устройство перегородок из кирпича

По проекту

м2

157,6



Покрытия




Панели покрытий

По спецификаций

шт.

145



Заполнение проемов




Заполнение оконных проемов

По спецификации

м2

68,8


Остекление окон

По спецификации

м2

68,8


Заполнение дверных проемов

По спецификаций

м2

63,0



Устройство кровли




Утепление покрытия

Fут=Fкр по проекту

м2

360,0


Устройство цем-песч. стяжки

По экспликации полов

м2

655,1


Установка стропил

По проекту

м3

347,2


Устройство обрешетки

По проекту

м2

447,0


Отделка металлочерепицей

по проекту

м2

625,9



Полы




Уплотнение грунта щебнем

По проекту

м2

347,2


Покрытия полов а) керамич. плитка б) бетон в) линолеум г) керамогранит д) паркет

По спецификации

м2

 114,5 320,7 30,3 97,4 111,4



Отделка поверхностей




Штукатурка внутренних поверхностей

По ведомости отделки помещений

м2

750,1


Облицовка стен керамической плиткой

По ведомости отделки помещений

м2

86,1


Окраска потолка водоэмульсионной краской

-

м2

636,6


Окраска стен водоэмульсионной краской

-

м2

750,1


Наружная штукатурка

По ведомости отделки

м2

550,5


Наружная облицовка керам. плиткой

По ведомости отделки

м2

72,0


3.2 Выбор методов производства работ

Для возведения кирпичной стены объекта применяется поточно-конвейерный (кольцевой) метод. Проектируя поточную организацию процесса возведения поэтажных конструкции, его расчленяют на простые процессы и устанавливают их ритмичное и согласованное выполнение во времени и пространстве. Здание делится на захватки. На одной из них возводят стену на всю высоту этажа и выполняют сопутствующие работы, а на второй тем временем монтируют сборные конструкции.

Длительность кладочных и монтажных работ на захватке должна быть одинаковой. Закончив кладку этажа, каменщики переходят на вторую захватку.

При работе одним краном на двух захватках достигают высокой производительности труда, выполняя в первую смену кладку стен на высоту одного яруса, во вторую монтаж перекрытий, элементов лестничных клеток и других сборных элементов, а в третью подготавливая фронт работ для каменщиков.

Наименование работ

Способ производства

Кладка наружных стен средней сложности толщиной 640 мм

Каменщик 4 р-5 Каменщик 3 р-5

Кладка внутренних стен толщиной 380 мм

Каменщик 4 р-5 Каменщик 3 р-5

Укладка и монтаж плит перекрытия и покрытий, элементов лестничных клеток, перегородок

Выполняется с помощью крана Маш.крана 5-1; монт. Констр4 р-1; 3 р-2; 2 р-1

Установка подмостей

Выполняется с помощью крана Маш.крана 5-1; плотник 4 р-1; 2 р-1

Подъем кирпича

Выполняется краном Маш.крана 5-1 Монт.4-1; 3-2

Подача раствора

Выполняется краном Маш.крана 5-1 Монт.4-1; 3-2

Установка оконных блоков

М-т 5-1 Плотник 4-1; 2-1

Установка дверных блоков

М-т 5-1 Плотник 4-1; 2-1


Контроль качества каменных работ

Качество выполненных каменных работ необходимо контролировать систематически применяя соответствующие инструменты и приспособления (уровень, отвес, складной метр, рулетка, шаблон и др)

Возможные отклонения от проектных размеров каменных конструкций не превышали допускаемых значений указанных в СНиП11-22-81 «Каменные и армокаменные конструкции».

Для обеспечения требуемого качества выполненной кладки каменщик, в процессе кладки должен следить за тем, чтобы применялись кирпич и раствор, указанные в проекте, проверять правильность перевязки и качество швов и кладки, правильность установки закладных деталей и связей.

В сухую и жаркую, ветреную погоду кирпич нужно смачивать водой перед укладкой. Правильность закладки углов проверяют деревянным угольником. Горизонтальность углов кладки на каждом ярусе контролируют правилом и уровнем не реже двух раз. Вертикальность поверхностей стен и углов проверяют уровнем и отвесом также не реже двух раз на каждом ярусе.

Периодически проверяют толщину швов. Качество применяемых материалов и изделий устанавливают по паспортам заводов изготовителей, а качество раствора по актам лабораторных испытаний. В процессе кладки также ведут геодезический контроль.

Толщину швов проверяют следующим образом, замеряют 5-6 рядов кладки и определяют среднюю толщину шва. Например, если при замере 5 рядов кладки стены ее высота составила 400 мм, то средняя высота одного ряда кладки будет 400:5=80 мм и средняя толщина шва за вычетом толщины кирпича составит 80-65=15 мм.

Средняя толщина горизонтальных швов кирпичной кладки в пределах высоты этажа должна составлять 12 мм, а вертикальность 10 мм. Толщина отдельных вертикальных швов должна быть не менее 8 мм и не более 15 мм.

В местах примыкания перегородок выполнить выпуск кирпичей не менее 3-х раз на этаж по высоте. При сдаче каменных конструкции, выполненных в зимнее время, основным документом, предъявляемым приемной комиссией, является журнал производства работ.

Указания по производству работ в зимних условиях

Проект разработан для производства работ в летних условиях. Строительные работы в зимних условиях должны производиться с соблюдением требований разделов СН и П.

Рабочие чертежи, предназначенные к производству работ в зимних условиях, должны иметь указания проектной организации, выполнившей привязку проекта, о произведенной проверке конструкции и возможности их применения в зимних условиях.

Возведение фундаментов на замерзшем основании не допускается.

Грунты основания должны быть защищены от промерзания, как в период производства работ, так и после их окончания.

Засыпку пазух производить талым грунтом только после устройства бетонной подготовки под полы, укладки перекрытия над подвалом и выполнения обмазочной гидроизоляции.

Замоноличивание швов между панелями перекрытия выполняются раствором марки «100» с добавками, обеспечивающими приобретение раствором 25% прочности до его замораживания. Перед замоноличиванием швов производится их очистка от снега и наледи.

Кирпичную кладку выполнять способом замораживания раствора. Снижение конечной прочности кладки, выполняемой в летних условиях, компенсируется повышением марки раствора в зависимости от среднесуточной температуры на период возведения кладки:

при t =до -200 С - марки «50»

при t = до -300 С-марки» 75»

Кирпич стен должен быть Мрз-15, а участки фундаментов выполнять из полнотелого кирпича Мрз-25.

Температура раствора в момент его применения должна быть не менее:

+100С при t воздуха до - 100С

+150 С при t воздуха до - 200С

+200 С при t воздуха ниже - 200С          

. Особое внимание следует обратить на перевязку стен, плотность заполнения, горизонтальность швов, вертикальность кладки.

Толщина швов кладки должна быть не более 10-12 мм.

Поливка кирпича и заливка швов жидким раствором запрещается.

.В уровне перекрытий уложить стальные связи из арматуры 8АI в углах и местах пересечения и примыкания стен.

Связи должны заходить в каждую из примыкающих стен на 1-1,5 м и заканчиваться на концах анкерами.

.перед наступлением весенних оттепелей и на весь период оттаивания и последующего твердения кладки необходимо:

А) заделать монтажные гнезда, борозды и другие ослабления несущих конструкций.

Б) удалить с перекрытий случайные, не предусмотренные проектом нагрузки (строительный мусор, остатки строительных материалов, снег).

В) все несущие перемычки в проемах наружных и внутренних стен, выполненных в зимних условиях подпереть упор стойками на встречных клиньях.

Г) вести наблюдение за оттаиванием кладки с принятием в случае необходимости мер, обеспечивающих устойчивость конструкции.

 

ТЭП к календарному плану

№ п/п

Наименование

Ед. измерения

Кол-во

1

Продолжительность строительства

дней

93

2

Общая трудоёмкость

ч/дн

744

3

Производительность труда

%

93

4

Труд на 1м3 здания

ч/дн

0,23

5

Коэф. неравномерности движения рабочей силы

-

3,81

6

Коэффициент сменности

-

1,4

7

Коэффициент совмещенности

-

1

 

3.3 Стройгенплан


Стройгенплан разработан на строительство кафе-столовой.

Исходными данными для проектирования стройгенплана являются: - генеральный план,

решения принятые в календарном плане,

наличие и удаленность источников электро и водоснабжения,

идеальность заводов поставщиков.

Проектирование строительного генерального плана производилась с соблюдением следующих принципов:

временные здания и сооружения предусмотрены, передвижными, на колесах и наименьшем количестве.

временные здания и сооружения размещены так, что они удобны в эксплуатации, не нарушают безопасности работ и противопожарных норм.

протяженность временных сетей водоснабжения и электроснабжения принята минимальной.

Временные дороги и склады отвечают требованиям техники безопасности и размещены так, что число перегрузок сведено к минимуму. Дорога принята кольцевая.

Территория строительной площадки ограждена двухметровым инвентарным забором.

Площадь стройгенплана 6656 м2.

Ширина временных дорог принята 6 м.

Временные здания находятся от дороги на расстоянии 5 м.

Расстояние между зданиями не менее 5 метров, в соответствии с противопожарной безопасностью.

Расчет складов производился по трехдневному запасу местных материалов и десятидневному - привозных.

Временные здания и сооружения рассчитывались по нормам Справочника проектировщика организации строительства.

Расчет к стройгенплану

Конструкции, изделия материалы

Ед. изм

Общ потреб.

продолж. укл. матер. в конст

Число дней запаса

коэф. неравн. поступ

коэф. неравн. потреб

запас на скл.

норматер. хр. на 1м2 площ.

полезн. пл. склада

коэф. исп. пл. скл.


размер скл.

хар-актер скл.

1

фундаменты

м3

230,6

1,5

3

1,1

1,3

1507,1

2,0

753,5

0,6

1255,9

2*(10*60)

Откр.

2

кирпич

тыс. шт.

158,56

17

3

1,1

1,3

123,0

0,7

175,7

0,6

292,9

2*(5*30)

Откр.

3

перемычки

м3

10,5

15

3

1,1

1,3

100,44

0,6

167,39

0,6

279

2*(3*40)

Откр.

4

сб. ж/б элементы

м3

104,6

5

3

1,1

1,3

214,5

0,8

268,12

0,6

446,8

2*(5*40)

Откр.

5

оконные блоки

м2

68,0

1,5

3

1,1

1,3

861,0

45

19,13

0,5

38,27

2*(2*10)

П.н

6

дверные блоки

м2

63,0

1,0

3

1,1

1,3

669,24

44

15,21

0,5

30,42

2*(3*5)

П.н

8

линолеум

м2

320,7

14,0

3

1,1

1,3

359,93

4,5

0,6

7,5

(2*4)

Закр.

9

керамические пл.

м2

114,5

2,0

3

1,1

1,3

245,8

80

3,07

0,5

6,14

2*3

П.н

10

строит. р-р

т

101

17,0

3

1,1

1,3

41,87

-

-

-

-

-

-

11

щебень

м2

17

0,5

3

1,1

1,3

145,86

1,5

97,24

0,6

162,1

2*(8*10)

откр

12

доски для пола

м2

152,5

2,0

3

1,1

1,3

335,48

1,8

186,38

0,5

372,75

2*(6*30)

П.н


Расчет площадей временных зданий

Определение площадей временных зданий и сооружений производится по максимальной численности работающих на строительной площадке и нормативной площади на одного человека пользующегося данными помещениями.

Численность работающих определяют по формуле

Nобщ=(Nраб+NИТР+Nслуж+Nмоп)*k=(35+3+2+1)*1,06=44 чел.

Nраб=30*100/85=35 1% составляет 0,35 чел.

NИТР=8*0,35=2,8=3 чел.

Nслуж=5*0,35=2 чел. Nмоп=2*0,35=1 чел.

Временные здания

Кол-во работ-х

Кол-во польз. данным помещ., %

Площадь помещ.

Тип временного здания

Размеры здания, м





На одного работающ.

общая



1

контора

6

100

4

24

Передв.вагон

4*6

2

проходная

-

-

-

6

Сб.проходн.

2*3

3

гардеробная

44

70

0,7

21,56

Передв.вагон

2,7*9

4

душевая

44

50

0,54

13,5

То же

3*5

5

столовая

44

50

0,8

17,6

То же

3*6

6

туалет с умывальной

44

100

0,1

4,4

Контейнерный

2*3


Расчет потребности строительства в воде

Полная потребность в воде составляет

Вобщ=0,5*(Впр+Вхоз+Вдуш)+Впож

График потребности воды на производственные нужды

Потребители воды

Ед.изм

Кол-во в см

Норма расх. воды на ед. изм

Общий расход воды в смену

Месяцы






апрель

май

июнь

июль

1. Работа экскаватора

маш-ч

6

10

60

60




2. Заправка экскаватора

1 маш

1

80

80

80




3. Поливка кирпича (с приговлением раствора)

1 тыс.шт.

14,34

230

3297,5


3297,5



4. Штукатурные работы

м2

116,5

8

932



932

932

5. Малярные работы

м2

416

1

416



416

416

6. Заправка и обмывка тракторов

1 маш

1

400

400

400




7. Увлажнение грунта при уплотнении

м3

47,2

150

7080

7080

7080



8. Поливка бетона

м3

215

150

32250



32250


9. Питание компрессора

м3воздуха


10











7620

10378

33598

1348


По максимальной потребности находим секундный расход воды на производственные нужды

Впр=Вмакс*k/(t*3600)=33598*1,5/(8*3600=50397/28800=1,75 л/с

Секундный расход воды на хозяйственно-бытовые нужды

Вхоз=Вмакс* k2/ t*3600=660*3/8*3600=1980/28800=0,1 л/с

Вмакс=44*15=660 л в смену

Секундный расход воды на душевые установки

Вдуш=Вмакс* k2/ t*3600=44*30*1/0,75*3600=1320/2700=0,49 л/с

Таким образом, общее количество воды:

Вобщ=0,5*(Впр+Вхоз+Вдуш)+Впож=0,5 (1,75+0,1+0,49)+10=11,17 л/с

Диаметр трубопровода для временного водопровода рассчитывают по формуле:

D= 4*1000Врасч/(ПУ) или D=2 1000Врасч (п*v)

D=35.69 Врасч/ v=35,69 11,17/1,5=97,39 мм

В связи с тем, что промышленность выпускает пожарные гидранты с минимальным диаметром 100 мм, строители вынуждены диаметры труб временного водопровода принимать такими же; однако для временного водопровода это нецелесообразно. Поэтому гидранты рекомендуется проектировать на постоянной линии водопровода, а диаметр временного водопровода рассчитывать без учета пожаротушения:

Вобщ=1,75+0,1+0,49=2,34 л/с

D=35.69 Врасч/ v=35,69 2,34/1,5=44,58 мм

Принимаем диаметр трубопровода Dусл=50 м

 

ТЭП к стройгенплану

№п/п

Показатели

Ед.изм

Величина показателя

Примечание1

1

Площадь строительной площадки

м2

6656

F

2

Площадь застройки проектируемого здания

м2

412,32

Fп

3

Площадь застройки временными зданиями и сооружениями

м2

75,2

4

Протяженность временных дорог

м

320

Ширина 6 м


- водопровода

м

210

Диаметр 50 мм


-электросиловой линии

м

140



-осветительной линии

м

300



-ограждения

м

340

Инвентарный забор

5

Коэффициент Кп.в


30,5

Fв*100/ Fп

6

Компактность стройгенплана





К1

%

0,04

К1=Fп*100/ F


К2

%

1,9

К2=Fв*100/ F


Выбор самоходных стреловых кранов

Определяем минимальное требуемое расстояние от уровня стоянки крана до верха стрелы

Нстр=hо+hз+hэ+hс+hп=7,00+0,5+0,22+4,5+2,0=14,22 м

Наименьший вылет стрелы определяют по формуле

l=(е+с+d) (Hстр-hш)/(hс+hп)+a=(0,5+0,5+4,5) (14,22-1,5)/(4,5+2,0)+1,5=69,85/6,5+1,5=12,25 м

необходимая наименьшая длина стрелы

L=(l-а)2+(Hстр-hш)2=(12,25-1,5)2+(14,22-1,5)2=115,56+161,80=16,65 м

Принимаем гусеничный кран МКП-16 грузоподъемность-4,7т,

длина стрелы -20,0 м,

вылет стрелы-18 м

Расчет автотранспорта

Требуется ежедневно перевозить кирпичи, плиты перекрытия на расстояние 15 км, сколько требуется выделить автомобилей типа МАЗ-525 с грузоподъемностью 25т

Масса плит покрытий 2,95 т, коэффициент 1,07,

N=Q/P Q=241*2,95=710,95

К=1,07

g=25*1.07=26,75т

(tп+tр)=2.32*12=27.84 мин

V=21 км/час=21000/60=350 м/мин

Tц=2*15000/350+27,84=113,5 мин

Расчетная прочность 1 маш за1 день (1 смена)

Р= g*Т/ Tц=26,75*7*60/113,5=98,99т

N=710,95/98,99=7 машин для перевозки плит покрытий

Литература

1     Мандриков А.П. Примеры расчета железобетонных конструкций. - М.: Стройиздат, 1989

       Архитектурное проектирование жилых зданий! Под ред. М.В. Лисицына и Е.С. Пронина. - М.: Стройиздат, 1990

       Шевцов К.К. Проектирование зданий для районов с особыми природно-климатическими условиями. - М.: Высшая школа, 1986

       Фирсанов В.М. Архитектура жилых зданий в условиях жаркого климата. - М.: Высшая школа, 1982

       Берлинов М.В., Ягупов Б.А. Примеры расчета оснований и фундаментов. - М.: Стройиздат, 1986

6       Кондратъев А.И., Местечкина Н.М. Охрана труда в строительстве. - М.:

Высшая школа, 1990

       СНиП 111-4-80. Правила производства и приемки работ. Техника безопасности в строительстве. - М.: Стройиздат, 1980

       Возведение крупнопанельных жилых домов серии 1 1 1 - 1 2 1. Карты трудовых процессов ВНИПИ труда в строительстве. - М., 1977

       Монолитное домостроение. Карты трудовых процессов строительного производства. - Ярославль, 1982

       Кирнев А.Д., Субботин А.И., Евтушенко С.И. Технология возведения зданий и специальных сооружений. - Ростов - на - Дону.: Феникс, 2005

       Белецкий Б.Ф. Технология и механизация строительного производства. - Ростов - на - Дону.: Феникс, 2004

       Ардзинов В.Д. Ценообразование и составление смет в строительстве. - СПб.: Питер, 2006

       Шерешевский И.А. Конструирование гражданских зданий. - М.: Архитектура - С, 2005

       СНиП РК 2.04-05-2002. Естественное и искусственное освещение. - Астана: Комитет по делам строительства МИ и Т РК, 2002

       СНиП 2.01.07-85. Нагрузки и воздействия Госстрой СССР. - М., 1987

       СНиП 2.0З. Бетонные и железобетонные конструкции Госстрой СССР. - М., 1989

       СНиП 2.01.07-85. Карты районирования территории СССР по климатическим характеристикам. - М., 1987

       СНиП 2.01.01-82 «Строительные климатология и геофизика». Справочное пособие к СНиП строительная климатология. - М., 1989

       ГОСТ 24846-81 Грунты. Методы измерений деформаций оснований зданий и сооружений

       ГОСТ 25100-95 Грунты. Классификация

       ТОИ Р-112-01-93 Типовая инструкция по охране труда при работе на высоте

       СТ РК 939-92 Сваи забивные железобетонные. - Алматы, Государственный Комитет по архитектуре и строительству РК

       СТ РК 937 - 92 Конструкции и изделия бетонные и железобетонные сборные. - Алматы, Государственный комитет по архитектуре и строительству РК, 1992

       СНиП РК 5.01-03 - 2002 Свайные фундаменты - Астана: Комитет по делам строительства МИ и Т РК, 2002

       СНиП РК 5.01-01 - 2002 Основания зданий и сооружений - Астана: Комитет по делам строительства МИ и Т РК, 2002

       СНиП РК 3.02-06 - 2002 Крыши и кровли - Астана: Комитет по делам строительства МИ и Т РК, 2003