Проект привода главного
движения токарного патронно-центрового станка с ЧПУ модели 1720ПФ30
станок шпиндельный резание технический
Токарно-центровой полуавтомат 1720ПФ30 с ЧПУ предназначен для обработки наружных и внутренних поверхностей деталей со ступенчатым и криволинейным профилем, а также для нарезания резьб в автоматическом режиме по управляющей программе. Наибольший диаметр обрабатываемой детали - 400 мм, длина - 200 мм, масса - 20 кг, расстояние между центрами - 750 мм. Станок оснащен 12 позиционной инструментальной револьверной головкой, имеет конвейер для уборки стружки. Высокая мощность главного привода (18,5 кВт) и частоты вращения шпинделя полуавтомата позволяют эффективно использовать режущие свойства современных инструментов во всем диапазоне обрабатываемых диаметров.
Полуавтомат может быть оснащен различными системами ЧПУ.
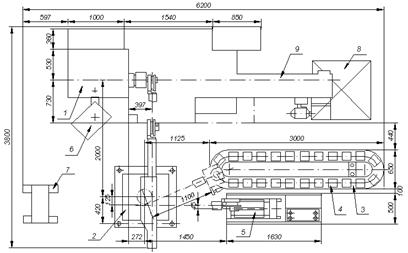
Внешний вид станка 1720ПФ30 приведен на рис. 1.
Рис. 1 Внешний вид станка 1720ПФ30.
На рисунке 2 показан общий вид РТК на базе токарно-центрового
станка с ЧПУ модели 1720ПФ30 и отмечены его основные элементы. В состав РТК
входят: токарный патронно-центровой станок с ЧПУ мод. 1720ПФ30 (поз. 1);
встроенный в станок ПР мод. М10П62.01 или ПР настольного типа мод. М20П40.01
тактовый стол типа СТ220 (поз. 3), на платформы (поз. 4) которого
устанавливаются в ориентированном виде заготовки; инструментальный магазин
барабанного типа (поз. 5) с набором сменных режущих блоков, автоматически
устанавливаемых в револьверной головке станка при помощи ПР; устройства ЧПУ
станка (поз. 6) различного типа с возможностью оперативной подготовки и
редактирования управляющих программ и ПР (поз. 7) типа «Контур-1», объединенных
в единую систему управления РТК; тара для стружки (поз. 8), отводимой
конвейером (поз. 9) из рабочей зоны станка. При работе данного РТК в составе
ГПС он дополнительно оснащается устройствами для активного контроля
обрабатываемого изделия при помощи измерительной щуповой головки, установленной
на инструментальном диске револьверного суппорта станка, а также устройствами
для измерения и контроля инструментов с их автоматической заменой при износе
или поломке.
Рис. 2 Общий вид РТК на базе станка 1720ПФ30
Таблица 1. Технические характеристики
станка
Наименование
показателя
Показатель
Наибольший
диаметр обрабатываемой детали, установленной над станиной, мм
400
Наибольший
диаметр обрабатываемой детали, установленной над кареткой, мм
320
Наибольший
диаметр обрабатываемой детали, установленной над суппортом, мм
210
Наибольший
диаметр прутка, проходящего через отверстие в шпинделе, мм
68
Наибольшая
длина обрабатываемой детали, мм
750
Наибольшая
масса обрабатываемой детали, кг
20
Частота
вращения шпинделя, об/мин
25 - 3150
Диапазоны
частот вращения шпинделя, об/мин
25 … 800 100 …
3150
Шаг нарезаемой
резьбы, мм
0,01..40
Величина подач,
мм/об продольная поперечная
0,01 - 20
0,005 - 10
Наибольшая
скорость рабочей подачи, мм/мин продольной поперечной
5000 2500
Скорость
быстрого перемещения инструмента, мм/мин продольного поперечного
10000 5000
Скорость
перемещения задней бабки, мм/мин
4000
Дискретность
задания перемещений, мм по оси Х по оси Y
0,001 0,001
Высота резца,
устанавливаемого в резцедержателе, мм
25
Количество
позиций резцедержателя п /автоматической поворотной головке
12
Наибольшая
суммарная потребляемая мощность, кВт
37
Мощность
привода главного движения, кВт
18,5
Габариты
полуавтомата, мм длина (без транспортера) ширина высота
3795 1515 1800
Масса
полуавтомата, кг
4900
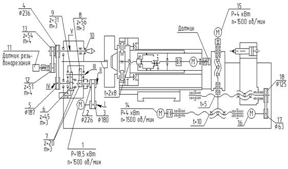
Станок с ЧПУ, кинематическая схема
которого показана на рис. 3, выпускается в двух исполнениях: силовом - с
увеличенным крутящим моментом на шпинделе и скоростном - с увеличенным пределом
частоты вращения шпинделя. Вращение шпинделя осуществляется от двигателя 1
(Р=18,5кВт; п=1500 об/мин) с регулируемой частотой вращения вращение передается
с вала I
на вал II через ременную передачу со шкивами 2 (Æ226) и 3 (Æ180), далее вращение
передается через двухступенчатую коробку скоростей с вала II на вал III и далее на вал IV и поликлиновую ременную
передачу со шкивами 4 (Æ236) и 5 (Æ187). Коробка скоростей в
зависимости от положения шестерни-муфты 6/7 (которая переключается с помощью
гидроцилиндра) обеспечивает передачу вращения или напрямую (передаточное
отношение 1:1) или через шестерни 7 (z = 45, m = 3) - 8 (z = 56, m = 3), 9 (z = 31, m = 3) - 6 (z = 45, m = 3) с общим
передаточным отношением i = 1:4. С вала IV вращение передается на шпиндель 10.
Резьбонарезание осуществляется при помощи датчика резьбонарезания 11,
связанного со шпинделем зубчато ременной передачей 12 (z = 51, m = 4) - 13 (z = 54, m = 4). Продольное и
поперечное перемещение суппортов осуществляется от двигателей 14, 15, 16, через
соответствующую ременную передачу со шкивами 17 (Æ63) и 18 (Æ125) и шариковинтовые
пары с шагом Р = 10 мм и Р = 5 мм.
Рис. 3 Кинематическая схема станка 1720ПФ30
Анализ кинематической схемы станка 1720ПФ30 показывает, что привод
главного движения включает электродвигатель две ременные передачи с
передаточными отношениями дн = 2pМдн∙пн,
где Pдн, в Вт; Мдн, в Н∙м; пн, об/сек.
До модернизации в станке применялся
двигатель серии 2ПФ, характеристики которого приведены в табл. 2. Эти двигатели
достаточно часто встречаются в коробках скоростей станков с ЧПУ.
Пределы частот вращения у двигателей
где пн - номинальная частота
вращения.
Таблица 2 - Характеристика двигателя серии
2ПФ
Тип
тиристорного электропривода
Тип
электродвигателя постоянного тока
Нормальная
мощность электродвигателя, кВт
Номинальная
частота вращения электродвигателя об/мин
Нормальное
напряжение, кВА
ЭТЗ-142-1 802/1
500У4 18,5
1500
440
По заданию привод главного движения необходимо
модернизировать с целью расширения диапазона регулирования частот вращения
шпинделя. Для этого применим электропривод «Мезоматик-V» структуры привода
сохраним, т.е. оставляем две пары зубчатых колес, ременные передачи и муфту.
Возможно, по результатам расчета, необходимо будет изменить передаточные
отношения при сохранении межосевого расстояния между валами.
Dmax - максимальный диаметр обработки детали, Dmax = 210 мм;
Dmin - минимальный диаметр обработки детали, Dmin = 30 мм;
Dрасч - расчетный диаметр обработки детали, Dрасч = 0,6Dmax = 0,6∙210 = 126
мм;
Высота центров
Принимаем по ГОСТ 440-57 Н = 160 мм.
Предельный припуск на обработку определяем по формуле
где Сt -
коэффициент зависящий от материала и вида заготовки; для стали Сt = 0,7 - 0,8; принимаем Сt = 0,75.
Предельную подачу определяем по формуле
Скорость резания
при обработке твердым сплавом: Vчерн = 60
- 120 м/мин;
Vчист = 120
- 200 м/мин;
при обработке быстрорежущей сталью: Vчерн = 30
- 50 м/мин;
при обработке пластинами СМП: V = 180 - 320 м/мин.
Находим значения расчетных частот вращения шпинделя
где Vminбр - min скорость резания
инструментом из быстрорежущей стали, Vminбр = 25 м/мин; Vmaxтв.сп - max скорость резания
инструментом фирмы Korloy из твердого сплава, Vmaxтв.сп = 320 м/мин;
Частоты вращения шпинделя стандартизированы, их нельзя назначать
произвольно. Воспользуемся таблицей 3 «Нормальные ряды чисел в станкостроении»
приведенной в пособии «Оборудование автоматизированного производства». В
столбце со знаменателем Выпишем стандартные частоты вращения шпинделя: 50, 56, 63, 71, 80,
90, 100, 112, 125, 140, 160, 180, 200, 224, 250, 280, 315, 355, 400, 450, 500,
560, 630, 710, 800, 900, 1000, 1120, 1250, 1400, 1600, 1800, 2000, 2240, 2500,
2800, 3150, 3550.
Привод главного движения должен обеспечить частоту вращения
шпинделя пшт min = 50
об/мин; пшт max = 3550
об/мин максимально возможная частота вращения шпинделя не должна превышать пд
max.
Мощность потребную на резание определяем исходя из составляющих
сил резания. По результатам анализа технологических процессов, реализуемых на
проектируемом станке и расчёта режимов резания определяем мощность, потребную
на резание Рz. Задаваясь коэффициентом полезного
действия (η = 0,8÷0,9) коробки скоростей, находим мощность двигателя.
Главную составляющую сил резания определяем по формуле
где Ср = 300; хр = 1,0; ур =
0,75; пр = - 0,15; t = 4,46 мм; s = 1,38 мм/об; Vmax = 320 м/мин.
Кмр = 0,85; Кjр = 0,89;
Кγр = 1,0; Кλр = 1,0; Кrр = 0,91.
Определяем крутящий момент от сил резания
Эффективную мощность потребную на резание определяем по формуле
Мощность электродвигателя главного движения определяем по формуле
Исходные данные: привод главного движения должен обеспечить
частоту вращения шпинделя n1 = пшт min = 50 об/мин; пшт max = 3550 об/мин максимально возможная
частота вращения шпинделя не должна превышать пд max. Поэтому примем ее меньше, чем пд max = 4500 об/мин; пz = пшп тах= 3550 об/ мин, как
удовлетворяющую условию пz < пд
max = 4500 об/мин; при знаменателе
геометрической прогрессии φ = 1,12.
По ней подбираем двигатель. Выбираем
двигатель электропривод типа «Мезоматик-V» производства Чехии
(табл. 3) предназначен для приводов главного движения металлорежущих станков и
других промышленных механизмов с числовым программным управлением
Таблица 3 - Характеристика двигателя типа
«Мезоматик-V»
Тип двигателя
Номинал. мощноcть Рн, кВт.
Номинал.
скорость, об/мин
Максимальная
скорость, об/мин
Номинал. момент
Мн, Н·м
Номинал. ток Iя, А
Момент инерции J, кг/м2
Масса, кг
при Рн
при снижении Рн
V160S
30
1500
3000
4500
191
83
0,28
230
Построим график частот вращения шпинделя. Для этого проведем
горизонтальные линии соответствующие валам I, II, III, IV, V коробки скоростей
и вертикальные линии, соответствующие частотам вращения шпинделя от 50 об/мин
до 4500 об/мин. Т.к. на графике откладываются не частоты вращения, а их
логарифмы, то расстояние между вертикальными линиями одинаковы и равны lgj.
Из таблицы 3 переписываем частоты вращения шпинделя, соответствующие знаменателю
j
= 1,12 и наносим их на график.
Дальнейшие расчеты проводим по методике изложенной в пособии
«Оборудование автоматизированного производства» в разделе «Особенности
конструкций и кинематический расчет приводов главного движения».
. Расчетная частота вращения шпинделя, при которой он
получает от двигателя полную мощность и полный момент
где Dz - диапазон частот вращения шпинделя. Принимаем ближайшее большее стандартное число оборотов шпинделя за
расчетное, пр= 160 об/мин.
. Рассчитаем диапазон регулирования шпинделя с постоянной
мощностью
. Назначим диапазон переключения в группе передач коробки
скоростей
пределы передаточных отношений в группе
передач 0,25 ≤ i ≤ 2
Примем значения imin = 0,25, imax = 1, тогда:
Диапазон регулирования двигателя с постоянной мощностью равен
. Определим число ступеней скорости в механической части привода
главного движения (коробка скоростей)
Принимаем zk =
4, т.к. нам нужно ещё одно передаточное отношение для предотвращения потерь
мощности.
Наибольшее и наименьшее передаточные отношения назначены выше imin = 0,25, imax = 1 i1 = imax = 1 = j0
Третье передаточное отношение назначим
А четвертое:
Найдем значения передаточного отношения ременной передачи iрем1.
При nдmax = 4500 об/мин вал II должен иметь n44 = 3550
об/мин. Значение передаточного отношения iрем1 = 3550/4500 = 0,79.
Передаточное отношение ременной передачи определяется также диаметрами шкивов.
Зададимся диаметром шкива на двигателе D1 = 180 мм. Шкив на входном
валу коробки скоростей находим из соотношения D1/D2= iрем1. Отсюда D2 = D1/iрем1 = 180/0,8 = 228 мм.
Аналогично для второй ременной передачи iрем 2: D3=236
мм, D4=236 мм. Нанесем iрем1 на график, соединив точки с
частотами вращения 4500 об/мин и 3550 об/мин.
Нанесем на график i2 = 1/2,82 = 1/1,129,
отложив в сторону уменьшения частот вращения шпинделя 9 клеток, получим n29
= 1250 об/мин. Нанесем i3=1/4=1/1,1212, отложив в
сторону уменьшения частот вращения шпинделя 12 клеток n17 = 315
об/мин; i4=1/1,12, отложив в сторону уменьшения частот вращения
шпинделя 1 клетку n28 = 1120 об/мин.
Определим максимальную частоту вращения
вала II при частоте вращения двигателя nд.р.мах = 3000 об/мин, задавшись
значением iрем1= 0,79:
Нанесем на график i2 = 1/2,82 = 1/1,129,
отложив в сторону уменьшения частот вращения шпинделя 9 клеток, получим n26
= 900 об/мин. Нанесем i3=1/4=1/1,1212, отложив в
сторону уменьшения частот вращения шпинделя 12 клеток n14 = 224
об/мин; i4=1/1,12, отложив в сторону уменьшения частот вращения
шпинделя 1 клетку n25 = 800 об/мин.
Найдем частоту вращения вала II при включении на
шпинделе расчетной частоты пр = 160 об/мин и округлим до
стандартной:
nII р min =160/(0,25∙1/2,82)
= 1800 об/мин.
При этом двигатель должен обеспечить
частоту
пдв р = nII р min/(iрем 1) = 1800/0,79 = 2240
об/мин
На данной частоте двигатель развивает
полную мощность, так как пдв р > пн.
Определим частоту вращения двигателя при
включении n1:
nI р min = n1/(iрем 2∙i3 · i2∙i1) = 50/(1∙0,25 ·
1/2,82∙0,79) = 710 об/мин
Определим частоту вращения шпинделя при
минимальном передаточном отношении коробки скоростей (i2 = 0,25) и округляем до
стандартного:
Для расчета чисел зубьев в коробке скоростей необходимо
задаться величиной межцентрового расстояния. Это расстояние задают косвенно,
через сумму зубьев зацепленных колес. В станке 1720ПФ30 межцентровое расстояние
задано суммой зубьев Σz = 76 определения количества
зубьев в конкретных передачах воспользуемся таблицей 1 «Определение чисел
зубьев колес» пособия. i1 сохраним прежним, как 20:20, тогда
получаем для i2 на пересечении строки с числом 2,82 и столбца Σz = 76 находим Z1=20, тогда Z2 = 76 - 20 = 56.
Таким образом, первая пара колес в первой группе передач имеет передаточное
отношение 2 = Z1: Z2 = 20:56.
Аналогично находим передаточные отношения i3 =
16:60, i4 = 36:40
Рис. 10 График скоростей после модернизации привода главного
движения
(i1=j0=1.120=1; i2=1/j9=1/1,129=1/2,82;
i3= 1/j12=1/1,1212=1/4=0,25, i4=1/j1=1/1,121).
Параметр
i1
= j-0
i2
= j--9
i3
= j--12
i4
= j--1
Z1/Z2
20/20
20/56
16/60
36/40
ΣZ
40
76
76
76
Построим график мощностей и моментов
Рис. 11 График мощностей и крутящих
моментов после модернизации привода главного движения
Эффективная мощность потребная на резание
Nэф = 18,432 кВт
Определим мощности на валах коробки скоростей
NI = Nэф = 18,432 кВт
NII = Nэф ∙ ηрем ∙ηпк = 18,432 ∙ 0,985 ∙ 0,995 =18,065 кВт
NIII = Nэф ∙ ηрем ∙ηпк2 ∙ ηзп = 18,432 ∙ 0,985 ∙ 0,9952 ∙ 0,95
=17,076 кВт
NIV = Nэф ∙ ηрем ∙ηпк3 ∙ ηзп2 = 18,432 ∙ 0,985 ∙
0,9953 ∙ 0,952 =16,141 кВт
Уточненный кпд коробки скоростей
ηкс = ηрем ∙ηпк3 ∙ ηзп2 = 0,985 ∙ 0,9953 ∙ 0,952 =
0,876
Мощность потребляемая электродвигателем
MII = 30 ∙ NII /(pnрасч) = 30 ∙ 18065/(3,14 ∙ 2500) =
69,038 Н∙м
MIII = 30 ∙ NIII /(pnрасч) = 30 ∙ 17076/(3,14 ∙ 900) =
181,274 Н∙м
MIV = 30 ∙ NIV /(pnрасч) = 30 ∙ 16141/(3,14 ∙ 224) =
688,453 Н∙м
Определяем поверхностный модуль mпов, см, т.к. зубья колес
при работе испытывают знакопеременные контактные нагрузки.
где sпов - допускаемые напряжения по усталости
поверхностных слоев, Н/см2; Р - мощность вала, на котором
расположено меньшее (ведущее) колесо, кВт; n - расчетная частота вращения ведущего колеса, при которой
передается полная мощность, об/мин; Z - число
зубьев шестерни (малого, ведущего колеса); i - передаточное число (принимается i ≥
1) т.е. для понижающих передач берется величина обратная передаточному
отношению; y0=b/dш - коэффициент ширины зуба шестерни (y0=0,7… 1,6 при симметричном расположении шестерни на жестких валах
(y0= 0,4…0,6 при консольном расположении шестерни); k - коэффициент нагрузки. При предварительных расчетах можно
принять k = 1,2..1.4.
Модуль для передачи с i = 1
принимаем тпов = 4 мм.
Модуль для передачи с i = 2,82
принимаем тпов = 4 мм.
Модуль для передачи с i = 3,75
принимаем тпов = 4 мм.
Модуль для передачи с i = 1,11
принимаем тпов = 4 мм.
По поверхностному модулю mпов находим габариты колес (Dнар, Dвн, Dд и ширину зубчатого
венца).
Определяем делительные диаметры по формуле
Dд = т ∙ Z
Z = 20 т = 4 мм Dд = т ∙ Z = 4 ∙ 20 = 80 мм
Z = 56 т = 4 мм Dд = т ∙ Z = 4 ∙ 56 = 224 мм
Z = 16 т = 4 мм Dд = т ∙ Z = 4 ∙ 16 = 64 мм
Z = 60 т = 4 мм Dд = т ∙ Z = 4 ∙ 60 = 240 мм
Z = 36 т = 4 мм Dд = т ∙ Z = 4 ∙ 36 = 144 мм
Z = 40 т = 4 мм Dд = т ∙ Z = 4 ∙ 40 = 160 мм
Определяем диаметры вершин по формуле
Dвер = Dд +2т
Z = 20 т = 4 мм Dд = 80 мм Dвер = Dд + 2т = 80 + 2 ∙ 4
= 88 мм
Z = 56 т = 4 мм Dд = 224 мм Dвер = Dд + 2т = 224 + 2 ∙ 4
= 232 мм
Z = 16 т = 4 мм Dд = 64 мм Dвер = Dд + 2т = 64 + 2 ∙ 4
= 72 мм
Z = 60 т = 4 мм Dд = 240 мм Dвер = Dд + 2т = 240 + 2 ∙ 4
= 248 мм
Z = 36 т = 4 мм Dд = 144 мм Dвер = Dд + 2т = 144 + 2 ∙ 4
= 152 мм
Z = 40 т = 4 мм Dд = 160 мм Dвер = Dд + 2т = 160 + 2 ∙
4= 168 мм
Определяем диаметры впадин по формуле
Dвп = Dд - 2,5т
Z = 20 т = 4 мм Dд = 80 мм Dвп = Dд - 2,5т = 80 - 2,5 ∙
4 = 70 мм
Z = 56 т = 4 мм Dд = 224 мм Dвп = Dд - 2,5т = 224 - 2,5 ∙
4 = 214 мм
Z = 16 т = 4 мм Dд = 64 мм Dвп = Dд - 2,5т = 64 - 2,5 ∙
4 = 54 мм
Z = 60 т = 4 мм Dд = 240 мм Dвп = Dд - 2т = 240 - 2,5 ∙
4 = 230 мм
Z = 36 т = 4 мм Dд = 144 мм Dвп = Dд - 2,5т = 144 - 2,5 ∙
4 = 134 мм
Z = 40 т = 4 мм Dд = 160 мм Dвп = Dд - 2т = 160 - 2,5 ∙
4 = 150 мм
Определяем ширину венца зубчатых колес по формуле
b = 10m
ширина всех зубчатых колес
т = 4 мм b = 10т = 10 ∙ 4 = 40 мм
Диаметры валов, предварительно можно определить по условному
расчету на кручение:
где Мрасч - расчетный крутящий момент на валу, Н∙мм;
[t] - условное допускаемое напряжение на
кручение, МПа (для стальных колес [t]=15 - 25 МПа).
Диаметр выходного конца II вала
принимаем dв II = 45 мм, т.к. на конец вала будет
крепиться шкив ременной передачи Æ228 мм.
Диаметр выходного конца III вала
принимаем диаметр вала dв III = 35 мм.
Диаметр выходного конца IV вала
принимаем вала dв IV = 55 мм.
Исходные данные:
NI = 18,432 кВт - мощность передаваемая ремнем от
электродвигателя к коробке скоростей;
NIV = 16,141 кВт - мощность передаваемая ремнем от
коробки скоростей на шпиндель токарного станка;
п I = 710 об/мин - частота вращения вала
электродвигателя;
п II = 560 об/мин - частота вращения вала ведомого
шкива ременной передачи от электродвигателя к коробке скоростей;
п IV = п V = 315 об/мин - частота
вращения валов ведущего и ведомого шкива ременной передачи от коробки скоростей
на шпиндель;
MIV = 688,453 Н∙м
i рем 1 = 0,79 - передаточное отношение ременной передачи
от электродвигателя к коробке скоростей;
i рем 2 = 1 - передаточное отношение ременной передачи от
коробки скоростей на шпиндель;
Кр - коэффициент режима работы токарного станка Кр
=1,0 для токарных станков.
Расчетный момент на быстроходном валу В соответствии с рекомендациями применяем ремни сечения Л.
Диаметр меньшего шкива ременной передачи от электродвигателя к
коробке скоростей определяем по формуле:
Принимаем ближайшее к стандартному d1 = 180
мм.
Диаметр ведомого вала:
d3 = d4 = 236 мм.
Скорость ремня:
По номограмме определяем число клиньев поликлинового ремня
для ременной передачи от электродвигателя к коробке скоростей
Zрем 1 = 16; Zрем2 = 18.
Межосевое расстояние:
Длина ремня:
Принимаем Lрем 1 = 1600 мм.
Принимаем Lрем 2 = 2000 мм.
Межосевое расстояние выверенное по принятой длине ремня:
Угол обхвата на малом шкиве:
Усилие, действующее на вал:
Ширина шкива:
Ременная передача от электродвигателя к коробке скоростей:
основные геометрические параметры ремня
Lрем 1 = 1600 мм; арем 1 = 480 мм; Zрем 1 = 14; t = 4,8 мм; Н = 9,5 мм; h = 4,85 мм; r1 = 0,2 мм; r2 = 0,7 мм; j = 40°.
основные геометрические параметры шкивов
d1 = 180 мм; d2 = 228 мм; Вш рем 1
= 73 мм; Zрем 1 = 14; t = 4,8 мм; Н = 9,5 мм; h = 4,85 мм; r1 = 0,2 мм; r2 = 0,7 мм;j = 40°±15'.
Ременная передача от электродвигателя к коробке скоростей:
основные геометрические параметры ремня
Lрем 2 = 2000 мм; арем 2 = 700 мм; Zрем 2 = 18; t = 4,8 мм; Н = 9,5 мм; h = 4,85 мм; r1 = 0,2 мм; r2 = 0,7 мм; j = 40°.
основные геометрические параметры шкивов
d3 = d4 = 236 мм; Вш рем 2 = 93 мм; Zрем 2 = 18; t = 4,8 мм; Н = 9,5 мм; h = 4,85 мм; r1 = 0,2 мм; r2 = 0,7 мм;j = 40°±15'.
Исходные данные:
Мощность привода главного движения: Р = 30 кВт;
Максимальная частота вращения шпинделя: nmax = 3550 об/мин;
Класс точности станка - П;
NIV = 16,141 кВт - мощность передаваемая ремнем от
коробки скоростей на шпиндель токарного станка;
MIV = 688,453 Н∙м - крутящий момент
передаваемый ремнем от коробки скоростей на шпиндель токарного станка;
Параметр шероховатости обработанной поверхности Ra = 20 мкм;
Шпиндельный узел должен обеспечит шероховатость Ra = 20 мкм. Заданную
шероховатость обеспечивают все виды опор. Выбираем опоры качения, как наиболее
распространенные и позволяющие получить шероховатость Ra £ 20 мкм.
Ориентировочно минимально необходимый диаметр шейки шпинделя
определяется по формулам:
из условия жесткости по передаваемому крутящему моменту
- из условия передачи мощности на шпинделе
где l, N - соответственно расстояние между опорами (мм) и мощность
(кВт) на шпинделе.
Для дальнейших расчетов принимается большее значение диаметра
dmin.
Максимально возможный диаметр шейки шпинделя под передней
опорой
для выбранной компоновочной схемы определяется по формуле
где (dn)табл - параметр быстроходной схемы, (dn)табл
= (4,0¸6,0)∙105 мм∙мин-1; nmax
- максимальная частота вращения шпинделя расчетная из графика частот вращения,
мин-1.
Полученный диаметр dmax корректируется по имеющимся
ограничениям (возможности выполнения осевого отверстия в шпинделе для
инструмента или заготовки, или размещения механизма зажима заготовки или
инструмента и др.).
При этом необходимо стремиться выбрать диаметр как можно большего
размера. Это приведет к увеличению жесткости шпиндельного узла:
min = 96,9 < d ≤ dmax =
112,68 мм.
По выражению определяем диаметр шейки шпинделя под переднюю
опору d
= 110 мм.
Ориентировочные значения диаметров шпинделя между опорами (dМ), в задней опоре (dЗ) переднего конца
шпинделя находим по выражениям.
Диаметр шпинделя между опорами: dM = 0,9 ∙ d = 0,9 ∙ 110 = 99
мм; принимаем dM = 100 мм. Диаметр переднего конца шпинделя:
D1 = (1,05¸1,2) ∙ d = (1,05¸1,2) ∙ 110 = 115,5 ¸ 132 мм
Принимаем по ГОСТ 12595-85 D1 = 125 мм.
В соответствии с типом станка и наибольшим диаметром
обработки по таблице выбираем максимальный диаметр фланца шпинделя D = 210 мм.
Диаметр сквозного отверстия предварительно принимаем
d0 = 0,5 ∙ d = 0,5 ∙ 110 = 55
мм
Ориентировочно длину консольной части шпинделя принимаем
равной а = 170 мм. Тогда расстояние между опорами b = 3a = 3 ∙ 170 = 510
мм.
Таблица ориентировочных размерных параметров шпиндельного
узла, мм
d
dM
D1
D
d0
a
b
d3
110
100
125
210
55
170
510
90
1. Гжиров Р.И.,
Серебреницкий П.П. Программирование обработки на станках с ЧПУ: Справочник. -
Ленинград «Машиностроение», Ленинградское отделение, 1990.
. Кузнецов Ю.И., Маслов
А.Р., Байков А.Н. Оснастка для станков с ЧПУ: Справочник. - М.
«Машиностроение», 1990.
. Электронный каталог Korloy, 2007.
. Кочергин А.И.
Конструирование и расчет металлорежущих станков и станочных комплексов.
Курсовое проектирование: Учеб. пособие для вузов. - Мн.: Выш. шк., 1991. - 382
с.: ил.
. Ачеркан Н.С.
Конструирование и расчет металлорежущих станков. - 2-е изд. - М.: Машгиз.,
1952.
. Проектирование
металлорежущих станков и станочных систем: Справочник-учебник. В 3-х т. Т. 2 Ч.
1. Расчет и конструирование узлов и элементов станков / А.С. Проников, Е.И.
Борисов, В.В. Бушуев и др.; Под общ. ред. А.С. Проникова. - М.: Издательство
МГТУ им. Н.Э. Баумана: Машиностроение, 1995ю - 371 с.: ил.
7. Альбом: Металлорежущие станки с числовым
программным управлением. Составил: доц., к.т.н. Рохин В.Л. - Курган, 2008.
. Методические указания к выполнению курсовой
работы по дисциплине «Оборудование машиностроительного производства» для
студентов направления 552900 специальностей 120100, 120200. Составили: доц.
к.т.н. Рохин В.Л., доц. к.т.н. Иванов В.Н., доц. к.т.н. Курдюков В.И. - Курган,
1996.
. Методические указания к выполнению курсового
проекта по металлорежущим станкам для специальностей 0501,0636 «Расчет основных
технических характеристик металлорежущих станков». Составили: доц. к.т.н. Рохин
В.Л., доц. к.т.н. Иванов В.Н. - Курган, 1983.
Кинематическая
схема станка
2.
Расчет коробки скоростей станка
![]()
муфту, две пары зубчатых колес
![]()
,
и шпиндель (вал V). Двигатель с входным
валом II коробки скоростей соединяется через ременную передачу с передаточным
отношением i1, двигатель имеет
пн = 1500 об/мин, максимальную
пд max = 4500 об/мин и минимальную
пд min = 50 об/мин. Двигатели с двухзонным
регулированием в диапазоне от пн
до пд max
имеют постоянную мощность P, кВт и
переменный крутящий момент. Номинальный момент Мдн и номинальная
мощность двигателя связаны соотношением:
.1
Выбор основных геометрических параметов
.2
Расчет режимов резания
,
1,12 находим число 25. Все частоты
вращения подчиняются принципу удвоения и удесятерения.
2.3
Определение передаточных чисел. Расчет числа зубьев зубчатых колес. Построение
графика частот вращения шпинделя
. Выразим эти передаточные отношения через знаменатель ряда
2.4
Расчет мощностей на валах коробки скоростей.

2.6
Определение модулей зубчатых колес коробки скоростей
.7
Определение геометрических параметров зубчатых колес.
.8
Определение диаметров валов коробки скоростей
.9
Расчет ременных передач
3.
Расчет шпиндельного узла
Список
литературы