Материал: Проект жилого двухсекционного двухэтажного здания с деревянными элементами

Внимание! Если размещение файла нарушает Ваши авторские права, то обязательно сообщите нам

Принимаю см.

Принимаю сечение подкоса  см,  см2,


условие выполняется,

,

,

Горизонтальная составляющая усилия , равная кН, создает распор стропильной системе.

Затяжку проектируем из доски см, крепление к стропилам гвоздями  мм.

Определение несущей способности гвоздя:

 мм2

 мм,

Несущая способность гвоздя по 1 срезу:

 кН,

Несущая способность гвоздя по 2 срезу:

 кН,

 кН,

Количество гвоздей:

 шт.,

Принимаю 8 гвоздей (по 4 гвоздя с каждой стороны).

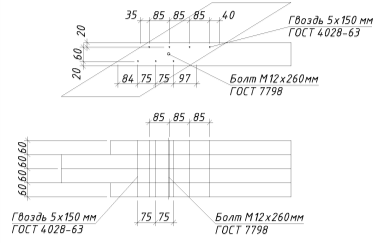
Рисунок 5.3 - Крепление затяжки

6. Расчет подстропильной системы


6.1    Исходные данные


Подстропильная конструкция состоит из разрезного прогона, усиленного в местах опирания на стойки балками, которые выполнены из брусьев того же сечения, что и прогоны. Для придания жёсткости всей системе в продольном направлении через каждые 3-4 пролёта ставятся раскосные связи, скрепляемые со стойками и прогонами болтами.

Расстояние между стойками 3 м, между стропилами 1 м.

6.2    Расчет сечения


Нормативное давление от стропил на прогон:

 кН,

Расчетное давление от стропил на прогон:

 кН,

Собственный вес прогона с подбалками ориентировочно принимаем равным 2,5% давления стропил. Тогда полная сосредоточенная нагрузка составляет:

 кН,

 кН,

Один из грузов передается непосредственно на стойки и не вызывает изгиба в прогоне и подбалке. Давление на конец подбалки от остальных грузов:

кН,

Расчетный вылет консоли принимаем равным:

мм,

Полную длину назначаем мм,

Расчетный изгибающий момент:

кНм,

Расчетный момент сопротивления:

 см3

Принимаем брус сечением см с см3 и см4.

Рисунок 6.1 - Подстропильная конструкция

А - продольный разрез, Б - расчетная схема.

6.3    Расчет по первой группе предельных состояний


кН/см2

 - условие прочности выполняется

6.4    Расчет по второй группе предельных состояний


Относительный прогиб прогона:

,

 см,

Вертикальный предельный прогиб, принимаемый согласно табл. Е.1 приложения Е.2 СП 20.13330.2011 «Нагрузки и воздействия»:

 см,

 см - условие выполняется, максимальный прогиб не превышает предельно допустимого.

Стойки принимаем сечением 15х5 см. Полное усилие, приходящееся на стойку:

 кН,

Напряжение смятие в подбалке в месте опирания на стойку:

,

 кН/см2

условие выполняется.


7. Варианты конструкции стены здания


Рисунок 7.1 - Конструкция стены

8. Расчет стойки


8.1    Исходные данные


Материал: древесина хвойных пород 2 сорта (сосна), расчетное сопротивление сжатию Rc = 13 МПа по табл. 3 СП 64.13330.2011 «Деревянные конструкции».

Высота стойки мм, закрепление концов - шарнирное. Шаг стоек - 0,65 м.

8.2    Сбор нагрузок


Таблица 8.1

Нагрузка от стропил

Элементы и подсчет нагрузки

Нормативные

Коэффициент надежности по нагрузке Расчетные


Постоянная нагрузка от кровли и обрешетки

0,184

-

0,2084

С учётом угла наклона 0,184/0,866

0,212

1,1

0,2332

Противоконденсатная плёнка 0,02/0,866

0,023

1,2

0,0276





Стропила 0,126

1,1

0,139


Контррейка 0,0092

1,1

0,0101


Итого постоянная нагрузка:

0,55

-

0,62

Временная нагрузка - снеговая:

2,208

-

3,0912

Итого

2,758

-

3,74


Таблица 8.2

Нагрузка от чердачного перекрытия

Наименование элемента и подсчёт нагрузки

Нормативная нагрузка,

Коэффициент надежности по нагрузке,

Расчётная нагрузка,


Постоянная нагрузка

1

Теплоизоляция

0,1

1,2

0,12

2

Доска потолка

0,095

1,1

0,1045


Временная нагрузка


Временная нагрузка согласно табл. 8.3 СП 20.13330.2011

0,7

1,3

0,91


Итого

0,895


1,135


Собственный вес балки (принимаю 100х175).

) Нормативный:


) Расчётный:


Таблица 8.3

Нагрузка от перекрытия первого этажа

Наименование элемента и подсчёт нагрузки

Нормативная нагрузка,

Коэффициент надежности по нагрузке,

Расчётная нагрузка,

Постоянная нагрузка

Доска пола

0,16

1,1

0,176

Временная нагрузка

Временная нагрузка согласно табл. 8.3 СП 20.13330.2011

1,5

1,3

1,95

Всего полная нагрузка

1,66


2,126


Таблица 8.4

Нагрузка от веса элементов каркасной стены

Вид нагрузки и ее расчет

Нормативная нагрузка,

Коэффициент надежности по нагрузке,

Расчётная нагрузка, кН

Постоянная нагрузка от веса элементов каркасной стены

Обвязка - 2 доски 150х50 мм, ,

0,045

1,1

0,0495

Декоративная штукатурка (9мм)  =1,5кг/м2

0,054

1,3

0,0702

Ветрозащитная плита ISOPLAAT (толщина 25 мм),  

0,207

1,2

0,2484

Пароизоляционная пленка (толщина 0,25мм)

0,001

1,2

0,0012

Плита минераловатная PAROC Extra (150мм) ,

0,184

1,2

0,2208

Плита OSB (9 мм), ,

3,024

1,2

3,6288

Обрешетка 22х50 мм, шаг 500, ,

0,17

1,1

0,187

ГКЛ Кнауф (25 мм),

0,207

1,2

0,2484

Всего от веса элементов каркасной стены, на 2 этажа

0,698


0,862

Всего полная нагрузка на стойку, без учета собственного веса

3,892


4,6543


Таблица 8.5

Собственный вес стойки

Элементы и подсчет нагрузки

Нормативные

Коэффициент надежности по нагрузке Расчетные


Обвязочная балка 0,049

1,1

0,0539


Собственный вес стойки1,05

1,1

1,155


Утеплитель, ρ=30 кг/м3 0,164

1,2

0,197


OSB (12 мм)0,275

1,1

0,303


Итого:

-

-

7,93


Общая нагрузка на стойку:

деревянный несущий ограждающий конструкция

8.3    Расчет стойки

Определение размеров


Рисунок 8.1 - Расчетная схема стойки

Расчетная длина:

 м,

где  - коэффициент» для шарнирно-закрепленных концов стойки;

Задаемся гибкостью  (предельная гибкость для колонн согласно табл. 17 п. 6.24 СП 64.13330.2011 «Деревянные конструкции» );

Коэффициент продольного изгиба, при :

,

Требуемая площадь поперечного сечения:

см2,

Минимальный требуемый радиус инерции сечения стойки:

см,

Требуемая высота сечения стойки:

см,

Принимаем высоту сечения стойки см,

Требуемая ширина сечения стойки:

см,

Принимаем ширину стойкисм,

Фактическая площадь поперечного сечения:

см2,

Рисунок 8.2 - Поперечное сечение цельнодеревянной стойки

Гибкость стойки принятого сечения:

,

Условие не выполняется, поэтому устанавливаю в продольной плоскости стены подкосы и ригели. Тогда  см.


Коэффициент продольного изгиба:

,

Напряжения от силы N, возникающие в стойке каркаса:


Вывод: сечение стойки 50х150 древесины хвойных пород второго сорта полностью удовлетворяет условию прочности.

8.4    Расчет составной стойки


Составная стойка рассчитывается, как центрально-сжатый стержень. Сечение стойки состоит из 2 досок сечением мм, скрепленные гвоздями диаметром 4,0 мм с шагом 280 мм.

Исходные данные

Материал: древесина хвойных пород 2 сорта (сосна), расчетное сопротивление сжатию МПа по табл. 3 СП 64.13330.2011 «Деревянные конструкции».

Высота стойки  мм, закрепление концов - шарнирное. Шаг стоек - 0,65 м.

Расчетная нагрузка на стойку: кН.

Расчетная длина в плоскости : мм.

Расчетная длина из плоскости : мм.

Рисунок 8.3 - Поперечное сечение составной стойки

Расчет по 1-ой ГПС

Коэффициент приведенной гибкости:

,

где  - коэффициент податливости соединения;

см - диаметр гвоздя;

 - количество плоскостей сплачивания;

 - количество срезов связей на 1 п.м. с учетом шага гвоздей 250 мм;

Гибкость стержня относительно оси, параллельной плоскости сплачивания:

,

Где:

 - гибкость в плоскости  для составного сечения;