Материал: Обследование и разработка рекомендаций по работе газоотводящих трактов конвертеров № 1, 2, системы их оборотного водоснабжения, котлов окг-400 №1, 2, повышения эксплуатационной надежности их работы, условиях наращивания производства

Внимание! Если размещение файла нарушает Ваши авторские права, то обязательно сообщите нам

Обследование и разработка рекомендаций по работе газоотводящих трактов конвертеров № 1, 2, системы их оборотного водоснабжения, котлов окг-400 №1, 2, повышения эксплуатационной надежности их работы, условиях наращивания производства















ДИПЛОМНЫЙ ПРОЕКТ

«Обследование и разработка рекомендаций по работе газоотводящих трактов конвертеров №№ 1,2, в т.ч. системы их оборотного водоснабжения, котлов окг-400 №№1,2, повышения эксплуатационной надежности их работы, в т.ч. условиях наращивания производства»

Содержание

Введение

. Описание газоотводящего тракта

. Технологический режим выплавки стали и отвода газов

. Результаты испытаний газоочисток

. Эксплуатационная надежность работы аппаратов газоочистки

. Системы КИП, блокировки, сигнализации для обеспечения взрывобезопасной работы газоотводящего тракта

. Очистные сооружения оборотного цикла газоочистки

Выводы

Рекомендации

Перечень ссылок

Приложения

Введение

Конвертерный цех ОАО «МК «АЗОВСТАЛЬ» с конвертерами емкостью 400 т был введен в эксплуатацию в 1977 г.

Газоотводящий тракт был запроектирован УкрГНТЦ «Энергосталь» для отвода, охлаждения и очистки конвертерных газов, выделяющихся во время продувки из конвертера и содержащих до 90% СО и 100 г/м3 пыли, при интенсивности подачи кислорода в ванну до 1800 нм3/мин и режиме без дожигания окиси углерода.

Целью настоящей работы является: разработка рекомендаций по стабилизации и повышении эксплуатационной надежности работы оборудования газоотводящих трактов и оборотного цикла конвертеров №№ 1, 2, в т.ч. в условиях наращивания производства.

1. описание газоотводящего тракта

Газоотводящий тракт конвертера емкостью 400 т, запроектированный на работу с отводом конвертерных газов без дожигания оксида углерода в охладителе, в настоящее время работает в режиме с частичным дожиганием при интенсивности продувки 1200-1400 нм3/мин. Во избежание выбивания конвертерного газа в цех работа тракта происходит с подсосом воздуха в пределах изменения коэффициента расхода воздуха a = 0,05¸0,2.

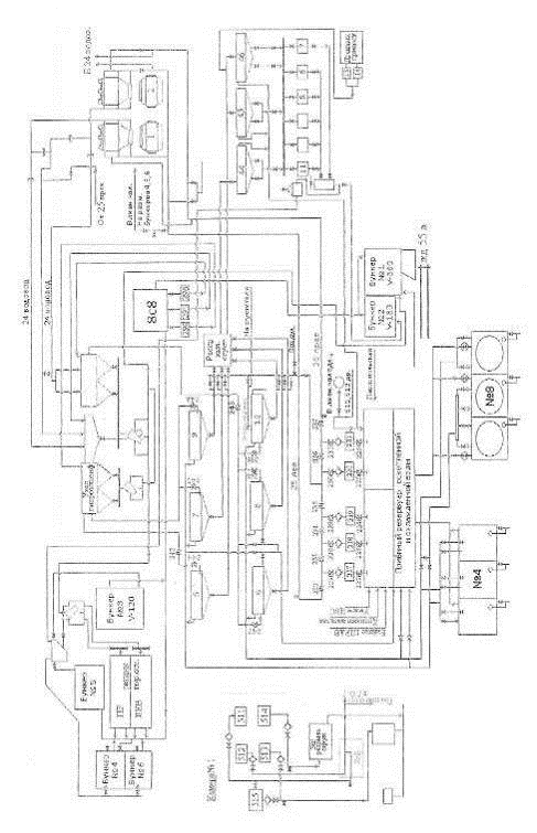
Принципиальная схема газоотводящего тракта 400 т конвертера представлена на рис. 1.1 и включает следующие основные его элементы:

а) охладитель конвертерных газов типа ОКГ-400;

б) газоочистку, состоящую из двух ступеней очистки и каплеуловителя с регулируемым завихрителем;

в) нагнетатель типа 8500-II-I;

г) свечу с дожигающим устройством;

д) систему контроля и автоматики.

Радиационный охладитель конвертерных газов (ОКГ-400), предназначенный для охлаждения газов до величины, обеспечивающей безаварийную работу газоочистного оборудования и использования воспринимаемого тепла для выработки пара, представляет собой газоплотную конструкцию, состоящую из следующих элементов:

а) подвижной «юбки»;

б) откатного кессона;

в) стационарного газохода;

г) крышек с песочным затвором;

д) кессончиков окна фурмы и окон сыпучих.

«Юбка» опускается на горловину конвертера во время продувки и является буферной емкостью, служащей для восприятия колебаний выходящих из конвертера газов в течение продувки. «Юбка» - газоплотная, экранированная трубами с циркулирующей по ним водой.

Для очистки отходящих конвертерных газов от пыли установлена двухступенчатая газоочистка, первоначально состоящая из последовательно включенных двух ступеней круглых труб Вентури с кольцевым зазором [1]. Труба Вентури первой ступени с узлом предварительного охлаждения (УПО) служит для охлаждения и предварительной очистки газов от крупной пыли. Регулируемая труба Вентури второй ступени обеспечивает очистку газа до требуемых значений конечной запыленности конвертерных газов и при необходимости регулирование их расхода.

Однако в процессе эксплуатации были выявлены недостатки существующей схемы, а именно:

-       повышенное гидравлическое сопротивление первой ступени газоочистки до 5 кПа;

-       низкая надежность охлаждения стенок УПО.

В течение 1993-1994 г.г. круглые трубы Вентури первой ступени были реконструированы. Реконструкция включала:

-       демонтаж рассекателя и подвижного конуса трубы Вентури;

-       демонтаж системы центрального орошения;

-       установка ярусов форсуночного орошения первой ступени.

Рисунок 1.1 - Принципиальная схема газоотводящего тракта ОАО «МК «АЗОВСТАЛЬ»

В 1998-2000 г.г. с целью возможности регулирования расхода конвертерных газов и повышения степени очистки газа от пыли была произведена реконструкция круглой трубы Вентури второй ступени газоотводящего тракта конвертеров №1, 2. Реконструкция включала:

-       демонтаж кольцевой трубы Вентури второй ступени регулируемым конусом и установка двух новых параллельно установленных прямоугольных труб Вентури;

-       монтаж маслостанции для привода гидроцилиндра, осуществляющего синхронное передвижение регулировочных створок труб Вентури;

-       обеспечение дистанционного управления положением створок труб Вентури.

Вторая ступень труб Вентури состоит из двух прямоугольных регулируемых труб Вентури с закругленными створками сечением горловины 2000х400 мм (в пережиме). В каждой трубе Вентури установлено по 8 центробежных форсунок ФВК-25 с полным факелом распыляемой жидкости, расположенных на расстоянии 250 мм друг от друга. Форсунки полностью перекрывают сечение горловины трубы Вентури и расположены на высоте 760 мм от пережима. В каждой регулируемой трубе Вентури на двух валах закреплены регулировочные створки криволинейной формы (рис 1.2). С помощью гидравлической системы маслостанции осуществляется дистанционное управление гидроцилиндром с пульта управления дистрибуторной, а также с пульта маслостанции [2].

Шламовая вода через ловушки колено-сепаратора и бункера после каждой ступени труб Вентури попадает в гидрозатвор, общий шламопровод и направляется в оборотный цикл водоснабжения.

Для сепарации влаги за каждой трубой Вентури установлен коленный сепаратор с водоотводчиками. Кроме того, для улавливания капельной влаги из газового потока за второй ступенью труб Вентури установлен циклонный каплеуловитель с двухсекционным регулируемым лопаточным завихрителем. Лопатки внутренней секции неподвижны. Внешняя кольцевая секция состоит из 12 поворотных лопаток, углы установки которых должны составлять 45°, однако в настоящее время из-за зарастания отложениями и заклинивания не все лопатки можно регулировать, и они находятся в различных положениях.

Транспортирование конвертерных газов по тракту обеспечивается нагнетателем 8500-1-11 с электродвигателем мощностью 5000 кВт, расположенным в отдельно стоящем здании дымососного отделения, помещении машзала категории взрывобезопасности В-1а. Пульты управления нагнетателей вынесены в отдельное помещение от машзала.

Свеча с дожигающим устройством высотой 100 м предназначена для выброса очищенных конвертерных газов. Оксид углерода, содержащийся в отходящем газе, дожигается на свече в дожигающем устройстве, состоящем из четырех камер дожигания, оборудованных запальными устройствами.

Система контроля и автоматики предназначена для оперативного управления, регулирования и контроля параметров газоотводящего тракта, обеспечения надежности отвода, охлаждения, очистки конвертерного газа и безопасной работы тракта.

Рисунок 1.2 - Труба Вентури

2. Технологический режим выплавки стали и отвода газов

Для выплавки стали в конвертере на ОАО МК «АЗОВСТАЛЬ» используется шихта следующего состава:

Лом стальной 20-25%, который используется в качестве охладителя плавки.

Чугун жидкий десульфурированный 75-80%.

Жидкий чугун, поступающий из миксерного отделения, имеет следующий химсостав:4,0-4,1%; Si 0,5-0,7%; Mn 0,3-0,4%; S 0,02-0,03%; P 0,045-0,046%;

Температура заливаемого чугуна 1300-1400°C.

При завалке конвертера 40% извести и флюсов подается на лом, остальные 60% присаживаются порциями в течение всей продувки. Известь и флюсы присаживаются с целью ускорения образования высокоосновного жидкоподвижного шлака для дефосфоризации чугуна. Флюсы ОДФ (флюс доломитовый железистый) имеют в своем составе ~ 34% MgO, БДУ (брикетированный доломит уплотненный) ~ 17% MgO, флюс P-55 ~ 64% MgO соответственно. Вследствие более низкой температуры плавления у флюсов, чем у извести процесс шлакообразования происходит более интенсивно. Применение этих флюсов также повышает стойкость футеровки, так как снижается степень проникновения кислого оксида SiO2 в рабочий слой основной футеровки конвертера.

Продувка кислородом ведется сверху при интенсивности 1200 нм3/мин, в первые и последние минуты продувки интенсивность составляет до 1400 нм3/мин.

Отвод газов осуществляется в режиме с частичным дожиганием оксида углерода в ОКГ при расходе газов 400 тыс.м3/ч, коэффициент избытка воздуха составляет около 0,2.

Дутьевой режим и режим подачи присадок представлен на рис. 2.1.

Газовый анализ продуктов сгорания за ОКГ представлен на рисунке 2.2.

УкрГНТЦ «Энергосталь» и НПФ «Технология» СВНЦ НАН Украины выполнили в 2002 г. работу [3], результаты которой показали, что в связи с изменением сырья в основных переделах комбината, изменился состав чугуна (увеличение содержания кремния до 1-1,2%) и технологические режимы подачи извести. Это привело к образованию отложений в аппаратах газоочистки и ухудшению ее работы.

Рисунок 2.1 - Дутьевой режим и режим подачи присадок на плавке № 113177 конвертера № 1
 ОАО "МК "АЗОВСТАЛЬ"

Рисунок 2.2 - Газовый анализ отходящих газов на плавке № 113177 конвертера № 1

По данным работы [4], в 2002-2004 г. были увеличены показатели щелочности и жесткости воды в оборотном цикле водоснабжения газоочисток конвертеров №1,2, связанные как с увеличением суточного количества плавок в связи наращиванием производства стали, так и с увеличением выноса извести до 26% от общего пылеуноса. Увеличение массы извести, выносимой в тракт, в свою очередь, зависит от увеличения количества извести, подаваемой за плавку в связи с повышенным содержанием кремния в чугуне, и принятой на комбинате технологией подачи извести в конвертер.

. Результаты испытаний газоочисток

Для взрывобезопасного отвода газов в режиме с частичным дожиганием при необходимости сокращения выбросов СО, а также для надежной работы системы регулирования, система «нагнетатель-тракт» должна удовлетворять ряду требований:

-       нагнетатель должен устойчиво работать во всем диапазоне регулирования расхода газа, развивая при этом необходимый напор и производительность;

-       труба Вентури второй ступени должна обеспечивать гидравлическое сопротивление, для эффективной очистки газов до требуемых значений конечной запыленности;

-       расходная характеристика должна иметь вид монотонной кривой, что обеспечивает пропорциональное изменение параметров.

По данным работы [2] расходная характеристика трубы Вентури имеет вид монотонной кривой, что удовлетворяет требованиям надежной работы системы регулирования.

Испытания гидравлического и температурного режимов проведены при интенсивности продувки кислородом 1200-1400 нм3/мин. Усредненные данные по гидравлическому и температурному режимам работы газоотводящих трактов конвертеров в настоящее время представлены в таблице 3.1. При увеличении зазора между створками до 180 мм (конвертер №1) и 210 мм (конвертер №2) снижается гидравлическое сопротивление трубы Вентури второй ступени до 15 и 12 кПа соответственно, что ниже значений гидравлического сопротивления 17 кПа по режимной карте. Уменьшение гидравлического сопротивления на трубах Вентури приводит к снижению эффективности очистки газа от пыли. По данным лаборатории конечная запыленность газа в 2010 г. составляла 138 мг/м3 и выше.

Расходы воды на газоочистки 1480-1600 м3/ч превышают расходы воды, указанные в режимной карте. Увеличение расхода воды выше 1030 м3/ч на первую ступень газоочистки вместе с УПО приводит к повышенному выносу шламовых вод во вторую ступень. Ранее проведенные испытания показали возможность сокращения расхода воды [3].

Гидравлический режим работы газоотводящего тракта конвертера №2 представлен на рис. 3.1, температурный режим на рис. 3.2.

В ранее проведенных испытаниях [1, 5] была определена зависимость работы второй ступени труб Вентури от положения створок и зазора между ними.

При проектном зазоре в горловине труб Вентури 170-180 мм, расходе газа 390-400 тыс. м3/ч, расходе воды 400-420 м3/ч достигается гидравлическое сопротивление трубы Вентури второй ступени 16,5-17 кПа и скорость газа в горловине 155-160 м/с. Конечная запыленность газов при этом составляла 75-100 мг/м3 (табл. 3.2).

При увеличении зазора между створками более 180 мм до 240-270 мм гидравлическое сопротивление трубы Вентури второй ступени снижается до 15кПа и ниже, при этом расход газа повышается до 415-425 тыс. м3/ч, что приводит к снижению скорости газа в горловине до 130 м/с и снижению эффективности очистки газов (табл. 3.3)

Таблица 3.1 - Параметры работы газоотводящих трактов конвертеров №1, 2

№ п/п

Наименование параметров

Ед. измерения

Режим работы




по режим. карте

конв. №1

конв. №2

1

Расход кислорода на продувку

нм3/мин

1200-1400

1200-1400

1200-1400

2

Расход влажных газов в период продувки

тыс. м3

410-430

380-400

410-420

3

Расход оборотной воды на аппараты газоочистки:

м3





-предварительное охлаждение


300-320

390

440


-периферийное орошение 1 ст.


380-420

360

420


-центральное орошение 1 ст.


300-320

310

340


-центральное орошение 2 ст.


380-420

420

400

4

Давление оборотной воды в подающем коллекторе на отм. +37,000

МПа

не менее 0,4

0,6

0,6

5

Гидравлическое сопротивление 2 ст. газоочистки

кПа

17-18

14,5-15,0

12-12,5

6

Разрежение перед нагнетателем

кПа

19-21

17,5

14,5

7

Напор после нагнетателя

кПа

0,6-1

3,1

6,1

8

Температура газов перед нагнетателем

°С

55-60

55-59

55-59


В процессе обследования проводилась проверка соответствия показаний приборов КИП с фактическими замерами.

Рисунок 3.1 -Гидравлический режим работы газоотводящего тракта конвертера №1 (плавка №100605).

1 - разрежение перед 1-ой ступенью; 2 - разрежение после 1-ой ступени;

- разрежение после 2-ой ступени; 4 - разрежение после газоочистки;

- разрежение перед нагнетателем;

Таблица 3.2 - Режим работы газоочистки конвертера №1 при зазоре 170-180 мм

Время плавки, мин

Расходы воды, м3

Расход газа, тыс.м3

Разреж. после 1-ой ст., кПа

Разреж. после 2-ой ст., кПа

Разреж. перед нагн., кПа

Температура газа, °С







После 2 ст.

Перед нагнетателем

1

УПО-310-330 Периф. 1-й ст.-360-390 Центр 1-й ст.- 300-310 Центр 2-й ст.- 400

390-400

0,45-0,57

17,4

18,9

30

30

2




17,4

18,95

47

46

3




17,4

18,95

56

54

4




17,35

18,9

57

55

5




17,3

18,7

57

55

6




17,25

18,65

57

55

7




17,2

18,6

56

54

8




17,1

18,5

56

54

9




17,1

18,5

55

53

10




17

18,5

55

54

11




17

18,3

55

53

12




16,9

18,2

53

53

13




16,8

18,1

53

50

14




16,7

18

54

5


Таблица 3.3 - Режим работы газоочистки конвертера №2 при зазоре между створками труб Вентури второй ступени 220 мм

Время плавки, мин

Расход воды, м3

Расход газа, тыс. м3

Разреж. после 1-ой ст., кПа

Разреж. после 2-ой ст., кПа

Разреж. перед нагн., кПа

Температура газа, °С







Перед 1 ст.

Перед 2 ст.

После 2 ст.

Перед нагн.

1

УПО-360  1-й ст.-400  Центр 1-й ст.- 300   Центр 2-й ст.- 400

415-425

0,35-0,45

15,5

19

-

55

-

53

2




16

19,5

400

62

56

54,5

3




15,5

19

1080

68

58

57

4




15,5

18,8

1080

72

60

59

5




15,2

18,5

1040

71

60

59,5

6




15

18,5

980

70

59

58

7




14,7

18,3

950

69

58

57,5

8




14,8

18,3

930

69

58

57,5

9




14,5

18

900

68,5

57

56,5

10




14,3

17,8

880

68

57

56,5

11




14,2

17,8

860

67

56

55

12




14,5

18,2

840

67

56

55

13




14,5

18,2

820

65

56

55

14




14,8

17,5

62

55

53


По результатам предыдущих испытаний [1,5] значения коэффициента гидравлического сопротивления ζобщ находятся в пределах 1,25-1,5 , что практически в 2 раза ниже значений ζобщ круглой кольцевой трубы Вентури до реконструкции. Более низкие значения коэффициента гидравлического сопротивления свидетельствуют об улучшенной конфигурации трубы Вентури и возможности достичь больших значений скорости газа в горловине при располагаемом гидравлическом сопротивлении труб Вентури.

Однако на усовершенствованной конструкции трубы Вентури газоотводящих трактах конвертеров ОАО «НТМК» были получены еще более низкие значения ζобщ.=1,1-1,2 При гидравлическом сопротивлении труб Вентури Δр=13,5-14 кПа были достигнуты значения конечной запыленности 60-80 мг/м3 [6]. Это свидетельствует о возможности совершенствования конструкции второй ступени прямоугольных труб Вентури ОАО «МК «АЗОВСТАЛЬ» для снижения конечной запыленности газа при располагаемых гидравлических сопротивлениях труб Вентури второй ступени до 17 кПа.

Для дальнейшей работы рекомендуется режим работы с подачей 1000-1030 м3/ч воды на УПО и первую ступень очистки с достижением перед нагнетателем температуры до 60°С. На прямоугольные трубы Вентури расход воды должен составлять не более 400м3/ч. Эффективная очистка газа 75-100мг/м3 может быть достигнута при зазоре между створками не более 170-180мм и гидравлическом сопротивлении труб Вентури второй ступени 17 кПа.

4. Эксплуатационная надежность работы аппаратов газоочистки

Обследование оборудования газоотводящего тракта включало проведение технических осмотров всего оборудования газоотводящего тракта совместно с энергослужбой цеха и определение параметров работы оборудования при существующем режиме работы конвертера. Состояние аппаратов газоочистки определялось при внутреннем осмотре в период перефутеровки конвертеров и при остановках на чистку газоочисток.

В период выполнения работы проведены осмотры текущего состояния газоочистки конвертера №2 [приложение А].

Во время осмотра количество плавок с начала кампании конвертера №2 составило 2267 и с момента предыдущей чистки - 166.

В конфузорах труб Вентури второй ступени отмечены незначительные отложения, равномерно расположенные по стенке толщиной до 30 мм. При установленном зазоре в горловине труб Вентури второй ступени 180 мм отложения составили до 20 мм на каждой створке. С учетом неравномерных отложений по длине сечения горловины ширина зазора колеблется от 180 до 140 мм. Из-за зарастания торцевых стенок горловины трубы Вентури, сложно выставлять требуемый зазор, фактически отсутствует возможность регулирования зазора.

На корпусах форсунок образуются трудноудаляемые отложения. На внутренних поверхностях форсунок постепенно зарастают как рассекатели, так и выходные центральные отверстия, т.е. форсунки не обеспечивают необходимый расход воды. Вследствие частичного зарастания ряда форсунок происходит неравномерное орошение сечения горловины каплями орошающей жидкости и снижение эффективности очистки газов от пыли.

Шламоотводящие желоба влагоотбойных пластин, установленных в колено-сепараторах первой и второй ступеней труб Вентури, отвод шлама от которых осуществляется в гидрозатвор по индивидуальным патрубкам, в процессе работы полностью зарастают отложениями. Это приводит к выносу шламовых вод в количестве 30-50% от расхода воды на первую ступень, которые попадают в трубы Вентури второй ступени, и приводят к зарастанию створок. Так же имеется значительный износ стенок колено-сепараторов первой и второй ступеней труб Вентури и защитных пластин, установленных в них.

В баке-гидрозатворе 2-ой ступени обнаружены отложения на дне высотой до 100 мм. В бункерах первой и второй ступени, баке-гидрозатворе первой ступени и каплеуловителя отложений не обнаружено, смыв карманов каплеуловителя производится удовлетворительно.

Наличие отложений в аппаратах газоочистки связано со значительным выносом мелкой фракции извести с конвертерными газами и попаданием ее в систему оборотного цикла, что приводит к высокой щелочности и жесткости воды оборотного цикла водоснабжения. Анализ характера отложений показывает, что нарастания их на створках в горловинах труб Вентури второй ступени образуются в местах интенсивного форсуночного орошения водой, содержащей достаточное количество карбонатных солей. По результатам анализа рН воды составляет около 10 [5].

При проверке гидрозатворов после труб Вентури второй ступени, каплеуловителя, а также после ловушек на газоходах чистого газа отмечены подсосы воздуха, что нарушает гидравлический режим работы газоочисток. Для устранения подсосов воздуха в гидрозатворе после второй ступени труб Вентури должна быть увеличена высота шламового патрубка каплеуловителя для ликвидации брызгоуноса в каплеуловитель. Расстояние патрубков отвода шламовых вод до дна в гидрозатворе труб Вентури должно быть 300 мм (по проекту), в настоящее время 500-600 мм. Необходимо выполнить переврезку патрубка отвода шламовых вод от верхнего кармана каплеуловителя. В результате недостаточной величины гидрозатвора происходит подсос воздуха и вынос шлама. В гидрозатворе ловушек высота бака должна обеспечить высоту столба жидкости более 2200 мм, в соответствии с развиваемым разрежением перед нагнетателем для снижения попадания шлама и капель в его корпус.

Необходимо также отметить зарастание участков газохода за нагнетателем, которое приводит к увеличению их гидравлического сопротивления до 3-6 кПа (по проекту 1 кПа), что связано с высокими значениями конечной запыленности газа и недостаточно частой чисткой газоходов. Также отмечается значительное зарастание многотрубных сопел дожигающего устройства.

Для надежной работы газоотводящего тракта важным является эффективная работа каплеуловителей. Увеличение выноса капельной влаги из колено-сепаратора первой ступени труб Вентури, кроме увеличения расхода воды на вторую ступень труб Вентури, приводит к увеличенной нагрузке на колено-сепаратор второй ступени труб Вентури и каплеуловитель с завихрителем. Удельный расход воды на вторую ступень труб Вентури возрастает с 2,0 л/нм3 до 4,5 л/нм3, нагрузка на каплеуловитель с завихрителем возрастает от 600 г/м3 до 1200 г/м3 (при эффективности улавливания бункера 70%). Такая повышенная нагрузка по жидкости на каплеуловитель приводит к увеличению каплеуноса из него [7], а значит увеличению выпадения пыли по газоотводящему тракту и в нагнетателе. Осмотр состояния лопаток завихрителя показал, что лопатки установлены под различными углами. Необходимо четко следить за установкой регулируемых лопаток завихрителя, угол наклона лопаток (к горизонтали) должен составлять 37° [5].

Существующие фильтры очистки воды, подаваемой на форсунки орошения труб Вентури второй ступени, часто зарастают из-за конструктивных недостатков и требуют замены.

Для более эффективной очистки оборотной воды, подаваемой на форсунки второй ступени, необходима установка сетчатого фильтра (рис. 4.1). Сетчатый фильтр выполнен в вертикальном исполнении с диаметром отверстий в фильтрующем элементе 8 мм. Для бесперебойной работы фильтров в условиях повышенного количества взвешенных в воде предусматривается установка двух фильтров (один рабочий и один резервный).

Указанная конструкция фильтра реализована на нескольких газоочистках конвертеров и рекомендуется к установке на всех газоочистках, проектируемых УкрГНТЦ «Энергосталь».

Рисунок 4.1 − Сетчатый фильтр

Кроме того, необходимо отметить неудовлетворительное состояние задвижек на подводах воды к аппаратам очистки и невозможность дистанционного регулирования расходов воды, подаваемой на аппараты газоочистки.

Для удобства проведения чисток внутренних поверхностей и регулировочных лопаток труб Вентури второй ступени во время ППР необходимо заменить три существующих люка на два большего размера.

Маслостанция и гидропривод, предназначенные для регулирования положения створок труб Вентури находятся в рабочем состоянии, но ввиду зарастания лопаток система автоматического регулирования расхода газа и поддержания гидравлического сопротивления труб Вентури не эксплуатируется.

Таким образом, по результатам обследования получено:

-       при существующем производстве стали недостаточное количество и продолжительность проведения ППР;

-       наличие большого количества отложений в аппаратах газоочистки объясняется повышенным выносом извести в газоотводящий тракт и высоким солесодержанием подаваемой оборотной воды;

-       зарастание элементов газоотводящего тракта приводит к нарушению газодинамических характеристик тракта и, как следствие, снижению его пропускной способности и повышению выбросов пыли в атмосферу;

-       при снижении эффективности очистки газа происходит и интенсивное налипание пыли на роторе нагнетателя и повышение уровня вибрации на подшипниках электродвигателя, а также более интенсивное зарастание газоходов после нагнетателя и многотрубных сопел дожигающего устройства на свече;

-       работа газоотводящих трактов с увеличенным расходом газа (возрастает коэффициент избытка воздуха) приводит к повышенной тепловой нагрузке на ОКГ и зашлаковыванию поверхностей нагрева.

5. Системы КИП, блокировки, сигнализации для обеспечения взрывобезопасной работы газоотводящего тракта

При способах отвода газов с коэффициентом избытка воздуха на выходе из охладителя меньше 0,75 содержание окиси углерода приближается к нижнему пределу воспламенения. Под нижним пределом воспламенения понимают наименьшее количество горючего газа в смеси с воздухом, выраженное в объемных процентах, и достаточное для воспламенения. Нижний предел воспламенения для окиси углерода составляет 12,5%, для водорода 4,5%. Под верхним пределом воспламенения понимают максимальное содержание горючего газа в смеси, при котором уже не происходит воспламенения. Верхний предел для окиси углерода равен 74,5%, для водорода - 67,5%. Детонационное горение возможно в относительно узком диапазоне взрывоопасных смесей для СО с воздухом - при 34%<СО<52%, 9,7%<О2<12,9%. Увеличение содержания в смеси инертных газов повышает нижний предел воспламенения и снижает верхний.

Таким образом, при отводе газа с коэффициентом избытка воздуха менее 0,75 по тракту после охладителя протекает газ, содержащий горючие компоненты и способный в присутствии воздуха гореть и взрываться.

В пределах охладителя температуры газов >700°C значительно выше температуры воспламенения; подсос воздуха в зоне охладителя приводит к дожиганию газа без опасности взрыва. В зонах тракта с пониженными температурами (ниже 600-650 °C) подсос воздуха уже не вызывает дожигания газа, образуется газо-воздушная смесь с высокой скоростью воспламенения. При наличии запала (искра, накопление статического электричества и др.) эта смесь может взрываться (возникают хлопки).

Взрывоопасные смеси могут воспламеняться от горелок дожигающего устройства и факела конвертерного газа на свече при проскоке пламени в ствол дымовой трубы. Проскок происходит в случае, если скорость распространения пламени превысит скорость выхода газа из дожигающего устройства. Воспламенение смеси в тракте может происходить также при авариях с ротором нагнетателя от искр.

Технические решения, направленные на исключение взрывов в газоотводящих трактах конвертеров при отводе газов с частичным дожиганием, можно разделить на меры по исключению образования в трактах взрывоопасных газовых смесей и меры, предотвращающие их воспламенение. Для практически полного исключения взрывов необходимо внедрение всего комплекса защитных мероприятий.

Для исключения образования взрывоопасных смесей вследствие подсосов воздуха в «холодную» часть тракта необходимо обеспечить и контролировать газоплотность тракта. В газоотводящих трактах конвертеров, работающих с отводом газов в режиме без дожигания окиси углерода, подъемный и частично опускной газоходы ОКГ находятся под избыточным давлением, как и участок тракта за нагнетателем. Газоплотность на этих участках необходима, в основном, в целях исключения выбивания пламени, а также запыленного и токсичного газа в цех. Эти зоны являются газоопасными, доступ в них во время продувки запрещается. В помещении нагнетателей должно постоянно контролироваться содержание СО, для чего должен быть установлен газоанализатор, сигнализирующий о превышении концентрации оксида углерода выше допустимой.

Газоплотность же части тракта, находящейся под разрежением, необходима для обеспечения взрывобезопасности.

Газоплотность ОКГ обеспечивается за счет его газоплотных мембранных панелей с применением специальных компенсаторов, песочных или гидравлических затворов в местах стыковки отдельных частей ОКГ, стыковки его с газоочисткой. Газоплотность газоочистки обеспечивается за счет выполнения всех ее аппаратов газоплотными, применения баков-гидрозатворов при отводе шламовых вод от аппаратов газоочистки.

Для исключения образования взрывоопасных смесей в тракте вследствие смешения последовательно движущихся объемов газа с высоким содержанием СО и газа с высоким содержанием кислорода наиболее действенным средством является формирование достаточного разделительного объема невзрываемого газа − «тампона». В настоящее время газоотводящие тракты работают в режиме частичного дожигания, но с коэффициентом избытка воздуха >0,2, поэтому величина «тампона» нейтральных газов выше оптимальной.

В ходе проведения работ было проведено обследование и испытание оборудования системы обеспечения взрывобезопасности газоотводящих трактов конвертеров №№1, 2 [Приложение Б].

В результате обследования состояния оборудования установлено:

1.      Существующая система зажигания и тушения горелок не соответствует требованиям условий взрывобезопасности:

подача газа на существующие запальные горелки осуществляется постоянно, независимо от периода плавки, при этом розжиг горелок осуществляется в местном режиме (вручную);

отключение постоянно горящих запальных горелок поджигания факела дымовых газов после появления факела не происходит, соответственно параметры работы запальных горелок не связаны с автоматическими блокировками безопасности.

2.          Система аварийного тушения факела дымовых газов отсутствует.

3. Существующий комплекс КИП не обеспечивает функционирование системы взрывобезопасной эксплуатации газоотводящих трактов в полном объеме.

4. Существующая система сигнализации отклонения параметров, обеспечивающих взрывобезопасную эксплуатацию газоотводящих трактов, от номинальных значений, задействована не в полном объеме.

5. Существующая система автоматических блокировок, обеспечивающих условия безопасной работы при нарушении режимных параметров, не введена в полном объеме.

6. Система газового анализа дымовых газов не соответствует требованиям взрывобезопасной эксплуатации газоотводящих трактов в полной мере:

Система газового анализа в опускном газоходе (ФТИАН) функционирует со следующими параметрами:

·  периодичность отбора проб газа составляет 2,4 с;

·  замедление показаний результатов анализа составляет в среднем 40-45 с;

- существующим проектом не предусмотрена связь параметров газового анализа ФТИАН с автоматическими блокировками системы взрывобезопасности.

Сигнализатор типа СТХ, который был установлен за нагнетателем, демонтирован.

7. Существующий гидрозатвор перед нагнетателем №2 в связи с недостаточной высотой не исключает подсос холодного воздуха в газоотводящий тракт.

8. Схема аварийного подъема фурмы находится в рабочем состоянии.

При обследовании газоотводящих трактов определены причины неудовлетворительной работы системы обеспечения взрывобезопасности, к основным из которых относятся:

·  демонтирована арматура, трубопроводы и оборудование КИП системы подачи аварийного пара в ствол свечи;

·  ненадежность проектной системы дистанционного (автоматического) включения запальных горелок;

-отсутствие автоматического режима отключения запальных горелок;

· отсутствие анализа состава дымовых газов за нагнетателем на содержание кислорода;

· отсутствие системы пробоподготовки для анализа состава дымовых газов за нагнетателем.

На основании результатов испытаний и обследования работы оборудования можно утверждать:

1. Существующая система обеспечения взрывобезопасности не в состоянии обеспечить соблюдение условий взрывобезопасной эксплуатации газоотводящих трактов в полном объеме.

2. В связи с причинами, указанными в акте, восстановление системы взрывобезопасной эксплуатации газоотводящих трактов, в объеме существующей проектной документации, представляется нецелесообразным.

Для обеспечения взрывобезопасной эксплуатации газоотводящих трактов необходимо выполнить реконструкцию дожигающего устройства, в том числе:

−       восстановить системы аварийного тушения факела дымовых газов;

−       восстановить системы дистанционного включения и отключения поджигающих горелок;

−       ревизию (восстановление) системы КИП, сигнализации и блокировок в полном объеме;

−       ревизию оборудования, обеспечивающего выполнение установленной последовательности операций при автоматическом прерывании продувки (механизм подъема фурмы с пониженной скоростью, подача флегматизатора на свечу дожигания и т. д.);

−       установить за нагнетателем прибор контроля одновременного содержания СО и О2;

−       укоротить многотрубные сопла дожигающего устройства, или установить кольцевое сопло, что потребует реконструкции дожигающего устройства;

. Очистные сооружения оборотного цикла газоочистки

Очистные сооружения оборотного цикла газоочисток ККЦ «МК«АЗОВСТАЛЬ» включает:

·        Шесть флокуляторов диаметром 12 м;

·        Три сгустителя диаметром 18 м.

·        Блок обезвоживания шлама, состоящий из 2 горизонтальных отстойников и 5 бункеров для накопления взвеси.

Рисунок 6.1 - Схема оборотного цикла водоснабжения газоочисток ККЦ

.        В процессе работы специалистами УкрГНТЦ «Энергосталь» совместно с эксплуатационным персоналом был произведен осмотр оборотного цикла газоочисток и отдельных сооружений (камера дегазации и узел улавливания крупной фракции, флокуляторы; сгустители; горизонтальные отстойники для шламовой пульпы крупной фракции; бункера для шламовой пульпы флокуляторов, реагентное хозяйство).

Проведено обследование устройств реагентного хозяйства и методов дозирования флокулянтов и ингибиторов. Установка для подачи ингибиторов расположена в конвертерном отделении на отм. +45.0, состоит из двух
200-литровых бочек с мешалками, из которых насосом дозатором реагент подается в водовод после сетчатого фильтра, во вторую ступень газоочистки. Место ввода ингибитора расположено на малом расстоянии от газоочистки, поэтому ингибитор не успевает перемешиваться с водой, вследствие чего не достигался ожидаемый результат. В настоящее время установка не работает. Определено место новой врезки патрубка для подачи ингибитора. Также определено место врезки патрубка для установки индикатора накипеобразования на самой трубе Вентури.

Установка для приготовления флокулянта, расположена в ЦУЖШ и представляет собой бак емкостью 3 м3 с электромешалкой для приготовления реагента и 2 бака накопителя емкостью 3 м3 с запасом работы на 8 часов, для дозирования приготовленного раствора непосредственно в камеру дегазации методом вытеснения раствора флокулянта сжатым воздухом. Данная система приготовления и подачи флокулянта имеет следующие недостатки:

·        Неудачно расположено место подачи флокулянта в камеру дегазации. Из-за чего флокулянт не успевает достаточно перемешаться в воде.

·        Методом подачи сжатого воздуха невозможно достичь оптимального расхода флокулянта.

.        Проведено обследование оборотных циклов газоочисток. Уточнены принципиальная схема оборотного водоснабжения и расходы воды на каждую газоочистку.

.        Проанализированы данные химсостава воды оборотного цикла. Средние (за сутки) данные по отдельным компонентам химсостава воды приведены в таблицах 6.1 и 6.2 и на рисунках 6.2-6.6.

Таблица 6.1 - Химсостав воды подающейся на газоочистку за период октябрь - ноябрь 2010 г. (25 водовод)

Октябрь - Ноябрь 2010 г.

водовод № 25

Сутки

Ж, общ

Ж, Са

Щ, ф/ф

Щ, общ

рН

1

12,71667

12,51667

5,2

5,608333

11,475

2

12,58333

12,38333

5,016667

5,416667

11,415

3

12,73333

12,53333

4,52

5,066667

11,4

4

13,23333

12,91667

4,266667

4,75

11,39

5

13,38333

13,18333

5

5,4

11,42

6

14,25

14,05

6,65

7,05

11,6075

7

12,88333

12,68333

4,916667

5,416667

11,5

8

13,71667

13,58333

4,716667

5,183333

11,425

9

14,51667

14,31667

6,133333

6,533333

11,525

10

12,45

12,25

2,216667

2,616667

11,025

11

12,48333

12,28333

1,801667

2,203333

10,9

12

12,41667

12,21667

1,1

1,5

11,29

13

11,86667

11,68333

0,816667

1,216667

10,6175

14

12,15833

11,9375

1,195833

1,55

10,4875

15

12,45

12,25

0,716667

1,3

10,65

16

11,42

11,16667

0,366667

0,758333

10,275

17

11,22167

12,59167

0,85

1,25

11,1375

18

14,7

14,5

1,966667

2,408333

10,325

19

12,05

11,85

1,55

1,916667

10,81

20

11,31667

11,08333

0,966667

1,466667

10,675

21

11,05

10,85

1,216667

1,683333

10,6

22

12,05

11,85

1,55

1,916667

10,81

23

12,76667

12,56667

1,466667

1,858333

10,775

24

12,68333

12,46667

2,3

2,7

10,87

25

12,99167

12,8

2,3

2,7

10,915

26

12,05

11,825

0,7775

1,165

10,2575

27

11,98333

11,78333

0,95

1,283333

10,7

28

12,25

12,05833

0,6

1,366667

9,69

29

11,91667

11,68333

0,783333

1,25

10,4

30

12,2

12

0,666667

1,058333

10,325

31

12,7

12,5

1,016667

1,416667

10,69

32

13,33

13,08

0,495

0,895

9,675

33

13,015

12,8

0,816667

1,25

10,1

34

13,2

12,83333

0,95

1,316667

10,07

35

14,03333

12,81667

1,316667

1,75

10,25

36

13,41667

12,95

1,15

1,558333

10,645

37

13,41667

13

0,9

1,3

10,0325

38

13,41667

12,975

1,583333

1,983333

10,81

39

13,4

13,86667

2,2

2,6

11,04

40

12,51667

13,8

0,45

0,816667

9,6

41

13,23333

13,83333

1,416667

1,816667

10,5825

42

11,15

13,1

0,532

1,132

10,3875

11,76667

13,2

0,218333

0,823333

8,65

44

12,15833

13,15

0,570833

0,95

9,8625

45

11,65

13,18333

0,616667

1,016667

9,8875

46

11,6

13,25

0,5

0,86875

10,105

47

9,4775

13,21667

0,45

0,8

9,975

48

12,15

13,16667

1,016667

1,583333

11,1

49

11,73333

13,26667

1,6

1,983333

11,07

50

11,43

13,21667

1,69

2,05

10,9125

51

10,30833

13

1,029167

1,404167

10,395

52

9,683333

13,2

1,216667

1,616667

10,4

53

11,19167

13,1

2,258333

2,658333

11,18

54

9,733333

12,26667

1,641667

2,058333

10,7125

55

9,266667

12,36667

1,683333

2,058333

10,87


Таблица 6.2 - Химсостав павлопольской воды (свежая техническая) за период октябрь - ноябрь 2010 г.

Октябрь - Ноябрь 2010 г.

Павлопольская

Дни

Ж, общ

Ж, Са

Щ, ф/ф

Щ, общ

рН

1

2

3

4

5

6

1

15,925

8,025

0

5

7,775

2

15,9

8,05

0

4,85

7,76

3

15,85

7,9

0

4,75

7,73

4

15,9

7,9

0

4,7

7,735

5

16,175

7,85

0

4,775

7,75

6

15,76667

7,666667

0

4,633333

9,075

7

16

7,95

0

4,65

7,9

8

16,225

8,275

0

4,825

7,675

9

16,25

8,3

0

4,825

7,755

10

16,3

8,2

0

4,75

7,72

11

16,45

8,45

0

4,57

7,72

12

16,275

8,2

0

4,775

7,69

13

16,925

8,25

0

4,825

7,725

14

16,15

7,933333

0

4,733333

7,75

15

16,4

8,6

0

4,95

7,75

16

16,3

8,45

0

4,925

7,75

17

16,15

8,175

0

4,9

7,74

18

16,2

8,5

0

4,7

7,66

19

16,25

8,5

0

4,85

7,65

20

16,2

8,225

0

4,925

7,725

21

16,25

8,35

0

4,9

7,75

22

16,25

8,5

0

4,85

7,65

23

16,375

8,25

0

4,825

7,65

24

16,2

8

0

5

7,675

25

16,2

8

0

5

7,775

26

15,35

7,833333

0

4,866667

7,725

27

16,15

7,2

0

4,9

7,75

28

15,9

7,775

0

5,025

7,75

29

15,85

7,75

0

5

7,7

30

16,05

7,95

0

5,075

7,75

31

16,2

8,15

0

5

7,76

32

15,775

7,8

0

5,05

7,7

33

15,75

7,75

0

5,1

7,7

34

13,95

7,833333

0

7,45

7,815

35

15,4

7,65

0

5

7,7

36

16

8,025

0

5,075

7,675

37

15,825

8,05

0

5,075

7,69

38

15,8

7,85

0

5,15

7,62

39

16,1

7,8

0

5

7,8

40

16,15

8,6

0

5,1

7,72

41

16,125

7,85

0

5,075

7,725

42

15,86667

8,066667

0

5,033333

7,775

43

15,8

8,2

0

5,1

7,68

16,675

8,1875

0,1125

5,325

8,025

45

16,775

8,1

0,05

5,29

8,01

46

17,56667

8,633333

0

5,333333

7,99

47

16,2

8,4

0

5,2

8

48

16,35

8,75

0

5,3

7,75

49

16,375

8,75

0,0725

5,26

8,01

50

16,3

8,366667

0,033333

5,473333

8,04

51

17

8,5

0

5,0325

7,935

52

16,575

8,55

0

5,275

7,965

53

16,6

8,45

0

5,45

7,99

54

16,525

8,375

0,05

5,225

8,045

55

16,275

8,7

0,095

5,075

8,065


Как следует из приведенных данных, щелочность и содержание кальция в воде Павлопольского водохранилища, которая используется для подпитки оборотных циклов, практически остаются постоянными в течение двухмесячного периода. За этот же период показатели оборотной воды испытывают значительные колебания. Можно утверждать, что средняя жесткость в октябре составила 12,55 мг-экв/дм3.

Содержание кальция в среднем составило в октябре 12,39 мг-экв/дм3, а в ноябре 13,11 мг-экв/дм3. Эти показатели различаются незначительно. Что же касается щелочности, то в первые девять суток октября, щелочность составила 4,86 по ф/ф и 5,3 по метилоранжу (т.е. общая). С 10 октября по 25 ноября 2010 г. она составила 1,16 по ф/ф и 1,58 по метилоранжу.

Учитывая, что на две газоочистки подается 3400 м3/ч воды, из которых около 400 м3 подается из условно-чистого оборотного цикла конвертеров и оборотных циклов МНЛЗ, это не влияет на изменения изначального химсостава воды подающегося на газоочистку.

С учетом этого предположения определена склонность воды к образованию карбонатных отложений на форсунках газоочистки и стенках аппаратов газоочистки.

Согласно существующей методике определения стабильности воды [8] определим индекс Ланжелье J:

J = pH - pHs;s = f1 - f2 - f3 + f4,

где, f1 - функция от температуры,2 - функция от содержания кальция,3 - функция от щелочности воды,4 - функция от общего солесодержания.

Функции f1, f2, f3, f4 - определяются по номограмме, приведенной в [1].

Для воды, подаваемой на газоочистку, при температуре 300С;
(Са2+) =12,62 мг-экв/дм3, щелочности - 1,6 мг - экв/дм3 и общем солесодержании - 2297,9 мг/дм3 значения функций следующие: 1 = 1,71; f2 = 1,09; f3 = 1,19; f4= 9,05.=10,5 - (1,71 - 1,09 - 1,19 + 9,05)= 2,02

Для воды, после газоочистки, при температуре 600С;
(Са2+) =12,2мг-экв/дм3, щелочности - 1,9 мг - экв/дм3 и общем солесодержании - 2286,9 мг/дм3 значения функций следующие: 1 = 1,41; f2 = 1,08; f3 = 1,29; f4= 9,05.=8,8 - (1,41 - 1,08 - 1,29 + 9,05)= 0,71

Положительный индекс Ланжелье свидетельствует о возможной склонности воды к образованию карбонатных отложений в форсунках газоочистки и на стенках аппаратов газоочистки, в трубопроводах, подающих осветленную воду и в шламопроводах.

Интенсивность карбонатных отложений

Для оценки интенсивности образования карбонатных отложений в трубе Вентури (в её горловине) был установлен индикатор в виде, площадь которого параллельна направлению потока газа. Конструкция индикатора позволяет извлекать пластину без остановки газоочистки, и в этом основное его преимущество (хотя в ходе данных исследований нам еще не пришлось им воспользоваться). За 26 дней с 21 декабря по 14 января, что соответствует примерно 520- ти плавкам, толщина слоя отложений на каждую сторону составила около 3 мм, то есть 0,0077.

Таким образом, прогнозируется толщина слоя отложений на створках труб Вентури 56,21 мм в год. Это по порядку величин соответствующих тому, что имеет место в действительности. Так, при чистке створок в декабре 2010 г. было установлено, что толщина отложений на створках составила около 12 мм при том, что предварительная чистка створок происходила в июле 2010 г.

Следует отметить, что во время исследований, которые проводились Центром в 2003 г. толщина отложений составила 0,27 мм за плавку, т.е. почти в 50 раз больше, а чистить створки иногда приходилось через 90 плавок. Объяснить эту разницу можно изменениями химсостава воды, подаваемой на газоочистку и температурой (см. табл. 6.3 и 6.4). В 2003 г. средняя щелочность воды, подаваемой на газоочистку составила 10,2 мг-экв/дм3, в т.ч. по ф/ф 9,5 мг-экв/дм3, содержание кальция 13 мг-экв/дм3, температура воды 390С, рН 11,25. В период проведения данных исследований содержание кальция было примерно такое же, но щелочность составила 2,5 мг-экв/дм3, а температура подаваемой воды составила 28 0С.

Таблица 6.3 - Усредненный химический состав воды подаваемой на газоочистку ККЦ в 2011 г.

Усредненные данные по 25 водоводу за январь 2011 г.


Са, мг-экв/л.

рН

Щф/ф, мг-экв/л.

Щм/о, мг-экв/л.

Прав.

9,65

10,95

2,08

2,50

Лев.

9,74

10,71

2,08

2,50

Сред.

9,69

10,83

2,08

2,50


Таблица 6.4 - Усредненный химический состав воды подаваемой на газоочистку ККЦ в 2003 г.

Усредненные данные по 25 водоводу за 2003 г.


Са, мг-экв/л.

рН

Щф/ф, мг-экв/л.

Щм/о, мг-экв/л.

Прав.

12,8

11,2

7,8

8,4

Лев.

13,2

11,3

11,2

12,0

Сред.

13

11,25

9,5

10,2



Рисунок 6.2 - Показатели жесткости за октябрь - ноябрь 2010 г.

Рисунок 6.3 - Показатели щелочности за октябрь - ноябрь 2010 г.

Рисунок 6.4 - Павлопольская. Показатели щелочности за октябрь - ноябрь 2010 г.

Рисунок 6.5 - Показатель рН за октябрь - ноябрь 2010 г.

Рисунок 6.6 - Павлопольская. Показатели рН за октябрь - ноябрь 2010 г.

Содержание извести в шламе

Для понятия, сколько извести выноситься из конвертера и попадает в оборотный цикл газоочистки, были взяты пробы шламовой воды и проведен анализ шлама на содержание извести. Результаты приведены в табл. 6.4

Таблица 6.4 - Содержание извести в шламе газоочистки.

№ колб

Время, мин.

Количество твердого вещества, мг/л

% содержание извести

Содержание извести, г/м3

1

1

-

-

-

2

2

-

-

-

3

4

7225

13

939

4

6

13430

2

267

5

8

10570

5

528

6

10

12680

16

2029

7

12

11600

29

3364

7

14

11245

27

3036

8

16

5930

28

1660

9

18

2200

11

242

10

20

480

14

67

Среднее содержание извести

1,348 кг/м3


Общее количество извести, выносимой за плавку, определяется по формуле:

,

где 1700 - расход воды на одну газоочистку, м3/ч;

- продолжительность периода отбора проб;

,2 - коэффициент, учитывающий отношение средней по сечению концентрации взвеси к концентрации на поверхности воды (пробы воды отбирались вблизи поверхности воды).

Таблицы 6.5 и 6.6 дают представление об относительном распределении поступления извести по ходу продувки, но не отражают абсолютных значений, т.к. часть извести в виде крупных фракций (размером, возможно, до 10 мм) влечется по дну шламопровода, из которого отбиралась вода для анализа. Поэтому представляются более точный способ определения количества извести, выносимой в газоочистку и поступающей в воду.

Таблица 6.5 - Состав воды во время плавки 18.01.2011г. 10ч 20 мин.

№ колб

Время, мин.

рН

Са, мг-экв/л

Щф/ф, мг-экв/л

Щм/о, мг-эвк/л

Взвешенные вещества, г/л

1

1

11,5

12,6

4,1

5

0,1813

2

2

8,7

9,5

0,5

1,9

1,1427

3

4

8,2

12,6

0

5

1,2567

4

6

7,6

13,7

0

3,2

3,371

5

8

7,6

14

0

3

5,0213

6

10

10,5

8,9

2,8

3,9

5,6045

7

12

8,9

10,5

1,9

2,8

10,0043

8

14

10

9,2

1,5

2,7

11,7283

9

16

10,2

10,1

1,6

2,9

7,9256

10

18

11,9

18,3

14

15,2

3,4

11

20

11,4

8,5

2,9

3,9

1,1813

12

22

11,5

12,8

4,3

5,4

0,5601

13

24

11,5

12,6

4,1

5

0,1824

14

26

11,4

11,6

3,9

5

0,2561


Таблица 6.6 - Состав воды во время плавки 18.01.2011 г. 14 ч 40 мин.

№ колб

Время, мин.

рН

Са, мг-экв/л

Щф/ф, мг-экв/л

Щм/о, мг-эвк/л

Взвешенные вещества, г/л

1

1

10,8

13,5

4,8

5

0,4358

2

2

9,5

14,2

3,7

4,8

0,8943

3

4

9,1

11,7

4

5,1

0,5047

4

6

8,6

9,5

0,7

2

5

8

8,3

12,5

0

4,8

9,0874

6

10

7,6

13,4

0

3,2

11,752

7

12

7,4

14

0

3

15,4732

8

14

9,6

10,9

1,9

2,8

14,0046

9

16

10

9,2

1,5

2,7

9,9471

10

18

11,4

12,4

2,9

3,9

2,7294

11

20

11,4

12,7

2,4

3,5

1,6047

12

22

11,5

12,9

4,1

5

0,8941

13

0

10,9

9,4

2

3,4

0,5748

14

0

11,6

10

3,9

5

0,6491


Этот метод определения выноса извести базировался на составлении баланса по извести, загружаемой в конвертер, с одной стороны, и содержащейся в шлаке и выносимой в газоочистку, с другой. С этой целью по паспортам ряда плавок, произведенных в январе 2011 г., были приняты данные по загружаемой извести и по содержанию CaO+MgO в шлаке (см. табл. 6.7).

Таблица 6.7 - Содержание CaO и MgO в шлаке

№ плавок

Количество загруженной извести, т

Содержание в шлаке, %



CaO

MgO

Всего

1

15,34

43,02

7,04

50,06

2

16,34

49,82

5,86

55,68

3

16,49

41,33

6,98

48,31

4

16

42,2

7

49,2

5

12,2

42,58

7,12

49,7

Средние значения

15,274

43,79

6,8

50,59


Содержание CaO + MgO в используемой в настоящее время извести составляет 92%. Следовательно, количество активного продукта в загружаемой извести составляет, в среднем 15,22·0,92=14,0024.

Приблизительное количество извести выносимое со шлаком из конвертера составляет приблизительно ≈ 12,64 т.

Таким образом, количество извести, выносимой в газоочистку за плавку, составляет (по CaO + MgO):

,0024-12,64=1,3624 т за плавку.

Заметим, что выброс извести, посчитанный таким образом, является величиной довольно приближенной, т.к. получен в виде разности двух больших величин, каждая из которых определена с некоторой погрешностью.

Таким образом, можно заключить, что вынос извести из конвертера в газоочистку составляет 1,3624 т за плавку в то время, как по известным данным, он должен был бы составлять около 0,9 т за плавку.

При сравнении данных с 2003 г. (которые показывали за 1 плавку 2,5 т), с 2011 г. где за одну плавку выноситься 1,3624 т извести видно существенное изменение с выносом извести в газоход, что и повлияло на улучшение качества воды.

Выводы

1.      Полученные результаты подтверждают наличие двух режимов работы газоочистки: первый - в начале кампании после чистки оборудования и при величине зазора между створками, соответствующем режимной карте 170-180 мм; второй - в течение кампании конвертера, когда по мере зарастания поверхности створок отложениями створки раскрывают на величину 190-240 мм.

В первом режиме (согласно режимной карте) при расходе газа 400 тыс. м3/ч, гидравлическом сопротивлении труб Вентури второй ступени 17 кПа и расходе воды 400 м3/ч обеспечивается эффективная очистка газа до конечной запыленности 75-100 мг/м3 и дожигание СО. Во втором режиме при расходе газа 420 тыс. м3/ч и более, расходе воды 400-420 м3/ч, гидравлическом сопротивлении труб Вентури второй ступени ниже 15 кПа, эффективность очистки газа от пыли снижается. По данным лаборатории комбината конечная запыленность составляет 138 мг/м3 и выше. В настоящее время газоочистки конвертеров №1,2 работают в режиме, не соответствующем показателями режимной карты, что приводит к повышенному выносу пыли в атмосферу.

2.      В ходе осмотров участков газоотводящего тракта отмечено зарастание элементов газоотводящего тракта отложениями происходит ввиду повышенного выноса мелкодисперсной фракции извести из конвертера в газоотводящий тракт, повышению щелочности и жесткости воды в оборотном цикле водоснабжения, отсутствии эффективной системы стабилизационной обработки воды.

3.      В период исследований в ноябре 2010 г. - январе 2011 г. содержание кальция (Са2+) в оборотной воде подаваемой на газоочистку составляло около 12 мг-экв/дм3, а щелочность общая 6,53 мг-экв/дм3 в т.ч. щелочность по фенол-фталеину 6,1 мг-экв/дм3 (это максимальные значения щелочности). Это приводит к тому, что при контакте осветленной воды подаваемой на газоочистку, с диоксидом углерода (СО2), содержащимся в конвертерных газах, в аппаратах газоочистки, в частности на створках труб Вентури, образуются карбонатные отложения. Однако, приведенные выше значения щелочности и жесткости значительно ниже тех, которые имели место в 2003 г. (содержание кальция (Са2+) составляло 17,01 мг-экв/дм3, щелочность по фенол-фталеину 13,0 мг-экв/дм3, щелочность общая 13,68 мг-экв/дм3. В связи с этим интенсивность карбонатных отложений в период исследований была в несколько раз меньше, чем в 2003 г.

.        Аппараты первой ступени газоочистки конвертеров №1,2 имеют повышенный (до 1200 м3/ч) расход воды для орошения и защиты стенок от прогаров. Вследствие неэффективной работы колено-сепараторов наблюдается повышенный вынос шламовой жидкости во вторую ступень прямоугольных регулируемых труб Вентури. Повышение расхода жидкости во второй ступени труб Вентури приводит к увеличению ее гидравлического сопротивления, зарастанию внутренней поверхности отложениями, невозможности работать в регулируемом режиме створками и поддерживать оптимальный режим работы для эффективной очистки газа от пыли и взрывобезопасной работы тракта.

.        При повышении нагрузки по жидкости на каплеуловитель с завихрителем вследствие увеличенного выноса капель увеличивается остаточный каплеунос после него, что приводит к зарастанию отложениями пыли газоходов за ним, ротора и корпуса нагнетателя. Снижению эффективной работы каплеуловителя по уменьшению выноса капельной влаги способствует недостаточный контроль за соблюдением проектного положения лопаток завихрителя.

.        Снижение эффективности очистки газа, вызванное уменьшением гидравлического сопротивления второй ступени труб Вентури, забиванием форсунок, повышением каплеуноса после каплеуловителя с завихрителем, неэффективной работой ловушек пленочной жидкости перед нагнетателем приводит к налипанию отложений пыли на роторах нагнетателей, повышению уровня вибрации, а также к зарастанию газоходов после нагнетателя и многотрубных сопел дожигающего устройства на свече.

.        Требует совершенствования система форсуночного орошения узла предварительного охлаждения и первой ступени очистки для более эффективного охлаждения газов, защиты стенок от прогаров с уменьшением расхода воды на охлаждение и очистку газа. Для надежной работы системы орошения и отсутствия зарастания форсунок необходимо обеспечить стабилизационную обработку воды и установку более эффективных сетчатых фильтров.

.        Необходимо отметить неудовлетворительное состояние отдельных элементов газоотводящего тракта (гидрозатворов, ловушек пленочной жидкости, газохода за нагнетателем и др.), связанное с их зарастанием и изменением проектных размеров. Неработоспособность отдельных задвижек на подводе воды не позволяет оптимизировать работу газоочистки по расходам подаваемой воды.

.        Существующая система обеспечения взрывобезопасности не в состоянии обеспечить соблюдение условий взрывобезопасной эксплуатации газоотводящих трактов в полном объеме. Необходимо разработать комплекс мероприятий по приведению системы обеспечения взрывобезопасности в соответствие действующим требованиям и нормам.

Рекомендации по повышению эффективной и взрывобезопасной работы газоотводящего тракта

Рекомендации разрабатываются для двух вариантов:

- реконструкции газоочистки с достижением запыленности 50 мг/нм3

Б - мероприятия для повышения работоспособности отдельных узлов газоочистки

Вариант А.

1.      Обязательным условием эффективной взрывобезопасной работы газоотводящего тракта является уменьшение образования отложений по всем участкам тракта, что связанно с повышенным выносом извести и обработкой оборотной воды, подаваемой на газоочистку. Для уменьшения попадания неусвоенной в конвертере и выносимой в газоотводящий тракт извести и флюсов, необходимо дальнейшее совершенствование технологии подачи извести в конвертер и осуществление мероприятий по отсеву мелкодисперсной фракции извести. Ранее проведенные исследования в 2003 г. [4] по количеству CaO+MgO (в пересчете на СаО) по двум методикам расчета, выносимых в тракт, колеблется от 0,9 т до 1,8 т за плавку, т.е. примерно 25% от количества всей пыли, поступающей на газоочистку. УкрГНТЦ «Энергосталь» ранее предлагались технические решения по отсеву (улавливанию) мелкодисперсных фракций извести (10 мм и менее) перед ее подачей в конвертер. Поскольку вопрос остался актуальным, считаем целесообразным разработать и рассмотреть мероприятия по уменьшению попадания мелкодисперсной фракции извести в газоотводящий тракт.

2.      Рекомендуем при реконструкции газоотводящего тракта для достижения конечной запыленности газа 50 мг/м3 предусматривать замену аппаратов первой и второй ступени очистки (рис. 1), при этом узел предварительного охлаждения, каплеуловитель с завихрителем остаются неизменными. Конструкции баков-гидрозатворов, ловушек пленочной жидкости по тракту и перед нагнетателем подлежат восстановлению по проекту. Следует обратить особое внимание на высоту опускных труб в баках-гидрозатворах и в гидрозатворе перед нагнетателем.

.        В качестве первой ступени очистки и охлаждения газа после узла предварительного охлаждения (УПО) рекомендуется установка скруббера с поворотом газа (рис. 2). Система орошения УПО, включающая подачу пленочной воды на нож-гидрозатвор (узел соединения с ОКГ) и форсуночное орошение трехдюймовыми эвольвентными форсунками будут скоректированы.

Рисунок 1 - Схема реконструкции газоотводящего тракта.

В верхней части скруббер имеет диаметр 4 м, в нижней части увеличен до 5 м, общий объем скруббера и газоходов до труб Вентури для улучшения протекания процесса теплообмена увеличен от 190 м3 до 300 м3. Система орошения скруббера состоит из двух ярусов орошения трехдюймовыми эвольвентными форсунками, часть форсунок расположена таким образом, чтобы часть жидкости орошала стенки скруббера для предотвращения прогаров. Количество и расположение форсунок по ярусам будет определено при разработке технологического задания (ТЛЗ) на проектирование. В скруббере установлена перегородка, в результате поворота потока газа на 180° уменьшается вынос зашламленной жидкости в трубы Вентури второй ступени. Для более эффективного улавливания капель в восходящем потоке газа устанавливаются три трехдюймовые эвольвентные форсунки, направленные вниз. Отвод шламовой воды из бункера скруббера производится в гидрозатвор первой ступени.

4.      В качестве второй ступени очистки и охлаждения газа (рис. 8.3) устанавливаются усовершенствованные прямоугольные регулируемые трубы Вентури с увеличением высоты диффузора от 2,15 м до 4,1 м, углы раскрытия диффузора в обоих направлениях 9°, общая высота трубы Вентури составит 6,1 м. Ранее проведенные испытания на трубах Вентури ККЦ ОАО «МК«АЗОВСТАЛЬ» [5] показали, что при высоте диффузора 2,15 м и высоких углах раскрытия диффузора снижается значение коэффициента восстановления давления в диффузоре до 9-11%. На газоочистке конвертеров ОАО «НТМК» с усовершенствованной конструкции труб Вентури с углами раскрытия диффузора 9° [6] получен коэффициент восстановления в диффузоре 30-40%. Повышение коэффициента восстановления давления в диффузоре приводит к снижению общего коэффициента гидравлического сопротивления трубы Вентури, повышению скорости газа в горловине и эффективности пылеулавливания. Усовершенствованная конструкция трубы Вентури имеет следующие отличия: система орошения состоит из десяти форсунок СФК-25 в каждой, кроме того осуществлена герметизация зазора между конфузором и горловиной по всей длине трубы Вентури, а также зазора между створками и торцевой стенкой, исключающих переток запыленного газа, что также повышает эффективность очистки.

5.      Для повышения эффективности улавливания шламовых вод, уменьшения нагрузки по жидкости на каплеуловитель с завихрителем после прямоугольных труб Вентури рекомендуется установить бункер, который улавливает до 70% жидкости. Шламовые воды после каплеуловителя сбрасываются в бункер и направляются в бак-гидрозавтор второй ступени.

Рисунок 2 - Скруббер

6.      Рекомендуется улучшить работу каплеуловителя с завихрителем, установив все лопатки под углом 36-40° (к горизонтали) и четко контролировать их положение при всех остановках на ППР. При эффективной работе каплеуловителя с завихрителем будет существенно уменьшено количество отложений в газоходах чистого газа и нагнетателе.

7.      Для улучшения качества воды, подаваемой в трубы Вентури, рекомендуется установка новой конструкции вертикальных сетчатых фильтров (рис. 3), один - рабочий, один - резервный.

.        Расчетные параметры работы газоочистки после реконструкции:

-   расход газа 400-420 тыс. м3

-       расход воды общий: 1450 м3

УПО 320 м3

на первую ступень (скруббер)580 м3

на вторую ступень (трубы Вентури) 400 м3

на смыв каплеуловителя, гидрозатворов 120 м3

-   гидравлическое сопротивление труб Вентури 17,0 кПа

-       конечная запыленность 50 мг/м3

Рисунок 3 - Трубы Вентури второй ступени газоочистки и каплеуловитель

9.      Необходимо выполнить проект АСУ ТП газоотводящих трактов с учетом современных требований к системам обеспечения взрывобезопасной работы газоотводящих трактов конвертеров и применением современных КИПиА

10.    Выполнить реконструкцию дожигающих устройств газоотводящих трактов на свече: укоротить многотрубные сопла дожигающего устройства, или установить кольцевое сопло с противовзрывными клапанами. С целью уменьшения гидравлического сопротивления

Вариант Б

До проведения капитальной реконструкции газоочистки по варианту А рекомендуется осуществить ряд мероприятий по повышению эксплуатационной надежности работы отдельных участков газоотводящего тракта.

1.      Необходимо провести ревизию либо замену задвижек подачи воды для обеспечения поддержания расхода воды на УПО и первую ступень газоочистки не более 1000 м3/ч, а возможно и сокращения до 900 м3/ч.

2.      Установить шламоотбойники в бункере после первой ступени газоочистки для уменьшения попадания шламовой жидкости в трубы Вентури и уменьшения образования отложений (рис. 4). Для уменьшения образования отложений на стенках труб Вентури рекомендуется система дополнительного орошения из двух эвольвентных форсунок перед конфузорами каждой трубы Вентури, которые способствуют смыву шлама.

Рисунок 4 - Шламоотбойник в бункере после первой ступени гзоочистки

3.      Рекомендуется для обеспечения взрывобезопасного отвода и эффективной очистки газов выполнение пунктов 2, 6, 7, 9 варианта А по повышению эффективности работы каплеуловителя, гидрозатворов баков-сепараторов и ловушек пленочной жидкости, очистки газоходов от отложений, систем дожигающих устройств на свече.

Рекомендации по стабилизации работы очистных сооружений оборотного цикла газоочистки

1.      Для улучшения осветления воды предусмотреть обработку воды флокулянтами дозой 1 мг/дм3 в пересчете на весь объем оборотной воды по сухому продукту. Ввод флокулянта производить в виде 0,1% раствора в шламопровод подводящий воду к узлу классификации. При этом предусмотреть возможность ввода флокулянта в шламопровод того конвертера, на котором осуществляется продувка. Первоначально в качестве флокулянтов принять анионактивный флокулянт Pl 1011. В ходе работы возможно применение и других флокулянтов. Ввиду этого систему приготовления раствора и дозирования предусмотреть для двух типов флокулянтов.

Ожидаемое содержание взвешенных веществ в осветленной воде будет составлять до 150 мг/дм3.

.        С учетом того, что имеет место накопление мелкой фракции в оборотной воде, для осаждения которой применение флокулянтов недостаточно. Необходимо предусмотреть ввод коагулянта. В качестве коагулянта принять PuroTech RO510. Дозировку производить из расчета 10 мг/дм3 10% по Al2O3.

.        Необходимо применить стабилизационную обработку воды реагентами ингибиторами накипеобразования.

Ввод реагентов ингибиторов осуществлять в 2-х точках:

в трубопровод воды, подающий воду на трубу Вентури. Доза реагента до 25 г/м3 по товарному продукту. Реагент подавать в разбавленном виде (в 10 раз по отношению к товарному продукту) только во время продувки (15 мин. в течение плавки).

в камеру осветленной воды, подаваемой на газоочистку. Реагент подавать в разбавленном виде дозой 0,5 г/м3 постоянно.

По данным лабораторных исследований необходимо применять реагенты PuroTech 110 или Nalko 43-63. Реагент Nalko 43-63 несколько эффективнее, чем PuroTech 110, однако, в 2-2,5 раза дороже. В связи с этим рекомендуется начинать стабилизационную обработку воды реагентом PuroTech 110 лишь в случае недостаточной эффективности последнего рассмотреть вопрос о возможном использовании Nalko 43-63.

Ожидается, что при выше указанном химическом составе воды см. табл. 1 реагентная обработка предотвратит или, во всяком случае, в несколько раз уменьшит образование карбонатных отложений в трубе Вентури.

технологический газоочистка сталь

Перечень ссылок

1. Оптимизация режима работы мокрой газоочистки 400 т конвертеров // Г.М. Каненко, С.И. Волгин и др. // Сталь. - 1984. - №3. - С.87-89.

. Внедрение новой конструкции регулируемых труб Вентури в ККЦ меткомбината «Азовсталь» / Г.М. Каненко, А.Ф.Романенко, В.Д. Мантула, Д.И. Чиненов // Экология и здоровье человека. Охрана водного и воздушного бассейнов. Утилизация отходов: труды научно-технической конференции. Харьков, 1999. − С.174-175.

. Экспериментально-наладочные работы на газоотводящих трактах и системе обеспечения взрывобезопасности конвертеров №1,2 ККЦ ОАО «МК«Азовсталь»: отчет / НПФ «Технология»; рук. Ровенский А.И. − Харьков, 2002. − 54с.

. Отработка режимов стабилизации воды оборотного цикла водоснабжения газоочисток при различных режимах работы газоотводящих трактов конвертеров №1,2 ККЦ ОАО «Меткомбината«Азовсталь»: отчет о НИР / УкрГНТЦ «Энергосталь»; рук. Мантула В.Д. − Харьков, 2003. − 90с. − Арх. №100022.

. Повышение эксплуатационных показателей газоочистного оборудования газоотводящих трактов конвертеров №1,2 ОАО«Меткомбинат«Азовсталь»: заключение по выполненной работе / УкрГНТЦ «Энергосталь»; рук. Романенко А.Ф. − Харьков, 2004. − 56с.

. Мантула В.Д., Каненко Г.М., Алхасова В.В. Эффективное решение проблем очистки газов от пыли в комплексе реконструкции газоотводящих трактов кислородно-конвертерного цеха ОАО «НТМК» / Экология и здоровье человека. Охрана водного и воздушного бассейнов. Утилизация отходов: сборник научных статей ХVІ Международной научно-практической конференции в 2-хт. Т.1. / УкрГНТЦ «Энергосталь». - Харьков: «Издат. Сага», 2008. − С.290-293.

. Обобщение опыта эксплуатации каплеуловителей за мокрыми газоочистками: отчет (заключит.) / ВНИПИЧерметэнергоочистка; рук. Волгин С.И. − Харьков, 1982. − 82с. − №ГР80025734. − Арх. №0400.

. В.А. Клячко, И.Э. Апельцин. Очистка природных вод. - М.: Стройиздат, 1971. - 580с.

Приложение 1


Приложение Б

Утверждаю:

Главный инженер

ОАО «МК «АЗОВСТАЛЬ»


АКТ

обследования состояния оборудования системы обеспечения взрывобезопасности

Комиссия в составе:

От ОАО «МК «Азовсталь»: Мельничук H.H., Заболотный В.А.

От УкрГНТЦ «Энергосталь» Сулима Д. С.

В соответствии с дог. № 21155 от 25.03.2010 г. комиссия провела обследование состояния энергетического оборудования, системы КИПиА, сигнализации и автоматических блокировок, обеспечивающих условия взрывобезопасной эксплуатации газоотводящих трактов конвертеров, с учетом применения новой фурмы и возможным повышением интенсивности кислородного дутья.

1. Объектами обследования являлись:

·   система зажигания и тушения горелок, поджигающих факел отходящих газов;

·   система аварийного тушения факела отходящих газов;

·   комплекс КИП, обеспечивающий функционирование системы взрывобезопасной эксплуатации газоотводящих трактов;

·   система сигнализации отклонения параметров, обеспечивающих взрывобезопасную эксплуатацию газоотводящих трактов, от номинальных значений;

·   система автоматических блокировок, обеспечивающих условия безопасной работы при нарушении режимных параметров;

·   система газового анализа дымовых газов.

2. В результате обследования состояния оборудования установлено:

2.      Существующая система зажигания и тушения горелок не соответствует требованиям условий взрывобезопасности:

подача газа на существующие запальные горелки осуществляется постоянно, независимо от периода плавки, при этом розжиг горелок осуществляется в местном режиме (вручную);

отключение постоянно горящих запальных горелок поджигания факела дымовых газов после появления факела не происходит, соответственно параметры работы запальных горелок не связаны с автоматическими блокировками безопасности.

3.          Система аварийного тушения факела дымовых газов отсутствует.

3. Существующий комплекс КИП не обеспечивает функционирование системы взрывобезопасной эксплуатации газоотводящих трактов в полном объеме.

4. Существующая система сигнализации отклонения параметров, обеспечивающих взрывобезопасную эксплуатацию газоотводящих трактов, от номинальных значений, задействована не в полном объеме.

5. Существующая система автоматических блокировок, обеспечивающих условия безопасной работы при нарушении режимных параметров, не введена в полном объеме.

6. Система газового анализа дымовых газов не соответствует требованиям взрывобезопасной эксплуатации газоотводящих трактов в полной мере:

Система газового анализа в опускном газоходе (ФТИАН) функционирует со следующими параметрами:

·  периодичность отбора проб газа составляет 2,4 с;

·  замедление показаний результатов анализа составляет в среднем 40-45с;

- существующим проектом не предусмотрена связь параметров газового анализа ФТИАН с автоматическими блокировками системы взрывобезопасности.

Сигнализатор типа СТХ, который был установлен за нагнетателем, неработоспособен (демонтирован).

7. Существующий гидрозатвор перед нагнетателем №2 в связи с недостаточной высотой не исключает подсос холодного воздуха в газоотводящий тракт.

8. Схема аварийного подъема фурмы находится в рабочем состоянии.

При обследовании газоотводящих трактов определены причины неудовлетворительной работы системы обеспечения взрывобезопасности, к основным из которых относятся:

·  демонтирована арматура, трубопроводы и оборудование КИП системы подачи аварийного пара в ствол свечи;

·  ненадежность проектной системы дистанционного (автоматического) включения запальных горелок;

-отсутствие автоматического режима отключения запальных горелок;

· отсутствие анализа состава дымовых газов за нагнетателем на содержание кислорода.

Выводы:

1. Существующая система взрывобезопасности не в состоянии обеспечить соблюдение условий взрывобезопасной эксплуатации газоотводящих трактов в полном объеме.

2. В связи с вышеуказанными причинами, восстановление системы взрывобезопасной эксплуатации газоотводящих трактов, в объеме существующей проектной документации, представляется нецелесообразным.

Для обеспечения взрывобезопасной эксплуатации газоотводящих трактов необходимо выполнить реконструкцию дожигающего устройства, в том числе:

·   системы аварийного тушения факела дымовых газов;

·   системы дистанционного включения и отключения поджигающих горелок;

· ревизию (восстановление) системы КИП, сигнализации и блокировок в полном объеме;

· ревизию оборудования, обеспечивающего выполнение установленной последовательности операций при автоматическом прерывании продувки (механизм подъема фурмы с пониженной скоростью, подача флегматизатора на свечу дожигания и т. д.);

· установить за нагнетателем быстродействующий газоанализатор;

· установку гидрозатвора за нагнетателем №2 в соответствии с требованиями «Типовой инструкции по устройству и безопасной эксплуатации газоотводящих трактов сталеплавильных конвертеров с верхней продувкой», МЧМ СССР. 1991 г.

· укоротить многотрубные сопла дожигающего устройства.

Решение комиссии:

1. На основании результатов проведенного обследования, считаем целесообразным предложить к рассмотрению следующие варианты модернизации системы обеспечения взрывобезопасности:

- приобретение полного комплекта оборудования дожигающего устройства, включая систему КИПиА, с обязательным проведением экспертизы по соответствию оборудования условиям взрывобезопасной эксплуатации газоотводящих трактов;

- оформление заказа на разработку проекта системы обеспечения взрывобезопасности в соответствии с требованиями условий взрывобезопасной эксплуатации газоотводящих трактов, с учетом имеющегося опыта эксплуатации существующей системы.