Материал: ГОСТ 2.104-2006

Внимание! Если размещение файла нарушает Ваши авторские права, то обязательно сообщите нам

ГОСТ 2.104—2006

Ф о р м а 1

Основная надпись и дополнительные графы для чертежей и схем

8

ГОСТ 2.104—2006

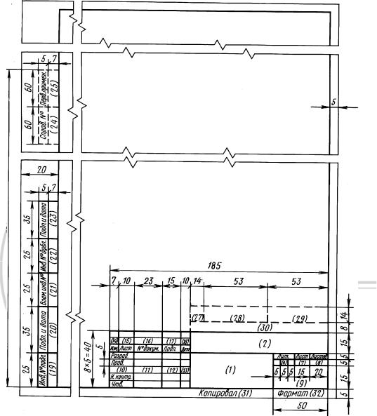
Ф о р м а 2

Основная надпись и дополнительные графы для текстовых конструкторских документов (первый или заглавный лист)

 

 

 

 

 

 

 

 

 

 

8-1*

9

ГОСТ 2.104—2006

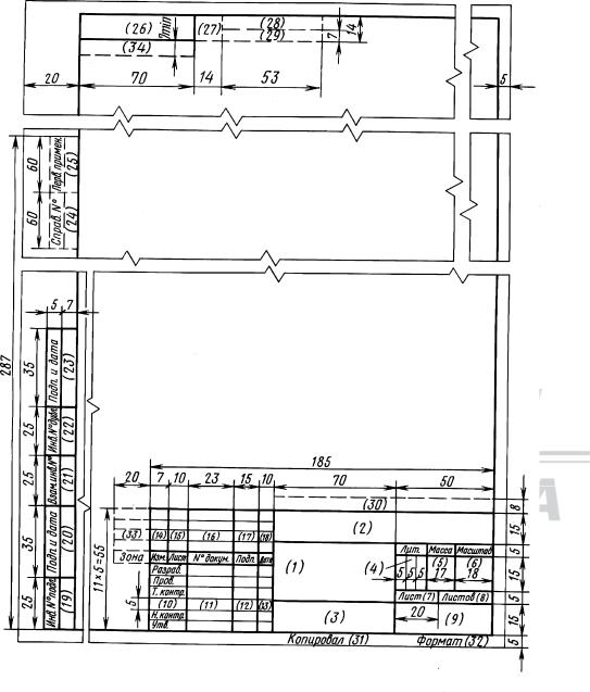
Ф о р м а 2а

Основная надпись и дополнительные графы для чертежей (схем) и текстовых конструкторских документов (последующие листы)

10

ГОСТ 2.104—2006

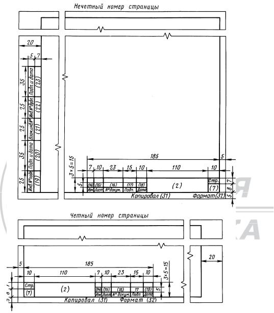
Ф о р м а 2б

Основная надпись и дополнительные графы для текстовых конструкторских документов при двустороннем светокопировании (последующие листы)

 

 

 

 

 

 

 

 

 

 

8-2—1924

11

ГОСТ 2.104—2006

Приложение А (справочное)

Примеры размещения основной надписи и дополнительных граф к ней

Для формата А4

Для форматов больше А4 при расположении основной

 

надписи вдоль длинной стороны листа

 

 

 

 

 

 

 

 

 

 

 

 

 

 

 

Для формата больше А4 при расположении основной надписи вдоль короткой стороны листа

1 — основная надпись; 2 — дополнительные графы

12