Материал: Фундамент под возводимое здание

Внимание! Если размещение файла нарушает Ваши авторские права, то обязательно сообщите нам

Фундамент под возводимое здание










ПОЯСНИТЕЛЬНАЯ ЗАПИСКА

к курсовому проекту

по дисциплине «Геотехника II. Основания и фундаменты»

1. ЗАДАНИЕ НА ПРОЕКТИРОВАНИЕ

грунт фундамент ростверк свая

Строительство ведется в городе Астана. Здание четырехэтажное, жилое, кирпичное. Высота этажа 3,6 м. Отметка дна подвала от уровня чистого пола составляет -2,300 м. Размер здания в осях 48х13 м. По оси Б расположены колонны, шаг колонн составляет 6 м.

Уровень грунтовых вод располагается на глубине 3,8 м от поверхности земли. Основание представлено несколькими грунтами, слоисто - согласно структуры. Толщина наружных стен - 640 мм, внутренней стены - 510 мм. Плиты перекрытия и покрытия, а также лестничные марши и площадки сборные железобетонные. Толщина конструкции перекрытия 300 мм. Перегородки выполняются кирпичной кладкой, толщиной 120 мм. Здание имеет жесткую конструктивную схему, и относится к зданиям со смешанным безригельным каркасом.

Цель проектирования - сконструировать и рассчитать два вида фундамента под возводимое здание: ленточный и свайный. Расчет и конструирование произвести с учетом требований действующих ГОСТ и СНиП.

Размеры здания, последовательность расположения слоев, уровень подземных вод и район строительства

№ варианта

А, м

В, м

Длина в  осях L, м

Шаг колонн, м

Кол-во этажей N

Расположение  слоев грунта  от поверхности вглубь

Глубина расположения уровня подземных вод от поверхности dω, м

Район строительства

А-1

5,2

2,6

48

6,0

4

 11, 6, 1

3,8

Астана


Нормативные нагрузки на обрезах фундаментов

Фундамент

Нагрузки, ед.изм.

№ варианта



2

По осям А и Г

N0II, кН/м

300

По оси Б (под колонны)

N0II, кН М0II, кНм

1000 125

По оси В

N0II, кН/м

340


Характеристики грунтов

№ слоя

Кривая грансостава

Мощ-ность, м

rS, г/см3

r, г/см3

ω

ωL

ωр

j, град

с, МПа

Е, МПа

1

1

3,5

2,63

1,70 1,90

0,170 0,308

-

-

35

-

50,0 50,0

6

6

5,3

2,64

1,80 1,92

0,215 0,317

-

-

24

-

28,0 28,0

11

-

4,8

2,75

1,78 1,95

0,192 0,306

0,39

0,18

7

0,056 0,034

11,0 7,5


2. АНАЛИЗ ИНЖЕНЕРНО-ГЕОЛОГИЧЕСКИХ УСЛОВИЙ ПЛОЩАДКИ

.1 Определение наименования грунтов

По заданным характеристикам необходимо для каждого номера грунта из задания определить его наименование (см. приложение, таблицы 1-5):

) Первый слой, до уровня грунтовых вод:

С=0,056 (МПа), φ=7°, Е=11(МПа)

Коэффициент пористости определяется по формуле:

е = (ρs - ρd)/ρd                                          (2.1)

где:

ρs - плотность твердых частиц грунта, г/см3;

ρd - плотность грунта в сухом состоянии:

ρd = ρ/(1+ω)                                    (2.2)

где:

ρ - плотность грунта ненарушенной структуры, г/см3;

ω - природная влажность грунта в долях единицы;

ρd = ρ/(1+ω)=1,78/(1+0192)=1,49 (г/см3)

е = (ρs - ρd)/ρd=(2,75-1,49)/1,49=0,84

Степень влажности грунта определяется по формуле:

Sr = ρs ω/(еρω)                                         (2.3)

где:

ρω - плотность воды, принимаемая равной 1г/см3;

Sr = ρs ω/(еρω)=(2,75∙0,192)/(0,84∙1)=0,63

Число пластичности определяется по формуле:

Ip = (ωL - ωр)·100%                       (2.4)

где:

ωL - влажность грунта на границе текучести;

ωр - влажность грунта на границе раскатывания;

Ip = (ωL - ωр)·100% = (0,39-0,18)·100% = 21%

Показатель текучести определяется по формуле:

IL = (ω-ωр)/(ωL - ωр)                               (2.5)

IL = (ω-ωр)/(ωL - ωр) = (0,192-0,18)/(0,39-0,18) = 0,06

Грунт - глина, полутвердая.

) первый слой, ниже уровня грунтовых вод:

С=0,034 (МПа), φ=7°, Е=7,5(МПа)

Коэффициент пористости:

ρd = ρ/(1+ω)=1,95/(1+0,306)=1,49 (г/см3)

е = (ρs - ρd)/ρd=(2,75-1,49)/1,49=0,84

Степень влажности грунта:

Sr = ρs ω/(еρω)=(2,75∙0,306)/(0,84∙1)=1,002

Ip = (ωL - ωр)·100% = (0,39-0,18)·100% = 21%

IL = (ω-ωр)/(ωL - ωр) = (0,306-0,18)/(0,39-0,18) = 0,6

Грунт - глина мягкопластичная

) Второй слой:

φ=24°, Е=28 (МПа)

Коэффициент пористости:

ρd = ρ/(1+ω)=1,92/(1+0,317)=1,46 (г/см3)

е = (ρs - ρd)/ρd=(2,64-1,46)/1,46=0,81

Степень влажности грунта:

Sr = ρs ω/(еρω)=(2,64∙0,317)/(0,81∙1)=1,03.

Ip,IL - не считаем так как грунты песчаные

Грунт - песок пылеватый, насыщенный водой, рыхлый.

) Третий слой:

φ=35°, Е=50 (МПа)

Коэффициент пористости:

ρd = ρ/(1+ω)=1,90/(1+0,308)=1,45 (г/см3)

е = (ρs - ρd)/ρd=(2,63-1,45)/1,45=0,81

Степень влажности грунта:

Sr = ρs ω/(еρω)=(2,63∙0,308)/(0,81∙1)=1

Ip,IL - не считаем так как грунты песчаные

Грунт - песок гравелистый, насыщенный водой, рыхлый.

.2 Определение табличных значений расчетного сопротивления грунтов

Расчетные сопротивления грунтов для предварительного определения ширины подошвы фундаментов вычислим по таблицам 6-8 (см. приложение), для промежуточных значений воспользуемся интерполяцией:

(е,IL) = [(е2-е) / (е2-е1)]·[(1-IL) R0 (1,0) + IL R0 (1,1)] +

+ [(е-е1) / (е2-е1)]·[(1-IL) R0 (2,0) + IL R0 (2,1)] (2.6)

где:

е, IL - характеристики грунта, для которого определяется R0;

е1, е2 - соседние значения коэффициента пористости, в интервале между которыми находится коэффициент пористости для рассматриваемого грунта; (1,0) и R0 (1,1) - табличные значения R0 для е1 при IL=0 и IL=1 соответственно; (2,0) и R0 (2,1) - то же для е2

Расчетные сопротивления:

слой, до уровня грунтовых вод (глина, полутвердая) - 283,4 (кПа)

слой, ниже уровня грунтовых вод (глина, мягкопластичная) - 224 (кПа)

слой (песок пылеватый, насыщенный водой, рыхлый) - 100 (кПа)

слой (песок гравелистый, насыщенный водой, рыхлый) - 500 (кПа)

.3 Определение нормативной и расчетной глубины промерзания грунта

Нормативная глубина промерзания грунта определяется по формуле:

                                             (2.7)

где:- величина, принимаемая равной, м, для: суглинков и глин - 0,23;

Мt - безразмерный коэффициент, численно равный сумме абсолютных значений среднемесячных отрицательных температур за зиму в данном районе, принимаем по таблице 9 (см. приложение), Мt =64,4 (для города Астана).


Расчетная глубина промерзания грунтов в бесподвальной части здания определяется по формуле:

                                                 (2.8)

где:

 - коэффициент, учитывающий влияние теплового режима здания, принимаемый: для наружных фундаментов отапливаемых зданий в зависимости от конструкции пола и температуры внутри помещения по таблице 9*(см. приложение), (для наружных и внутренних фундаментов неотапливаемых зданий =1,1).

=0,7·1,84=1,288(м),(=0,7 - утепленное цокольное перекрытие)

=0,5·1,84=0,92(м),(=0,5 - подвал)

.4 Определение расчетных нагрузок и расчетных характеристик грунтов

Основания зданий и сооружений рассчитываются по двум группам предельных состояний. Расчетные значения нагрузок получают путем умножения нормативных нагрузок на коэффициент надежности по нагрузке γf. Допускается принимать γf =1.

Все расчеты оснований должны выполняться с использованием расчетных значений характеристик грунтов Х, определяемых по формуле:

Х= Хn / γg,                                               (2.9)

где:

Хn - нормативное значение данной характеристики для каждого слоя грунта;

γg - коэффициент надежности по грунту.

Характеристики грунтов принимаемые в расчетах по первой группе предельных состояний:

слой: ( до уровня грунтовых вод):

С=Сn/γg=0,056/1,5=0,037 (МПа)

φ=φn / γg=7/1,15=6,087º

Е = 11 (МПа)

1 слой (ниже уровня грунтовых вод):

С=Сn/γg=0,034/1,5=0,022 (МПа)

φ=φn / γg=7/1,15=6,087º

Е = 32 (МПа)

2 слой

φ=φn / γg=24/1,1=21,8º

Е = 32 (МПа)

3 слой:

φ=φn / γg=35/1,1=31,82º

Е = 50 (МПа)

3. ПРОЕКТИРОВАНИЕ ФУНДАМЕНТОВ НА ЕСТЕСТВЕННОМ ОСНОВАНИИ

.1 Определение глубины заложения подошвы фундаментов

Глубина заложения подошвы фундаментов назначается на основе анализа геологических и гидрогеологических условий, конструктивных особенностей здания (наличие или отсутствие подвала), а также с учетом условий недопущения возникновения сил морозного пучения грунтов под подошвой фундаментов, если фундаменты проектируются на пучинистых грунтах.

.1.1 Глубина заложения фундаментов для здания без подвала принимается не менее расчётной глубины промерзания df = 1,288(м)

Глубина заложения фундаментов для зданий с подвалом принимается не менее расчётной глубины промерзания df = 0,92(м).

Таким образом, принимаем заглубление фундаментов:

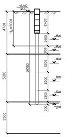
по оси А: d = 1,2 (м)

по оси Б: d = 2,1 (м)

по оси В: d = 2,4 (м)

по оси Г: d = 2,4 (м)

.1.2 По конструктивным соображениям для зданий с подвалом обрез фундаментных плит располагается 0,2 м ниже пола подвала. Таким образом, при использовании сборных железобетонных подушек высотой 0,3 м минимальная глубина заложения фундаментов по конструктивным соображениям для подвальной части здания составит:

кmin = db + 0,2 + 0,3                                         (3.1)

где:- глубина подвала от уровня планировки.

Для сборных фундаментов глубина их заложения дополнительно зависит от принятой конструкции фундаментных подушек (высота подушек hf = 0,3; 0,5 м) и стеновых блоков (высота блока с учетом шва равна 0,6 м)

кmin = db + 0,2 + 0,3=1,7+0,2+0,3=2,2(м)

.1.3 Оставим фундамент заложенным в первом слою, так как мощность у данного слоя достаточная - 4,7(м)

.1.4 Фундаменты под внутренние стены, колонны и наружные стены здания можно закладывать на различной глубине, но при этом допустимая разность отметок заложения соседних фундаментов - ∆h должна назначаться в соответствии с рисунком 3.1 по формуле 3.2:

∆h £ а (tgjI + cI / p)                                           (3.2)

где: - расстояние между фундаментами в свету;

jI, cI - расчетные значения соответственно угла внутреннего трения и удельного сцепления грунта, определяемые по подразделу 2.4;

р - среднее давление под подошвой вышерасположенного фундамента от расчетных нагрузок (в первом приближении р=0,2 МПа, с последующей корректировкой после определения размеров подошвы фундамента)

а = 2,6-0,75-0,6=1,25 (м), tgjI = tg10,43=0,166, с1=0,037 (МПа)

∆h £ а (tgjI + cI / p) = 1,25·(0,166+0,185)=0,44(м)

3.2 Предварительное определение размеров подошвы фундаментов

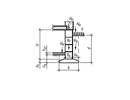
При выбранной глубине заложения подошвы фундамента ее площадь А, м2, можно предварительно определить по формуле:

A = N0II m / (R0 - βγm d),                                           (3.3)

где: II - расчетная нагрузка на погонный метр ленточного фундамента или на фундамент под колонну, кН;- расчетное сопротивление грунта несущего слоя, кН/м2;- глубина заложения подошвы фундамента, м;

γm - удельный вес материала фундамента (γm = 24 кН/м3);

β - коэффициент, учитывающий меньший удельный вес грунта по сравнению с удельным весом материала фундамента;- коэффициент, учитывающий влияние момента внешних сил, принимаемый равным, для внецентренно загруженных фундаментов под колонны m =1,1÷1,2, для ленточных фундаментов m =1.

В практических расчетах средневзвешенное значение удельного веса фундамента, грунта на его обрезах и прилегающей конструкции пола принимают равным γmt = β γm = 20 (кН/м3)

Для ленточных фундаментов расчет ведется на 1 м длины, следовательно, ширину подошвы фундамента - b находят по формуле 3.4

= A / 1.                                                      (3.4)

Для фундаментов, имеющих прямоугольную подошву (фундамент под колонну), предварительно задавшись соотношением сторон η = l/b, ширину подошвы определяют по формуле 3.5

b = .                                                (3.5)

В курсовой работе принимаем η = 1 - фундамент имеет квадратную подошву.

По оси А:

A = N0II m / (R0 - βγm d)=300*1/(283,4-20*1,2)=1,15(м2)=А/1=0,15/1=0,15 (м) b= 1200

По оси Б:

A = N0II m / (R0 - βγm d)=1000·1,1/(283,4-20·2,1)=4,14 (м2)

b=√А/ŋ=√4,14/1=2,03 (м) b=2100

По оси В:

A = N0II m / (R0 - βγm d)=340·1/(283,4-20·2,4)=1,2 (м2)

b=А/1=1,2/1=1,2 (м) b=1200

По оси Г:

A = N0II m / (R0 - βγm d)=300·1/(283,4-20·2,4)=1,13 (м2)

b=А/1=1,13/1=1,13 (м) b=1200

.3 Предварительное конструирование фундаментов

Размеры фундамента, блоков, стен подвала, ширину и высоту подушки фундамента следует принимать относительно проведённых предварительных расчетов, с учётом типизации, модульности и унификации конструкции.

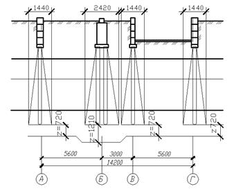
По оси А фундамент представлен двумя блоками шириной 0,6 м и подушкой шириной 1,2 м. По оси Б - монолитный фундамент под колонну с подошвой 2,1×2,1. По оси В и Г стены подвала состоят из подушек шириной 1,2 м, и блоков шириной 0,5 м и 0,6м соответственно. В торцевых сторонах здания глубина заложения фундамента меняется в соответствии с фундаментами продольных стен.

Для зданий с колоннами квадратного сечения 400х400 мм разработаны одноблочные фундаменты марки 1Ф. Отметка верха подколонника назначается на 150 мм ниже отметки планировки поверхности земли.

Фундаментные плиты укладываются на выровненную поверхность песчаного основания или на слой предварительно утрамбованного песка средней крупности толщиной 100 мм. Имеющиеся зазоры между фундаментными плитами заделывают бетоном. При этом площадь сечения рабочей (поперечной) арматуры в монолитных участках принимается эквивалентной арматуре сборных железобетонных фундаментных плит, а класс бетона равным.

Для обеспечения пространственной жесткости фундамента делается связь между продольными и поперечными стенами путем перевязки блоков и закладки в швы сеток из арматуры класса А-I диаметром 8 мм. Сетки располагают в горизонтальных швах через один по высоте.

Для устройства вводов в здание коммуникаций и уменьшения числа типоразмеров фундаментных стеновых блоков в стенах фундаментов оставляют проемы шириной не более 0,6 м (при большей ширине проема он перекрывается перемычками), которые при необходимости заполняются кирпичом или бетоном. Проемы в углах здания не допускаются.

Вдоль наружных стен здания устраивается отмостка из водонепроницаемых материалов. Горизонтальная гидроизоляция выполняется в виде непрерывного горизонтального шва толщиной 20 мм из цементного раствора состава 1:2. Вертикальная поверхность фундаментных стен соприкасающихся с грунтом обмазывается горячит битумом за 2 раза.

.4 Определение расчетного сопротивления грунта

Для определения расчетного сопротивления грунта используется следующая формула:

              (3.6)

где:

γС1 и γС2 - коэффициенты условий работы, принимаемые по таблице 10 (см. приложение) в зависимости от вида грунта, а также от конструктивной схемы и жесткости здания (кирпичные здания с малым шагом несущих стен имеют жесткую конструктивную схему);- коэффициент принимаемый равным 1 (прочностные характеристики грунта определены непосредственными испытаниями);

Mγ , Mq , Mc - коэффициенты, зависящие от угла внутреннего трения грунта, залегающего под подошвой фундамента, принимаемые по таблице 11 (см. приложение);- коэффициент принимаемый в курсовом проекте равным 1;- ширина подошвы фундамента, м;

γII - осредненное расчетное значение удельного веса грунтов, залегающих ниже подошвы фундамента (при наличии подземных вод определяется с учетом взвешивающего действия воды), кН/м3;

γ'II - осредненное расчетное значение удельного веса грунтов, залегающих выше подошвы фундамента, кН/м3 (принять γ'II = γbf = 16 кН/м3 - грунт обратной засыпки);

сII - расчетное значение удельного сцепления грунта, залегающего непосредственно под подошвой фундамента, кПа;- глубина подвала (см. рисунок 3.1)

Рисунок 3.1 - К определению приведенной глубины заложения фундаментов

В - ширина подвала;- глубина заложения фундаментов бесподвальных сооружений от уровня планировки или приведенная глубина заложения наружных и внутренних фундаментов от пола подвала (смотри рисунок 3.1), определяемая по формуле (для оси В и Г)

d1 = hs+ hcf γcf / γ'II ,                                        (3.7)

где по рисунку 3.1:- толщина слоя грунта выше подошвы фундамента со стороны подвала, м;- толщина конструкции пола подвала, м (hcf = 0,15 м);

γcf - расчетное значение удельного веса конструкции пола подвала, кН/м3 (γcf = 22 кН/м3).

Расчетные значения jII,, сII, γII находятся для слоя грунта толщиной z ниже подошвы фундамента, при b < 10 м z = b/2.

Для удобства занесем данные необходимые при вычислении расчетных сопротивлений грунтов в таблицу 3.1

Таблица 3.1 - Расчетные характеристики грунтов

Характеристика

К расчету R, по осям


А

Б

В

Г

γС1

1,25

1,25

1,25

1,25

γС2

1

1

1

1

Мγ

0,18

0,18

0,18

0,18

Mq

1,47

1,47

1,47

1,47

Mc

3,82

3,82

3,82

3,82

kz

1

1

1

1

cII

56 (кПа)

56 (кПа)

56 (кПа)

56 (кПа)

γII

17,8 (кН/м3)

17,8 (кН/м3)

17,8 (кН/м3)

17,8 (кН/м3)

γ‘II

16 (кН/м3)

16 (кН/м3)

16 (кН/м3)

16 (кН/м3)

d1

1,2 (м)

1,65 (м)

2,6 (м)

2,6 (м)

db

0

0

2

2

b

1,2 (м)

2,1 (м)

1,2 (м)

1,2 (м)


Определяем расчетные сопротивления грунтов R:

Ось А:= 1,25∙1∙(0,12∙1∙1,2∙17,8 + 1,47∙1,2∙16 + 3,82∙56)/1 = 305,87 (кПа)

Ось Б:= 1,25∙1∙(0,12∙2,1∙1∙17,8 + 1,47∙2,1 ∙16 + 3,82∙56)/1 = 334,75 (кПа)

Ось В:= 1,25∙1∙(0,12∙1,2∙1∙17,8 + 1,47∙2,6∙16 + (1,47-1)∙2∙16 +3,82∙56)/1 = =365,84 (кПа)

Ось Г:= 1,25∙1∙(0,12∙1,2∙1∙17,8 + 1,47∙2,6∙16 + (1,47-1)∙2∙16 +3,82∙56)/1 = =365,84 (кПа)

3.5 Проверка давления под подошвой фундамента

После предварительного подбора типовых элементов фундаментов определяют давления под подошвой фундамента.

Для центрально нагруженного фундамента должно выполняться условие

р £ R.                                                        (3.8)

Для внецентренно нагруженного фундамента должны выполняться следующие условия:

рmax £ 1,2R                                             (3.9)

рmin  0                                        (3.10)

рср = N'II / А £ R                                     (3.11)

Давление под подошвой центрально нагруженного ленточного фундамента определяется по формуле:

р = N'II / А = (N0II l + NfII + NgII + NkII + NqII)/(b l)                 (3.12)

где:II - вертикальная нагрузка на ленточный фундамент, кН/м;- нагрузка от веса фундамента;- нагрузка от грунта обратной засыпки на обрезах фундамента;- нагрузка от веса конструкции пола подвала;- нагрузка от временной равномерно распределенной нагрузки q на поверхность прилегающего к зданию грунта (q=10 кН/м2);- ширина подошвы фундамента, м;= 1м - погонный метр длины ленточного фундамента.

Нагрузки, передаваемые на несущий слой грунта от вышележащих конструкций здания и грунтов, определяются в соответствии с таблицей 3.2.

Таблица 3.2 - Определение нагрузок NfII, NgII, NkII, NqII

Фундамент

Схема действующей нагрузки

Формула для  определения нагрузок

NfII = b hf l γm + bc H l γm= 1,2∙0,3∙1∙24 + 0,6∙1,2∙1∙24=

=25,92 (кН/м)

NgII=2·bk ·(d - hf )l γbf= 2∙0,3∙(1,2--0,3)·1∙16=8,64 (кН/м)

 

NqII =bk ·l· q= 0,3∙1∙10 = 3 (кН/м)


 

Фундамент

Схема действующей нагрузки

Формула для определения нагрузок

по оси В    N0II=340 (кН/м) = 0

NfII = b hf l γm + bc H l γm= 1,2∙0,3∙1∙24 + 0,5∙2,4∙1∙24 = =37,44 (кН/м)

NgII = bk [(d - hf )+(hs - hf )]l γbf = 0,35∙[(2,4-0,3)+(0,55-0,3)]∙1∙16 =13,16 (кН/м)

NkII = bk hcf l γcf = 0,35∙0,15∙1∙22 =1,155 (кН/м)


по оси Г    N0II=300 (кН/м)

NfII = b hf l γm + bc H l γm = 1,2∙0,3∙1∙24 + 0,6∙2,4∙1∙24 =

=43,2 (кН/м)= bk [(d - hf )+(hs - hf )] ∙ γbf = 0,3∙[(2,4-0,3)+(0,55-0,3)]∙1∙16 = =11,28 (кН/м)

NkII = bk hcf l γcf = 0,3∙0,15∙1∙22 = 0,99 (кН/м)

NqII = bk l q = 0,3∙1∙10=3 (кН/м)


 

по оси Б

N0II=1000 (кН/м) М0II=125 (кН/м) NkII = 0 NqII =0


где: bk = (b - bc )/ 2 l = 1(м) hcf = 0,15 (м)

γm = 24 (кН/м3) γbf = 16 (кН/м3) γcf = 22 (кН/м3) q = 10 (кН/м2)


Давление на основание под подошвой фундамента по оси А:

р = N'II / А = (N0II l + NfII + NgII + NkII + NqII)/(b l) =

=(300∙1+25,92+8,64+3+0)/1,2∙1= 281,3 (кН/м2)

р = 281,3 (кН/м2) < R=305,87 (кПа)

Недогрузка оснований α = ((305,87-281,3)/305,87)∙100% = 8 %

(удовлетворяет)

Давление на основание под подошвой фундамента по оси В:

р = N'II / А = (N0II l + NfII + NgII + NkII + NqII)/(b l) =

=(3400∙1+37,44+13,16+1,155+0)/1,2∙1= 326,79 (кН/м2)

р = 326,79 (кН/м2 )< R=365,84 (кПа)

Недогрузка оснований α = ((365,84-326,79)/ 365,84) ∙100% = 10,6 %

(удовлетворяет)

Давление на основание под подошвой фундамента по оси Г:

р = N'II / А = (N0II l + NfII + NgII + NkII + NqII)/(b l) =

=(300∙1+3+0,99+11,28+43,2)/1,2∙1= 298,7 (кН/м2)

р = 248,73 (кН/м2 )< R=365,84 (кПа)

Недогрузка оснований α = ((365,84 - 298,7)/ 365,84) ∙100% = 15 %

(удовлетворяет)

Среднее давление на основание под подошвой фундамента по оси Б:

Максимальное и минимальное давление под подошвой внецентренно нагруженного фундамента колонны определяется по формуле 3.13

= N'II / А ± М'II / W = (N0II + NfII + NgII)/ А ± М0II / W =

= (N0II + b l d γmt)/(b l) ± 6М0II /(l b2)                                (3.13)

где: II - вертикальная нагрузка на фундамент колонны по заданию (приложение Б), кН;

М0II - момент действующий на фундамент колонны по заданию (приложение Б), кНм;- момент сопротивления площади подошвы фундамента, м3;- ширина подошвы фундаментного стакана, м;- длина подошвы фундаментного стакана, м (при квадратной подошве фундамента l = b).

 = N'II / А = (N0II + b·l·d· γm) /(b·l) ± 6· М0II/(b2·l) = (1000+2,1·2,1·2,1·24)/ /(2,1·2,1)±(6·125)/(2,1·2,12) = 275,3±80,99 (кН/м2)

pmax= 356,3 (кН/м2 )< 1,2R = 401,7 (кПа), условие выполняется.= 194,31 (кН/м2 )> 0, условие выполняется.

Рср = N'II / А ≤ R (3.14)

Рср = 275,3(кН/м2 ) ≤ R = 334,75 (кПа), условие выполняется.

Принимаем по оси А фундамент с шириной подошвы 1,2 м, тогда толщина подушки будет равна 0,3 м, и следовательно глубина заложения фундамента 1,2 м от поверхности земли.

По оси Б принимаем фундамент с подошвой 2,1×2,1 м, глубина заложения равна 2,1 м.

По оси В принимаем подушку шириной 1,2 м, толщиной 0,3 м, глубина заложения 3.

По оси Г подушка 1,2 м, толщина 0,3 м, тогда глубина заложения 3 м.

.6 Расчет осадки основания фундаментов

Осадка основания s с использованием расчетной схемы в виде линейно-деформируемого полупространства определяется методом послойного суммирования по формуле:

                                          (3.15)

где:

β - безразмерный коэффициент, равный 0,8;

σzp,icp - среднее значение дополнительного нормального напряжения в i-м элементарном слое грунта, равное полусумме указанных напряжений на верхней zi-1 и нижней zi границах слоя σzp,icp = (σzp,i-1 + σzp,i )/ 2; - толщина элементарного i-го слоя грунта (hi £ 0,4b);- модуль деформации элементарного i-го слоя грунта;- число элементарных слоев, на которые разбита сжимаемая толща основания.

Основное условие применимости к грунтам теории линейного деформирования заключается в том, чтобы напряжения по подошве фундамента находились в пределах первых двух фаз напряженного состояния грунта, т.е. соблюдалось условие р £ R.

Осадку основания следует учитывать только до уровня НГСТ, то есть до нижней границы сжимаемой толщи. Ее положение соответствует z, при котором выполняется условие σzp = 0,2σzg (для слоя с модулем деформации Е>5 МПа).

Эпюра σzр строится от отметки поверхности природного рельефа. вертикальное напряжение от собственного веса грунта σzg на границах каждого слоя определяется по формуле:

                                            (3.16)

где:

γi - удельный вес i-го слоя грунта;- толщина i-го инженерно-геологического слоя грунта;- количество слоев грунта.

Удельный вес грунта с учетом взвешивающего действия воды γsb определяется по формуле:

γsb = (γs - γω)/(1+ e)                                 (3.17)

где:

γs - удельный вес твердых частиц грунта, кН/м3;

γω - удельный вес воды, принимаемый равным 10 кН/м3;

е - коэффициент пористости грунта.

γ1=(17,8-10)/(1+0,84)=4,24 (кН/м3)

γ1sb=(19,5 - 10)/(1 + 0,84) = 5,16 (кН/м3)

γ2sb=(19,2 - 10)/(1 + 0,81) = 5,08 (кН/м3)

γ3sb=(19- 10)/(1 + 0,81) = 4,97 (кН/м3)

. Осадка фундамента по оси А:

σ0zg=γ1∙h1=4,2∙1,2 = 5,04 кН/м2

σ1zg= σ0zg +γ1∙h2=5,04 + 4,2∙2,6 = 15,96 (кН/м2)

σ2zg= σ1zg +γ2 ∙h3=15,96 + 5,16∙0,9 = 20,604 (кН/м2)

σ3zg= σ2zg +γ2sb ∙h4=20,604 + 5,08∙5,3 = 47,528 (кН/м2)

σ4zg= σ3zg +γ3sb ∙h5=47,528 + 4,97∙3,5 = 64,923 (кН/м2)

Находим напряжения на границах каждого слоя равные: 0,2σzg,

,2σ0zg = 1,008 (кН/м2)

,2σ1zg = 3,192 (кН/м2)

,2σ2zg = 4,1208 (кН/м2)

,2σ3zg = 9,5056 (кН/м2)

0,2σ4zg = 12,9846 (кН/м2)

. Осадка фундамента по оси Б:

σ0zg=γ1∙h1=4,2∙1,65 = 8,82 кН/м2

σ1zg= 15,96 (кН/м2)

σ2zg= 20,604 (кН/м2)

σ3zg= 47,528 (кН/м2)

σ4zg= 64,923 (кН/м2)

Находим напряжения на границах каждого слоя равные: 0,2σzg,

,2σ0zg = 1,386 (кН/м2)

,2σ1zg = 3,192 (кН/м2)

,2σ2zg = 4,1208 (кН/м2)

,2σ3zg = 9,5056 (кН/м2)

0,2σ4zg = 12,9846 (кН/м2)

. Осадка фундамента по оси В:

σ0zg=γ1∙h1=4,2∙2,4 = 10,08 кН/м2

σ1zg= 15,96 (кН/м2)

σ2zg= 20,604 (кН/м2)

σ3zg= 47,528 (кН/м2)

σ4zg= 64,923 (кН/м2)

Находим напряжения на границах каждого слоя равные: 0,2σzg,

,2σ0zg = 2,016 (кН/м2)

,2σ1zg = 3,192 (кН/м2)

,2σ2zg = 4,1208 (кН/м2)

,2σ3zg = 9,5056 (кН/м2)

0,2σ4zg = 12,9846 (кН/м2)

. Осадка фундамента по оси Г:

σ0zg=γ1∙h1=4,2∙2,4 = 10,08 кН/м2

σ1zg= 15,96 (кН/м2)

σ2zg= 20,604 (кН/м2)

σ3zg= 47,528 (кН/м2)

σ4zg= 64,923 (кН/м2)

Находим напряжения на границах каждого слоя равные: 0,2σzg,

,2σ0zg = 2,016 (кН/м2)

0,2σ1zg = 3,192 (кН/м2)

0,2σ2zg = 4,1208 (кН/м2)

0,2σ3zg = 9,5056 (кН/м2)

0,2σ4zg = 12,9846 (кН/м2)

Для обеспечения необходимой точности при подсчете осадок сжимаемая толща основания делится на элементарные слои, толщину которых h рекомендуется принимать из условия h≤0,4b.

Дополнительные вертикальные напряжения на глубине z от подошвы фундамента по вертикали, проходящей через центр подошвы фундамента, определяются по формуле:

σzp = α p0,                                      (3.18)

где:

α - коэффициент, определяемый по таблице 12 (см. приложение) в зависимости от формы подошвы фундамента, соотношения сторон прямоугольного фундамента η = l/b (l - длина фундамента) и относительной глубины ζ = 2z/b (z - расстояние от отметки FL до рассматриваемой точки по вертикали, принимается в зависимости от толщины элементарных слоев на которые делится основание)

р0 - дополнительное вертикальное давление на основание, определяемое по формуле (для фундаментов шириной b10 м принимается р0 = р)

р0 = р - σzg,0                                            (3.19)

- среднее давление под подошвой фундамента (принимается из расчетов подраздела 3.5);

σzg,0 - вертикальное напряжение от собственного веса грунта на уровне подошвы фундамента.

Расчет осадки фундаментов по осям выполним в табличной форме (таблица 3.3 - Расчет осадки фундамента по осям А,Б,В,Г).

Учет осадки ведется, как правило, до отметки нижней границы сжимаемой толщи, которая определяется графически, в месте пересечения эпюры 0,2σzg и σzp.

Для оси А: р0 = р - σzg,0=281,3-5,04=276,26 

Для оси Б: р0 = р - σzg,0=275,3-6,93=368,4             

Для оси В: р0 = р - σzg,0=326,79-10,08=316,7                  

Для оси Г: р0 = р - σzg,0=298,7-10,08=288,62         

Таблица 3.3 - Расчет осадки фундамента по оси А

№ слоя

Глубина подошвы слоя от подошвы фундамента zi, м

Толщина слоя hi, м

Коэффи-циент ζi=2zi/b

Коэффи-циент αi

Напряжение σzp,i на глубине zi, кПа

Среднее напряже-ние σzp,iср, кПа

Модуль деформации Еi, кПа

Осад-ка слоя si, м

1

0,4

0,4

0,8

0,881

243,4

251,3

11000

0,00914


0,8

0,4

1,6

0,642

177,4

210,4

11000

0,00765


1,2

0,4

2,4

0,477

131,8

154,6

11000

0,00562


1,6

0,4

3,2

0,374

103,3

117,5

11000

0,00427


2

0,4

4,0

0,306

84,5

93,9

11000

0,00342


2,4

0,4

4,8

0,258

71,3

77,9

11000

0,00283


2,6

0,2

5,2

0,239

66,0

68,7

11000

0,00125


3,0

0,4

6,0

0,208

57,5

61,7

7500

0,00329


3,4

0,4

6,8

0,185

51,1

54,3

7500

0,00290


3,5

0,1

7,0

0,18

49,7

50,4

7500

0,00067

2

3,9

0,4

7,8

0,162

44,8

47,2

28000

0,00067


4,3

0,4

8,6

0,147

40,6

42,7

28000

0,00061


4,7

0,4

9,4

0,135

37,3

39,0

28000

0,00056


5,1

0,4

10,2

0,124

34,3

35,8

28000

0,00051


5,5

0,4

11,0

0,115

31,8

33,0

28000

0,00047


5,9

0,4

11,8

0,108

29,8

30,8

28000

0,00044


6,3

0,4

12,6

0,101

27,9

28,9

28000

0,00041


6,7

0,4

13,4

0,095

26,2

27,1

28000

0,00039


7,1

0,4

14,2

0,089

24,6

25,4

28000

0,00036


7,5

0,4

15,0

0,073

20,2

22,4

28000

0,00032


7,9

0,4

15,8

0,062

17,1

18,6

28000

0,00027


8,3

0,4

16,6

0,045

12,4

14,8

28000

0,00021


8,7

0,4

17,4

0,032

8,84032

10,6

28000

0,00015


8,8

0,1

17,6






3

9,2

0,4

18,4




50000



9,6

0,4

19,2




50000



10,0

0,4

20,0




50000

0,4

20,8




50000



10,8

0,4

21,6




50000



11,2

0,4

22,4




50000



11,6

0,4

23,2




50000



12,0

0,4

24,0




50000



12,3

0,3

24,6




50000


∑S

0,04642

3,71(см) ≤ 10(см), осадка считается допустимой


Рисунок 3.2 - Эпюра нормальных напряжений грунта по оси А

Таблица 3.3 - Расчет осадки фундамента по оси Б

№ слоя

Глубина подошвы слоя от подошвы фундамента zi, м

Толщина слоя hi, м

Коэффициент ζi=2zi/b

Коэффи-циент αi

Напряже-ние σzp,i на глубине zi, кПа

Среднее напряжение σzp,iср, кПа

Модуль деформации Еi, кПа

Осадка слоя si, м

1

0,8

0,8

0,8

0,8

214,7

204,9

11000

0,01490


1,6

0,8

1,5

0,567

152,2

204,9

11000

0,01490


2,15

0,55

2

0,336

90,2

204,9

11000

0,01025


2,6

0,45

2,8

0,201

53,9

204,9

7500

0,01229


 

2

4,2

0,8

4,4

0,091

24,4

204,9

28000

0,00585


5

0,8

5,2

0,067

18,0

204,9

28000

0,00585


5,8

0,8

6

0,051

13,7

204,9

28000

0,00585


6,6

0,8

6,7

0,044

11,8

204,9

28000

0,00585


7,4

0,8

7,5

0,035

9,4

204,9

28000

0,00585


7,9

0,5

8

 

 

 

28000

 


8,7

0,8

8,7

 

 

 

50000

 

3

9,5

0,8

9,5

 

 

 

50000

 


10,3

0,8

10,2

 

 

 

50000

 


11,1

0,8

11

 

 

 

50000

 


11,4

0,3

11,3

 

 

 

50000

 


 

∑S

0,08747

6,99(см) ≤ 10(см), осадка считается допустимой


Рисунок 3.3 - Эпюра нормальных напряжений грунта по оси Б

Таблица 3.3 - Расчет осадки фундамента по оси В

№ слоя

Глубина подошвы слоя от подошвы фундамента zi, м

Толщина слоя hi, м

Коэффициент ζi=2zi/b

Коэффи-циент αi

Напряже-ние σzp,i на глубине zi, кПа

Среднее напряжение σzp,iср, кПа

Модуль деформации Еi, кПа

Осадка слоя si, м

1

0,4

0,4

0,7

0,905

286,6

253,7

11000

0,00923


0,8

0,4

1,3

0,67

212,2

249,4

11000

0,00907


1,2

0,4

2,0

0,55

174,2

193,2

11000

0,00702


1,4

0,2

2,3

0,532

168,5

171,3

11000

0,00312


1,8

0,4

3,0

0,397

125,7

147,1

7500

0,00785


2,2

0,4

3,7

0,329

104,2

115,0

7500

0,00613


2,3

0,1

3,8

0,325

102,9

103,6

7500

0,00138

2

2,7

0,4

4,5

0,275

87,1

95,0

28000

0,00136


3,1

0,4

5,2

0,239

75,7

81,4

28000

0,00116


3,5

0,4

5,8

0,216

68,4

72,0

28000

0,00103


3,9

0,4

6,5

0,188

59,5

64,0

28000

0,00091


4,3

0,4

7,2

0,175

55,4

57,5

28000

0,00082


4,7

0,4

7,8

0,162

51,3

53,4

28000

0,00076


5,1

0,4

8,5

0,145

45,9

48,6

28000

0,00069


5,5

0,4

9,2

0,137

43,4

44,7

28000

0,00064


5,9

0,4

9,8

0,129

40,9

42,1

28000

0,00060


6,3

0,4

10,5

0,118

37,4

39,1

28000

0,00056


6,7

0,4

11,2

0,113

35,8

36,6

28000

0,00052


7,1

0,4

11,8

0,108

34,2

35,0

28000

0,00050


7,5

0,4

12,5

0,089

28,2

31,2

28000

0,00045


7,6

0,1

12,7

0,072

22,8

25,5

28000

0,00009

3

8,0

0,4

13,3

20,3

21,5

50000

0,00017


8,4

0,4

14,0

0,051

16,2

18,2

50000

0,00015


8,8

0,4

14,7

0,034

10,8

13,5

50000

0,00011


9,2

0,4

15,3

0,021

6,7

8,7

50000

0,00007


9,6

0,4

16,0







10,0

0,4

16,7







10,4

0,4

17,3







10,8

0,4

18,0







11,1

0,4

18,5






∑S

0,05439

4,35(см) ≤ 10(см), осадка считается допустимой


Рисунок 3.4 - Эпюра нормальных напряжений грунта по оси В

Таблица 3.3 - Расчет осадки фундамента по оси Г

№ слоя

Глубина подошвы слоя от подошвы фундамента zi, м

Толщина слоя hi, м

Коэффициент ζi=2zi/b

Коэффи-циент αi

Напряже-ние σzp,i на глубине zi, кПа

Среднее напряжение σzp,iср, кПа

Модуль деформации Еi, кПа

Осадка слоя si, м

1

0,4

0,4

0,7

0,905

261,2

227,3

11000

0,00827


0,8

0,4

1,3

0,67

193,4

227,3

11000

0,00827


1,2

0,4

2,0

0,55

158,7

176,1

11000

0,00640


1,4

0,2

2,3

0,532

153,5

156,1

11000

0,00284


1,8

0,4

3,0

0,397

114,6

134,1

7500

0,00715


2,2

0,4

3,7

0,329

95,0

104,8

7500

0,00559


2,3

0,1

3,8

0,325

93,8

94,4

7500

0,00126

2

2,7

0,4

4,5

0,275

79,4

86,6

28000

0,00124


3,1

0,4

5,2

0,239

69,0

74,2

28000

0,00106


3,5

0,4

5,8

0,216

62,3

65,7

28000

0,00094


3,9

0,4

6,5

0,188

54,3

58,3

28000

0,00083


4,3

0,4

7,2

0,175

50,5

52,4

28000

0,00075


4,7

0,4

7,8

0,162

46,8

48,6

28000

0,00069


5,1

0,4

8,5

0,145

41,8

44,3

28000

0,00063


5,5

0,4

9,2

0,137

39,5

40,7

28000

0,00058


5,9

0,4

9,8

0,129

37,2

38,4

28000

0,00055


6,3

0,4

10,5

0,118

34,1

35,6

28000

0,00051


6,7

0,4

11,2

0,113

32,6

33,3

28000

0,00048


7,1

0,4

11,8

0,108

31,2

31,9

28000

0,00046


7,5

0,4

12,5

0,089

25,7

28,4

28000

0,00041


7,6

0,1

12,7

0,073

21,1

23,4

28000

0,00008

3

8,0

0,4

13,3

0,068

19,6

20,3

55000

0,00015


8,4

0,4

14,0

0,054

15,6

17,6

55000

0,00013


8,8

0,4

14,7

0,046

13,3

14,4

55000

0,00010


9,2

0,4

15,3

0,038

11,0

12,1

55000

0,00009


9,6

0,4

16,0

0,024

6,9

8,9

55000

0,00007


10,0

0,4

16,7







10,4

0,4

17,3







10,8

0,4

18,0







11,1

0,3

18,5






∑S

0,04951

3,96(см) ≤ 10(см), осадка считается допустимой

Рисунок 3.5 - Эпюра нормальных напряжений грунта по оси Г

.7 Проверка подстилающего слоя основания

Поверка подстилающего слоя производится для внецентренно загруженного фундамента под колонну по оси Б.

При наличии в пределах сжимаемой толщи основания на глубине z от подошвы фундамента слоя грунта меньшей прочности, чем прочность грунта вышележащих слоев прочности (R0 меньше чем у несущего слоя грунта), размеры фундамента должны назначаться такими, чтобы обеспечивалось условие

σzp + σzg £ Rz,                                         (3.20)

где:

σzp - дополнительное вертикальное напряжение на глубине z от подошвы фундамента (на уровне кровли слабого подстилающего слоя), σzp = 76,50 (кПа);

σzg - вертикальное напряжение от собственного веса грунта на той же глубине z, σzg =15,96 (кПа);

σzp + σzg = 76,50+15,96=92,46 (кПа);

Rz - расчетное сопротивление слабого грунта на глубине z, кПа, определяемое для условного фундамента шириной bz, определяемого по формуле

Для квадратного фундамента

          (3.21)

где: 'II - суммарная вертикальная нагрузка на основание от фундамента, кН

(N'II = N0II + b l dγmt =1000+2,1∙2,1·2,1∙24=1222,26 (кН)

= =1,25∙1 (0,18∙1∙3,99∙17,8+1,47∙3,8∙16+3,82∙56)/1 = 395,5 (кПа)

σzp + σzg =92,46 (кПа) < R=395,5 (кПа) - условие выполнилось.

.8 Расчет крена фундамента

Расчет крена производится для внецентренно загруженного фундамента под колонну по оси Б.

Крен фундамента i при действии внецентренной нагрузки определяется по формуле:

                                      (3.22)

где:

Е и v - соответственно модуль деформации и коэффициент Пуассона грунта основания, принимаемые средними в пределах сжимаемой толщи, установленной при расчете осадки. Коэффициент Пуассона ν принимается равным для глин - 0,42. Е = 11000 (кПа);- коэффициент принимаемый по таблице 13 (см.приложени), km = 1;е - коэффициент принимаемый по таблице 14 (см. приложение), е = 0,43;- вертикальная составляющая равнодействующие всех нагрузок на фундамента в уровне его подошвы;

При ширине фундамента b < 10 м нагрузка на фундамент определяется по формуле:

= p0A                            (3.23)

где: - площадь подошвы фундамента;- дополнительное давление на основание из расчета осадки,

е - эксцентриситет;

Эксцентриситет определяется из выражения:

е = М'II /N           (3.24)

где:

М'II - момент от равнодействующей нагрузки в работе принимается равным М0II = 125(кНм),

а - диаметр круглого или сторона прямоугольного фундамента, в направлении которой действует момент, а = 2,1 (м).

N = p0A = 268,4∙4,41 = 1183,6 (кН)      

е = М'II /N = 125/1183,6 = 0,106


i=0,032 > i=0,005 - условие не выполнилось, следовательно происходит крен.

4. ПРОЕКТИРОВАНИЕ СВАЙНЫХ ФУНДАМЕНТОВ

.1 Анализ инженерно-геологических условий применительно к свайному варианту фундаментов

При проектировании фундамента применяем забивные сваи-стойки или висячие сваи.

Так как грунты, слагающие верхние слои площадки строительства, не скальные, не крупнообломочные, а также не имеют достаточной несущей способности (Е≥11000МПа), то все сваи, погружаемые в 1, 2 и 3 слои грунта, будут висячими, а последний не сжимаемый слой будет служить хорошим основанием для свай-стоек. Учитывая минимальную длину свай (3м), применяемых для возведения оснований под сооружения, и небольшую мощность первого слоя (4,7м) пропадает возможность погрузить сваю в первый слой грунта. Таким образом, для определения окончательной конструкции свайного фундамента необходимо экономически сравнить варианты:

Погружение висячей сваи нижним концом во второй слой грунта;

Погружение висячей сваи нижним концом в третий слой грунта;

Погружение сваи-стойки в более прочный или малосжимаемый слой грунта.

.2 Предварительное определение глубины заложения и толщины плиты ростверка

Глубина заложения свайного ростверка принимается одинаковой. Поэтому глубину заложения ростверка под всем зданием определится как минимальная из всех возможных отметок. Следовательно, глубину заложения ростверка принимаем, рассматривая ту часть здания, где расположен подвал. Учитывая конструктивные требования и размеры подвала, получаем отметку верхней грани ростверка -2,40 м от уровня планировочной отметки земли. Толщину ростверка предварительно назначаем 40 см. Тогда отметка подошвы ростверка:

,4 - 0,4 = -2,8(м) или -3,1(м) от ур.ч.п.

Глубина заделки головы железобетонной сваи в ростверк принимаем 10 см. Отметка оголовков свай

,8 + 0,1 = -2,6(м) или -3,0(м) от ур.ч.п.

.3 Выбор типа, длины и сечения свай

Размеры сечения свай предварительно принимаем 30х30 см. Длина свай-стоек определяется исходя из мощности слабых прошиваемых слоев и величины заглубления свай в прочный грунт, принимаемой не менее 0,5 м во всех случаях, при этом следует учитывать модульность применяемых в строительстве свай. Длина такой сваи, опирающейся на малосжимаемый слой грунта находится:

l1 = 2,3+0,5=2,8 (м)

Следовательно, принимаем сваю С3-30 с длиной l1 =3(м).

Висячие сваи тоже необходимо заглубить в подстилающий слой грунта. Длина такой сваи, погружаемые в третий слой грунта находится:

l2 = 2,3+5,3+0,5=8 (м)

Следовательно, принимаем сваю С8-30 с длиной l2 =8(м).

Длина сваи, погружаемые во второй слой грунта находится:= 2,3+5,3+3,5+0,5=11,6 = 11,2 (м)

Следовательно, принимаем сваю С12-30 с длиной l3 =12(м).

.4 Определение несущей способности свай по материалу и грунту

Несущая способность свай-стоек по грунту определяется по формуле:

Fd = γc RA (4.1)

где:

γc - коэффициент условий работы сваи в грунте, принимаемый γc =1;- площадь опирания на грунт сваи, м2 (для свай сплошного сечения A принимается равной площади поперечного сечения свай);- расчетное сопротивление грунта под нижним концом сваи-стойки, принимаемое для всех видов забивных свай, опирающихся на скальные и малосжимаемые грунты, R = 20000 (кПа).

Несущая способность висячей забивной сваи по грунту, работающей на сжимающую нагрузку, определяется как сумма сил расчетных сопротивлений грунтов основания под нижним концом сваи и на ее боковой поверхности по формуле:

Fd = γc (γcr RA+ u∑ γcf fi hi) (4.2)

где:

γcr, γcf - коэффициент условий работы грунта соответственно под нижним концом и на боковой поверхности сваи, учитывающие влияние способа погружения на расчетные сопротивления грунта, и принимаемые по приложению (таблица 17).

При определении fi толща грунтов под подошвой ростверка расчленяется на однородные слои толщиной hi не более 2 м.

Расчетная нагрузка Рd, допускаемая на сваю по грунту, определяется по формуле:

Pd = Fd / γк (4.3)

где: - несущая способность сваи по грунту;

γк - коэффициент надежности, равный γк = 1,4.

Вариант 1 - Погружение висячей сваи нижним концом во второй слой грунта.


Несущая способность по материалу свай

Pd = 60 (тс) = 600 (кН)

Определяем отсчитываемые от уровня земли отметки hср, и соответствующие им значения сопротивлений f:

hср1=2,4+1,4/2=3,1(м); f=25,2(кПа)

hср2=2,4+1,4+0,9/2=4,3(м); f=27,6(кПа)

hср3=2,4+1,4+0,9+0,6/2=5 (м); f=29(кПа)

R=1315 (кПа); A=0,3·0,3=0,09(м2);

U=0,3·4=1,2(м)

Несущая способность сваи составит:

Fd = 1·(1315·0,09·1+ 1,2·[3,1·25,2+ 4,3·27,6+ +5·29])=528,51(кН)

Расчетная нагрузка на одну сваю, погружаемую во второй слой грунта составит:

Pd = 528,51/1,4=377,5 (кН)

В дальнейших расчетах за несущую способность одной сваи принимаем наименьшее из значений Pd:

Pd = 377,5 (кН) < 600 (кН)

Вариант 2 - Погружение висячей сваи нижним концом в третий слой грунта.


Несущая способность по материалу свай

Pd = 60 (тс) = 600 (кН)

Определяем отсчитываемые от уровня земли отметки hср, и соответствующие им значения сопротивлений f:

hср1=2,4+1,4/2=3,1(м); f=25,2(кПа)ср2=2,4+1,4+0,9/2=4,3(м); f=27,6(кПа)ср3=2,4+1,4+0,9+2/2=5,7(м); f=57,4(кПа)ср4=2,4+1,4+0,9+2+2/2=7,7 (м); f=60,8(кПа)ср5=2,4+1,4+0,9+2+2+1,3/2=9,4 (м)=63,2(кПа)ср6=2,4+1,4+0,9+5,3+0,3/2=10,2 (м)

f=65,3(кПа)=10572(кПа); A=0,3·0,3=0,09(м2)

U=0,3·4=1,2(м)

Несущая способность сваи составит:= 1·(10572·0,09·1+ 1,2·[3,1·25,2+ 4,3·27,6+ +5,7·57,4+7,7·60,8+9,4·63,2])=3654,22(кН)

Расчетная нагрузка на одну сваю, погружаемую во второй слой грунта составит:

Pd = 3654,22/1,4=2610,16 (кН)

В дальнейших расчетах за несущую способность одной сваи принимаем наименьшее из значений Pd:

Pd = 2610,16 (кН) > 600 (кН)

Вариант 3 - погружение сваи-стойки в более прочный или малосжимаемый слой грунта.


Несущая способность по материалу свай

Pd = 60 (тс) = 600 (кН)=20000 (кПа); A=0,09 (м2)

Несущая способность сваи составит:

Fd = γc ·R·A=1·20000·0,09=1800 (кН)

Расчетная нагрузка на одну сваю, погружаемую во второй слой грунта составит:

Pd = 1800/1,4=1285,71 (кН)

В дальнейших расчетах за несущую способность одной сваи принимаем наименьшее из значений Pd:

Pd = 1285,71 (кН) > 600 (кН)

.5 Определение числа свай и их размещение в ростверке

Размеры отдельного фундамента под колонну:

b = 2·(0,3·d+5)+d + 3·d = 2·(0,3·30+5)+30 +3·30= 148 (см), принимаем ширину фундамента 150(см) = 1,5(м)

Максимально допустимое расстояние между осями свай в зависимости от их несущей способности:

lf,св = Pсв / ∑NI (4.4)

Ориентировочное число свай в фундаменте под колонну:

= m· ∑NI / Pсв (4.5)

где:

∑NI - сумма внешних расчетных вертикальных нагрузок, приведенных к подошве ростверка;- коэффициент, учитывающий работу свай при наличии момента внешних сил в уровне подошвы ростверка.

В общем случае формулу для определения NI можно записать так:

= N0II + NfII + NgII + NkII + NqII (4.6)

где:II - вертикальная нагрузка на ленточный фундамент, кН/м;- нагрузка от веса фундамента;- нагрузка от грунта обратной засыпки на обрезах фундамента;- нагрузка от веса конструкции пола подвала;- нагрузка от временной равномерно распределенной нагрузки q на поверхность прилегающего к зданию грунта (q=10 кН/м2)

Нагрузки, передаваемые на несущий слой грунта от вышележащих конструкций здания и грунтов, определяются в соответствии с таблицей 4.1

Таблица 4.1 - Определение нагрузок NfII, NgII, NkII, NqII

Фундамент

Схема действующей нагрузки

Формула для  определения нагрузок

по оси А

N0II=300 (кН/м) NfII = b hf l γm + bc H l γm= 0,6∙0,3∙1∙24 + +0,6∙2,4∙1∙24=38,88 (кН/м) NgII = 0 NqII = 0  NkII = 0

по оси В

N0II=340 (кН/м)  NfII = b hf l γm + bc H l γm= 0,6∙0,3∙1∙24 + +0,5∙2,4∙1∙24 = 33,12 (кН/м) NgII = bk [(d - hf )+(hs - hf )]l γbf = =0,05∙[(2,4-0,3)+(0,55-0,3)]∙1∙16 =  =1,88 (кН/м) NqII = 0 NkII = 0

по оси Г

N0II=300(кН/м)  NfII = b hf l γm + bc H l γm= 0,6∙0,3∙1∙24 + +0,6∙2,4∙1∙24=38,88 (кН/м) NgII = 0 NqII = 0  NkII = 0

по оси Б

N0II=1000 (кН/м) NfII = b hf l γm + bc H l γm= 1,5∙0,3∙1∙24 + +0,9∙1,95∙1∙24=52,92 (кН/м) NgII = 2·bk ·(d - hf )l γbf = 2·0,3∙(2,4- -0,3)1∙16 =20,16 (кН/м) NqII = bk ·l· q=0,3·1·10=3 (кН/м) NkII = 0


l = 1(м)  q = 10 (кН/м2)

γm = 24 (кН/м3)  γbf = 16 (кН/м3)


Таким образом, сумма внешних вертикальных нагрузок:

для оси А: NI = 300+38,88 = 338,88 (кН/м)

для оси Б: NI = 1000+52,92+20,16+3 = 1076,08 (кН/м)

для оси В: NI = 340+33,12+1,88 = 375 (кН/м)

для оси Г: NI = 300+38,88 = 338,88 (кН/м)

Сравнение трех вариантов свайного фундамента выполним в виде таблицы 4.2

Таблица 4.2 - Максимально допустимое расстояние между осями свай для осей А, В, Г и количество свай для оси Б

Марка сваи

lf,св по оси А, (м)

nсв по оси Б, (шт)

lf,св по оси В, (м)

lf,св по оси Г, (м)

С3-30

1,12

3,14

1,02

1,12

С8-30

1,77

1,97

1,6

1,77

С10-30

1,77

1,97

1,6

1,77


Расстояние между осями висячих свай должно быть в пределах 3÷6d или 0,9÷ 1,8(м), минимальное расстояние между осями свай-стоек 1,5d или 0,45 (м).

В итоге для фундамента глубокого заложения принимаем сваи С8-30.

4.6 Определение усилий в сваях во внецентренно нагруженном фундаменте под колонну

Для фундаментов с вертикальными сваями расчетная нагрузка N, передаваемая на сваю, определяется по формуле:

N = NdI/n ± MdI y/ ∑≤ Pсв, (4.7)

где: - полная расчетная нагрузка на свайный фундамент;- расчетный момент внешних сил относительно главной центральной оси плана свай в плоскости подошвы свайного ростверка;- число свай в фундаменте; - расстояние от главной оси плиты ростверка до оси сваи, для которой вычисляется расчетная нагрузка;- расстояние от главной оси плиты ростверка до оси каждой сваи.

= 1076,08/4 +125·0,45/ 0,452·2 = 372,91(кН) ≤ Pсв=377,5 (кН)= 1076,08/4 - 125·0,45/ 0,452·2 = 95,13(кН) ≤ Pсв=377,5 (кН)

Условия выполняется, расчет несущей способности свайного фундамента считается законченным.

.7 Проверка давления в основании свайного фундамента

При расчете свайного фундамента из висячих свай по деформациям его заменяют условным фундаментом на естественном основании. Границы условного фундамента образованы снизу - горизонтальной плоскостью проходящей через острие свай и боковыми гранями наклонными к оси фундамента как показано на рисунке 4.1. Угол наклона равен четверти осредненного угла внутреннего трения, который определяется по формуле:

φII,mt = ∑ φII,i hi / ∑hi (4.8)

где:

φII,i - угол внутреннего трения для i-го слоя грунта; - толщина i-го слоя грунта.

Рисунок 4.1 - Определение ширины подошвы фундамента

Осредненное значение угла внутреннего трения определяется:

φII,mt = 2,3*7+5,3*24+0,3*35=19,46

Ширина подошвы условного фундамента под стены:

Вст = Вк - d - с = 2,42-0,3-0,68=1,44

Ширина подошвы условного фундамента под колонны:

Вк = b + 2(d/2) + 2h tg(φII,mt/4)=

=0,98+2·0,3/2+2·7,9· tg(19,46/4)=2,42

При расчете внецентренно нагруженного условного фундамента по второй группе предельных состояний осадка фундамента не должна превышать предельных значений, а напряжения под подошвой условного фундамента ограничиваются условиями:

рmax £ 1,2R (4.9)

рmin  0 (4.10)

рср £ R (4.11)

где:- расчетное сопротивление грунта условного фундамента, определяемого по формуле:

      (4.12)

Рисунок 4.2 - К определению расчетных характеристик

Для удобства занесем данные необходимые при вычислении расчетных сопротивлений грунтов в таблицу 4.3

Таблица 4.3 - Расчетные характеристики грунтов.

Характеристика

К расчету R, по осям


А

Б

В

Г

γС1

1,4

1,4

1,4

1,4

γС2

1,2

1,2

1,2

1,2

Мγ

1,68

1,68

1,68

1,68

Mq

7,71

7,71

7,71

7,71

Mc

9,58

9,58

9,58

9,58

kz

1

1

1

1

cII

-

-

-

-

γII

19 (кН/м3)

19 (кН/м3)

19 (кН/м3)

19 (кН/м3)

γ‘II

16 (кН/м3)

16 (кН/м3)

16 (кН/м3)

16 (кН/м3)

d1

10,3 (м)

10,3 (м)

10,3 (м)

10,3 (м)

db

0

0

2

2

b

1,44 (м)

2,42 (м)

1,44 (м)

1,44(м)


Определяем расчетные сопротивления грунтов R:

для оси А:= 1,4∙1,2∙(1,68∙1∙1,44∙19 + 7,71∙10,3∙16)/1 = 2211,84 (кПа)

для оси Б:= 1,4∙1,2∙(1,68∙1∙2,42∙19 + 7,71∙10,3∙16)/1 = 2264,39 (кПа)

для оси В:= 1,4∙1,2∙(1,68∙1∙1,44∙19 + 7,71∙10,3∙16)/1 = 2211,84 (кПа)

для оси Г:= 1,4∙1,2∙(1,68∙1∙1,44∙19 + 7,71∙10,3∙16)/1 = 2211,84 (кПа)

Давление под подошвой условного фундамента определяется по формуле:

 = NII /Ау ± MII / W (4.13)

где: - вертикальная нагрузка в плоскости подошвы условного фундамента с учетом веса грунтового массива;

Ау - площадь условного фундамента;- момент сопротивления условного фундамента в уровне нижних концов свай;- момент внешних сил относительно центра тяжести подошвы плиты ростверка.

Давление на основание под подошвой фундамента по оси А:

р = N'II / А = (N0II l + NfII + NgII + NkII + NqII)/(b l) = (300∙1+38,88)/1,44∙1,44= =163,42 (кН/м2)

р = 163,42 (кН/м2) < R=2211,84 (кПа), условие выполняется.

Давление на основание под подошвой фундамента по оси В:

р = N'II / А = (N0II l + NfII + NgII + NkII + NqII)/(b l) = (340∙1+33,12+1,88)/

/1,44∙1,44= 180,8 (кН/м2)

р = 180,8 (кН/м2 )< R=2211,84 (кПа), условие выполняется.

Давление на основание под подошвой фундамента по оси Г:

р = N'II / А = (N0II l + NfII + NgII + NkII + NqII)/(b l) = (300∙1+38,88)/1,44∙1,44= =163,42 (кН/м2)

р = 163,42 (кН/м2) < R=2211,84 (кПа), условие выполняется.

Среднее давление на основание под подошвой фундамента по оси Б:

 = N'II / А = (N0II + b·l·d· γm) /(b·l) ± 6· М0II/(b2·l) = (1000+2,42·2,42·10,3·22)/

/(2,42·2,42)±(6·125)/( 2,42·2,422) = 334,35±52,91 (кН/м2)= 450,27 (кН/м2 )< 1,2R = 2717,268 (кПа), условие выполняется.= 344,44 (кН/м2 )> 0, условие выполняется.

Рср = 397,37(кН/м2 ) ≤ R = 2264,39 (кПа), условие выполняется.

4.8 Расчет осадки основания свайного фундамента

Построение эпюр природных напряжений σzg и 0,2σzg выполняем по аналоги с пунктом 3.6. Дополнительное вертикальное давление на основание, определяется по формуле:

р0 = р - σzg,0                                           (4.14)

где:- среднее давление под подошвой фундамента;

σzg,0 - вертикальное напряжение от собственного веса грунта на уровне подошвы фундамента.

σzg,0=∑hi ·γi/ hi =

(3,8*17,8+0,9*19,5+5,3*19,2+0,3*19)/(3,8+0,9+5,3+0,3)=18,7(кПа)

р0 = р - σzg,0=397,37-18,7=378,67 (кПа)        

Расчет осадки фундаментов по осям выполним в табличной форме (таблица 4.4 - Расчет осадки фундамента по осям А,Б,В,Г).

Учет осадки ведется, как правило, до отметки нижней границы сжимаемой толщи(НГСТ), которая определяется графически, в месте пересечения эпюры 0,2σzg и σzp.

Таблица 4.4 - Расчет осадки фундамента по оси Б.

№ слоя

Глубина подошвы слоя от подошвы фундамента zi, м

Толщина слоя hi, м

Коэффициент ζi=2zi/b

Коэффициент αi

Напряже-ние σzp,i на глубине zi, кПа

Среднее напряжение σzp,iср, кПа

Модуль деформации Еi, кПа

Осадка слоя si, м

1

0,9

0,9

0,7

0,920

348,37

397,37

50000

0,00715


1,8

0,9

1,5

0,567

214,7

281,5

50000

0,00507


2,7

0,9

2,2

0,297

112,46

163,58

50000

0,00294


3,2

0,9

2,6

0,229

86,71

99,58

50000

0,00179

∑S

0,0098

0,98(см) ≤ 10(см), осадка считается допустимой


Рисунок 4.4 - Эпюра нормальных напряжений грунта по оси Б

СПИСОК ИСПОЛЬЗУЕМОЙ ЛИТЕРАТУРЫ

1. СНиП РК 5.01-01-2002. Основания зданий и сооружений.

. ГОСТ 25100-95. Грунты. Классификация.

. Пособие по проектированию оснований зданий и сооружений (к СНиП 2.02.01-83) / НИИОСП им. Н.М.Герсеванова. - М.: Стройиздат, 1986.-415 с.

. Берлинов М.В., Ягупов Б.А. Расчет оснований и фундаментов. -М.: Стройиздат, 2001.-272 с.

. Веселов В.А. Проектирование оснований и фундаментов. - М.: Стройиздат, 1990.-304 с.

. СНиП 3.02.01-83. Основания и фундаменты / Госстрой СССР. - М.: Стройиздат. 1983.-39 с.

. ГОСТ 13579-78*. Блоки бетонные для стен подвалов. Технические условия.

. Пособие по проектированию фундаментов на естественном основании под колонны зданий и сооружений (к СНиП 2.03.01-84 и СНиП 2.02.01-83) / Ленпромстройпроект Госстроя СССР. - М.: ЦИТП Госстроя СССР, 1989.-112 с.

. Нугуманов Д.Т. Проектирование свайных фундаментов / ВКТУ, Усть-Каменогорск, 1999.-82 с.

. Проектирование и устройство свайных фундаментов: Учеб. пособие для строительных вузов/ С.Б.Беленький, Л.Г.Дикман, И.И.Косоруков и др. -М.: Высшая школа, 1983.-328 с.

ПРИЛОЖЕНИЕ

Таблица 1 - Наименование пылевато-глинистого грунта (тип грунта) устанавливается по числу пластичности Ip.

Тип пылевато-глинистых грунтов

Число пластичности IР, %

Супеси

1 £ IР £ 7

Суглинки

7 < IР £ 17

Глины

IР > 17


Таблица 2 - Разновидность по показателю текучести IL

Разновидности  пылевато-глинистых грунтов

Показатель текучести IL

Супеси: твердые

IL < 0

пластичные

0 £ IL £ 1

текучие

IL > 1

Суглинки и глины: твердые

IL< 0

полутвердые

0 £ IL £ 0,25

тугопластичные

0,25 < IL £ 0,5

мягкопластичные

0,5 < IL £ 0,75

текучепластичные

0,75 < IL £ 1

текучие

IL > 1


Гранулометрический состав несвязных грунтов задается в курсовом проекте в виде кривых гранулометрического состава (рисунок 1) и определяется согласно таблице 3

Рисунок 1 - кривые гранулометрического состава несвязных грунтов

Таблица 3

Грунты

Размер частиц d, мм

% массы воздушно-сухого грунта

Крупнообломочные

Валунные грунт (при преобладании  неокатанных частиц - глыбовый)

d > 200

> 50

Галечниковый грунт (при преобладании неокатанных частиц - щебенистый)

d > 10

> 50

Гравийный грунт (при преобладании  неокатанных частиц - дресвяный)

d > 2

> 50

Песчаные

Песок гравелистый

d > 2

> 25

Песок крупный

d > 0,5

> 50

Песок средней крупности

d > 0,25

Песок мелкий

d > 0,10

 75

Песок пылеватый

d > 0,10

< 75

Примечание. Для установления наименования грунта последовательно суммируются проценты частиц исследуемого грунта: сначала - крупнее 200 мм, затем - крупнее 10 мм, далее - крупнее 2 мм и т.д. Наименование грунта принимается по первому удовлетворяющему показателю в порядке расположения наименований в таблице.


Таблица 4

Разновидность крупнообломочных и песчаных грунтов по степени влажности

Степень влажности Sr

Маловлажные

0 < Sr £ 0,5

Влажные

0,5 < Sr £ 0,8

Насыщенные водой

0,8 < Sr £ 1


Таблица 5

Вид песков

Плотность сложения


плотные

средней  плотности

рыхлые

Пески гравелистые, крупные и средней крупности

 е < 0,55

0,55 £ е £ 0,70

е > 0,70

Пески мелкие

е < 0,60

0,60 £ е £ 0,75

е > 0,75

Пески пылеватые

 е < 0,60

0,60 £ е £ 0,80

е > 0,80


Расчетные сопротивления R0 грунтов:

Таблица 6- Расчетные сопротивления R0 крупнообломочных грунтов

Крупнообломочные грунты

Значение R0 , кПа (кгс/см2)

Крупнообломочные грунты

Значение R0 , кПа (кгс/см2)

Галечниковые (щебенистые) с заполнителем: песчаным пылевато-глинистым при показателе текучести: IL £ 0,5 0,5 < IL £ 0,75

  600 (6)   450 (4,5) 400 (4)

Гравийные (дресвяные) с заполнителем: песчаным пылевато-глинистым при показателе текучести: IL £ 0,5 0,5 < IL £ 0,75

  500 (5)   400 (4) 350 (3,5)


Таблица 7 - Расчетные сопротивления R0 песчаных грунтов

Пески

Значение R0, кПа (кгс/см2), в зависимости от плотности сложения грунтов


плотные

средней плотности

Крупные Средней крупности Мелкие: маловлажные влажные и насыщенные водой Пылеватые: маловлажные влажные насыщенные водой

600 (6) 500 (5)  400 (4) 300 (3)  300 (3) 200 (2) 150 (1,5)

500 (5) 400 (4)  300 (3) 200 (2)  250 (2,5) 150 (1,5) 100 (1)

Примечание. В курсовом проекте значение R0 для рыхлых песков принимать как для песков средней плотности


Таблица 8 - Расчетные сопротивления R0 пылевато-глинистых грунтов

Пылевато-глинистые грунты

Коэффициент пористости е

Значение R0, кПа (кгс/см2), при показателе текучести грунта



IL = 0

IL = 1

Супеси

0,5 0,7

300 (3) 250 (2,5)

300 (3) 200 (2)

Суглинки

0,5 0,7 1,0

300 (3) 250 (2,5) 200 (2)

250 (2,5) 180 (1,8) 100 (1)

Глины

0,5 0,6 0,8 1,0

600 (6) 500 (5) 300 (3) 250 (2,5)

400 (4) 300 (3) 200 (2) 100 (1)


Таблица 9 - Коэффициент Мt в зависимости от среднемесячной температура воздуха за зиму

Район строительства, город

Месяцы

Коэффициент Мt


I

II

III

IV

. . .

X

XI

XII


Астана

-16,8

-16,5

-10,1

3,0

. . .

2,6

-7,0

-14,0

64,4

Алматы

-6,5

-5,1

2,0

10,8

. . .

9,5

0,9

-4,5

16,1

Атырау

-9,6

-8,7

-1,5

9,6

. . .

8,2

0,4

-5,6

25,4

Зыряновск

-22,6

-20,8

-11,7

1,9

. . .

2,4

-10,8

-19,5

85,4

Караганда

-14,5

-14,2

-7,7

4,6

. . .

3,2

-6,3

-12,3

55,0

Кокшетау

-15,8

-15,3

-9,2

3,3

. . .

2,8

-6,7

-13,4

60,4

Павлодар

-17,6

-17,3

-9,4

4,2

. . .

3,5

-7,0

-14,4

65,7

Петропавловск

-18,1

-16,9

-10,3

2,4

. . .

1,9

-7,8

-15,2

68,3

Риддер

-12,5

-12,1

-6,3

3,0

. . .

2,7

-6,7

-11,2

48,8

Усть-Каменогорск

-16,5

-16,0

-7,8

4,8

. . .

5,0

-6,1

-13,8

60,2

Уральск

-13,5

-13,2

-6,7

6,2

. . .

5,1

-2,9

-9,8

46,1

Тараз

-5,0

-3,3

3,3

11,3

. . .

9,9

2,0

-3,4

11,7


Таблица 9* - Коэффициента kh

Особенности  сооружения

Коэффициент kh при расчетной среднесуточной температуре воздуха в помещении, примыкающем к наружным фундаментам, оС


0

5

10

15

20 и более

Без подвала с полами, устраиваемыми: по грунту на лагах по грунту по утепленному цокольному перекрытию С подвалом или техническим подпольем

  0,9 1,0 1,0   0,8

  0,8 0,9 1,0   0,7

  0,7 0,8 0,9   0,6

  0,6 0,7 0,8   0,5

  0,5 0,6 0,7   0,4

Примечания:  1. Приведенные в таблице значения коэффициента kh относятся к фундаментам, у которых расстояние от внешней грани стены до края фундамента аf < 0,5 м; если аf  1,5 м, значение коэффициента kh повышаются на 0,1, но не более чем до значения kh = 1; при промежуточном размере аf значения коэффициента kh определяются по интерполяции.

. К помещениям, примыкающим к наружным фундаментам, относятся подвалы и технические подполья, а при их отсутствии - помещения первого этажа.

3. При промежуточных значениях температуры воздуха коэффициент kh принимается с округлением до ближайшего меньшего значения, указанного в таблице.


Таблица 10 - Коэффициенты условий работы γС1 и γС2

Грунты

Коэффициент γС1

Коэффициент γС2 для сооружений с жесткой конструктивной схемой при отношении длины сооружения или его отсека к высоте L/H, равном



4 и более

1,5 и менее

Крупнообломочные с песчаным заполнителем и песчаные, кроме мелких и пылеватых

1,4

1,2

1,4

Пески мелкие

1,3

1,1

1,3

Пески пылеватые: маловлажные и влажны насыщенные водой

 1,25 1,1

 1,0 1,0

 1,2 1,2

Пылевато-глинистые, а также крупнообломочные с пылевато-глинистым заполнителем с показателем текучести грунта или заполнителя IL £ 0,25

1,25

1,0

1,1

То же, при 0,25 < IL £ 0,5

1,2

1,0

1,1

То же, при IL > 0,5

1,0

1,0

1,0

Примечания: 1. К сооружениям с жесткой конструктивной схемой относятся сооружения, конструкции которых приспособлены к восприятию усилий от деформации оснований путем применения специальных мероприятий. 2. Для зданий с гибкой конструктивной схемой значение коэффициента γС2 принимается равным единице. 3. При промежуточных значениях L/H коэффициент γС2 определяется по интерполяции.


Таблица 11 - Коэффициенты Мγ, Мq, Мc

Угол внутреннего трения jII, град.

Коэффициенты

Угол внутреннего трения jII, град.

Коэффициенты


Мγ

Мq

Мc


Мγ

Мq

Мc

0 1 2

0,00 0,01 0,03

1,00 1,06 1,12

3,14 3,23 3,32

23 24 25

0,69 0,72 0,78

3,65 3,87 4,11

6,24 6,45 6,67

3 4 5

0,04 0,06 0,08

1,18 1,25 1,32

3,41 3,51 3,61

26 27 28

0,84 0,91 0,98

4,37 4,64 4,93

6,90 7,14 7,40

6 7 8

0,10 0,12 0,14

1,39 1,47 1,55

3,71 3,82 3,93

29 30 31

1,06 1,15 1,24

5,25 5,59 5,95

7,67 7,95 8,24

9 10 11

0,16 0,18 0,21

1,64 1,73 1,83

4,05 4,17 4,29

32 33 34

1,34 1,44 1,55

6,34 6,76 7,22

8,55 8,88 9,22

12 13 14

0,23 0,26 0,29

1,94 2,05 2,17

4,42 4,55 4,69

35 36 37

1,68 1,81 1,95

7,71 8,24 8,81

9,58 9,97 10,37

15 16 17

0,32 0,36 0,39

2,30 2,43 2,57

4,84 4,99 5,15

38 39 40

2,11 2,28 2,46

9,44 10,11 10,85

10,80 11,25 11,73

18 19 20

0,43 0,47 0,51

2,73 2,89 3,06

5,31 5,48 5,66

41 42 43

2,66 2,88 3,12

11,64 12,51 13,46

12,24 12,79 13,37

21 22

0,56 0,61

3,24 3,44

5,84 6,04

44 45

3,38 3,66

14,50 15,64

13,98 14,64


Таблица 12 - Коэффициент α

ζ = 2z/b

Коэффициент α для фундаментов


круг- лых

прямоугольных с соотношением сторон η = l/b, равным

ленточных (η 10)



1,0

1,4

1,8

2,4

3,2

5,0


0

1,000

1,000

1,000

1,000

1,000

1,000

1,000

1,000

0,4

0,949

0,960

0,975

0,976

0,977

0,977

0,977

0,8

0,756

0,800

0,848

0,866

0,876

0,879

0,881

0,881

1,2

0,547

0,606

0,682

0,717

0,739

0,749

0,754

0,755

1,6

0,390

0,449

0,532

0,578

0,612

0,629

0,639

0,642

2,0

0,285

0,336

0,414

0,463

0,505

0,530

0,545

0,550

2,4

0,214

0,257

0,325

0,374

0,419

0,449

0,470

0,477

2,8

0,165

0,201

0,260

0,304

0,349

0,383

0,410

0,420

3,2

0,130

0,160

0,210

0,251

0,294

0,329

0,360

0,374

3,6

0,106

0,131

0,173

0,209

0,250

0,285

0,319

0,337

4,0

0,087

0,108

0,145

0,176

0,214

0,248

0,285

0,306

4,4

0,073

0,091

0,123

0,150

0,185

0,218

0,255

0,280

4,8

0,062

0,077

0,105

0,130

0,161

0,192

0,230

0,258

5,2

0,053

0,067

0,091

0,113

0,141

0,170

0,208

0,239

5,6

0,046

0,058

0,079

0,099

0,124

0,152

0,189

0,223

6,0

0,040

0,051

0,070

0,087

0,110

0,136

0,173

0,208

6,4

0,036

0,045

0,062

0,077

0,099

0,122

0,158

0,196

6,8

0,031

0,040

0,055

0,064

0,088

0,110

0,145

0,185

7,2

0,028

0,036

0,049

0,062

0,080

0,100

0,133

0,175

7,6

0,024

0,032

0,044

0,056

0,072

0,091

0,123

0,166

8,0

0,022

0,029

0,040

0,051

0,066

0,084

0,113

0,158

8,4

0,021

0,026

0,037

0,046

0,060

0,077

0,105

0,150

8,8

0,019

0,024

0,033

0,042

0,055

0,071

0,098

0,143

9,2

0,017

0,022

0,031

0,039

0,051

0,065

0,091

0,137

9,6

0,016

0,020

0,028

0,036

0,047

0,060

0,085

0,132

10,0

0,015

0,019

0,026

0,033

0,043

0,056

0,079

0,126

10,4

0,014

0,017

0,024

0,031

0,040

0,052

0,074

0,122

10,8

0,013

0,016

0,022

0,029

0,037

0,049

0,069

0,117

11,2

0,012

0,015

0,021

0,027

0,035

0,045

0,065

0,113

11,6

0,011

0,014

0,020

0,025

0,033

0,042

0,061

0,109

12,0

0,010

0,013

0,018

0,023

0,031

0,040

0,058

0,106

Примечания: 1. В таблице обозначено: b - ширина фундамента, l - длина фундамента. 2. Для фундаментов, имеющих подошву в форме правильного многоугольника с площадью А, значения α принимаются как для круглых фундаментов радиусом .

3. Для промежуточных значений ζ и η коэффициент α определяется по интерполяции.


Таблица 13 - Коэффициент km

Среднее значение модуля деформации грунта основания Е, МПа (кгс/см2)

Значение коэффициента km при ширине фундамента b, м, равной


b < 10

10 £ b £ 15

b > 15

Е < 10 (100) Е  10 (100)1

,351

1,5





Таблица 14 - Коэффициент kе

Форма фундамента и направление действия момента

η = l/b

Коэффициент kе при ζ' = 2H/b, равном



0,5

1

1,5

2

3

4

5

Прямоугольный с моментом вдоль большей стороны

1 1,2 1,5 2 3 5 10

0,28 0,29 0,31 0,32 0,33 0,34 0,35

0,41 0,44 0,48 0,52 0,55 0,60 0,63

0,46 0,51 0,57 0,64 0,73 0,80 0,85

0,48 0,54 0,62 0,72 0,83 0,94 1,04

0,50 0,57 0,66 0,78 0,95 1,12 1,31

0,50 0,57 0,68 0,81 1,01 1,24 1,45

0,50 0,57 0,68 0,82 1,04 1,31 1,56

0,50 0,57 0,68 0,82 1,17 1,42 2,00










Прямоугольный с моментом вдоль меньшей стороны

1 1,2 1,5 2 3 5 10

0,28 0,24 0,19 0,15 0,10 0,06 0,03

0,41 0,35 0,28 0,22 0,15 0,09 0,05

0,46 0,39 0,32 0,25 0,17 0,10 0,05

0,48 0,41 0,34 0,27 0,18 0,11 0,06

0,50 0,42 0,35 0,28 0,19 0,12 0,06

0,50 0,43 0,36 0,28 0,20 0,12 0,06

0,50 0,43 0,36 0,28 0,20 0,12 0,06

0,50 0,43 0,36 0,28 0,20 0,12 0,07










Круглый

-

0,43

0,63

0,71

0,74

0,75

0,75

0,75

0,75










Примечания: 1. Промежуточные значения коэффициента kе определяются по интерполяции. 2. При использовании расчетной схемы основания в виде линейно деформируемого полупространства (в курсовом проекте принята именно эта схема) коэффициент kе принимается по графе, соответствующей ζ' = ∞. 3. l и b - соответственно длина и ширина прямоугольного фундамента под колонну


Данные для определения несущей способности свай:

Таблица 15 - Значения расчетных сопротивлений R

Глубина погружения нижнего конца сваи, м

Расчетные сопротивления под нижним концом забивных свай и свай-оболочек, погружаемых без выемки грунта, R, кПа (тс/м2)


песчаных грунтов средней плотности


гравелистых

крупных

-

средней крупности

мелких

пылеватых

-


пылевато-глинистых грунтов при показателе текучести IL, равном


0

0,1

0,2

0,3

0,4

0,5

0,6

3

7500 (750)

6600(660) 4000(400)

3000 (300)

3100(310) 2000(200)

2000(200) 1200(120)

1100 (110)

4

8300 (830)

6800(680) 5100(510)

3800 (380)

3200(320) 2500(250)

2100(210) 1600(160)

1250 (125)

700 (70)

5

8800 (880)

7000(700) 6200(620)

4000 (400)

3400(340) 2800(280)

2200(220) 2000(200)

1300 (130)

800 (80)

7

9700 (970)

7300(730) 6900(690)

4300 (430)

3700(370) 3300(330)

2400(240) 2200(220)

1400 (140)

850 (85)

10

10500 (1050)

7700(770) 7300(730)

5000 (500)

4000(400) 3500(350)

2600(260) 2400(240)

1500 (150)

900 (90)

15

11700 (1170)

8200(820) 7500(750)

5600 (560)

4400(440) 4000(400)

2900 (290)

1650 (165)

1000 (100)

20

12600 (1260)

8500 (850)

6200 (620)

4800(480) 4500(450)

3200 (320)

1800 (180)

1100 (110)

25

13400 (1340)

9000 (900)

6800 (680)

5200 (520)

3500 (350)

1950 (195)

1200 (120)

30

14200 (1420)

9500 (950)

7400 (740)

5600 (560)

3800 (380)

2100 (210)

1300 (130)

35

15000 (1500)

10000 (1000)

8000 (800)

6000 (600)

4100 (410)

2250 (225)

1400 (140)


Таблица 16 - Значения расчетных сопротивлений f

Средняя глубина расположения слоя грунта, м

Расчетные сопротивления на боковой поверхности забивных свай и свай-оболочек, fi, кПа (тс/м2)


песчаных грунтов средней плотности


крупных и средней крупности

мелких

пылеватых

-

-

-

-

-

-


пылевато-глинистых грунтов при показателе текучести IL, равном


0,2

0,3

0,4

0,,5

0,6

0,7

0,8

0,9

1,0

1

35 (3,5)

23 (2,3)

15 (1,5)

12 (1,2)

8 (0,8)

4 (0,4)

4 (0,4)

3 (0,3)

2 (0,2)

2

42 (4,2)

30 (3,0)

21 (2,1)

17 (1,7)

12 (1,2)

7 (0,7)

5 (0,5)

4 (0,4)

4 (0,4)

3

48 (4,8)

35 (3,5)

25 (2,5)

20 (2,0)

14 (1,4)

8 (0,8)

7 (0,7)

6 (0,6)

5 (0,5)

4

53 (5,3)

38 (3,8)

27 (2,7)

22 (2,2)

16 (1,6)

9 (0,9)

8 (0,8)

7 (0,7)

5 (0,5)

5

56 (5,6)

40 (4,0)

29 (2,9)

24 (2,4)

17 (1,7)

10 (1,0)

8 (0,8)

7 (0,7)

6 (0,6)

6

58 (5,8)

42 (4,2)

31 (3,1)

25 (2,5)

18 (1,8)

10 (1,0)

8 (0,8)

7 (0,7)

6 (0,6)

8

62 (6,2)

44 (4,4)

33 (3,3)

26 (2,6)

19 (1,9)

10 (1,0)

8 (0,8)

7 (0,7)

6 (0,6)

10

65 (6,5)

46 (4,6)

34 (3,4)

27 (2,7)

19 (1,9)

10 (1,0)

8 (0,8)

7 (0,7)

6 (0,6)

15

72 (7,2)

51 (5,1)

38 (3,8)

28 (2,8)

20 (2,0)

11 (1,1)

8 (0,8)

7 (0,7)

6 (0,6)

20

79 (7,9)

56 (5,6)

41 (4,1)

30 (3,0)

20 (2,0)

12 (1,2)

8 (0,8)

7 (0,7)

6 (0,6)

25

86 (8,6)

61 (6,1)

44 (4,4)

32 (3,2)

20 (2,0)

12(1,2)

8 (0,8)

7 (0,7)

6 (0,6)

30

93 (9,3)

66 (6,6)

47 (4,7)

34 (3,4)

21 (2,1)

12 (1,2)

9 (0,9)

8 (0,8)

7 (0,7)

35

100(10,0)

70 (7,0)

50 (5,0)

36 (3,6)

22 (2,2)

13 (1,3)

9 (0,9)

8 (0,8)

7 (0,7)


Таблица 17 - Значения коэффициентов условий работы грунта

Способы погружения забивных свай и свай-оболочек, погружаемых без выемки грунта, и виды грунтов

Коэффициенты условий работы грунта при расчете несущей способности свай


под нижним  концом γсR

на боковой  поверхности γсf

1. Погружение сплошных и полых с закрытым нижним концом свай механическими (подвесными), паровоздушными и дизельными молотами

1,0

1,0

2. Погружение забивкой и вдавливанием в предварительно пробуренные лидерные скважины с заглублением концов свай не менее 1 м ниже забоя скважины при ее диаметре: а) равном стороне квадратной сваи б) на 0,05 м менее стороны квадратной сваи в) на 0,15м менее стороны квадратной или диаметра сваи круглого сечения (для опор линий электропередачи)

   1,0 1,0 1,0

   0,5 0,6 1,0

3. Погружение с подмывом в песчаные грунты при условии добивки свай на последнем этапе погружения без применения подмыва на 1 м и более

1,0

0,9

4. Вибропогружение свай-оболочек, вибропогружение и вибровдавливание свай в грунты: а) песчаные средней плотности: крупные и средней крупности мелкие пылеватые б)пылевато-глинистые с показателем текучести IL = 0,5: супеси суглинки глины в) пылевато-глинистые с показателем текучести IL £ 0

   1,2 1,1 1,0  0,9 0,8 0,7 1,0

   1,0 1,0 1,0  0,9 0,9 0,9 1,0

Погружение молотами любой конструкции полых железобетонных свай с открытым нижним концом: а) при диаметре полости сваи 0,4 м и менее б) то же, от 0,4 до 0,8 м

  1,0 0,7

  1,0 1,0

Способы погружения забивных свай и свай-оболочек, погружаемых без выемки грунта, и виды грунтов

Коэффициенты условий работы грунта при расчете несущей способности свай


под нижним концом γсR

на боковой поверхности γсf

6. Погружение любым способом полых свай круглого сечения с закрытым нижним концом на глубину 10 м и более с последующим устройством в нижнем конце свай камуфлетного уширения в песчаных грунтах средней плотности и в пылевато-глинистых грунтах с показателем текучести IL £ 0,5 при диаметре уширения, равном: а) 1,0 м независимо от указанных видов грунта б) 1,5 м в песках и супесях в) 1,5 м в суглинках и глинах

       0,9 0,8 0,7

       1,0 1,0 1,0

7. Погружение вдавливанием свай: а) в пески средней плотности крупные, средней крупности и мелкие б) в пески пылеватые в) в пылевато-глинистые грунты с показателем текучести IL < 0,5 г) то же, IL ≥ 0,5

 1,1  1,1 1,1 1,0

 1,0  0,8 1,0 1,0

Примечание. Коэффициенты gcR и gcf по поз. 4 табл. 17 для пылевато-глинистых грунтов с показателем текучести 0,5 > IL > 0 определяются интерполяцией.


Не нашли материал для своей работы?
Поможем написать уникальную работу Без плагиата!