Министерство образования и науки РФ
Федеральное государственное бюджетное образовательное учреждение
высшего профессионального образования
«Тульский государственный университет»
Политехнический институт
Кафедра
«Автоматизированные станочные системы»
Контрольно-курсовая работа по курсу
«Компьютерная графика»
Вариант 5
На тему:
«Электронная
модель стула с ножками»
Выполнил студент гр. Б662132с
Бочаров Д.В.
Проверил
Анцев А.В.
Тула 2015
Содержание
Введение
. Описание стула с ножками
. Создание деталей
. Создание сборочного чертежа
Список используемой литературы
Введение
«КО́МПАС» (сокращение от «комплекс автоматизированных систем») - семейство систем автоматизированного проектирования <https://ru.wikipedia.org/wiki/%D0%A1%D0%B8%D1%81%D1%82%D0%B5%D0%BC%D0%B0_%D0%B0%D0%B2%D1%82%D0%BE%D0%BC%D0%B0%D1%82%D0%B8%D0%B7%D0%B8%D1%80%D0%BE%D0%B2%D0%B0%D0%BD%D0%BD%D0%BE%D0%B3%D0%BE_%D0%BF%D1%80%D0%BE%D0%B5%D0%BA%D1%82%D0%B8%D1%80%D0%BE%D0%B2%D0%B0%D0%BD%D0%B8%D1%8F> от российской компании «Аскон» с возможностями оформления проектной и конструкторской документации согласно стандартам серии ЕСКД <https://ru.wikipedia.org/wiki/%D0%95%D0%B4%D0%B8%D0%BD%D0%B0%D1%8F_%D1%81%D0%B8%D1%81%D1%82%D0%B5%D0%BC%D0%B0_%D0%BA%D0%BE%D0%BD%D1%81%D1%82%D1%80%D1%83%D0%BA%D1%82%D0%BE%D1%80%D1%81%D0%BA%D0%BE%D0%B9_%D0%B4%D0%BE%D0%BA%D1%83%D0%BC%D0%B5%D0%BD%D1%82%D0%B0%D1%86%D0%B8%D0%B8> и СПДС <https://ru.wikipedia.org/wiki/%D0%A1%D0%B8%D1%81%D1%82%D0%B5%D0%BC%D0%B0_%D0%BF%D1%80%D0%BE%D0%B5%D0%BA%D1%82%D0%BD%D0%BE%D0%B9_%D0%B4%D0%BE%D0%BA%D1%83%D0%BC%D0%B5%D0%BD%D1%82%D0%B0%D1%86%D0%B8%D0%B8_%D0%B4%D0%BB%D1%8F_%D1%81%D1%82%D1%80%D0%BE%D0%B8%D1%82%D0%B5%D0%BB%D1%8C%D1%81%D1%82%D0%B2%D0%B0>.
Программы данного семейства автоматически генерируют ассоциативные виды трёхмерных моделей (в том числе разрезы <https://ru.wikipedia.org/wiki/%D0%A0%D0%B0%D0%B7%D1%80%D0%B5%D0%B7>, сечения, местные разрезы, местные виды, виды по стрелке, виды с разрывом). Все они ассоциированы с моделью: изменения в модели приводят к изменению изображения на чертеже. Стандартные виды автоматически строятся в проекционной связи. Данные в основной надписи чертежа (обозначение, наименование, масса) синхронизируются с данными из трёхмерной модели. Имеется возможность связи трёхмерных моделей и чертежей со спецификациями, то есть при «надлежащем» проектировании спецификация может быть получена автоматически; кроме того, изменения в чертеже или модели будут передаваться в спецификацию, и наоборот.
«Компас» выпускается в нескольких
редакциях: «Компас-График», «Компас-СПДС», «Компас-3D», «Компас-3D LT»,
«Компас-3D Home». «Компас-График» может использоваться и как полностью
интегрированный в «Компас-3D» модуль работы с чертежами и эскизами, и в
качестве самостоятельного продукта, предоставляющего средства решения задач
2D-проектирования и выпуска документации. «Компас-3D LT» и «Компас-3D Home»
предназначены для некоммерческого использования, «Компас-3D» без
специализированной лицензии не позволяет открывать файлы, созданные в этих
программах. Такая специализированная лицензия предоставляется только учебным
заведениям.
1. Описание стула с ножками
Мой стул с ножками состоит из 5 деталей: 2х ножек1, 2х ножек2, 4х поперечных, 1ой крепежной, 8 чопиков и сидения. Все эти детали изготовлены из дерева.
Стул собран без использования метталлической
фарнитуры, и имеет полированую поверхность сидения.
. Создаем детали
.1 Ножка1
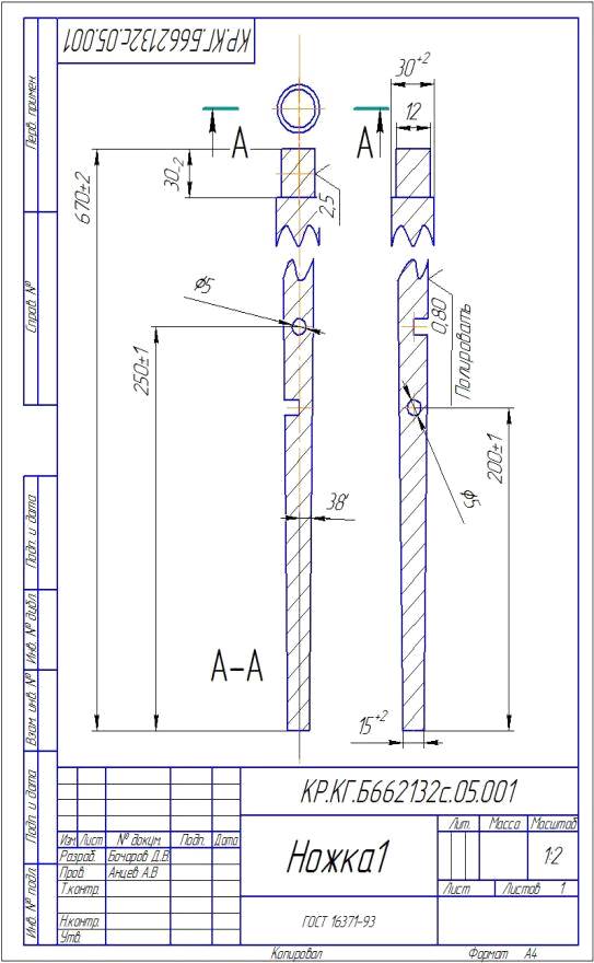
Создаем ножку1. Для этого я нарисовал эскиз,
проставил размеры и применил операцию вращения, сделал отверстия под
поперечные. И сразу создаем чертеж из заданной детали, на котором проставляем
допуски и шероховатости .
Рис.1 Ножка1
Рис.2 чертеж Ножка1
.2 Ножка2
Создаем ножку2. Для этого я нарисовал эскиз детали, проставил размеры и применил к нему операцию вращения, сделал отверстия под поперечные. Далее создаем чертеж с допусками и шероховатостями.
компас трехмерный модель чертеж
Рис.3 Ножка2
Рис.4 Чертеж Ножка2
.3 Поперечная
Создаем поперечную. Для этого я нарисовал эскиз
детали, проставил размеры и применил к нему операцию вращения. Далее создаем
чертеж с допусками и шероховатостями.
Рис 5.Поперечная
Рис.6 Чертеж Поперечная
.4 Чопик
Создаем чопик. Для этого я нарисовал эскиз
детали, проставил размеры и применил к нему операцию вращения. Далее создаем
чертеж с допусками и шероховатостями.
Рис 7.Чопик
Рис 8.Чертеж Чопик
.5 Сидение
Создаем Сидение. Для этого я нарисовал эскиз
детали, проставил размеры и применил к нему операцию выдавливание, закруглил
края , сделал отверстия под чопики. Далее создаем чертеж с допусками и
шероховатостями.
Рис 9.Сидение
Рис 10.Чертеж Сидение
Создаем крепежную. Для этого я нарисовал эскиз
детали, проставил размеры и применил к нему операцию выдавливание, сделал
отверстия под чопики и ножки стула. Далее создаем чертеж с допусками и
шероховатостями.

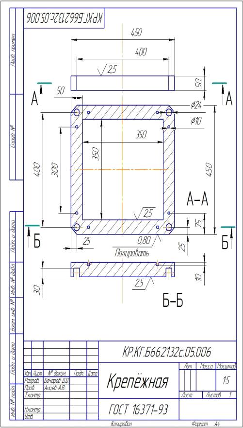
Рис 11.Крипежная
Рис 12.Чертеж Крипежная
. Создание сборочного чертижа
Создаем сборку стула с ножками. Добавляем детали,
делаем соосность, и совпадение деталей. Далее создаем спецификацию на сборку и
чертеж стула с ножками.
Рис 13. Сборка стула с ножками
Рис 14. Чертеж сборки стула с ножками
Рис 15.Спецификация
Заключение
И в самом заключении хочу сказать, что работать в программе КОМПАС-3D v15, несмотря на все возникающие изначально проблемы, достаточно просто. Немаловажным показателем доступности программы является то, что я смог освоить её буквально за неделю.
Поскольку раньше я никогда не работал с программой КОМПАС , то можно сказать , что он стал моей первой «серьёзной» программой, основанной на векторной графике.
По поводу своих ощущений могу сказать, что было
приятно работать в среде КОМПАС, особенно учитывая, что это отечественная
программа . Это было очень интересно и увлекательно.
Список используемой литературы
1. Орехов В.В. КОМПАС-3D 5.1 метод. указ. к лаб. работе. Рязань, 2003.
. Потемкин А. Твердотельное моделирование в системе КОМПАС-3D. Санкт-Петербург, 2004.
. Красильникова Г.А. Автоматизация инженерно-графических работ. Санкт-Петербург, 2000.
. Н. Н. Полещук, В. А. Савельева. Самоучитель КОМПАС-3D 8. Санкт - Петербург: «БХВ - Петербург», 2004.