Материал: Автоматизация электроцнтробежного насоса кустовой площадки Салымского месторождения нефти

Внимание! Если размещение файла нарушает Ваши авторские права, то обязательно сообщите нам

а - круглый б - плоский

1 - жила; 2 - изоляция; 3 - оболочка; 4 - подушка; 5 - броня

Рисунок 1.2 - Виды кабелей

Проектирование систем ЭЦН требует всестороннего и тщательного анализа с целью одновременного решения ряда специфических задач их применения. Для проектирования требуется информация по притоку скважины (кривая потока или кривая продуктивности скважины), данные о скважинных жидкостях (дебит по нефти, водонефтяной фактор, газожидкостное соотношение), данные по трубам (глубины и размеры НКТ и обсадных труб), температуры (на забое и на устье), и давления на устье скважины. Для надлежащего проектирования и подбора оборудования также требуется информация по твердой фазе, твердым отложениям, асфальтенам, коррозионно-активным жидкостям, коррозионно-активным газам и т.д.

Оборудование устья требует установки силового трансформатора и щита управления, а также электрораспределительной коробки с воздушным охлаждением. Если требуется использование привода с регулируемой скоростью, тогда необходим дополнительный повышающий трансформатор в цепи до входа кабеля в устье скважины. Трубная головка имеет конструкцию, позволяющую удерживать колонну НКТ и изолировать электрический кабель. Щит управления обычно оборудуется амперметром, плавкими предохранителями, молниезащитой и системой отключения. Он имеет и другие устройства, такие как выключатель при высоком и низком токе и аварийную сигнализацию. Он позволяет эксплуатировать скважину непрерывно, с перерывами или полностью остановить эксплуатацию.

Он обеспечивает защиту от пиков напряжения или разбалансирований, которые могут произойти в источнике электропитания. Трансформаторы, как правило, располагаются на краю кустового основания.

Входящее электрическое напряжение трансформируется в напряжение, требуемое для работы электродвигателя на предполагаемой нагрузке и для компенсации потерь в кабеле. Повышенное напряжение (пониженный ток) снижает потери на скважинном кабеле, но следует учитывать и другие факторы [2]. ЭЦН резко теряют производительность, когда в насос попадает значительный процент газа.

Пороговый уровень для начала возникновения проблемы с газом, как правило, принимается 10% доли газа по объему на входе насоса. Ввиду того, что насосы имеют высокую скорость вращения (до 4000 об/мин.) и малые зазоры, они не являются стойкими к воздействию твердой фазы, например песка. ЭЦН для нефтяных скважин выпускаются для обсадных колонн диаметров от 0,11 до 0,25 м.

Выпускаются насосы для обсадных колонн большего диаметра, однако они используются преимущественно в водяных скважинах.

Для определенного размера обсадной колонны, как правило, более оптимальным выбором является оборудование с большим диаметром.

Оборудование с большим диаметром является более коротким, как электродвигатель, так и насосы являются более эффективными, а электродвигатели легче охлаждаются. Они создают тихое компактное устьевое оборудование.

1.3 Преимущества и недостатки ЭЦН


Вследствие минимальных требований к оборудованию на устье, ЭЦН могут пользоваться спросом для применений на площадках с ограниченными рабочими площадями, как например на морских установках, если затраты на подъем не являются ограничивающим фактором. Они также используются на промыслах, где нет доступного газа для систем газлифта. ЭЦН являются одним из наиболее высокообъемных методов механизированной эксплуатации. ЭЦН имеют преимущество над другими высокообъемными методами, так как они могут создавать более высокую депрессию на пласт и повысить его продуктивность в тех случаях, когда возможно решение проблем с помехой от газа и выноса песка. Диаметр обсадной колонны также не является важным для обеспечения возможности откачки таких больших объемов.

По мере роста объемов заводнения, традиционным становится откачка нескольких тысяч баррелей жидкости в сутки в процессе улучшения эффективности пластового вытеснения. Данная система легко может быть автоматизирована и может проводить откачку периодически или постоянно, но постоянная откачка является предпочтительной для увеличения срока службы. Для неглубоких скважин капитальные затраты являются относительно невысокими [2].

Существует несколько недостатков ЭЦН. Основной проблемой является ограниченный срок службы. Насос как таковой относится к высокоскоростному центробежному типу, который может быть поврежден абразивными материалами, твердой фазой или обломками. Формирование окалины или минерального осадка может помешать работе электрического центробежного насоса. Экономическая эффективность ЭЦН в большой мере зависит от стоимости электроэнергии. Это является особенно критичным в отдаленных регионах. Система не обладает широкой эксплуатационной гибкостью. Все основные компоненты находятся в призабойной зоне скважины, поэтому, когда возникает проблема или требуется замена какого-либо компонента, приходится извлекать всю систему целиком.

Если присутствует высокий процент газа, принимаются меры для его отделения и возврата назад в обсадную колонну до того как он попадет в насос. Засасывание больших объемов свободного газа может вызвать неустойчивую работу и привести к механическому износу и возможному перегреву. На морских установках, где по правилам требуется применение пакера, весь газ откачивается с жидкостью. В этих особых условиях применяются специальные насосы, в которых возможно создание первичного напора на приеме насоса [2].

1.4 Описание технологии ЭЦН


На нефтяных промыслах в настоящее время находятся в эксплуатации несколько десятков типоразмеров отечественных и импортных погружных центробежных электронасосов с двигателями погружного типа. С помощью этих насосов получают свыше 70% общего количества нефти, добытого механизированным способом. Разработан и находится в эксплуатации широкий ряд оборудования для автоматизации управления установками ЭЦН: СУ, тиристорные станции плавного пуска, выходные фильтры, СПТ и т.д.

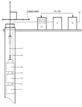
Рассмотрим технологию ЭЦН. Установка ЭЦН включает наземное и погружное оборудование. Состав погружной части определяется параметрами скважины, но в нашем случае основным подземным электрооборудованием является электроцентробежный насос и погружной электродвигатель. Если скважина высокодебитная, то для того, чтобы улучшить контроль над состоянием в скважину спускают ТМС. Наличие большого количества газа в нефти заставляет использовать газосепаратор, а отсутствие газа или малое его количество допускает установку модуля. Питание к двигателю подводится погружным кабелем типа КПБП, КРБП, КПБК и КРБК с сечением 10, 16, 25 или 35 мм2. В данном случае применяется КПБП 3-х жильный с сечением 16 мм2. К наземному оборудованию относят трансформатор питания погружных насосов (ТМПН 63/3), СУ ПЭД и выходной фильтр (L-C фильтр не установлен). Также к наземному оборудованию относятся кабели, играющие роль перемычек между СУ и трансформатором, и питающие кабели, соединяющие СУ с комплектной трансформаторной подстанцией наружной установки. Технологическая схема системы автоматизации ЭЦН представлена на рисунке 1.3.

- ТМС; 2 - компенсатор; 3 - ПЭД; 4 - гидрозащита; 5 - ЭЦН; 6 - кабель; 7 - НКТ; 8 - СУ ПЭД; 9 - наземный блок ТМС; 10 - СУ ЭЦН; 11 - трансформатор; 12 - СУ общекустовая

Рисунок 1.3 - Технологическая схема ЭЦН

Для обеспечения нормальной, долгосрочной работы погружного электродвигателя необходимо строгое соблюдение его номинальных параметров, указанных в паспорте. К этим параметрам относится величина тока, напряжения, температура и давление в скважине, подача насоса и другие. При значительном отклонении этих параметров создаются условия, при которых двигатель снижает срок службы или может быстро выйти из строя. Для контроля над основными параметрами двигателя, правильностью его подключения применяется схема управления ПЭД. В данном случае для защиты двигателя применяется СУ "Электон-5" с номинальным током 250 А. К СУ ПЭД подключается наземный блок ТМС. СУ ПЭД скважины подключается к СУ "ЭЦН-8", которая осуществляет управление до 8 станций скважин куста. СУ "ЭЦН-8" передает информацию по интерфейсу RS-485 в СУ общекустовую "ДСКМ.421415.001".

Рассмотрим основные функции СУ "Электон-5":

включение и отключение электродвигателя в "ручном" или в "автоматическом" режиме;

работа по программе с отдельно задаваемыми временными интервалами работы и остановки;

автоматическое включение электродвигателя с заданной задержкой времени после подачи напряжения питания или при восстановлении напряжения питания в соответствии с нормой;

регулируемая задержка отключения отдельно для каждой защиты (кроме защиты по низкому сопротивлению изоляции);

регулируемая задержка активации защит сразу после пуска для каждой защиты (кроме защиты по низкому сопротивлению изоляции);

регулируемая задержка АПВ отдельно после срабатывания каждой защиты (кроме защит по низкому сопротивлению изоляции и по турбинному вращению);

возможность выбора режима с АПВ или с блокировкой АПВ после срабатывания отдельно каждой защиты (кроме защит по низкому сопротивлению изоляции и по турбинному вращению);

возможность выбора активного и неактивного состояния защит отдельно для каждой защиты;

блокировка АПВ после отключения по защите от недогрузки при превышении заданного количества разрешенных повторных пусков за заданный интервал времени;

блокировка АПВ после отключения по защите от перегрузки при превышении заданного количества разрешенных повторных пусков за заданный интервал времени;

блокировка АПВ после отключения по другим защитам (кроме защит от недогрузки и перегрузки) при превышении заданного количества разрешенных повторных пусков за заданный интервал времени;

измерение текущего значения сопротивления изоляции системы "вторичная обмотка ТМПН-погружной кабель-ПЭД" в диапазоне от 30 кОм до 10 МОм;

измерение текущей потребляемой мощности;

измерение текущего коэффициента мощности;

вычисление текущего значения фактической загрузки двигателя;

измерение текущего значения частоты вращения электродвигателя;

определение порядка чередования фаз напряжения питающей сети (АВС или СВА);

отображение в хронологическом порядке 99 последних изменений в состоянии насосной установки с указанием причины и времени включения или отключения ПЭД;

запись в реальном масштабе времени в блок памяти информации о причинах включения и отключения электродвигателя с регистрацией текущих линейных значений питающего напряжения, токов фаз электродвигателя, загрузки, сопротивления изоляции, давления, температуры в момент отключения электродвигателя, через 2 секунды после включения и во время работы с двумя регулируемыми периодами записи;

сохранение заданных параметров работы и накопленной информации при отсутствии напряжения питания;

световая индикация о состоянии станции ("СТОП", "ОЖИД", "РАБОТА");

СУ устанавливается на площадке механической добычи напротив трансформатора питания погружного насоса соответствующей скважины.

2. Патентная проработка


.1 Выбор и обоснование предмета поиска

Целью данного дипломного проекта является описание и модернизация системы автоматизации ЭЦН. Рассматривается повышенный интерес к мероприятиям, позволяющим диагностировать отказы, повысить срок службы и прогнозировать дальнейшую динамику работы ЭЦН в процессе эксплуатации. Соответствовать этим требованиям может СУ ЭЦН, либо система погружной телеметрии. Поэтому, для оценки перспективности использования выбранного средства при проведении патентных исследований основное внимание было уделено средствам погружной телеметрии.

2.2 Регламент патентного поиска


Патентный поиск проводился с использованием фондов УГНТУ по источникам патентной документации Российской Федерации. По зарубежным фондам поиск не проводился по причине их отсутствия.

Глубина поиска пять лет (2007-2011). Поиск проводился по индексам международной патентной классификации (МПК) раздела E - "Строительство и горное дело", подкласса E21B47 - "Автоматическое управление или регулирование; измерения или испытания":

E21B47/00 - "Исследование или инспектирование буровых и других скважин";

E21B47/12 - "Средства передачи сигналов измерения или сигналов управления из скважины на поверхность или с поверхности в скважину".

При этом использовались следующие источники патентной информации:

полные описания к патентам Российской Федерации;

документы справочно-поискового аппарата;

официальный бюллетень Российского Агентства по патентам и товарным знакам "Изобретения" (1999 г.);

официальный бюллетень Российского Агентства по патентам и товарным знакам "Изобретения. Полезные модели" (2002-2003 гг.).

2.3 Результаты поиска


Результаты поиска приведены в таблице 2.1.

Таблица 2.1 - Результаты патентного поиска

Страна

Индекс МПК

Номера просмотренных патентов

Выявленные аналоги

Россия

E21B47/00 E21B47/12

Патенты №№ 2292455 - 2438015 Патенты №№ 2295640 - 2426878

№ 2425213 "Скважинный контрольно-измерительный комплекс"


E21B47/00 E21B47/12

Патенты №№ 2292455 - 2438015 Патенты №№ 2295640 - 2426878

№ 2382197 "Скважинная телеметрическая система"


E21B47/12

Патенты №№ 2295640 - 2426878

№ 2444622 "Система и способ телеметрии в стволе скважины"


2.4 Анализ результатов поиска


Рассмотрим более подробно аналоги, перечисленные в таблице 2.1.

Скважинный контрольно-измерительный комплекс по патенту №2425213, номер заявки 2010109236/06 от 15.03.2010, патентообладатель ЗАО "ГЕОФИЗМАШ" (RU), относится к нефтедобывающей промышленности, в частности к области геофизических исследований скважин, а именно к устройствам для осуществления измерения и контроля параметров скважины. Техническим результатом изобретения является расширение функциональных возможностей контрольно-измерительного комплекса, снижение количества ошибочных данных за счет автоматизации процесса конфигурации модулей в комплексе. Скважинный контрольно-измерительный комплекс содержит последовательно соединенные между собой модуль телеметрии и, по крайней мере, один связочный модуль. Каждый из модулей включает блок питания, соединенный с блоком обработки информации, блоком памяти и блоком согласования уровней сигнала. Блок обработки информации соединен с блоком памяти и блоком согласования уровней сигнала. При этом, по крайней мере, один из модулей содержит блок датчиков параметров скважины, соединенный с блоком обработки информации. Модуль телеметрии дополнительно содержит блоки выделения и формирования информационного сигнала, каждый из которых соединен с блоками питания и обработки информации. Блоки питания, выделения и формирования информационного сигнала соединены при помощи геофизического кабеля с наземной аппаратурой, включающей источник питания и информационного сигнала. Блоки согласования уровней сигнала модуля телеметрии и соединенного с ним связочного модуля соединены между собой посредством линии питания и/или связи.