Материал: Архитектурно-строительные чертежи гражданских зданий

Внимание! Если размещение файла нарушает Ваши авторские права, то обязательно сообщите нам

Рисунок 11. Изображение лестничного марша

8. Проставить размеры. Наружные размеры проставляются на плане в три цепочки (рис. 12):

размеры проемов и простенков;

размеры между соседними координационными осями;

размеры между крайними координационными осями.


Рисунок 12. Пример постановки наружных размеров

Если на противоположных стенах размещение координационных осей, проемов и простенков одинаковое, то цепочки наружных размеров ставят с одной стороны, если различное, то с каждой стороны. Привязка стен указывается для всех несущих стен - наружных и внутренних.

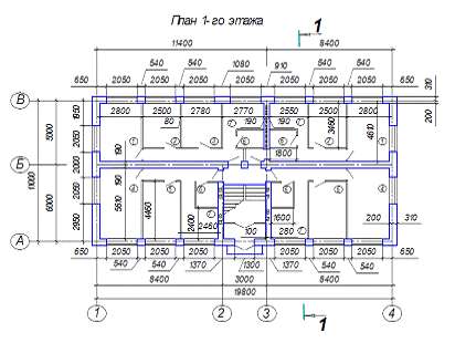
На рисунке 14 представлен пример оформления плана первого этажа здания.

Рисунок 14. Пример оформления плана первого этажа здания

.2 Разрез 1-1

Последовательность вычерчивания разреза.

. Проводят две горизонтальных прямых: с отметкой 0.000 (это уровень пола первого этажа) и с отметкой земли.

. На линии уровня пола первого этажа размечают положение координационных осей и через эти точки проводят вертикальные оси несущих стен.

. Проводят контуры несущих стен, используя привязку стен к координационным осям, взятую на плане первого этажа.

. Изображают другие элементы здания, расположенные как в секущей плоскости, так и за ней: перегородки, крышу, проемы, фундамент. Обязательно учитывают толщину обводки для разных элементов (см. пункт 4).

. Проводят выносные и размерные линии, вычерчивают знаки выносных отметок, наносят размеры. На рис. 15 показан пример оформления разреза здания.

Рисунок 15. Пример оформления разреза здания

5.3 Главный фасад

Главным фасадом здания называется вид здания со стороны улицы или площади. В отличие от главного, другие фасады называются дворовый и торцовый. Наименование фасада определяется крайними координационными осями. Степень детализации элементов фасада зависит от масштаба изображения. Рисунок оконных переплетов, тип дверей и ворот показывают только на фасадах, выполненных в масштабе 1:100 и крупнее.

На фасаде показывают координационные оси, расположенные по краям фасада, в местах уступов в плане и перепадов высот здания. На чертежах фасадов указывают отметки уровня земли, верха стен, входных площадок, низа и верха проемов, и других элементов фасада, расположенных в разных уровнях. Полочку отметки желательно развернуть в сторону от изображения. Пример оформления фасада представлен на рис. 16.

Рисунок 16. Пример оформления фасада здания

Заключение

В процессе изучения данной темы я освоил основные положения и оформления архитектурно-строительных чертежей, ознакомился с составом основного комплекта рабочих чертежей архитектурных решений. А также, приобрел навыки выполнения и чтения архитектурно-строительных чертежей.

Список используемых источников

1. Архитектурно - строительные чертежи гражданских зданий: метод. Указ. По курс.раб. - Электрон. дан./ сост. Климова Л.Г. - Иркутск: Изд-во ИрГТУ, 2013.

. Начертательная геометрия: учеб. для строительных спец. вузов / Н.Н. Крылов, Г.С. Иконникова, В.Л. Николаев, В.Е. Васильева; под ред. Н.Н. Крылова. - 7-е изд. перераб. и доп. - М. : Высш. шк., 2008 - 223с. : ил.

. Будасов Б.В. Строительное черчение : учеб. для строительных специальностей вузов / Б.В. Будасова. - 4-е издание, перераб. и доп. - М.: Стройиздат, 2007. - 464с.: ил.

. СТО ИрГТУ 005-2011 система менеджмента качества. Учебно-методическая деятельность. Оформление курсовых и дипломных проектов (работ) технических специальностей.