Материал: 2120

Внимание! Если размещение файла нарушает Ваши авторские права, то обязательно сообщите нам

p ж g h,

(1.3)

где g = 9,81 м/с2 – ускорение свободного падения.

Для воды плотность ж = 1000 кг/м3. Если высоту столба взять в мм (для этого нужно числитель умножить на 1000; для сохранения равенства (1.3) нужно и знаменатель умножить на 1000), то связь высоты столба воды в мм с создаваемым им давлением в Па опреде-

лится выражением

 

р = 9,81·h ,

(1.4)

где 9,81 – коэффициент перевода давления, выраженного в мм водяного столба, в паскали (1мм вод. столба = 9,81 Па).

Если в выражении (1.2) динамическое давление выразить через динамический напор hдин (разность уровней воды в U-образном манометре) в мм по формуле (1.4), то уравнение (1.3) для скорости примет вид

c

2 9,81hдин / 4,43

hдин / .

(1.5)

Впервые трубки, изогнутые под углом 90о, были применены в 1732 г. французским учёным Пито для измерения скорости потока воды в реке. Поэтому трубки, имеющие лишь одно отверстие в критической точке, т. е. трубки для измерения полного давления (напора), называют трубками Пито. Трубки, имеющие отверстия в критической точке и статические отверстия, иногда называют трубками ПитоПрандтля (см. рис. 1.1).

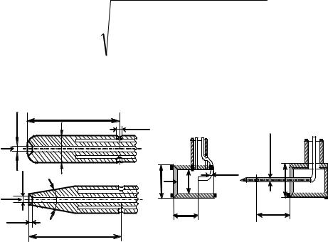
Конструктивные варианты комбинированных трубок (зондов) для измерения давления заторможенного потока р* и статического давления р представлены на рис. 1.2: а – продольно обтекаемые трубчатые (иглообразные) приёмники; б – зонд с протоком и дренажными щелями; в – зонд с игольчатым приёмником статического давления. Зонд с протоком менее чувствителен к скосу потока (несовпадению оси трубки с вектором скорости) и требуется меньшее отверстие в трубе для его установки. Зонд с игольчатым приёмником статического давления используется при исследовании сверхзвуковых потоков.

При течении газа с большой скоростью его плотность изменяется и для расчета скорости надо пользоваться формулой Сен-Венана

6

c

2k p

*

 

 

p

(k 1)/k

 

 

 

1

 

 

 

 

 

 

 

*

 

 

 

 

k 1

 

 

p

*

,

(1.6)

 

 

 

 

 

 

 

 

 

 

 

 

 

 

 

 

 

 

где k – показатель адиабаты (для воздуха k = 1,4).

d

 

5d

0,15

d

0,05d

 

с

 

 

0,1d

о

 

20

 

с

 

 

0,2d

4d

 

0,25d

d

0.8d

 

(1–2)d

аб

=0.2d

0

d d

(6–10)d0

в

Рис. 1.2. Виды комбинированных трубок (зондов) для измерения полного и статического давлений

При скоростях менее 70 м/с можно пользоваться формулой (1.2), погрешность при этом не превышает 1%.

Для измерения малых давлений используются микроманометры с наклонной трубкой (микроманометры Креля). Наклон измерительной трубки сделан для увеличения точности отсчёта. С этой же целью в прибор заливают спирт этиловый или ректификат с малой плотностью. В приборах с наклонной трубкой длина столбика спирта связана с пьезометрической высотой соотношением hc lsin , где α – угол наклона трубки к горизонту. Перевод пьезометрической высоты спирта hc в высоту водяного столба производится по формуле

h hc c / вод ( c / вод ) lsin K l . (1.7)

Значения коэффициента K ( c / вод )sin указываются на стойке кронштейна микроманометра, против соответствующих углов установки трубки.

Для измерения расхода воздуха необходимо определить среднюю скорость потока по формуле

7

ccp 1A cdA 1A ci Ai ,

где сi – средняя скорость в элементе сечения площадью Ai.

Для упрощения расчетов все сечение А разбивается на равновеликие площадки площадью Ai = A/n, где n – число площадок. Тогда

величина

 

ccp (c1 c2 ... cn )/n.

(1.8)

Если сечение прямоугольной формы, то задача решается просто путем деления площади на n равновеликих прямоугольников, в центре которых и измеряются скорости сi .

В случае трубы круглого сечения необходимо разбить площадь поперечного сечения трубы на равновеликие кольца и определить скорости в средней части равновеликих колец. Радиусы центральных окружностей, делящих равновеликие кольца пополам, определяют по формуле

r

r

2i 1

,

(1.9)

 

 

i

o

2n

 

 

 

 

где ro – радиус трубы, мм; i = 1, 2, ..; n – номер равновеликого кольца. В табл. 1.1 представлены радиусы ri десяти (п = 10) равновеликих колец, подсчитанные по формуле (1.9), для трубы с внутренним ра-

диусом ro = 40 мм.

 

Радиусы равновеликих колец для трубы с ro

 

Таблица 1.1

 

= 40

мм

 

 

 

 

 

 

 

 

 

 

 

 

 

 

i

1

2

3

4

5

6

7

 

8

 

9

10

ri, мм

8,94

15,5

20,0

23,7

26,8

29,7

32,3

 

34,6

 

37

39

Если измерить скорости сi на радиусах ri, то по формуле (1.8) можно найти сср. Однако точно установить измерительный зонд в центрах равновеликих колец в процессе эксперимента весьма затруднительно. Обычно скорости измеряются через равные интервалы по всему диаметру трубы и затем строится эпюра скоростей, из неё выбираются скорости сi, лежащие на радиусах ri равновеликих колец.

Различают объёмный и массовый расходы газа (жидкости), проходящего через поперечное сечение трубы. Объёмный расход жидкости определяют как отношение объёма жидкости, прошедшей

8

через трубу за некоторый промежуток времени, к этому промежутку времени (м3/с):

Vt dV/dt ccp A,

(1.10)

где сср средняя по сечению скорость потока, м/с;

А – площадь попе-

речного сечения трубы, м2.

 

Объёмный расход численно равен объёму вещества, протекающего через поперечное сечение трубы за единицу времени.

Массовый расход газа определяют как отношение массы газа, прошедшего через трубу за некоторый промежуток времени, к этому

промежутку времени (кг/с):

 

mt dm/dt ccp A,

(1.11)

где – плотность газа, кг/м3.

Массовый расход численно равен массе вещества, протекающего через поперечное сечение трубы за единицу времени.

Для получения сравнимых результатов измерений объемный расход газа приводят к нормальным (стандартным) условиям по формуле

Vн mt /ρн ,

(1.12)

где ρн = рн /(RTн) – плотность газа при нормальных (стандартных) ус-

ловиях: рн = 760 мм рт. ст. = 101325 Па; Тн = 293 К (20 °С).

Для воздуха удельная газовая постоянная R = 287 Дж/(кг.К) и

ρн = рн /(RTн) =101325/(287 293) =1,205 кг/м3.

1.3.Описание лабораторной установки

Влабораторной работе расход воздуха определяется в трубе круглого поперечного сечения. Схема установки приведена на рис. 1.3. Установка с трубой круглого сечения диаметром 8 см состо-

ит из вентилятора 1, который подаёт воздух в трубу 2 объемом примерно 55 м3/ч при открытой заслонке 3.

Динамический напор в различных точках диаметра трубы измеряется с помощью спиртового микроманометра Креля 4, соединённого плюсовым патрубком с трубкой Пито 5 и минусовым – с трубкой статического давления 6. Статический напор измеряется водяным U-образным манометром 7. Атмосферное (барометрическое) давление измеряется барометром 8, а температура воздуха в трубе – термомет-

9

ром 9. Изменение положения заслонки 3 вызывает изменение скорости воздуха в трубе и, следовательно, перепада давления на диафрагме 11, который фиксируется прибором КСД-3 10.

8

pa

 

10

 

2

5 12

9

 

 

 

 

p*

 

p

 

 

ст

pa

6

3

 

h

 

11

 

1

 

 

h

.l , мм

 

 

 

дин

сп

 

 

7

 

 

+

0

lсп

4

К=0,2

 

Рис. 1. 3. Схема установки для измерения скорости и расхода воздуха с помощью пневмометрических трубок:

1 – вентилятор; 2 – труба; 3 – заслонка; 4 – микроманометр Креля; 5 – трубка Пито; 6 – трубка статического давления; 7 – U-образный манометр; 8 – барометр; 9 – термометр; 10 – КСД-3; 11 – диафрагма; 12 – указатель направления

1.4. Порядок выполнения работы

Работа выполняется в следующей последовательности:

1. Ознакомиться с приборами и устройством лабораторной установки. Установить микроманометр Креля с помощью регулировочных винтов в горизонтальной плоскости. Наклонную трубку микроманометра опустить в крайнее нижнее положение до отметки

(К = 0,2).

2.Включить вентилятор и, вращая заслонку 3, установить стрелку прибора КСД-3 на первом делении (всего шесть делений). Полностью опустить трубку Пито 5 в трубу 2 до упора (следить за точностью установки зонда вдоль оси трубы по указателю направления 12).

3.Произвести следующие измерения при данном положении заслонки (стрелка КСД-3 установлена на первом делении):

а) динамического напора – по длине столбика спирта lcп в трубке

10