Материал: 1849

Внимание! Если размещение файла нарушает Ваши авторские права, то обязательно сообщите нам

База нормативной документации: www.complexdoc.ru

2.1.14.Проверка внешней и внутренней герметичности агрегатов и узлов ГБО и топливной аппаратуры на всех этапах испытаний осуществляют методом омыливания или с помощью специальных приборов - течеискателей.

2.1.15.Оформление результатов испытаний и приемосдаточной документации осуществляют в соответствии с требованиями, изложенными в разд. 4 настоящего документа и нормативнотехнической документации, указанной в разд. 11.

2.1.16.Функциональная схема выполнения работ по переводу АТС для работы на КПГ и испытаний газотопливных систем приведена на рис. 2.1.

2.2.Организация предприятия (пункта) по переводу АТС для работы на КПГ и испытаний газотопливных систем

2.2.1.Назначение и размещение производства.

Рис. 2.1. Функциональная схема выполнения работ по переводу АТС для работы на КПГ и испытаниям ГТС

16

База нормативной документации: www.complexdoc.ru

Предприятие (пункт) по переводу АТС для работы на КПГ должно состоять из следующих основных участков:

-участок по установке ГБО на АТС;

-участок по испытаниям газотопливных систем ГБТС;

-участок комплектации, подготовки, ремонта, проверки ГБО. Предприятие (для расширения - сферы оказания услуг) может

-организовать участок по ТО газобаллонного оборудования, на котором проводятся следующие виды работ:

-проверка состояния и крепления газовых баллонов:

-проверка герметичности и крепления вентильных устройств (запорно-расходной и наполнительной аппаратуры), проведение смазочных работ;

-проверка состояния и крепления газопроводов;

-проверка состояния и крепления теплообменных устройств и подводящих трубопроводов;

-обслуживание фильтрующего элемента магистрального фильтра;

-проверка состояния и технических характеристик газового редуктора высокого давления (РВД), включая газовый фильтр;

-регулировочные работы (на воздухе);

-проверка работоспособности дозирующих устройств;

-слив отстоя из редуктора низкого давления (РНД);

-проверка состояния, крепления и работоспособности смесительных клапанов;

-проверка состояния и работоспособности агрегатов и узлов систем питания АТС нефтяным - топливом и их функционирование при переводе двигателя на КПГ;

-проверка состояния и работоспособности системы электрооборудования АТС, связанной с применением КПГ;

17

База нормативной документации: www.complexdoc.ru

- оформление документации, связанной с ТО газотопливных систем питания ГБТС.

2.2.2. Требования к планировочному решению производственного корпуса предприятия по переводу АТС для работы на КПГ.

Предприятия (в дальнейшем - пункты) по переводу АТС на КПГ могут создаваться как в помещениях новой постройки, так и на существующих производственных площадях действующего предприятия.

Основные производственные участки должны располагаться в производственном корпусе и должны быть оснащены необходимым технологическим оборудованием.

Мойка АТС и склад газовых баллонов могут быть организованы отдельно от производственного корпуса или примыкать к нему.

Высот помещения производственного корпуса - 7 м до выступающих строительных конструкций.

Рекомендуемое соотношение сторон участков: 6×3,6×9,6×12 м и т.д.

При выборе помещения для участка следует обратить внимание на необходимость обеспечения кран-балкой максимально отведенной для этой цели площади для осуществления перемещения баллонов, съем и установку кузовов грузовых АТС в процессе выполнения работ.

Наиболее предпочтительным является такое размещение участка в производственном корпусе, при котором, с одной стороны, было бы достигнуто максимальное естественное освещение (наличие оконных проемов), а с другой стороны - к участку примыкала бы проезжая часть для транспортировки баллонов и въезда (выезда) АТС.

При недостаточной естественной освещенности освещение производственной площади может быть компенсировано при помощи верхнего освещения через зенитные фонари.

При организации выхода из производственного помещения через внутренний коридор последний не должен иметь порогов и

18

База нормативной документации: www.complexdoc.ru

других препятствий, а ширина его должна обеспечивать свободную транспортировку баллонов.

Размещение основного технологического оборудования на площади участков должно быть предусмотрено в технологической последовательности выполнения различных видов работ.

Размещение оборудования и ширина проемов должны учитывать свободное перемещение крупногабаритных комплектующих (кузов, баллоны в сборе и т.д.) с помощью кран-балки и тележек на основном производственном участке, складе или площадке для временного хранения.

Изготовление и поставка основного технологического оборудования предусматриваются из существующего и серийного выпускаемого предприятиями ОАО «ГАРО» и другими организациями.

Остальное оборудование - инвентарь, стеллажи, верстаки, тележки и захваты - должно быть приобретено или изготовлено своими силами.

Установка ГБО должна производиться по монтажным чертежам заводов-изготовителей ГБО.

Доставка оборудования в помещение к месту монтажа должна производиться через наружный дверной проем шириной не менее 1,5 м или наружные ворота, имеющие габаритные размеры 4,5×4,2 м.

Участки должны включать в себя производственные площади для:

-установки ГБО на АТС;

-испытания ГТС и ТО газобаллонного оборудования ГБТС;

-комплектации, проверки и текущего ремонта газобаллонного оборудования;

-компрессорного оборудования с системой аккумулирования сжатого воздуха.

Административные помещения (для начальника производства, бухгалтерии, конторы и т.д.), а также бытовые помещения для

19

База нормативной документации: www.complexdoc.ru

рабочих в целях экономии основных производственных площадей рекомендуется расположить над производственными участками, организовав второй этаж (при общей высоте корпуса 7 м).

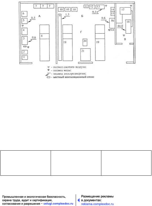
Примерная технологическая планировка пункта со специализированными производственными участками представлена на рис. 2.2.

Рис. 2.2. Примерное технологическое планировочное решение пункта по переводу АТС для работы на КПГ и испытаний ГТС

Экспликация участков и производственных помещений, входящих в состав пункта, и используемое технологическое оборудование приведены соответственно в табл. 2.1 и 2.2.

Таблица 2.1

Экспликация участков и помещений пункта по переводу АТС в газобаллонные и их техническому обслуживанию

Примерная № по планировке Наименование производственная

площадь, м2

20