Материал: 1649

Внимание! Если размещение файла нарушает Ваши авторские права, то обязательно сообщите нам

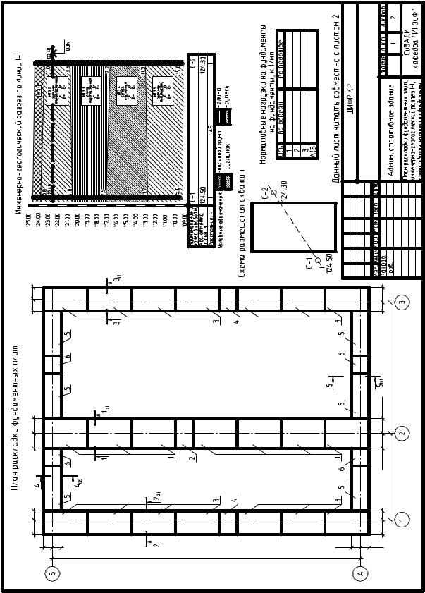
Приложение 2

Макет оформления графической части курсовой работы

Продолжение прил. 2

Продолжение прил. 2

Окончание прил. 2

Приложение 3

Справочные данные

Рис. П.3.1. Основные размеры фундаментных плит

Таблица П.3.1

Основные характеристики фундаментных плит (по ГОСТ 13580-85*)

Марка

Группы по несу-

Основные размеры плиты,

Справочная масса

плиты

щей способности

 

мм (рис. п. 3.1)

 

плиты, кН

b

l

h

 

a

1

2

3

4

5

 

6

7

ФЛ10.30

 

 

2980

 

 

 

17,5

ФЛ10.24

1, 2, 3, 4

1000

2380

 

 

250

13,8

ФЛ10.12

1180

 

 

6,5

 

 

 

 

 

ФЛ10.8

 

 

780

 

 

 

4,2

ФЛ12.30

 

 

2980

 

 

 

20,5

ФЛ12.24

1, 2, 3, 4

1200

2380

 

 

350

16,3

ФЛ12.12

1180

 

 

7,8

 

 

 

 

 

ФЛ12.8

 

 

780

300

 

 

5,0

ФЛ14.30

 

 

2980

 

 

24,0

 

 

 

 

 

ФЛ14.24

1, 2, 3, 4

1400

2380

 

 

400

19,0

ФЛ14.12

1180

 

 

9,1

 

 

 

 

 

ФЛ14.8

 

 

780

 

 

 

5,8

ФЛ16.30

 

 

2980

 

 

 

27,1

ФЛ16.24

1, 2, 3, 4

1600

2380

 

 

500

21,5

ФЛ16.12

1180

 

 

10,3

 

 

 

 

 

ФЛ16.8

 

 

780

 

 

 

6,5