Исходные данные для расчёта:
1. Шаг пролёта L - 12м
. Шаг колонн В - 6м
. Отметка головки кранового рельса dкр = 9,0м
. Высота фермы на опоре hоп = 2,25м
. Уклон верхнего пояса фермы α = 3
. Зазор между тележкой крана и фермы а = 0,3
. Заглубление колонны в грунт hф = 0,6
. Тип решётки фермы:
. Снеговой район 2 - S0 = 0,9
. Нормативная снеговая нагрузка S0 (кH/м2)-1,5
. Ветровой район 1а
. Нормативный скоростной набор W0 = 0,17кH/м2
13. Тип кровли: железобетон
. Мостовой кран:
- грузоподьемность Q = 125/20
- пролет крана L = 10 м
- давление колеса Р1 = 396 и Р2 = 426
- количество колес с одной стороны n = 4
- вес тележки σт = 43
- вес крана σкр т = 90
- высота крана Нк = 4,0м
- вылет консоли крана В1 = 0,4
- С1 = L
- Lк
= 2,0
- высота рельса hp
= 170мм
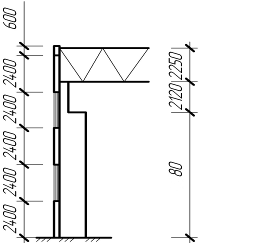
1. Компоновка конструктивной схемы каркаса
Установление основных размеров
Нам заданы:
Нулевая отметка на уровне пола здания d0 = 0,00 м
Отметка головки кранового рельса dкр = 9,0м
Принимаем отметку dф = - 0,6 м
Зазор между тележкой крана и фермы а = 0,3
а = ∆в + ∆доп.
= 0,1 + (0,2…..0,4) = 0,1 + 0,2 = 0,3 - условие выполняется
∆в = 0,1 м - обязательный зазор
∆доп. = 0,2….0,4 м - дополнительный зазор на погиб фермы и подвеску связей
Дана высота крана Нк = 4,0м
h2
= Hк
+ а = 4,2 +0,4 = 4,6 - кратное 0,2 , где
Нк = 4,2 кратное 0,6
Находим отметку низа ригеля
dр = dкр + h2 = 9,0 + 4,6 = 13,6м - принимаем кратно 0,6 dр = 13,8м
h2 = dр - dкр = 10,8 - 9,6 = 1,2м
каркас нагрузка балка ферма
Определяем высоту подкрановой балки
hн.б
= 1/8 В = 1/8 × 6 = 0,75м
Рассчитываем высоту балки
hб
= hр
+ hн.б
= 0,17 + 0,75 = 0,92м
где hp
= 170мм - высота рельса (исходные данные)
Определяем высоту нижней части колонны
hн
= dкр
- dф
- hб
= 9,6 +0,6 - 0,92 = 7,48м
Фонаря нет.
Увязка размеров рамы по ширине в0 = 500мм, т.к. Q > 80т
λ = 1250мм = 1,25м - расчет от оси подкрановой балки до оси привязки здания
Определяем ширину верхней части колонны:
вв ≥ 1/12 × hв
= 1/12 × 5,72 = 0,5м
Принимаем кратно 0,25 - вв = 0,25м
Ширина нижней части колонны:
Зазор между краном и колонной
С = λ - (вв - вв) - В1 = 1,25 - (0,25 - 0,5) - 0,4 = 1,1м
С = 1,1 ≥ 0,075м - условие
выполняется
2.Нагрузки и воздействия на каркас
Постоянные нагрузки
|
№ |
Наименование |
Расчёт |
qн |
γf |
qp |
|
1 |
Сборные ж/б плиты покрытия |
1,6 |
1,6 |
1,1 |
1,76 |
|
2 |
Утеплитель минераловатные плиты ρ=2; δ=0,08м |
2×0,08= 0,16 |
0,16 |
1,3 |
0,21 |
|
3 |
Гидроизоляция 3 слоя рубероида |
|
0,16 |
1,3 |
0,21 |
|
4 |
Собственный вес плиты МК |
0,7 |
0,7 |
1,05 |
0,74 |
|
|
ИТОГО |
|
2,62 |
|
2,92 |
qн
= 2,62 кН/м2 qр
= 2,92 кН/м2
Расчётная постоянная нагрузка на 1м длины
покрытия
кН/м2
γn = 0,95 -
коэффициент надежности по назначению здания
qp = 2,92кН/м2
В = 6м
Cos α = cos 3 = 1
Реакция опора колонны
кН
Вес верхней части колонны
Gв = 0,95 × 1,05 × 0,2 × К × В × Н = 0,95 × 1,05 × 0,2 × 0,7 × 13,2 × 6 = 8,54 кН
К = 0,7 кН/м2
Н = hв+ hн = 5,72 +
7,48 = 13,2 м
Вес нижней части колонны
Gв = 0,95 ×
1,05 × 0,8× К
×
В
× Н = 0,95 × 1,05
× 0,8× 0,7 × 13,2 × 6 = 44,24 кН
Поверхностная масса стен: 1200 кг/м2
Поверхностная масса остекления: 35 кг/м2
Высота остекления - 2,4 м
Усилие от верхней части колонны (кН)
Усилие от нижней части колонны
Момент от постоянной нагрузки
кНм
Рассчитываем снеговые нагрузки:
кН/м
Реакция опоры колонны:
кН
Момент от снеговой нагрузки
кНм
Нагрузки от мостовых кранов:
Вес подкрановой балки
кН
Где:
кН/м - вес 1м балки ;
Максимальное давление крана на
колонну:
кН
где:
- коэффициент условия работы
- коэффициент надежности
кН - максимальное давление на колесо
крана
- сумма ординат под колёсами крана.
Минимальное нормативное давление
кН
Вес крана с тележкой:
кН
Минимальное давление крана на
колонну:
кН
Эксцентриситет давления крана на
колонну:
Сосредоточенный момент, возникающий
в подкрановой части колонны:
кН∙м
кН∙м
Нормативное давление на 1 колесо
крана:
кН
- при гибком подвесе груза
- вес тележки
- количество колес с 1-й стороны
Горизонтальное давление на колонну,
передаваемое на уровне тормозных конструкций:
кН
.Ветровые нагрузки
Ветровой поток вызывает давление с
наветренной стороны и отсос с подветренной высоты здания. При расчёте с
наветренной стороны нагрузки принимаются с аэродинамическим коэффициентом
, а с
подветренной стороны
.
где:
- коэффициент, учитывающий изменение
напора ветра в зависимости от высоты и типа местности.
Для местности типа Б:
;
;
.
С наветренной стороны:
кН/м
кН/м
кН/м
кН/м
кН/м
С подветренной стороны:
кН/м
кН/м
кН/м
кН/м
кН/м
Эквивалентная равномерно
распределенная нагрузка
кН/м
кН/м
Расчетная величина сосредоточенной
силы на уровне нижнего пояса фермы.
кН
кН
кН
. Статический расчет поперечной
рамы

Экономическое уравнение:
Жесткость верхней части колонны ![]()
Моменты от поворота узлов на угол φ = 1
Моменты от нагрузки на стойку
Коэффициенты экономического уравнения:
Моменты от фактического угла
поворота:
Моменты окончательной эпюры:
Т.к.
, то
в ригеле равна нулю.
Расчёт на снеговую нагрузку
Экономическое уравнение:
Моменты от поворота узлов на φ = 1
Моменты от нагрузки на стойку
Коэффициенты экономического
уравнения:
Моменты от фактического угла
поворота:
Моменты окончательной эпюры:

Расчёт на вертикальную нагрузку от
мостовых кранов
Экономическое уравнение:
Момент на левой стойке, когда
тележка с грузом находится максимально близко к стойке.
Реакция верхних концов стоек:
Смещение плоской рамы:
Определяем коэффициент
пространственной работы
- кол-во колёс с одной стороны крана
Определяем смещение рамы под
нагрузкой от мостовых кранов
Строим окончательную эпюру:
Расчёт на горизонтальное воздействие
мостовых кранов.
Каноническое уравнение: