МИНОБРНАУКИ РОССИИ
ФЕДЕРАЛЬНОЕ ГОСУДАРСТВЕННОЕ БЮДЖЕТНОЕ ОБРАЗОВАТЕЛЬНОЕ УЧРЕЖДЕНИЕ
ВЫСШЕГО ПРОФЕССИОНАЛЬНОГО ОБРАЗОВАНИЯ
«НИЖЕГОРОДСКИЙ ГОСУДАРСТВЕННЫЙ ТЕХНИЧЕСКИЙ УНИВЕРСИТЕТ им. Р.Е. АЛЕКСЕЕВА»
(НГТУ)
Кафедра Технология оборудования
машиностроения
Курсовой проект
по дисциплине «Технологическая оснастка»
Проектирование технологической оснастки
Пояснительная
записка
Руководитель
Кочин А.Н
Студент
Угланов К.Д.
2017
г.
Содержание
станочный деталь заготовка сборка
Аннотация
Введение
. Исходные данные и техническое задание
. Анализ исходных данных и техническое предложение
.1 Анализ чертежа детали
.2 Анализ технологического процесса
. Эскизный проект
.1 Анализ схемы базирования
. Расчет сил, действующих на заготовку при обработке
. Выбор механизма закрепления
. Силовой расчет механизмов закрепления
. Выбор и расчет силового устройства
. Назначение посадок на соединения
. Сборка приспособления
Список
литературы
Аннотация
Курсовой проект по технологической оснастке
Студента Угланова Кирилла Дмитриевича группы 13-ТМ
Пз.,3 листа формата А1; НГТУ, 2017г.
Данный документ представляет собой отчет о последовательности работ, проведенных при выполнении курсовой работы. В ходе работы над курсовым проектом было разработано станочное приспособление, используемое для установки детали на фрезерном станке с ЧПУ. Была обоснована схема базирования, проведен силовой, кинематический расчет и анализ, разработаны силовой привод, установочные, вспомогательные элементы. Проведен проверочный расчет обеспечения приспособлением требуемой точности.
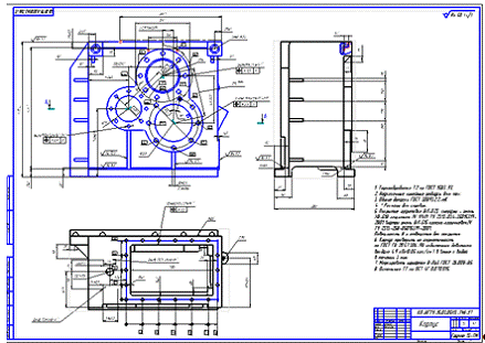
На листах формата А1 представлен чертеж детали
“Корпус редуктора СБ”, чертеж приспособления на «расточной обрабатывающий центр
с ЧПУ», схема сборки приспособления.
Введение
К технологической оснастке относятся средства технологического оснащения (приспособления, механизмы и устройства), дополнительно устанавливаемые на технологическом оборудовании с целью выполнения определенной части технологического процесса. Установлено, что затраты на изготовление технологической оснастки могут составлять 15-20% от стоимости изделия.
Основную, наиболее распространенную группу технологической оснастки, применяемой для оснащения технологических процессов, составляют станочные приспособления, применяемые в технологических процессах механической обработки деталей.
Приспособление - технологическая оснастка, предназначенная для установки или направления предмета труда или инструмента при выполнении технологической операции. (ГОСТ 3.1109-82). Понятие приспособление значительно уже понятия «технологическая оснастка» и относится только к установке предмета труда - заготовок или изделий и установки и направлению режущего инструмента.
Станочное приспособление (СП) - вспомогательное орудие производства для установки заготовок с целью обработки на металлорежущем станке. По группам оснащаемых станков СП бывают токарные, фрезерные, строгальные, долбежные, шлифовальные и т.д.
Станочные приспособления составляют 80-90% общего парка приспособлений.
Использование приспособлений способствует
повышению производительности и точности обработки, сборки и контроля;
облегчению условий труда, сокращению количества и снижению необходимой
квалификации рабочих; повышению безопасности работы и снижению аварийности.
1. Исходные данные и
техническое задание
Исходными данными для курсового проекта служат: чертеж детали - “Корпус редуктора СБ” (см. рис. 1), маршрут технологического процесса механической обработки этой детали, для обработки которой применяются различные технологические методы такие как, растачивание, фрезерование, сверление и т.д. Тип производства - единичный, малый объём выпуска продукции. Техническим заданием является разработка приспособления для механической обработки детали (фрезерованием) и закреплением детали на фрезерном станке.
Необходимость проектирования нового
приспособления объясняется требованием повышения производительности. Поэтому
вновь разрабатываемое приспособление должно быть механизированным или
автоматизированным, быстродействующим и переналаживаемым, для обеспечения
возможности обработки всей группы деталей с минимальными затратами.
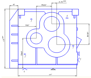
Рис.1. Деталь- “Корпус СБ”.
2. Анализ исходных данных и
техническое предложение
В первую очередь, выполняем тщательный анализ
исходных данных, на основании которого выберем основное направление работы над
конструкцией приспособления.
2.1
Анализ чертежа детали
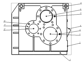
Данная деталь - Корпус редуктора имеет следующие габаритные размеры:475 х 516 х 280. Деталь сделана из алюминиевого сплава АК7ч со стальными втулками (40ХС) предназначена для использования в машиностроении. В корпусе на отверстия повышенной точности производится установка подшипников, сам редуктор устанавливается на платформу радиолокационной станции.
У детали можно выделить основные типы
поверхностей: плоские поверхности, торцевые поверхности, наружные и внутренние
цилиндрические поверхности, внутренние резьбовые поверхности, а также канавки,
фаски, облегчения. На рисунке 2 пронумерованы поверхности данной детали.


Рис. 2 Эскиз детали с нумерацией всех
обрабатываемых элементарных поверхностей.
Таблица 1. Виды и количество элементарных поверхностей.
Вид элементарной поверхности
Простая элементарная пов.
Сложная пов.
ВЦП
ПП
ВРП
Количество
4
10
8 Таблица 2. Химический состав ВТ22 ГОСТ 19807-91,
%.
Сu
Fe
Si
Mn
Ni
Mg
Zn
Al
Примесей
До 1.5
До 1.3
6-8
0.2-0.6
До 0.3
0.2-0.5
До
0,5
87.3-93.6
Всего 3,3
Механические свойства ВТ22 ГОСТ 19807-91.
Сплав алюминия АК7 относится к силуминам системы
Al-Si-Mg, отличается хорошими технологическими свойствами - жидкотекучестью,
антикоррозийностью и свариваемостью. При этом он довольно плохо поддается
механической обработке, поскольку в его структуре образуются хрупкие игольчатые
кристаллы кремния и его соединений. Для того, чтобы увеличить прочность сплава
АК7, его в расплавленном состоянии модифицируют галогенидами: фторидом и
хлоридом натрия. Образующиеся силициды натрия обволакивают кристаллы кремния,
затрудняют их рост и повышают предел механической прочности
алюминиево-кремниевого сплава в 2 раза.
Отливки АК7 упрочняют с помощью термической
закалки и искусственного старения. Для исключения пережога используют двух- или
трехступенчатый нагрев до 500-55 градусов, выдерживая детали в горячей воде по
2-3 часа. После высокотемпературной обработки пластичность и прочность сплава
АК7 повышается, что особенно важно при производстве сложных и тонкостенных
литых заготовок.
· Неуказанные радиусы кромок · Неуказанные радиусы галтелей · Предельные отклонения на
вертикальные размеры(двусторонний износ) · Смещение не более 2,2мм
· Коробление не более 1,6 мм,плюс
половина фактической плюсовой недоштамповки
· Остаток облоя не более 2,0мм.
· Формовочные уклоны по ГОСТ 3212-92
· Неуказанные предельные отклонения на
размеры и радиусы по ОСТ 1-92082,2 класс точности
· Клеймить: клеймо ОТК
· Номинальный припуск на механическую
обработку 5мм.
Допускаются местные отклонения при условии
получения чистовой детали с припуском не менее 5 мм на сторону.
2.2 Анализ технологического процесса
Анализ технологического процесса будем выполнять
разбив его на три основные части. Анализ каждой части технологического процесса
имеет определенную задачу и необходим для более успешного решения поставленной
задачи.
Наименование детали: “Корпус редуктора СБ”
Материал детали: АК7ч.
Первая часть технологического процесса
охватывает обработку детали до операции, для которой задано разработать
приспособление.
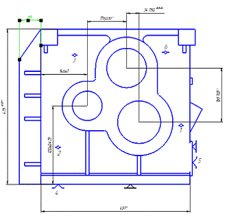
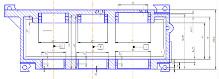
Рис. 3. Заготовка до рассматриваемой операции
(Растачивание).
Вторая часть анализа (операции
для которой разрабатывается приспособление)
Деталь полученная после фрезерной операции
(рисунок 4). Используется приспособление для нескольких последующих расточных,
сверлильных операций. На расточных операциях производится обработка 3-х
внутренне-цилиндрических поверхностей и сверлятся отверстия. Растачиваются ВЦП
предварительно и окончательно, сверлятся отверстия для последующего нарезания в
них резьбы.
Материал режущей части инструмента: Расточная
головка - ВК8; сверло спиральное по металлу - GC34.
Точность обработки согласно чертежу: Рис.4. Обработка на рассматриваемой операции.
Определим параметры металлорежущего
оборудования:
Горизонтальный фрезерно-расточной обрабатывающий
центр FEMCO BMC-110FT2 с ЧПУ FANUC 18iМB
Рис.5. Горизонтальный фрезерно расточной
обрабатывающий центр центр FEMCO BMC-110FT2.
Используется для механической обработки углов,
внутренней/внешней обработки конуса, проточки канавок внутреннего/внешнего
диаметра и обработки наружной поверхности корпуса клапана, корпуса насоса,
арматуры и корпуса турбины.Подвижная колонна станка. Благодаря передвижной
колонне станка, рабочий стол осуществляет перемещение только по оси «Х», что
повышает жесткость и возможность большой нагрузки на стол. Оптические линейки
для осей Х, Y, Z, обеспечивающие повышенную точность.
Возможность управления 6 осями (X, Y, Z, W, B,
U) и одновременное управление 4 осями./ Y / Z:
(3000/4000) / 2100 / 1500 мм
Универсальный поворотный стол с ЧПУ (ось В)
Перемещение шпинделя (перемещение оси W): 500мм
Размер стола: 1440 х 1600мм
Макс. нагрузка на стол: 8000кг.
Скорость оси «U» 250 об/мин
Макс. диаметр внешней обработки 1050 мм.
Так как режимы резания не указаны в описании ТП,
выберем режимы фрезерования по каталогу Sandvik
Coromant обработка стали
40ХС:
. Глубина фрезерования: t
= 2
мм;
. Подача на один зуб: sz
=
0,25 мм/зуб;
. Скорость резания:
150
м/мин.
Условия работы режущего инструмента:
Материал режущей части инструмента: ВК8;
Траектория движения инструмента выполняется по
управляющей программе;
Направление вращения режущего инструмента: по
часовой стрелке.
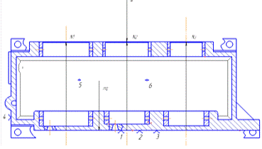
Рис.5. Схема базирования На последующих операциях формируются остальные
поверхности до точности, соответствующей заданной по чертежу.
Окончательная обработка оставшихся отверстий,
обработка отверстия под резьбу, ведется обработка точных поверхностей,
доводочные операции.
3. Эскизный проект приспособления
.1 Анализ схемы базирования
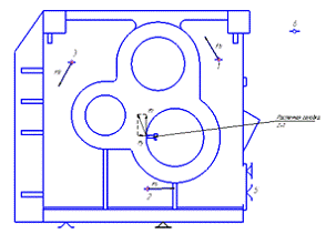
Рис.6. Схема базирования заготовки.
Комплект технологических баз для схемы
базирования:
Установочная база (точки 1,2,3 - нижняя
поверхность корпуса, опора)
Направляющая база (точки 4,5 - упор)
Опорная база (точка 6 - упор)
. На размеры 280 ; 475 ; 250 ; 21; 28
погрешность базирования εб
= 0, т.к. измерительная база совпадает с технологической;
. На линейный размер 120±0,5 погрешность
базирования
εб
=
3. Полученное значение погрешности
базирования должно быть меньше общего допуска расположения εб
= 91 мкм < ∆ = 300 мкм по ГОСТ 30893.2 - условие выполняется.
. На линейные размеры 140 Погрешность базирования εб
=Bmax-Bmin=140+0.63-140=0,63мм
5. Полученное значение погрешности
базирования должно быть меньше общего допуска расположения εб
= 0,63мкм < ∆ = 1,5 мкм по ГОСТ 30893.2 - условие выполняется.
4. Расчет сил, действующих на
заготовку при обработке
Рис.7. Схема расчета силы закрепления Q
Определим главную составляющие силы резания Р
- Рz
и Py
где Pz - сила
резания при фрезеровании;
Ср, х, у, u, q, w -
коэффициенты для условий фрезерования;
D - диаметр
расточной головки;
Sz - подача на
зуб;
Kmp -
поправочный коэффициент, учитывающий качество обрабатываемого материала;
- частота вращения фрезы;
Py
= 0,4Pz
= 0,4 Определим мощность резания:
Определим силу закрепления Q
(см. рис. 9):
∑Fy
= 0: 3N - Q
- mg
=
0;
Q
= 3N
- mg
Примем N1
= N2
= N3
= N
Fтр1
= Fтр2
= Fтр3
= Fтр
= f
∙N
→
N
=
Fтр /f
,
где f
= 0,15 - коэффициент трения
∑M4,5
= 0: Pz
∙rz
- Py
∙ry
- 3Fтрrтр
= 0
Qз
= Q∙K
= 45957
∙ 2 = 61224 Н,
где K
- коэффициент
запаса.
Определим погрешность закрепления:
где HB
- твердость материала;
Q
- сила, действующая по нормали к опоре, кгс;
Rz
- шероховатость поверхности заготовки, мкм;
F
- площадь контакта опоры с заготовкой, см2;
C1
= 0,0776+0,053F
= 0,0776 + 0,053 ∙ 22 = 1,24;
KRz
и KHB
- коэффициенты из таблицы [1, с. 46].
Вывод: полученная погрешность закрепления εз
= 20,6 мкм меньше общего допуска ∆ = 300 мкм по ГОСТ 30893.2, то есть
условие выполняется.
5. Выбор механизма закрепления
Механизм закрепления представлен на рисунке 10.
Рис. 8. Схема механизма закрепления
6. Силовой расчет механизмов
закрепления
Рис. 9. Схема расчета механизма закрепления
∑MO1
= 0: RN1∙cos(10+48)
∙ 74 - Q∙17
= 0
RN1
= Q∙17/(cos(58º)∙74)
= 91914∙27/ (cos(68º)∙320)
= 26541 Н Рис. 10. Схема расчета клинового механизма
По теореме синусов: N0
= RN1 ∙ sin(90º)/sin(58º)
= 26541 ∙ sin(90º)/sin(58º)
= 16118 Н
RN3
= RN1 ∙ sin(31º)/sin(58º)
= 26541 ∙ sin(31º)/sin(58º)
= 31296 Н
7. Выбор и расчет силового
устройства
В качестве силового устройства применяется пневмоцилиндр.
В зависимости от силы, действующей на связное с пневмоцилиндром звено N
определяется диаметр пневмоцилиндра.
где: N- сила на
штоке;
p - рабочее
давление в пневмосистеме (p=0,6 МПа);
η - КПД, учитывающий потери в
цилиндре ( N= ΣРприж/tg20˚=91914/0,36=258кН
Рис. 11. Силы действующие на рейку.
По расчетному значению диаметра
поршня принимаем стандартное значение диаметра поршня и штока (по справочной
литературе и рядам предпочтительности).
Принимаем:
диаметр поршня D = 80 мм;
диаметр штока d = 16 мм.
8. Назначение посадок на соединения
Для соединения гильзы 2 и поршня 3
назначаем посадку Н7/f7.Она позволяет обеспечить умеренный
гарантированный зазор, достаточный для свободного перемещения деталей.
Для соединения корпуса
приспособления 1 и втулки 24 назначаем посадку Н7/h6, она
используется в неподвижных соединениях, для точного направления при
возвратно-поступательном движении.
Для соединения втулки 5 и рейки 6
назначаем посадку Н7/g6. Она применяется в точных
механизмах.
Для соединения корпуса 1 и
центрирующей втулкой 19 используем посадку Н7/r6 для
дополнительного фиксирования и упора втулки в корпусе.
Посадка Н7/n6
используется в том случае, когда необходима посадка с натягом, разборка
соединения производится редко.
9. Сборка
приспособления
1) На корпус приспособления установить крышку 1
используя 4 штифта.
) Собрать «вал-рейка» 7 - завинтить шток 6 по
резьбе М16, завинтить штуцер 5 на шток 6 по резьбе М16, установить на вал
поршень 23 по посадке
H7/p6,
установить шайбу 25 и закрепить поршень при помощи гайки 24.
) Собрать и установить крышку пневмокамерым 3 -
установить мембрану 4, установить прокладку 26, привинтить крышку 3 к корпусу 2
используя у болта 27.
) Установить плиту 18 на корпус 2 приспособления
- установить на плите 4 Рым болта 15, Упор 16 8шт., Опора 14 7шт., закрепить
плиту при помощи 4-х винтов 28.
) Установить в корпус 2 палец 21 по посадке с
натягом P7/h6.
) Установить на корпус 2 губку 10 на палец 21по
посадке зазор H8/g7.
) Закрепить губку планкой 20 используя 4 штифта
и винты 8.
) Установить вал 19 в корпус приспособления
закрепив на нём по посадке с натягом R7/h6
зубчатое колесо 13, 2 подшипника 30, посадка на установочное отверстие с
зазором , смазать.
) Установить рейку 12 в корпус
) Установить на рейку 12 губку 29 и закрепить 2
Болтами 21.
) Закрепить губку 29 планками 20 при помощи
штифт 4шт., винт 8 8шт.
) Приспособление смазать.
) Контролировать приспособление.
Список литературы
1. Справочник
технолога машиностроителя в 2х томах. Под. Ред. А.Г.Косиловой, Р.К.
Мещерякова.- М: Машиностроение , 1985г.
. Станочные
приспособления: Справочник В 2х т./ Ред. совет: Б.И. Вардашкин (пред.) и др.-
М.: Машиностроение, 1984-Т2 / Под ред. Б.И. Вардашкина, В.В. Данилевского,
1984.
. Корсаков
В.С. Основы конструирования приспособлений - М.: Машиностроение, 1975г.
мм.
.
мм.
=
0,1/2+0,063/2+0,01=0,0915
*;34
, [2, том 2 - с.406]
6688 = 2675Н [1, с. 38]
)