Материал: Методические указания к лабораторным работам по производству отливок из чугуна и стали для студентов направления Металлургия. Печенкина Л.С

Внимание! Если размещение файла нарушает Ваши авторские права, то обязательно сообщите нам

нагрев воздушного дутья до 400-700 °С. Схема трубчатого, радиационного рекуператора приведена на рис. 7.

Оборудование для подачи воздуха в вагранку. Воздух подается к фурмам вагранки с помощью воздуходувных машин, которые в зависимости от создаваемого ими давления подразделяются на:

а) вентиляторы (повышают давление до 147 гПа, т.е. до

1500 мм вод,ст.);

б) нагнетатели (наиболее применяемые центробежные воздуходувные машины), повышающие давление выше

147 гПа.

Рис. 6. Встроенный рекуператор:

1 – короб холодного воздуха; 2 – трубчатый теплообменник; 3 – короб подогретого дутья; 4 – труба вагранки.

9

Характеристика воздуходувных машин для вагранок дана в табл. 3.

 

 

 

 

Таблица 3

 

Характеристика воздуходувных машин для вагранок

 

 

 

 

 

Вагранка

Воздуходувная машина

 

 

 

 

Созда-

Диаметр

 

 

Производи-

ваемое

вагранки,

Исполнение

Модель

тельность,

давление

мм

 

 

м3

(гПа)

 

 

 

 

 

 

Без подогре-

 

 

 

 

ва дутья

В 8/800

8000

78,4

900

С подогре-

 

 

 

 

вом дутья

ТВ 80-1,2

6000

196

 

 

 

 

 

 

Без подогре-

 

 

 

1100-1300

ва дутья

В2М 10/1250

10000

122,6

 

С подогре-

 

 

 

 

вом дутья

ТВ 200-1,4

12000

392,1

1500

Без подогре-

 

 

 

 

ва дутья

В 15/1500

15000

147,0

 

С подогре-

 

 

 

 

вом дутья

В 22/2050

22000

201

1800-2100

Без подогре-

 

 

 

 

ва дутья

В 20/1700

20000

166,6

 

С подогре-

 

 

 

 

вом дутья

700-13-3

42000

294

10

Рис. 7. Радиационный рекуператор

11

Оборудование для набора, взвешивания и загрузки шихты. Процесс набора, дозирования и загрузки шихты в вагранку состоит из трех технологических операций: подачи шихтовых материалов к массоизмерительному устройству, взвешивания, подачи взвешенной шихты в вагранку.

Механизация подачи шихты к массоизмерительным приборам осуществляется или с помощью расходных бункеров с питателями, или с помощью электромагнита.

Дозирование производится путем предварительного набора на шайбу некоторого заведомо большего количества шихты и последующего сброса лишних кусков обратно в закрома по показаниям крановых весов или путем постепенного сброса шихты в бункеры до получения заданной массы. Для подачи в устройства немагнитных компонентов применяются ленточные, пластинчатые и вибрационные питатели. Массоизмерительные устройства, достаточно надежно работающие в установках дозирования шихтовых материалов, приведены в табл.4.

Наиболее распространенными механизмами для загрузки шихты в вагранку являются наклонные бадьевые подъемники или шарнирные краны.

Вспомогательные механизмы для грануляции шлака и уборки отходов после выбивки вагранки. Принцип работы системы грануляции шлака - резкое охлаждение струи горячего шлака, стекающего по шлаковому желобу, потоком воды; шлак поступает в отстойники, вода после осветления и охлаждения вновь подается к шлаковому желобу.

Уборка отходов (после выбивки вагранки) производится в короба, установленные на тележках, приводимых в движение лебедками. Разгрузка коробов - с помощью грузоподъемных устройств. В последние годы разработаны установки бездымососных вагранок закрытого типа, в которых перемещение и мокрая очистка газов производятся с помощью водяного эжектора или повышенного давления под колошником.

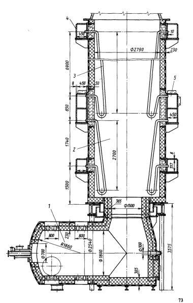
Конструкция и нормальный ряд вагранок этого типа приведены на рис. 2 и в табл. 5.

12

 

 

 

 

 

 

 

 

Таблица 4

Дозаторы и массоизмерители для ваграночной шихты

 

 

 

 

Погреш-

 

 

 

 

 

 

 

 

ность

 

 

 

 

 

 

Диапазон

 

измере-

 

 

 

 

Наименование

Марка

измерения,

 

ния,кг

 

Габаритные

Диаметр

 

 

кг

 

 

 

размеры,мм

 

вагранки,мм

 

 

 

 

 

 

 

 

 

1

2

3

 

4

5

6

 

Длятоплива,флюсов,ферросплавов

 

 

Дозатор автомати-

ДВЧ-40м

окт.40

 

±0,5

 

213х960х1290

 

До1100

ческий для из-

ДВЧ-100м

40-100

 

±1,0

 

213х960х1290

 

До2100

вестнякаиферро-

 

 

 

 

 

 

 

 

сплавов

 

 

 

 

 

 

 

 

Дозаторавтома-

ДВК-100м

25-100

 

±1,0

 

2250х160х1730

 

До850

тический для

ДВК-250м

70-250

 

±2,5

 

2250х160х1730

 

До1700

кокса

 

 

 

 

 

 

 

 

 

Дляметаллическихкомпонентовшихты

 

 

Воронка-массо-

 

 

 

 

 

 

 

 

измеритель

488ВО,5

100-500

 

±5,0

 

1310х1310х2415

 

До850

Массоизмеритель

 

 

 

 

 

 

 

 

бункерный элект-

1076Б3,2

160-3200

 

±20

 

1750х2080х1450

 

1100-2100

ромеханический

 

 

 

 

 

 

 

 

 

Платфор-

 

 

 

 

 

 

 

Электрическая

менная

до2000

 

±10

 

2800х1340х2375

 

До1350

массоизмеритель-

ТIIIТ-2

 

 

 

 

 

 

 

ная тележка

Бункерная

до3200

 

±20

 

4500х2250х2680

 

1700-2650

 

Т122Т-3,2-1

 

 

 

 

 

 

 

 

Бункерная

до2000

 

±10

 

3700х1900х3000

 

До1350

 

103БТ2,0

 

 

 

 

 

 

 

Монорельсовый

 

 

 

 

 

 

 

 

Циферблатный

 

 

 

 

 

-

 

 

массоизмеритель

ВЦМ-1М

до1000

 

±10

 

 

 

До1350

Массоизмеритель

 

 

 

 

 

 

 

 

крановый

191ЭК-5

до5000

 

±20

 

-

 

До2650

 

 

 

13