Курсовой проект
Транспортные машины и
комплексы горных и горнообогатительных предприятий
Введение
скребковый забойный конвейер локомотивный
Транспорт горных предприятий является одним из основных технологических процессов, от четкой организации которого зависит бесперебойная работа очистных и подготовительных забоев, предприятия в целом. Он представляет собой сложную систему взаимоувязанных транспортных звеньев, расположенных как внутри предприятия, так и вне его.
Самым оптимальным и самым распространенным на шахтах имеется конвейерный транспорт, который применяют для транспортировки основного грузопотока. Наряду с конвейерами используют и другие средства транспортирования (транспортные средства с электрической, дизельной и канатной тягами). Разнообразие видов и схем транспорта непременно приводит к сложности в его выборе, расчете и организации работы.
Таким образом, задачей данного курсового проекта есть выбор
рационального оборудования при заданный условиях.
1. Выбор и расчет скребкового забойного конвейера
Минутная
производительность определится по формуле:
т/мин,
где, Tсм - продолжительность смены, Tсм = 6 ч;
nсм - количество смен работы конвейера, nсм = 3;
kм -
коэффициент, учитывающий перерывы в работе конвейера по техническим и
технологическим причинам, kм = 0,75.
Тип конвейера
1СК38М-01
Производительность,
т/мин.
2,1
Длина конвейера
в поставке, м
170
Номинальная
мощность двигателя, кВт
2 × 30
Тяговый орган:
- тип цепи (калибр, шаг, класс прочности)
18 × 64-7-15
- количество и
расположение цепей
одна, в
направляющих
Рештачный став:
- высота боковины рештака, мм
97
- длина по
боковинам, мм
1490
- ширина
рештака, мм
396
Масса, кг
19800
В соответствии с горнотехническими
условиями принимаем скребковый конвейер 1СК38М-01.
Сопротивление движению тяговой цепи:
а) для груженой ветви
где б) для порожней ветви
где V - относительная скорость движения тяговой цепи, м/с.
Принимаем работу комбайна по челноковой схеме, когда выемка
угля производится в обоих направлениях перемещения комбайна, максимальную
скорость подачи комбайна Va= 3 м/мин = 3/60 = 0,05 м/с относительная
скорость составит:
при движении комбайна по восстанию:
при движении комбайна по падению
Для расчетов принимаем среднюю скорость движения тягового органа u=0,64 м/с.
Натяжение тяговой цепи
Минимальное натяжение для конвейера в месте сбегания цепи с
приводной звездочки принимаем:
Тогда, натяжения в остальных характерных точках будут равны:
где Дополнительные статические сопротивления движению тягового органа
возникают при его прохождении по отклоняющим и приводным звездочкам и
криволинейным участкам определяются по формулам:
на верхней приводной звездочке:
где на нижней хвостовой звездочке:
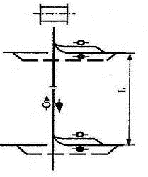
Рис. 1.2 - Схема натяжений тягового органа скребкового конвейера
Проверка тяговой цепи на прочность
Допустимая нагрузка Sдоп на тяговый орган определяется по формуле:
где λ - коэффициент
неравномерности распределения нагрузки между цепями для двухцепной
круглозвенной цепи равен 0,87;
Sp - разрывное усилие одной
цепи 320000 Н;
i - количество цепей, i = 1.
Расчетный коэффициент запаса прочности определим по формуле:
где mном - номинальный коэффициент запаса прочности,
принимаем равным 3, как при пусковом режиме;р - коэффициент режима
работы конвейера, принимаем равным 1, как при среднем режиме конвейера;Т -
коэффициент конфигурации трассы конвейера, принимаем равным 0,85, как для
сложной трассы;
k0 - коэффициент ослабления сечения деталей цепи,
принимаем равным 0,85, как для среднего износа цепи;дин -
коэффициент динамических нагрузок, принимаем при u = 1 м/с равным 0,8.
Условие прочности тягового органа выполняется, так как:
где Smax - максимальное разрывное усилие,
обусловленное характеристикой натяжения цепного тягового органа, оно равно S4 = 47200 Н.
Определение мощности привода конвейера
При двигательном режиме работы конвейера суммарная мощность
двигателей привода определяем по формуле:
где km - коэффициент запаса мощности, принимаем km = 1,15; W0 - общее тяговое усилие
привода, принимаем равным 31679 Н; η - КПД привода, принимаем
равным 0,85.
Необходимое число установленных на конвейере двигателей определяем
из выражения:
Окончательно принимаем конвейер 1СК38М-01 с суммарной
мощьностью приводных электродвигателей привода 60кВт.
Предназначен для доставки угля и горючего сланца из очистных
забоев шахт и при нарезных работах на тонких пластах мощностью 0,5-0,9 м,
отрабатываемых по простиранию с углами падения пластов до 25° и по восстанию -
до5°.
Скребковый разборный переносной конвейер 1СК38М с
горизонтально замкнутым тяговым органом применяется с угледобывающими
комбайнами типа «Кировец» и КЦТГ, работающими с почвы пласта, и индивидуальным
креплением.
Тип конвейера
1СК38М
1СК38М-01
1СК38М-02
1СК38М-03
Производительность,
т/мин.
2,1
2,3
Длина конвейера
в поставке, м
110
170
110
170
Номинальная
мощность двигателя, кВт
1 × 30
2 × 30
1 ×30
2 ×30
Тяговый орган:
- тип цепи (калибр, шаг, класс прочности)
18 × 64-7-15
- количество и
расположение цепей
одна, в
направляющих
Рештачный став:
- высота боковины рештака, мм
97
- длина по
боковинам, мм
1490
- ширина
рештака, мм
396
Масса, кг
12900
19800
12900
19800
Эксплуатация конвейера
Монтаж конвейеров целесообразно произвести предварительно на
поверхности и опробовать его в холостую.
При транспортировке в шахту не рекомендуется разбирать блок
редуктор-двигатель. До начала монтажа необходимо установить пусковую аппаратуру
и проложить линии для электроснабжения.
Согласно правилам охраны труда запрещается осмотр и ремонт
работающих скребковых конвейеров, движение людей по конвейеру, перевозка леса
конвейерами, не приспособленными для этого, и перевозка оборудования всеми
видами конвейеров. При выполнении монтажных и эксплуатационных работ необходимо
выполнять следующие правила безопасности: производить окончательный пуск
конвейера спустя 4…6 сек после подачи предупредительного сигнала; перед
запуском проверять крепления приводной и натяжной головок, наличие защитных
кожухов; не заливать муфты жидкостью, не рекомендованной заводской инструкцией;
проводить ремонт и осмотр конвейера только при отключении пусковой аппаратуры и
вывешивании предупреждающей надписи «НЕ ВКЛЮЧАТЬ, РАБОТАЮТ ЛЮДИ»; особо следить
за правильным натяжением тяговой цепи, не допуская её провисания на приводной
станции долее 150 мм.
2. Выбор и расчет ленточного конвейера (штрековый)
Определим расчетную производительность конвейера:
где, kн - коэффициент неравномерности, принимаем kн
= 1,5
Предварительно по расчетной производительности и углу наклона
выработки ориентировочно принимаем ленточный конвейер 2Л100У имеющий следующие
технико-экономические показатели:
Эксплуатационная производительность Qmax = 850 т/ч;
Длина, L = 1800 м;
Допустимый угол наклона, β = -16
÷ +18;
Суммарная мощность двигателей привода, N = 220 кВт;
Скорость движения ленты, V = 2,5 м/с;
Приемная способность, Qпр = 16,8 м3/мин;
Суммарный угол обхвата лентой барабана α
= 440°;
Диаметр ролика d= 127 мм;
Ширина ленты В = 1000 мм.
Проверка ширины ленты по обеспечению заданной производительности
где γ=0,85 т/м3 - плотность угля;
Принятый конвейер удовлетворяет условию.
Проверка ширины ленты по размещению кусков материала
В≥ а'mах ·2+200 = 350·2+300 = 1000 мм.
Таким образом, принятый конвейер 2Л100У с лентой шириной 1 м
удовлетворяет данным условиям.
Сопротивления движению ленты
а) на груженой ветви
где m’Р = 13+24B= 37 кг, m’’Р =
8+14B= 22 кг - масса вращающихся частей
роликоопор;'Р = 1,2 м, l''Р = 2,4 м - расстояние между
роликоопорами на груженой и порожней ветви;
б) на порожней ветви
Максимально возможное тяговое усилие, которое может развить привод
конвейера:
где k - обобщенный коэффициент, учитывающий
дополнительные сосредоточенные сопротивления, k=1,1.
Т.к. W0<0 то режим генераторный.
Минимальное допустимое натяжение ленты на приводном барабане для
устранения проскальзывания при генераторном режиме:
где Минимальное натяжение для обеспечения допустимой стрелы провеса на
груженой ветви:
Допустимое натяжение ленты:
где KZ - разрывное усилие 1 мм ширины ленты, KZ=980 Н/мм;
i = 1 для резиноторосовых лент;
m - запас прочности ленты, m = 8,5.
Общее тяговое усилие на приводе установки. Во избежание
проскальзывания конвейерной ленты на приводном барабане должно выполняться
следующее условие:
В дальнейших расчётах принимаем S1 = 105727 Н.
Так как, 225813 > 115294 - то из построенной диаграммы видно,
что необходимо 2 конвейера по условию обеспечения прочности ленты.
Точка 4 имеет минимально натяжение ленты на груженой ветви т.к. S4 = 40092 Н, а Натяжение ленты в точке набегания на приводной барабан:
Общее тяговое усилие привода:
где kПР = 0,04 - коэффициент сопротивления движению ленты на
приводном барабане.
Рисунок 2.2 - Диаграмма натяжений ленты конвейера
Определение мощности двигателей и числа последовательно
устанавливаемых конвейеров
Потребная мощность двигателей (генераторный режим):
где Проверка по мощности холостого хода:
Т.к. тяговое усилии при холостом ходе по абсолютной величине
меньше усилия при груженом конвейере, то проверку по мощности холостого хода
проводить нет необходимости.
Установочная мощность двигателя
где km - коэффициент запаса мощности km=1,15;
Необходимое количество конвейеров по мощности их двигателей:
Окончательно принимаем 2 конвейера 2Л100У, т.к. большее из
числа конвейеров по прочности ленты и числа конвейеров по мощности двигателя
является первое.
Общие сведения о конвейере
Конвейер имеет высокий уровень унификации по таким элементам как
приводные станции, барабаны, ролики, станы. В зависимости от назначения и для
удобства обслуживания конвейер по заказам потребителей могут комплектоваться
канатным или жестким ставом напочвенного или подвесного исполнения.
В целях повышения безопасности эксплуатации на приводных станциях
предусмотрена установка автоматической системы пожаротушения, которой завод уже
комплектует выпускаемые конвейеры.
Рис. 2.3 - Конвейер ленточный 2Л100У
В конструкции конвейера перед приводными, натяжными и отклоняющими
барабанами предусмотрены эффективные центрирующие опоры. Конвейер снабжены
средствами очистки ленты и барабанов.
В процессе изготовления роликов осуществляется стопроцентный
контроль качества как пооперационно, так и самого ролика в целом для чего
каждый собранный ролик подвергается обкатке на специальной установке.
Особенности
- с целью дальнейшего повышения технического уровня конвейеров на
заводе внедрена новая конструкция ролика, в котором вместо чугунного стакана
применяется штампованный стакан и более надежное уплотнение подшипникового
узла, что позволило снизить массу конвейера длиной 500 м не менее чем на 5000
кг, а также увеличить длину транспортирования без изменения мощности привода за
счет уменьшения вращающихся частей, при этом также будет увеличен его ресурс;
вместо покупных редукторов на конвейера первого второго
типоразмеров заводом освоено производство специальных высоконадежных
редукторов;
высокий уровень унификации конвейеров позволяет путем
незначительных конструтивных изминений применять его в различных
горногеологических условиях (возможность различной перекомпоновки).
Конструкция и эксплуатация конвейера
Основой конвейера является бесконечная замкнутая гибкая
лента. В зависимости от типа транспортируемого груза лента может иметь плоскую
или желобчатую форму. Верхняя рабочая и нижняя холостая ветви ленты
поддерживаются роликоопорами. Движение ленте конвейера сообщает приводной
барабан, приводимый во вращение электродвигателем через редуктор. Постоянное
натяжение ленте обеспечивается натяжным устройством.
Монтаж ленточных конвейеров должен осуществлятся по монтажным
чертежам. Основное внимание должно быть обращено на строгую прямолинейность
конвейера в плане соблюдения допустимого угла наклона к горизонту, установку
натяжных и приводных станций, монтажу элементов става.
Ленточные конвейеры должны быть оборудованы:
. Центрирующими устройствами, которые предотвращают сход
ленты за пределы краев барабанов и роликоопор.
. Устройствами, которые отключают привод конвейера при обрыве
ленты или при ее пробуксовке.
. Устройствами, которые позволяют в аварийных случаях
остановить конвейер с любого места по его длине со стороны прохода, кроме того,
аварийными кнопками в главной и хвостовой части конвейера.
. Устройствами для механической очистки лент и барабанов от
налипшего материала.
Правила технической эксплуатации предусматривают:
1. Запуск конвейера только после подачи
предупредительного сигнала, продолженной не менее чем 5 с.
. Надежное закрепление приводных и натяжных головок в
местах, специально предназначенных для установления стоек.
. Наличие защитных тулупов на частях, которые
вращаются.
4. При углах наклона выработок более 60 конвейеры
должны иметь тормозные устройства, при углах наклона более 100-устройства
улавливания ленты в случае ее обрыва.
. К обслуживанию ленточных конвейеров допускаются люди,
которые прошли специальное обучение.
3. Канатный транспорт
Учитывая грузопотоки, транспортируемые на наклонной
капитальной выработке и по коренному откаточному штреку принимаем вагонетку с
глухим кузовом типа ВГ 3,3.
Техническая характеристика
Емкость кузова, м3 3,3
Грузоподъемность, кг, 6000
Длина по буферам, мм 3450
Ширина кузова, мм 1320
Высота от головки рельса, мм 1300
Жесткая база, мм 1100
Колея, мм 900
Диаметр колеса по ободу катания, мм 350
Высота оси сцепки от головки рельса, мм 365
Масса, не более, кг 1270
Тип выработки: бремсберг Принимаем схему одноконцевой откатки с наклонными заездами.
Рис. 3.2 - Схема одноконцевой канатной откатки по бремсбергу
с наклонными заездами
Выбор числа вагонов и проверка величины состава
по прочности сцепки
Определим расчетную производительность:
Число вагонов в откатке определяется по следующей зависимости:
где: VCP = (0,8…0,9) V м/с - средняя скорость движения состава;
V - номинальная скорость движения каната в соответствии с
характеристикой подъемной машины, для L>300
м V=5 м/с;
VCP = 0,85·5=4,25 м/с
с=0,4 - коэффициент, учитывающий понижение скорости при движении
по заездам и на участке переподъема;
lкр - длина пути криволинейных участков, lкр=50 м;
tп - время паузы, tп=90с;
l0 = 3,45 м
- длина вагонетки с растянутыми сцепками.
К дальнейшему расчёту принимаем 3 вагонетки.
Проверка величины состава по прочности сцепки:
где: FCЦ = 60 кН - допустимое усилие на сцепке;
ω = 0,022 - коэффициент сопротивления движению
вагонеток;
βmax =12+4=16 о - максимальный угол
наклона выработки.
Вывод: принимаю Z=4.
Расчёт и
выбор каната
Погонная масса каната:
где: m = 6,5 - запас прочности, для грузового
подъёма;
γ0 = 9000 кг/м 3 - приведенная плотность каната;
Gвр = 1800.10
6 Н/м 2 - сопротивление разрыву проволоки;
ωК = 0,2 - коэффициент сопротивления движению каната.
Принимаем канат 32,5 - Г-1-Л-О-Р-1770 ГОСТ 3077-80. Диаметр каната
d = 32,5 мм, qК = 3,99
кг/м.
Минимальный диаметр барабана подъёмной машины:
Производим проверку из условия спуска порожнего состава:
Т.к. ,21>0,2
то обеспечивается самопроизвольное движения каната и,
следовательно, проверки возможности спуска состава не требуется.
Определение мощности двигателя и выбор подъёмной машины
Мощность двигателя для откатки одним концевым канатом по бремсбергу определяем по наибольшей
силе тяги лебедки при подъёме груженого состава.
Натяжение каната:
Мощность на валу двигателя:
где: η = 0,85 - коэффициент
полезного действия редуктора.
В дальнейших расчётах принимаем Nmax = 552 кВт.
Определим необходимую ширину барабана подъёмной машины с D=3,5 м:
где: nС = 3 - число слоёв навивки;
nтр = 5 -
число витков трения;
ε = 2,5 мм - зазор между смежными витками;
lзап = 35 м
- резервная длина каната, компенсирующая укорачивание каната по мере проведения
его испытаний;
Определим среднеквадратическую мощность двигателя:
где α = 1,1 - коэффициент
учитывающий нагрев двигателя при манёврах;
τ - относительная продолжительность движения:
ТДВ - продолжительность движения по выработкам с
наклонными заездами:
FCР.П, и FCР.ОП. - средние статистические усилия на
барабане при спуске и подъёме состава:
где: V’=(1,05…1,06) V - скорость движения каната при генераторном режиме работы
двигателя, V’=1,055·5=5,275 м/с.
Паспортная мощность двигателя:
где: kМ = 1,2 - коэффициент запаса мощности.
По значениям B, D и NУСТ принимаем подъёмную машину
Ц-3,5x2,4 и двигатель мощностью 315 кВт.
Коэффициент перегрузки двигателя:
Принятое количество вагонеток в составе удовлетворяет условию
обеспечения заданной производительности откатки и прочности сцепок вагонетки.
Учитывая повышенную аварийноопасность канатних откаток необходимо особое
внимание уделять контролю за состоянием канатов, рельсового пути, сцепок,
исправности вагонеток.
Конструкция и эксплуатация вагонеток
Рис. 3.3 - Схема вагонетки с глухим неопрокидным кузовом типа
ВГ для уголных шахт:
- кузов; 2 - рама; 3 - подвагонный упор; 4 - колесная пара;
- универсальная вращающаяся сцепка.
Вагонетка типа ВГ имеет без разборную конструкцию со сварным
кузовом трапециидальной формы. Кузов в сборе состоит из штампованных боковин и
днища. Повышение жесткости кузова в верхней части осуществляется внутренней
обвязкой из уголка, а в нижней отогнутым поясом днища. В днище вмонтированы
буферные коробки для размещения вращающихся сцепок.
Колесная пара состоит из двух стальных колес открытой
конструкции, в ступице которых размещены два конических подшипника. Подшипники
внутренними кольцами по ходовой осадке надеты на ось. С наружной стороны
ступица защищена крышкой с внутренним лабиринтным уплотнением. Весь набор
закрыт чашкой, которая стопорится от проворачивания шплинтом.
Смазка в полость между подшипниками подается через отверстие
в торце ступицы колеса и оси, закрываемых пробкой.
Автоматическая вращающаяся сцепка состоит из сплошного литого
корпуса, механизма поворота, замыкающего механизма, механизма расцепления и
автоматизирующего устройства. На корпусе автосцепки имеется крюк для
присоединения лебедки. Сцепление вагонеток происходит автоматически при
соударении. Для расцепления необходимо нажать рычаг механизма расцепления одной
из сцепок.
Содержание вагонного парка в исправном состоянии имеет
существенное значение для обеспечения нормальной работы подземного транспорта.
Правила безопасности при использовании канатного
транспорта
Перевозка людей по горным выработкам осуществляется
пассажирскими составами, предназначенными и допущенными в установленном порядке
для данной цели в соответствии с указаниями, приводимыми в заводских
инструкциях по эксплуатации.
При перевозке людей в пассажирских вагонетках по
горизонтальным выработкам скорость движения не должна превышать 20 км/ч, а при
перевозке людей в оборудованных грузовых вагонетках - 12 км/ч.
Запрещается:
· перевозка в поездах с людьми инструментов
и запасных частей, которые выступают за борт вагонеток, взрывных,
легковоспламеняющихся и едких материалов;
· прицепка грузовых вагонеток к людским
составам, за исключением не более двух вагонеток в конце состава для перевозки
инструмента (в горизонтальных выработках);
· езда людей на локомотивах, в
необорудованных вагонетках, на платформах и т.п.
Запрещено допускать к работе грузовые вагонетки, транспортные
единицы секционных поездов и др.:
· с неисправными полускатами;
· с неисправными сцепками и др. тяговыми
частями, а также сцепками, изношенными сверх допустимых нормативов;
· с неисправными буферами и тормозами.
Запрещается:
· проталкивание расцепленных составов,
прицепка непосредственно к локомотиву платформ или вагонеток с длинномерными
материалами, а также платформ и вагонеток, нагруженных лесом и оборудованием,
которое выступает за верхний габарит средства транспорта;
· ручная сцепка и расцепка вагонеток во
время движения составов, а так же сцепка и расцепка крюковых сцеплений без
применения специальных приспособлений; · сцепка и расцепка вагонеток на расстоянии
ближе 5 м от опрокидывателей, вентиляционной двери и других препятствий;
· применение для торможения и удержания
состава подручных средств;
· оставлять вагонетки, составы и локомотивы
на разминовках ближе 4 м от рамного рельса стрелочного перевода.
4. Расчет локомотивной откатки
С учётом категорийности шахты, длины транспортирования,
сменного грузопотока принимаем для перемещения груза аккумуляторный электровоз
АРП14 для колеи 900.
В качестве транспортного сосуда примем вгонетку ВГ3,3
Таблица 4.1 - Параметры электровоза АРП-14 (колея 900 мм)
Масса, кг
14000
Параметры
часового режима:
Суммарная
мощность электродвигателей, кВт
47
Скорость, км/ч
9
Сила тяги, кН
18
Параметры
длительного режима:
Скорость, км/ч
14,5
Сила тяги, кН
4,5
Габаритные
размеры, мм
Длина
5816
Ширина
1360
Высота (с
кабиной)
1750
Клиренс, мм
70
Жесткая база,
мм
1655
Исполнение:
электрооборудования
РВ
аккумуляторной
батареи
РП
Длина откатки L=1850 м
Производительность откатки A4=4212т/сут
Минимальный уклон рельсового пути, исходя из задания,
принимаем равным imin =20/00. Тогда средний
уклон iСР =40/00 и максимальный, imax =50/00.
Определение величины состава поезда
Максимально допустимый вес поезда по условию сцепления колёс
с рельсами при трогании гружёного состава под минимальный уклон:
где: Р=140 кН - сцепной вес электровоза;
ωГР =7 Н/кН - удельное сопротивление груженых вагонеток (для
ВГ3,3).
аmin = 0,03 м/с 2 - пусковое
ускорение;
Максимально допустимый вес поезда при трогании порожнего состава
на максимальный подъем:
где ωПОР = 11 Н/кН - удельное сопротивление порожних вагонеток (для
ВГ3,3).
По условию торможения электровоза, движущегося под максимальный
уклон:
где: аТ - замедление:
vТ =4 м/с -
скорость начала торможения;Т =40 м - тормозной путь, согласно ПБ;
Из определенных QГР и QПОР выбираем
минимальные: 700 кН и 1233 кН - соответственно.
Определяем возможное число вагонеток в составе:
где G0 = 12,8 кН - вес порожней вагонетки ВГ3,3;
G = 60 кН - вес груза в вагонетке.
К дальнейшему расчёту принимаем n=9.
Уточним вес груженого и порожнего состава по принятому числу
платформ:
Проверка тяговых двигателей на нагрев
Поскольку длина откатки превышает 1000 м для определения
эквивалентного тока используем метод установившихся скоростей.
Определим силу тяги в установившемся режиме, приходящуюся на один
двигатель:
где nДВ = 2 - число двигателей электровоза.
Рисунок 4.1 - Электромеханическая характеристика тягового
двигателя ДРТ - 23,5.
По электромеханическим характеристикам двигателей серии ДРТ -
23,5, установленных на электровозе, определяем:
IГР = 70 А и IПОР = 85 А - соответственно,
ток потребляемый электровозом при установившемся движении с грузом и
порожняком;
v ГР = 9 км/ч и vПОР = 7,8 км/ч -
установившаяся скорость движения составов в грузовом и порожнем направлении.
Определяем допустимую скорость движения груженого состава под
уклон по фактору торможения:
Определяем эквивалентный (среднеквадратичный) ток:
ТГР и ТПОР - время движения гружёного и порожнего составов:
ТДВ - длительность рейса:
ТДВ=ТГР+ТПОР=17+19=36 мин
- длительность пауз:
=t1+ t 2+ t 3=10+15+5=30 мин,
=10 мин - продолжительность манёвров электровоза в околоствольном
дворе;
t2=15 мин -
продолжительность манёвров электровоза в пунктах погрузки;
t3=5 мин -
продолжительность дополнительных остановок в местах пересечения транспортных
магистралей;
α=1,05 - коэффициент, учитывающий ухудшение
охлаждения двигателя во время остановок, а также работу двигателя во время
манёвров.
Поскольку условие IЭК Выбор числа электровозов
Инвентарное число электровозов:
где: NP - число рабочих электровозов; NРЕЗ
- число резервных электровозов;
Т0 - чистое время работы электровозной откатки в смену,
принимаемое на 0,5 часа меньше продолжительности смены;
kН = 1,3 -
коэффициент неравномерности выдачи груза;СМ - сменный грузопоток;
Возможная сменная производительность одного локомотива по вывозке
груза:
Расчёт параметров электроснабжения
Энергоёмкость батареи потребная для работы электровоза в течении
смены:
где: UР = 185 В-среднее разрядное напряжение батареи.
Исходя из того, что Аб меньше номинальной энергоёмкости
батареи А ' = 102 Инвентарное число зарядных столов:
где NРЕМ - дополнительное число зарядных столов для обмена и
обслуживания батарей.
Общие сведения о электровозе
Электровоз АРП14 предназначен для откатки составов вагонеток и
секционных поездов по рельсовым путям в главных откаточных выработках шахт,
опасных по газу или пыли. Изготовляется в рудничном исполнении повышенной
надежности (РП) для колеи 900 мм.
Электровоз АРП 14 представляет собой двухосный мощный локомотив с
двумя кабинами машиниста, расположенными по концам электровоза и оборудованными
зеркальным устройством для наблюдения за состоянием состава и световыми
сигналами. Электровоз приводится в движение двумя отдельными приводами,
электродвигатели которых получают питание от тяговой батареи, расположенной над
рамой. Привод состоит из электродвигателя, двухступенчатого редуктора с
цилиндрическими зубчатыми колесами и колесной пары.
Примененная на электровозе безреостатная на тиристорах
электрическая схема управления позволяет плавно регулировать скорость, а также
плавное электродинамическое торможение и включение электромагнитных рельсовых
тормозов при экстренном торможении электровоза. Электровоз оборудован
гидравлической системой для привода колодочного тормоза и дистанционного
управления расцепителем автосцепки.
Управление электровозом может производиться из любой кабины.
Предусмотрена блокировка сиденья машиниста, не допускающая управление
электровозом вне кабины.
С целью увеличения сцепления колес с рельсами путем подсыпки песка
электровоз оборудован песочной системой.
Освещение и световая сигнализация выполнены в виде светильников
основного и сигнального света. Возможно включение дальнего и ближнего основного
света.
Некоторые положения ПБ, касающиеся эксплуатации и обслуживания
локомотивного транспорта
§ 304. В шахтах, опасных по газу или пыли, ремонт аккумуляторных
электровозов, связанный с вскрытием электрооборудования, за исключением замены
плавких вставок, разрешается производить только в электровозном депо.
§ 305. Для приготовления раствора электролита и заливки им
аккумуляторов должны применяться специальные приспособления, предохраняющие от
разбрызгивания и разливания электролита. При этом рабочие должны пользоваться
защитными очками, резиновыми перчатками и фартуками. В зарядной камере должны
быть нейтрализующие растворы и порошки на случай ожога тела электролитом.
§ 306. Зарядные камеры должны быть оборудованы устройствами,
обеспечивающими механизированный съем и постановку батарейных ящиков
электровозов.
Запрещается зарядка аккумуляторных батарей непосредственно на
электровозе.
Допускается на строящихся шахтах, горизонтах с общим количеством
электровозов не более двух зарядка в зарядных камерах аккумуляторных батарей
непосредственно на электровозе.
§ 307. Во время зарядки аккумуляторных батарей крышка батарейного
ящика должна быть снята, а крышки горловин аккумуляторов открыты. Аккумуляторы
и батарейный ящик разрешается закрывать только после прекращения газовыделения
из аккумуляторов, но не раньше чем через 1 ч после окончания зарядки.
Перед выпуском аккумуляторной батареи из зарядной должна быть
проверена изоляция ее от корпуса батарейного ящика. Сопротивление изоляции
одной батареи должно быть не менее 10000 Ом. Запрещается ставить под зарядку
неисправные или загрязненные аккумуляторные батареи. Батарейный ящик во время
зарядки должен быть заземлен.
§ 308. Во время зарядки аккумуляторных батарей запрещается
пользоваться в помещениях зарядных камер открытым огнем.
§ 309. Электрооборудование в зарядной камере должно быть во
взрывобезопасном или повышенной надежности исполнении.
Допускается применение аккумуляторных пробников в нормальном
исполнении, но измерение напряжения ими разрешается производить не ранее чем
через 10 мин после снятия крышки с батарейного ящика.
§ 310 Локомотив во время движения должен находиться в голове
состава. Локомотив может находиться в хвосте состава только при выполнении
маневровых операций.
Запрещается на одних и тех же участках пути совмещение
локомотивной откатки с другими видами откатки, а также совмещение откатки
аккумуляторными и контактными электровозами. Въезд электровоза на эстакаду
(отвал) разрешается только в хвосте состава.
§ 311. Запрещается работа на неисправных локомотивах, в том числе
при:
а) отсутствии или неисправности буферов;
б) неисправности сцепных устройств;
в) неисправных или неотрегулированных тормозах;
г) неисправности песочниц или отсутствии песка в них (кроме
локомотивов со сцепным весом до 2 т);
д) несветящихся или неисправных фарах;
е) неисправности сигнальных устройств;
ж) нарушении взрывобезопасности оборудования;
з) изношенных более чем на 2/3 толщины колодках и прокате бандажей
более 10 мм;
и) отсутствии на локомотиве домкрата и самостава;
к) снятой крышке батарейного ящика аккумуляторного локомотива или
неисправном ее блокировочном устройстве;
л) неисправности электрооборудования, блокировочных устройств и
средств защиты.
§ 312. Перевод ручных стрелок персоналом, сопровождающим поезд,
разрешается производить до подхода состава к стрелочному переводу.
§ 313. Запрещается перевозка на локомотиве материалов и
оборудования.
§ 314. К управлению локомотивом должны допускаться только лица,
получившие соответствующую квалификацию и имеющие удостоверение на право
управления локомотивом. Удостоверение должно иметь три отрывных талона,
изымаемых за нарушение правил безопасности. С изъятием последнего талона
удостоверение должно отбираться, а его владелец отстраняться от управления
локомотивом до сдачи соответствующих экзаменов комиссии под председательством
главного инженера шахты или его заместителя (помощника).
§ 315. При перерывах в работе откатки контактными электровозами
длительностью свыше смены контактный провод на участке, где работы прекращены,
должен быть отключен.
Также для предотвращения возможности возникновения искры при
замыкании контактов аккумуляторов электровоза при открытом аккумуляторном
отсеке, предлагаю закрывать контакты слоем изолирующего материала (подойдёт
лента конвейера).
Заключение
В результате выполнения курсового проекта, целью которого является
проектирование транспортных машин на горном предприятии, ознакомились с
конструкцией машин, их назначением и безопасной эксплуатацией.
В процессе работы осуществлен выбор транспортных машин и их
элементов. Выполнены основные расчеты, позволяющие определить режимы работы
принятого оборудования.
Внедрение новых машин в горной промышленности обуславливает
необходимость в эффективном и качественном выборе транспортных средств
применительно к конкретным условиям эксплуатации.
Навыки полученные при выполнении данной работы позволят в
дальнейшем производить выбор и расчеты транспортного оборудования в условиях
предприятия
В этом курсовом проекте при заданный условиях был рассчитан
шахтный транспорт. Было выбрано такое оборудование:
скребковый конвейер 1СК38М-01
ленточный конвейер 2Л100У
электровоз АРП14-900
Перечень ссылок
1.
Теоретические основы и расчеты транспорта энергоемких производств. Под ред.
Будишевского В.А., Сулимы А.А. - Донецк, 1999. - 216 с.
.
Подземный транспорт шахт и рудников. Под ред. Пейсаховича Г.Я., М: Недра, 1985;
565 с.
.
Основные положения по проектированию подземного транспорта для новых и
действующих угольных шахт, М., 1986; 358 с.
.
Шахтный транспорт. Под ред. Мухопада Н.Д., Будишевского В.А. - Донецк: тип.
«Новый мир», 1997.-349 с.
.
Конвейеры: Справочник/ Р.А. Волков и др. Под общ. ред. Ю.А. Пертена. - Л:
Машиностроение, 1984. - 367 с.
.
Поляков Н.С., Штокман И.Г. Основы теории и расчеты рудничных транспортных
установок. - М.: Госгортехиздат, 1962. - 492 с.
.
Транспорт на горных предприятиях. Под общ. ред. Б.А. Кузнецова. - М.: Недра,
1976. - 652 с.
.
Проектирование и конструирование транспортных машин и комплексов / Под. ред.
И.Г. Штокмана. - М.: Недра, 1986, 392 с.
.
Гетопанов В.Н., Гудилин Н.С., Чугреев Л.И. Горные и транспортные машины и
комплексы. - М.: Недра, 1991. - 304 с.
- масса тягового органа, приходящаяся на
1 м длины конвейера;
- коэффициент сопротивления движению материала по желобу;
- коэффициент сопротивления движению тягового органа по желобу;
- длина конвейера;
- угол наклона конвейера;
- погонная нагрузка.
кг/м
м/с
м/с.
Н.
Н;
Н;
Н;
- коэффициент потерь на хвостовой
звездочке.
Н
=0,04 - коэффициент потерь на приводной
звездочке;
Н.
Н,
, Н
кВт,
Н
шт.
Конвейер
1СК38М

т/ч;
м
=480 коэффициент производительности;
= 0,95 - коэффициент, учитывающий снижение производительности
наклонных конвейеров;
- расчетная
производительность конвейера:
- погонная масса груза
- погонная масса ленты предварительно принимаем ленту 1РТЛО-1000
- погонная масса вращающихся роликоопор на груженой ветви
- коэффициент сопротивления движению ленты.
- погонная масса вращающихся роликоопор на порожней ветви.
;
- тяговый фактор, выбирается по таблице
для двух барабанных приводов при угле обхвата 440о, сухой атмосфере
и футерованном резиной барабане
.
- коэффициент запаса сил трения.
= 4026 Н, и условие отсутствия чрезмерного провеса ленты на
груженой ветви
выполняется.
кВт.
= 0,85 - КПД двигателя;
кВт;
Рис.
3.1 - Вагонетка шахтная грузовая ВГ 3.3-900
т/ч,
ваг.
кг/м,

кг/м
мм
;
кВт
мм.
Н
Н
кВт
кВт
кВт
- пусковое сопротивление движению вагонетки (при трогании с
места) - принимается в 1,3…1,5 раза больше ходового;
- коэффициент сцепления (с подсыпкой песка на влажные рельсы).
- пусковое сопротивление движению
вагонетки (при трогании с места) - принимается в 1,3…1,5 раза больше ходового
сопротивления;
- коэффициент сцепления (без песка).
IДЛ выполняется (IДЛ=50А), двигатель
локомотива будет работать без перегрева.
шт.
шт.;
- число возможных рейсов одного электровоза:
;
П - полное
число рейсов в смену:
;
- необходимое число рейсов по вывозу груза:
- необходимое число рейсов для перевозки людей.
.
, принимаем общее число батарей, с учётом резервных nб=20.