Материал: Проектирование электролебедки по заданной схеме

Внимание! Если размещение файла нарушает Ваши авторские права, то обязательно сообщите нам

Мб = Nб / π·nб

Nб = Smax·υ

Nб = 1,6·0,53 = 7,73 кВт

Мб = 7,73·1000 / 3,14·(32,6 / 60) = 4537,7 Н·м

Исходя из полученных значений крутящих моментов, выбраны следующие муфты.

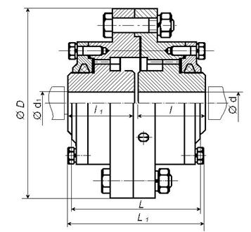
На рисунке 3.10 и в таблице 3.5 представлены размеры первой втулочно-пальцевой муфты с тормозным шкивом.











Рисунок 3.10 Габаритные размеры втулочно-пальцевая муфта

Таблица 3.5. Габаритные размеры втулочно-пальцевой муфты

Обозначение муфты

Номинальный крутящий момент, H×м

D

Dп

L

В

d

d1

d2

Кол-во пальцев, n

L1

L2

L3

Масса, кг

МУВП 8000

8000

400

290

392

200

80

100

10

170

210

210

12

144,9


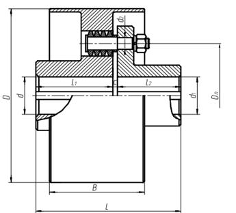
Рисунок 3.11 Зубчатая муфта

Таблица 3.6. Габаритные размеры зубчатой муфты

Обозначение муфты

Д, мм

d, мм

В, мм

В1, мм

Номинальный крутящий момент, Нxм

Частота вращения, об/мин

Масса муфты МЗ, кг

Масса муфты МЗП, кг

М3-2-Н30

185

30

145

160

1400

5000

16,1

15,4


На рисунке 3.11 и в таблице 3.6 представлены размеры второй зубчатой муфты [20].

3.4 Выбор тормоза

Тормоз предназначен для предотвращения сматывания каната барабана при неработающем электродвигателе лебедки.

Выбор тормоза осуществляется по значению тормозного момента:

Мт = k·Мст,

где k - коэффициент запаса (при среднем режиме работы k = 2);

Мст - момент статических сопротивлений при торможении, Н·м.

Мст = Smax·Dб·ηм / 2 Iр,

где Iр - момент инерции ротора электродвигателя.

Мст = 4,1·0,220·0,88 / 2 65,25 = 26,31 Н·м

Мт = 2·26,31 = 52,64 Н·м

Выбран тормоз ТКГ-160 с тормозным моментом не менее 100 Н·м.

Рисунок 3.12 Размеры тормоза типа ТКГ-160

Таблица 3.7. Габаритные размеры тормоза колодочного типа ТКГ-160

Обозначение тормоза

Н

F

P

K1

K2

h

b

c

d

ТКГ-160

412

135

160

72,72,100

72,128,100

144

90

90

13

На рисунке 3.12 и в таблице 3.7 представлены размеры тормоза колодочного типа ТКГ-160 [21].

Заключение

При работе над курсовой работой были закреплены знания методик расчетов типовых механизмов транспортирующих машин, получены навыки принятия решений при выборе и компоновке деталей данных механизмов.

По утвержденным методикам с учетом действующих стандартов и нормативов был произведен расчет электролебедки по заданной схеме:

расчет основных параметров лебедки (выбор поспаста, выбор каната, расчет геометрических размеров блока и барабана);

расчет привода (выбор двигателя, выбор редуктора, расчет муфт и тормоза).

Полученная конструкция электролебедки в полной мере отвечает современным требованиям, предъявляемым к механизмам данного типа.

электролебедка редуктор муфта привод

Список литературы

1. Фиделев А. С. Подъемно-транспортные машины: Учебник для студентов инженерно-строительных институтов и факультетов по специальности «Производство строительных изделий и конструкций». - Киев: Вища школа, 1975. - 220 с.

. Грузоподъемные машины: Учебник для вузов по специальности «Подъемно-транспортные машины и оборудование» [Текст]: 2-е изд., перераб. и доп. / Александров М.П., Колобов Л.Н., Лобов Н.А., Никольская Т.А., Полковников В.С. - М.: Машиностроение, 1986. -400 с, ил.

. Савин Л. А. Рабочая программа по дисциплине «Детали машин и основы конструирования» для специальности 220401 - Мехатроника. - Орел: ФГОУ ВПО «Государственныйуниверситет - УНПК», 2011.-16 с.

. Курсовое проектирование по деталям машин и подъемно-транспортным машинам: Методические указания и задания к проектам и работам для студентов-заочников технических специальностей высших учебных заведений / П.Г. Гузенков, А. Г. Гришанов, В. П. Гузенков. - М.: Высш. шк., 1990. - 111 с.: ил.

. Н. П. Журавлев, О. Б. Маликов Транспортно-грузовые системы: Учебник для студентов вузов железнодорожного транспорта по специальности 240100 «Организация перевозок и управление на транспорте (железнодорожный транспорт)». - М.: УМНЦ, 2005 - 629 с.

. Сайт компании ООО Электрокрансервис / Полиспасты монтажные ОБМ 0,5. Режим доступа: http://www.1eks.ru/cm_catalogue/200200001/

7. Сайт компании ООО LiftCenter / Каталог / Типы и устройства лебедок. - Режим доступа: http://www.liftcenter.ru/winch_classes.html

. Гужавин А. Я. Проектирование лебедки механизма подъема. Методические указания к выполнению курсового проекта по дисциплине «Механическое оборудование заводов стройиндустрии» для студентов направления - «Строительство», с ориентацией на специальность «ПСМ». Часть 1. - Нижний Новгород: ННГАСУ, 2000. - 30 с.

. Строй-Техника.ру / Строительные машины и оборудование // Блоки и барабаны лебедок: Справочник. - Режим доступа: http://stroy-technics.ru/article/bloki-i-barabany-lebedok

. Додонов Б.П., Лифанов В.А. Грузоподъемные и транспортные устройства: Учебник для средних и специальных учебных заведений. - 2-е изд. перераб. и доп. - М.: Машиностроение, 1990. - 248 с.: ил.

. Расчет и выбор параметров лебедки: методические указания / Ф.Ф. Кириллов, А.Н. Щипунов, Н.В. Гончаров. - Томск: Изд-во Томского государственного университета, 2007. - 14 с.

. Березовский Н. И. Горнотранспортные машины и подъемные механизмы: учебно-методическое пособие для выполнения лабораторных работ для студентов специальностей 1-36 10 01 «Технология и оборудование торфяного производства»: в 2-х частях / Н. И. Березовский, Г. И. Лютко, С. Г. Оника. - Минск: БНТУ, 2012. - Ч. 1. - 42 с.

. Курсовое проектирование грузоподъемных машин. Руденко Н.Ф., Александров М.П., Лысяков А.Г. Изд. 3-е, переработанное и дополненное. М.: Машиностроение, 1971 - 464 с.

. Белов М. П., Новиков В. А., Рассудов Л. Н. Автоматизированный электропривод типовых производственных механизмов и технологических комплексов. - 3-е изд., испр. - М.: Издательский центр «Академия», 2007. - 575 с. - (Высшие профессиональное образование)

. Сибэлектромотор / Электродвигатель МТН 311-6 / Руководство по эксплуатации электродвигателя MTH 311-6. - Режим доступа: http://sibelektromotor.com.ua/elektrodvigatel-mth-311-6/rukovodstvo-po-ekspluatacii/

. Краузе Г.Н., Кутилин Н.Д., Сыцко С.А. Редукторы. Справочное пособие. - 2-е издание. М.: Машиностроение, 1972. - 143 с.

17. Сайт компании ООО «Челябинский Завод Редуктор» / Каталог // Цилиндрические редукторы <http://74red.ru/catalog?cid=1> /// Редукторы цилиндрические двухступенчатые <C:\Users\ната\AppData\Local\Temp\Rar$DI79.280\ Редукторы цилиндрические двухступенчатые>. - Режим работы: http://74red.ru/catalog?item=21

. Гулиа Н. В., Клоков В. Г., Юрков С. А. Детали машин. - М.: Издательский центр «Академия», 2004. - 417 с.

. Мачульский И. И., Киреев В. С. Подъемно-транспортные и погрузочно-разгрузочные машины на железнодорожном транспорте: Учебник для вузов - М. Транспорт. 1989. - 319 с.

. Анурьев В. И. <https://ru.wikipedia.org/w/index.php?title=%D0%90%D0%BD%D1%83%D1%80%D1%8C%D0%B5%D0%B2,_%D0%92%D0%B0%D1%81%D0%B8%D0%BB%D0%B8%D0%B9_%D0%98%D0%B2%D0%B0%D0%BD%D0%BE%D0%B2%D0%B8%D1%87&action=edit&redlink=1> Справочник конструктора-машиностроителя: В 3 т. / Под ред. И. Н. Жестковой. - 8-е изд., перераб. и доп.. - М.: Машиностроение, 2001. - Т. 2. - 912 с.

. Тормоза колодочные типа ТКГ: паспорт. - Режим доступа: http://www.wem-russia.ru/files/tkg.pdf